賃貸マンション
アイコニックタワー 新潟ステーションの賃貸物件情報(3LDK/2階)
| 家賃 | 管理費等 | 敷金 | 礼金 | 間取り | 専有面積 |
|---|---|---|---|---|---|
| 22万円 | なし | 22万円 | 22万円 | 3LDK | 84.09m2 |
入居決定でお祝い金最大100,000円
Point
マンションに隣接した自走式駐車場を、各世帯1台分を確保可能。ゲストルームやワーキングスペースもあり。※喫煙不可
提供:エイブルネットワーク新潟中央店日生不動産(株)(SUUMO経由)

詳細情報 アイコニックタワー 新潟ステーション
物件紹介
アイコニックタワー 新潟ステーションはJR越後線新潟駅から徒歩4分にあり、駅近で通勤通学に便利なマンションです。
このお部屋は2階以上に位置しているので、通行人や周囲の住人からの視線が気になりにくく、防犯面でも安心。建物のエントランスはオートロックがついており、インターホンにはTVモニタもついているため、相手の顔を確認してから来客対応することができます。
人気の南向きのお部屋。キッチンはシステムキッチン仕様になっていますので、お料理好きの方にもぴったり。バス・トイレは別なので、のんびりお風呂タイムも楽しめるでしょう。また、雨の日でも浴室乾燥機を使えば、お洗濯も問題ありません。
通信設備面ではBSアンテナ・CSアンテナがありますので、おうち時間も充実するでしょう(別途工事、契約料が必要な場合あり)。
床暖房があり、冬も足元から暖かく快適に過ごすことができます。建物にはエレベーターがついているので、重い荷物があっても安心。共用部には宅配ボックスが設定されているので、不在の時にも荷物を受け取ることができます。
このお部屋は2階以上に位置しているので、通行人や周囲の住人からの視線が気になりにくく、防犯面でも安心。建物のエントランスはオートロックがついており、インターホンにはTVモニタもついているため、相手の顔を確認してから来客対応することができます。
人気の南向きのお部屋。キッチンはシステムキッチン仕様になっていますので、お料理好きの方にもぴったり。バス・トイレは別なので、のんびりお風呂タイムも楽しめるでしょう。また、雨の日でも浴室乾燥機を使えば、お洗濯も問題ありません。
通信設備面ではBSアンテナ・CSアンテナがありますので、おうち時間も充実するでしょう(別途工事、契約料が必要な場合あり)。
床暖房があり、冬も足元から暖かく快適に過ごすことができます。建物にはエレベーターがついているので、重い荷物があっても安心。共用部には宅配ボックスが設定されているので、不在の時にも荷物を受け取ることができます。
お金・契約の情報
※「-」と表示されているものは、実際は料金が発生するものもございます。詳細はお問い合わせください。
| 家賃 | 22万円 | 管理費・共益費 | なし |
|---|---|---|---|
| 敷金 | 22万円 | 礼金 | 22万円 |
| 入居決定でお祝い金最大100,000円 | |||
| 保証金 | - | 償却・敷引 | - |
| 住宅保険料 | - | 更新料 | - |
| 保証会社利用 | 必須 | 保証会社名 | - |
| 保証会社費用 | - | 保証会社備考 | 保証会社利用必 初回保証料:賃料総額50% 月額保証料:賃料総額1% 更新保証料:20,000円/2年 ※法人契約時、更新事務手数料22,000円(税込) |
| 契約形態 | - | 契約期間 | - |
| 入居・引渡期間 | 即時 | 現況 | - |
| 契約備考 | 通勤管理/保証会社エポスカード Life24825円/月 3LDK 二人入居可/事務所利用不可 普通借家2年 損保【1.8万円2年】 バストイレ別、ガスコンロ対応、クロゼット、シャワー付洗面台、TVインターホン、浴室乾燥機、オートロック、室内洗濯置、シューズボックス、システムキッチン、南向き、追焚機能浴室、温水洗浄便座、洗面所独立、洗面化粧台、駐輪場、宅配ボックス、即入居可、BS・CS、3口以上コンロ、対面式キッチン、防犯カメラ、分譲賃貸、グリル付、全居室洋室、保証人不要、敷金1ヶ月、バイク置場、ディンプルキー、床暖房、エアコン全室、トランクルーム、築2年以内、南面リビング、エレベーター2基、エアコン4台、未入居、駅徒歩5分以内、敷地内ごみ置き場、専有面積25坪以上、日勤管理、当社管理物件、セキュリティ会社加入済、LDK18畳以上、都市ガス、南面バルコニー、礼金1ヶ月、IT重説対応物件、初期費用カード決済可 | ||
部屋の情報
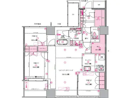
| 間取り | 3LDK | 専有面積 | 84.09m2 |
|---|---|---|---|
| 所在階 / 向き | 2階 / 南 | バルコニー面積 | - |
| 水道 / ガス | - | ||
| 設備 | バス・トイレ別、2階以上、オートロック、テレビドアホン、宅配ボックス、浴室乾燥機、追い焚き、システムキッチン、エアコン、エレベーター、温水洗浄便座、南向き、バルコニー、トランクルーム、洗髪洗面化粧台、床暖房、2口コンロ、コンロ:ガス、CSアンテナ、BSアンテナ、洗濯機:室内 | ||
| 当社物件ID | 159657765 | ||
建物の情報
| 建物名 | アイコニックタワー 新潟ステーション | ||
|---|---|---|---|
| 所在地 | 新潟県新潟市中央区花園 | ||
| 交通 | JR越後線 新潟駅 徒歩4分 | ||
| 階数 | 30階建 | 総戸数 | 218戸 |
| 築年月 | 2025年06月 / 築1年 | エレベーター | あり |
| 駐車場 | 近隣 10m22000円 | バイク置き場 | あり |
| 駐輪場 | あり | 管理人/管理会社 | - |
| 周辺環境 | その他 ローソン 新潟駅オレンジガーデン店(コンビニ)まで155m その他 ビックカメラ 新潟店(ショッピングセンター)まで240m その他 新潟東警察署 笹口交番(警察署・交番)まで302m その他 CoCoLo万代けんこう市場(スーパー)まで315m その他 薬 マツモトキヨシ 新潟駅ビルCoCoLo万代店(ドラッグストア)まで246m その他 新潟駅(その他)まで452m | ||
| 建物種別 | マンション | 建物構造 | RC(鉄筋コンクリート) |
この部屋の取扱い不動産会社
| 会社名 | エイブルネットワーク新潟中央店日生不動産(株)(SUUMO経由) | ||
|---|---|---|---|
| 所在地 | 新潟県新潟市中央区上近江1-8-5 | 交通 | - |
| 営業時間 | 10:00~17:00 | 定休日 | 毎週水曜日(1~5月は営業) |
| 免許番号 | 新潟県知事3758 | 取引態様 | 代理 |
| 不動産会社管理番号 | 100465952035 | 当社管理番号 | 89 |
| 所属団体 | (公社)新潟県宅地建物取引業協会会員 | ||
| 公正取引協議会 | (公社)首都圏不動産公正取引協議会加盟 | ||
| 取扱い物件情報 | 物件詳細へ | ||
※各種情報と現状に差異がある場合は、現状優先となります。問い合わせをすることで、より詳しい条件、情報を確認する事ができます。
提供:エイブルネットワーク新潟中央店日生不動産(株)(SUUMO経由)
この物件が気になったら掲載期限まであと10日
アイコニックタワー 新潟ステーションの空き部屋一覧
全部で28の空き部屋があります。
アイコニックタワー 新潟ステーションに条件(家賃・エリア)が近い物件一覧
| 写真 | 家賃 管理費等 | 敷金 礼金 | 間取り 専有面積 | 築年数 | 最寄り駅 所在地 | キープ | 詳細 |
|---|---|---|---|---|---|---|---|
マンション ライズ西堀(3LDK/6階) | |||||||
![]() | 13.5万円 なし | 13.5万円 13.5万円 | 3LDK 78.24m2 | 築24年 | 白新線 新潟駅 徒歩27分 新潟県新潟市中央区 | 詳細を見る | |
マンション シャーメゾン笹和(2LDK/4階) | |||||||
![]() | 16.6万円 1.1万円 | なし 33.2万円 | 2LDK 71.71m2 | 新築 | 上越新幹線 新潟駅 徒歩7分 JR信越本線 新潟駅 徒歩7分 新潟県新潟市中央区笹口 | 詳細を見る | |
マンション パストラルハイム米山壱番館(4LDK/13階) | |||||||
![]() | 14万円 なし | 28万円 28万円 | 4LDK 81.11m2 | 築29年 | JR信越本線 新潟駅 徒歩9分 新潟県新潟市中央区米山 | 詳細を見る | |
マンション ダイアパレス町口御門(3LDK/8階) | |||||||
![]() | 15.6万円 1.2万円 | 15.6万円 15.6万円 | 3LDK 77.29m2 | 築10年 | 上越新幹線 長岡駅 徒歩7分 JR信越本線 長岡駅 徒歩7分 新潟県長岡市表町 | 詳細を見る | |
アパート CALMO白山浦(2LDK/1階) | |||||||
![]() | 14.5万円 1,000円 | 14.5万円 14.5万円 | 2LDK 76.44m2 | 築8年 | 越後線 白山駅(新潟) 徒歩1分 新潟県新潟市中央区白山浦2丁目 | 詳細を見る | |
マンション SHINANOビル(2LDK/8階) | |||||||
![]() | 11.2万円 6,000円 | 22.4万円 11.2万円 | 2LDK 54.74m2 | 築6年 | 越後線 白山駅(新潟) 徒歩14分 新潟県新潟市中央区 | 詳細を見る | |
マンション サーパスシティ今朝白弐番館イーストウイング(3LDK/9階) | |||||||
![]() | 14万円 なし | 28万円 14万円 | 3LDK 77.26m2 | 築18年 | JR信越本線 長岡駅 徒歩12分 新潟県長岡市今朝白 | 詳細を見る | |
一戸建て 越後線 白山駅(新潟) 徒歩9分 築1年(2SLDK) | |||||||
![]() | 16万円 なし | 16万円 16万円 | 2SLDK 80m2 | 築1年 | 越後線 白山駅(新潟) 徒歩9分 新潟県新潟市中央区 | 詳細を見る | |


/105x80-f1-q70-wp1)






