賃貸マンション
プレサンス高畑ルミアの賃貸物件情報(1K/13階)
| 家賃 | 管理費等 | 敷金 | 礼金 | 間取り | 専有面積 |
|---|---|---|---|---|---|
| 6.16万円 | 8,330円 | なし | なし | 1K | 24.15m2 |
入居決定でお祝い金最大100,000円
Point
豪華なエントランスや設備が特徴の分譲賃貸マンションです!
提供:スタイルエステート西支店(株)エムホームエステート(SUUMO経由)

詳細情報 プレサンス高畑ルミア
物件紹介
プレサンス高畑ルミアは名古屋市東山線高畑駅から徒歩3分にあり、駅近で通勤通学に便利なマンションです。
このお部屋は2階以上に位置しているので、通行人や周囲の住人からの視線が気になりにくく、防犯面でも安心。建物のエントランスはオートロックがついており、インターホンにはTVモニタもついているため、相手の顔を確認してから来客対応することができます。
おしゃれなデザイナーズ物件!人気の角部屋で周囲の居住者の生活音も気になりにくく、また、フローリングのお部屋なのでお掃除もラクラク。キッチンはシステムキッチン仕様になっていますので、お料理好きの方にもぴったり。バス・トイレは別なので、のんびりお風呂タイムも楽しめるでしょう。また、雨の日でも浴室乾燥機を使えば、お洗濯も問題ありません。
通信設備面では、インターネットが無料で使えるので、月々の出費を抑えられるのも魅力です。また、BSアンテナ・CSアンテナがありCATVにも対応しているので、おうち時間も充実するでしょう(別途工事、BS・CS・CATVの契約料等が必要な場合あり)。
建物にはエレベーターがついているので、重い荷物があっても安心。共用部には宅配ボックスが設定されているので、不在の時にも荷物を受け取ることができます。
コンビニまで徒歩5分の場所にあり、日用品や食料品のお買い物にも便利です。
このお部屋は2階以上に位置しているので、通行人や周囲の住人からの視線が気になりにくく、防犯面でも安心。建物のエントランスはオートロックがついており、インターホンにはTVモニタもついているため、相手の顔を確認してから来客対応することができます。
おしゃれなデザイナーズ物件!人気の角部屋で周囲の居住者の生活音も気になりにくく、また、フローリングのお部屋なのでお掃除もラクラク。キッチンはシステムキッチン仕様になっていますので、お料理好きの方にもぴったり。バス・トイレは別なので、のんびりお風呂タイムも楽しめるでしょう。また、雨の日でも浴室乾燥機を使えば、お洗濯も問題ありません。
通信設備面では、インターネットが無料で使えるので、月々の出費を抑えられるのも魅力です。また、BSアンテナ・CSアンテナがありCATVにも対応しているので、おうち時間も充実するでしょう(別途工事、BS・CS・CATVの契約料等が必要な場合あり)。
建物にはエレベーターがついているので、重い荷物があっても安心。共用部には宅配ボックスが設定されているので、不在の時にも荷物を受け取ることができます。
コンビニまで徒歩5分の場所にあり、日用品や食料品のお買い物にも便利です。
お金・契約の情報
※「-」と表示されているものは、実際は料金が発生するものもございます。詳細はお問い合わせください。
| 家賃 | 6.16万円 | 管理費・共益費 | 8,330円 |
|---|---|---|---|
| 敷金 | なし | 礼金 | なし |
| 入居決定でお祝い金最大100,000円 | |||
| 保証金 | - | 償却・敷引 | - |
| 住宅保険料 | - | 更新料 | - |
| 保証会社利用 | 必須 | 保証会社名 | 株式会社プレサンスギャランティ |
| 保証会社費用 | - | 保証会社備考 | ギャランティ 初回50% 月1.5%・セーフティー 初回50% 年10,000円 |
| 契約形態 | - | 契約期間 | 1年 |
| 入居・引渡期間 | 2026年02月下旬 | 現況 | - |
| 契約備考 | プレサポ24 990円/カギ調整代 22000円 | ||
部屋の情報
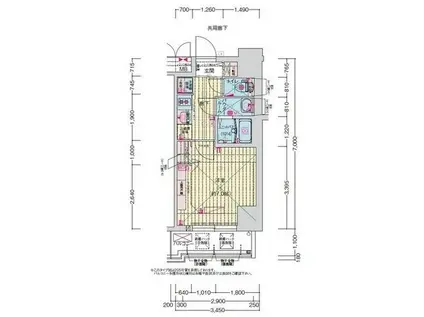
| 間取り | 1K | 専有面積 | 24.15m2 |
|---|---|---|---|
| 間取り詳細 | 洋室(7帖) | ||
| 所在階 / 向き | 13階 / 東 | バルコニー面積 | 3m2 |
| 水道 / ガス | ガス【都市】 | ||
| 設備 | バス・トイレ別、オートロック、テレビドアホン、宅配ボックス、浴室乾燥機、光ファイバー対応、システムキッチン、エレベーター、温水洗浄便座、バルコニー、フローリング、コンロ:ガス、デザイナーズ、BSアンテナ、シャワー、給湯、冷房、洗濯機:室内、タイル張り、閑静な住宅街 | ||
| 当社物件ID | 159620486 | ||
建物の情報
| 建物名 | プレサンス高畑ルミア | ||
|---|---|---|---|
| 所在地 | 愛知県名古屋市中川区高畑1丁目 | ||
| 交通 | 名古屋市東山線 高畑駅 徒歩4分 | ||
| 階数 | 13階建 | 総戸数 | 57戸 |
| 築年月 | 2026年02月 / 新築 | エレベーター | あり |
| 駐車場 | - | バイク置き場 | - |
| 駐輪場 | あり | 管理人/管理会社 | - |
| 周辺環境 | その他 (株)三菱UFJ銀行/高畑支店 徒歩1分(76m) その他 中川区役所 徒歩1分(61m) その他 (株)愛知銀行/高畑支店 徒歩2分(143m) その他 スギ薬局 徒歩2分(131m) その他 名古屋荒子郵便局 徒歩4分(283m) その他 デイリーヤマザキ 徒歩4分(262m) その他 街かど屋荒子店 徒歩5分(346m) その他 TSUTAYA 徒歩7分(517m) | ||
| 建物種別 | マンション | 建物構造 | RC(鉄筋コンクリート) |
この部屋の取扱い不動産会社
| 会社名 | アパマンショップ名古屋駅新幹線口店 | ||
|---|---|---|---|
| 所在地 | 愛知県名古屋市中村区椿町 8−6 | 交通 | 東海道本線名古屋から徒歩3分 |
| 営業時間 | 10:00〜18:30 | 定休日 | 水曜日 |
| 免許番号 | 愛知県知事(5)19752 | 取引態様 | 仲介 |
| 不動産会社管理番号 | 1000842134 | 当社管理番号 | 4 |
| 所属団体 | (公社)全日本不動産協会愛知県本部 | ||
| 公正取引協議会 | 東海不動産公正取引協議会加盟 | ||
| 取扱い物件情報 | 物件詳細へ | ||
※各種情報と現状に差異がある場合は、現状優先となります。問い合わせをすることで、より詳しい条件、情報を確認する事ができます。
提供:アパマンショップ名古屋駅新幹線口店
この物件が気になったら掲載期限まであと12日
プレサンス高畑ルミアの空き部屋一覧
全部で58の空き部屋があります。
プレサンス高畑ルミアに条件(家賃・エリア)が近い物件一覧
| 写真 | 家賃 管理費等 | 敷金 礼金 | 間取り 専有面積 | 築年数 | 最寄り駅 所在地 | キープ | 詳細 |
|---|---|---|---|---|---|---|---|
マンション レオパレス大塩(1K/1階) | |||||||
![]() | 5.2万円 7,500円 | なし 5.2万円 | 1K 23.18m2 | 築16年 | あおなみ線 南荒子駅 徒歩4分 愛知県名古屋市中川区大塩町 | 詳細を見る | |
テラスハウス HATCH枇杷島(ワンルーム) | |||||||
![]() | 4.3万円 3,000円 | 4.3万円 なし | ワンルーム 20.18m2 | 築9年 | 名鉄名古屋本線 二ツ杁駅 徒歩2分 愛知県清須市西枇杷島町北二ツ杁 | 詳細を見る | |
マンション エトワール(1K/4階) | |||||||
![]() | 4.5万円 5,000円 | なし なし | 1K 24.18m2 | 築24年 | 名古屋市名港線 六番町駅 徒歩7分 名古屋市名港線 東海通駅 徒歩15分 愛知県名古屋市中川区十番町5丁目 | 詳細を見る | |
アパート ウィルリカーモ(1LDK/1階) | |||||||
![]() | 5.8万円 4,500円 | なし なし | 1LDK 41.22m2 | 築21年 | 名鉄常滑線 新日鉄前駅 徒歩9分 名鉄常滑線 聚楽園駅 徒歩15分 名鉄常滑線 太田川駅 徒歩26分 愛知県東海市富貴ノ台 | 詳細を見る | |
アパート カーサラッフィナート(2LDK/1階) | |||||||
![]() | 6.6万円 2,900円 | なし 8.5万円 | 2LDK 56.84m2 | 築13年 | 関西本線 春田駅 徒歩18分 愛知県名古屋市中川区服部1丁目 | 詳細を見る | |
アパート ボヌールヴィラージュ(1LDK/2階) | |||||||
![]() | 6.4万円 4,000円 | なし なし | 1LDK 51.66m2 | 築23年 | 愛知県日進市竹の山 | 詳細を見る | |
アパート CLASSE上流(1K/1階) | |||||||
![]() | 4.8万円 3,000円 | なし なし | 1K 23.13m2 | 築15年 | あおなみ線 南荒子駅 徒歩5分 あおなみ線 荒子駅 徒歩13分 地下鉄東山線 高畑駅 徒歩18分 愛知県名古屋市中川区上流町 | 詳細を見る | |


/105x80-f1-q70-wp1)



