賃貸マンション
プレサンス高畑ルミアの賃貸物件情報(1K/8階)
| 家賃 | 管理費等 | 敷金 | 礼金 | 間取り | 専有面積 |
|---|---|---|---|---|---|
| 6.01万円 | 8,330円 | なし | 6.01万円 | 1K | 24.15m2 |
入居決定でお祝い金最大100,000円
Point
アパマンショップ高畑店は初期費用クレジット支払可能です。
提供:Room Collection 部屋コレ (株)M's Collection(SUUMO経由)

詳細情報 プレサンス高畑ルミア
物件紹介
プレサンス高畑ルミアは地下鉄東山線高畑駅から徒歩3分にあり、駅近で通勤通学に便利なマンションです。
このお部屋は2階以上に位置しているので、通行人や周囲の住人からの視線が気になりにくく、防犯面でも安心。建物のエントランスはオートロックがついており、インターホンにはTVモニタもついているため、相手の顔を確認してから来客対応することができます。
おしゃれなデザイナーズ物件!人気の角部屋で周囲の居住者の生活音も気になりにくく、また、フローリングのお部屋なのでお掃除もラクラク。キッチンはシステムキッチン仕様になっていますので、お料理好きの方にもぴったり。バス・トイレは別なので、のんびりお風呂タイムも楽しめるでしょう。また、雨の日でも浴室乾燥機を使えば、お洗濯も問題ありません。
通信設備面では、インターネットが無料で使えるので、月々の出費を抑えられるのも魅力です。また、BSアンテナもありますので、おうち時間も充実するでしょう(別途工事、BSの契約料等が必要な場合あり)。
建物にはエレベーターがついているので、重い荷物があっても安心。共用部には宅配ボックスが設定されているので、不在の時にも荷物を受け取ることができます。
コンビニまで徒歩5分の場所にあり、日用品や食料品のお買い物にも便利です。
このお部屋は2階以上に位置しているので、通行人や周囲の住人からの視線が気になりにくく、防犯面でも安心。建物のエントランスはオートロックがついており、インターホンにはTVモニタもついているため、相手の顔を確認してから来客対応することができます。
おしゃれなデザイナーズ物件!人気の角部屋で周囲の居住者の生活音も気になりにくく、また、フローリングのお部屋なのでお掃除もラクラク。キッチンはシステムキッチン仕様になっていますので、お料理好きの方にもぴったり。バス・トイレは別なので、のんびりお風呂タイムも楽しめるでしょう。また、雨の日でも浴室乾燥機を使えば、お洗濯も問題ありません。
通信設備面では、インターネットが無料で使えるので、月々の出費を抑えられるのも魅力です。また、BSアンテナもありますので、おうち時間も充実するでしょう(別途工事、BSの契約料等が必要な場合あり)。
建物にはエレベーターがついているので、重い荷物があっても安心。共用部には宅配ボックスが設定されているので、不在の時にも荷物を受け取ることができます。
コンビニまで徒歩5分の場所にあり、日用品や食料品のお買い物にも便利です。
お金・契約の情報
※「-」と表示されているものは、実際は料金が発生するものもございます。詳細はお問い合わせください。
| 家賃 | 6.01万円 | 管理費・共益費 | 8,330円 |
|---|---|---|---|
| 敷金 | なし | 礼金 | 6.01万円 |
| 入居決定でお祝い金最大100,000円 | |||
| 保証金 | - | 償却・敷引 | - |
| 住宅保険料 | 1.1万円(2年) | 更新料 | - |
| 保証会社利用 | 必須 | 保証会社名 | プレサンス保証 |
| 保証会社費用 | - | 保証会社備考 | 初回時に月額賃料の50% 毎月月額賃料の1.5% |
| 契約形態 | - | 契約期間 | 2年 |
| 入居・引渡期間 | 2026年02月下旬 | 現況 | - |
| 契約備考 | プレサポ24 990円/鍵調整代 22000円、[退去時費用:ハウスクリーニング代 38,500円 ※故意・過失等別途実費] | ||
部屋の情報
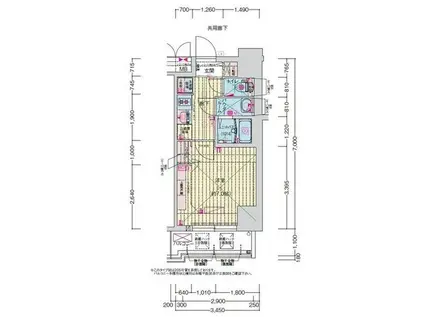
| 間取り | 1K | 専有面積 | 24.15m2 |
|---|---|---|---|
| 間取り詳細 | 洋室(7帖) | ||
| 所在階 / 向き | 8階 / 東 | バルコニー面積 | - |
| 水道 / ガス | ガス【都市】 | ||
| 設備 | バス・トイレ別、オートロック、テレビドアホン、宅配ボックス、浴室乾燥機、光ファイバー対応、システムキッチン、エレベーター、温水洗浄便座、角部屋、バルコニー、フローリング、コンロ:ガス、BSアンテナ、インターネット使用料無料、シャワー、給湯、洗濯機:室内、閑静な住宅街 | ||
| 当社物件ID | 159620490 | ||
建物の情報
| 建物名 | プレサンス高畑ルミア | ||
|---|---|---|---|
| 所在地 | 愛知県名古屋市中川区高畑1丁目 | ||
| 交通 | 名古屋市東山線 高畑駅 徒歩3分 | ||
| 階数 | 13階建 | 総戸数 | 57戸 |
| 築年月 | 2026年02月 / 新築 | エレベーター | あり |
| 駐車場 | - | バイク置き場 | あり |
| 駐輪場 | あり | 管理人/管理会社 | - |
| 周辺環境 | その他 高畑駅 徒歩3分(240m) | ||
| 建物種別 | マンション | 建物構造 | RC(鉄筋コンクリート) |
この部屋の取扱い不動産会社
| 会社名 | アパマンショップ高畑店 | ||
|---|---|---|---|
| 所在地 | 愛知県名古屋市中川区高畑1丁目 210高畑T−2マンション1階 | 交通 | 名古屋市東山線高畑から徒歩1分 |
| 営業時間 | 10:00〜18:00 | 定休日 | - |
| 免許番号 | 愛知県知事(6)18993 | 取引態様 | 仲介 |
| 不動産会社管理番号 | 111172091 | 当社管理番号 | 4 |
| 所属団体 | (公社)全日本不動産協会愛知県本部 | ||
| 公正取引協議会 | 東海不動産公正取引協議会加盟 | ||
| 取扱い物件情報 | 物件詳細へ | ||
※各種情報と現状に差異がある場合は、現状優先となります。問い合わせをすることで、より詳しい条件、情報を確認する事ができます。
提供:アパマンショップ高畑店
この物件が気になったら掲載期限まであと12日
プレサンス高畑ルミアの空き部屋一覧
全部で58の空き部屋があります。
プレサンス高畑ルミアに条件(家賃・エリア)が近い物件一覧
| 写真 | 家賃 管理費等 | 敷金 礼金 | 間取り 専有面積 | 築年数 | 最寄り駅 所在地 | キープ | 詳細 |
|---|---|---|---|---|---|---|---|
アパート ヴィラ長久手1(1K/2階) | |||||||
![]() | 4.4万円 4,000円 | なし なし | 1K 27.08m2 | 築27年 | リニモ はなみずき通駅 徒歩12分 地下鉄東山線 藤が丘駅(愛知) 徒歩18分 リニモ 杁ケ池公園駅 徒歩23分 愛知県長久手市山桶 | 詳細を見る | |
アパート レオパレスたんぽぽハイツ(1K/2階) | |||||||
![]() | 5.9万円 5,500円 | なし なし | 1K 28.15m2 | 築17年 | 関西本線 春田駅 徒歩5分 愛知県名古屋市中川区春田1丁目 | 詳細を見る | |
アパート エクセルシオールII(1K/2階) | |||||||
![]() | 6万円 3,500円 | なし 8万円 | 1K 28.87m2 | 新築 | JR関西本線 春田駅 徒歩11分 近鉄名古屋線 伏屋駅 徒歩14分 愛知県名古屋市中川区西伏屋 | 詳細を見る | |
マンション A・CITY中川(1K/3階) | |||||||
![]() | 4万円 6,000円 | なし なし | 1K 24.3m2 | 築8年 | 近鉄名古屋線 伏屋駅 徒歩23分 愛知県名古屋市中川区下之一色町宮分 | 詳細を見る | |
マンション フラワー松本III(3DK/4階) | |||||||
![]() | 5.2万円 3,000円 | 10.4万円 2.6万円 | 3DK 56.16m2 | 築37年 | JR中央本線 高蔵寺駅 徒歩12分 愛知環状鉄道 高蔵寺駅 徒歩13分 JR中央本線 神領駅 徒歩38分 愛知県春日井市高蔵寺町 | 詳細を見る | |
アパート エクセル辻畑(1K/2階) | |||||||
![]() | 4.1万円 3,000円 | なし なし | 1K 26.46m2 | 築26年 | あおなみ線 小本駅(愛知) 徒歩7分 近鉄名古屋線 烏森駅 徒歩8分 愛知県名古屋市中川区辻畑町 | 詳細を見る | |
マンション アラニⅡ(1K/4階) | |||||||
![]() | 5.2万円 7,000円 | 6万円 なし | 1K 28.1m2 | 築23年 | 名古屋臨海高速鉄道 荒子駅 徒歩3分 名古屋市東山線 高畑駅 徒歩7分 愛知県名古屋市中川区荒子2丁目 | 詳細を見る | |
マンション BRIGHT GATE 名古屋(1K/11階) | |||||||
![]() | 6.55万円 5,900円 | なし 6.55万円 | 1K 27.61m2 | 新築 | 名古屋臨海高速鉄道 ささしまライブ駅 徒歩7分 愛知県名古屋市中川区福住町 | 詳細を見る | |








