賃貸マンション
SYFORME OMIYAの賃貸物件情報(1LDK/9階)
| 家賃 | 管理費等 | 敷金 | 礼金 | 間取り | 専有面積 |
|---|---|---|---|---|---|
| 12.85万円 | 1.2万円 | 12.85万円 | 12.85万円 | 1LDK | 30.37m2 |
入居決定でお祝い金最大100,000円
- 保証金
- -
- 償却・敷引
- -
- 築年数
- 新築(築1年)
- 所在階
- 9階
- 向き
- 南
Point
収納はシューズボックス・クロゼットなどが備え付けられているので、衣類や日用品の収納に重宝します。
提供:いい部屋ネット大東建託リーシング(株)川口駅前店(SUUMO経由)

詳細情報 SYFORME OMIYA
物件紹介
SYFORME OMIYAはJR京浜東北線大宮駅から徒歩8分にあり、駅近で通勤通学に便利なマンションです。
このお部屋は2階以上に位置しているので、通行人や周囲の住人からの視線が気になりにくく、防犯面でも安心。建物のエントランスはオートロックがついており、インターホンにはTVモニタもついているため、相手の顔を確認してから来客対応することができます。
人気の南向き・フローリングのお部屋。角部屋でもあるため、周囲の居住者の生活音も気になりにくい場所です。キッチンはシステムキッチン仕様になっていますので、お料理好きの方にもぴったり。バス・トイレは別なので、のんびりお風呂タイムも楽しめるでしょう。また、雨の日でも浴室乾燥機を使えば、お洗濯も問題ありません。
通信設備面では、インターネットが無料で使えるので、月々の出費を抑えられるのも魅力です。また、BSアンテナ・CSアンテナがありCATVにも対応しているので、おうち時間も充実するでしょう(別途工事、BS・CS・CATVの契約料等が必要な場合あり)。
建物にはエレベーターがついているので、重い荷物があっても安心。共用部には宅配ボックスが設定されているので、不在の時にも荷物を受け取ることができます。また、ペット飼育の相談ができますので、あなたの大切な家族の一員も快適に暮らせるか、ぜひ確認してみてください。
コンビニまで徒歩7分の場所にあり、日用品や食料品のお買い物にも便利です。
このお部屋は2階以上に位置しているので、通行人や周囲の住人からの視線が気になりにくく、防犯面でも安心。建物のエントランスはオートロックがついており、インターホンにはTVモニタもついているため、相手の顔を確認してから来客対応することができます。
人気の南向き・フローリングのお部屋。角部屋でもあるため、周囲の居住者の生活音も気になりにくい場所です。キッチンはシステムキッチン仕様になっていますので、お料理好きの方にもぴったり。バス・トイレは別なので、のんびりお風呂タイムも楽しめるでしょう。また、雨の日でも浴室乾燥機を使えば、お洗濯も問題ありません。
通信設備面では、インターネットが無料で使えるので、月々の出費を抑えられるのも魅力です。また、BSアンテナ・CSアンテナがありCATVにも対応しているので、おうち時間も充実するでしょう(別途工事、BS・CS・CATVの契約料等が必要な場合あり)。
建物にはエレベーターがついているので、重い荷物があっても安心。共用部には宅配ボックスが設定されているので、不在の時にも荷物を受け取ることができます。また、ペット飼育の相談ができますので、あなたの大切な家族の一員も快適に暮らせるか、ぜひ確認してみてください。
コンビニまで徒歩7分の場所にあり、日用品や食料品のお買い物にも便利です。
お金・契約の情報
※「-」と表示されているものは、実際は料金が発生するものもございます。詳細はお問い合わせください。
| 家賃 | 12.85万円 | 管理費・共益費 | 1.2万円 |
|---|---|---|---|
| 敷金 | 12.85万円 | 礼金 | 12.85万円 |
| 入居決定でお祝い金最大100,000円 | |||
| 保証金 | - | 償却・敷引 | - |
| 住宅保険料 | 1円 | 更新料 | - |
| その他費用 | SYLAプレミアムクラブ加入:2.42万円 | ||
| 保証会社利用 | 必須 | 保証会社名 | - |
| 保証会社費用 | - | 保証会社備考 | 初回:総賃料の40%、以降継続:10000円 |
| 契約形態 | - | 契約期間 | 2年 |
| 入居・引渡期間 | 即時 | 現況 | - |
| 入居可能条件 | 2人入居可、ペット相談 | ||
| 契約備考 | ペット飼育時:敷金1ヶ月 その他設備/条件:室内洗濯機置き場、ごみ出し24時間OK、独立洗面台、クローゼット、シューズボックス | ||
部屋の情報
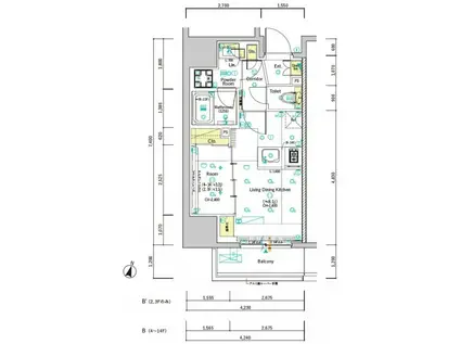
| 間取り | 1LDK | 専有面積 | 30.37m2 |
|---|---|---|---|
| 間取り詳細 | 洋室(3.2帖)、LDK(8.1帖) | ||
| 所在階 / 向き | 9階 / 南 | バルコニー面積 | - |
| 水道 / ガス | 水道【公営】、ガス【都市】 | ||
| 設備 | バス・トイレ別、オートロック、テレビドアホン、宅配ボックス、浴室乾燥機、追い焚き、インターネット対応、システムキッチン、カウンターキッチン、エアコン、エレベーター、温水洗浄便座、バルコニー、フローリング、洗髪洗面化粧台、2口コンロ、コンロ:ガス、CATV、CSアンテナ、BSアンテナ、インターネット使用料無料、シャワー、給湯 | ||
| 当社物件ID | 160515773 | ||
建物の情報
| 建物名 | SYFORME OMIYA | ||
|---|---|---|---|
| 所在地 | 埼玉県さいたま市大宮区仲町3丁目 | ||
| 交通 | 京浜東北・根岸線 大宮駅(埼玉) 徒歩10分 京浜東北・根岸線 さいたま新都心駅 徒歩20分 | ||
| 階数 | 14階建 | 総戸数 | - |
| 築年月 | 2025年12月 / 新築(築1年) | エレベーター | あり |
| 駐車場 | - | バイク置き場 | - |
| 駐輪場 | - | 管理人/管理会社 | - |
| 周辺環境 | コンビニ 徒歩7分(513m) 販売店 徒歩7分(487m) その他 ドラッグストア その他 公園 その他 銀行 その他 * | ||
| 建物種別 | マンション | 建物構造 | RC(鉄筋コンクリート) |
この部屋の取扱い不動産会社
| 会社名 | ハウスコム埼玉株式会社 浦和東口店 | ||
|---|---|---|---|
| 所在地 | 埼玉県さいたま市浦和区3-151階 | 交通 | - |
| 営業時間 | 10:00~18:00 | 定休日 | - |
| 免許番号 | 埼玉県知事(1)第24888号 | 取引態様 | 仲介 |
| 不動産会社管理番号 | HC2-5296582-902-0218 | 当社管理番号 | 468 |
| 所属団体 | 、 | ||
| 取扱い物件情報 | 物件詳細へ | ||
※各種情報と現状に差異がある場合は、現状優先となります。問い合わせをすることで、より詳しい条件、情報を確認する事ができます。
提供:ハウスコム埼玉株式会社 浦和東口店
この物件が気になったら掲載期限まであと5日
SYFORME OMIYAの空き部屋一覧
全部で23の空き部屋があります。
SYFORME OMIYAに条件(家賃・エリア)が近い物件一覧
| 写真 | 家賃 管理費等 | 敷金 礼金 | 間取り 専有面積 | 築年数 | 最寄り駅 所在地 | キープ | 詳細 |
|---|---|---|---|---|---|---|---|
マンション 佐藤ビル(3SDK/3階) | |||||||
![]() | 8.5万円 3,000円 | なし なし | 3SDK 76.95m2 | 築46年 | 埼玉新都市交通伊奈線 鉄道博物館駅 徒歩4分 東武野田線 北大宮駅 徒歩19分 JR京浜東北線 大宮駅(埼玉) 徒歩25分 埼玉県さいたま市大宮区大成町 | 詳細を見る | |
マンション クレセントハイツ(3DK/3階) | |||||||
![]() | 7.8万円 4,000円 | 7.8万円 7.8万円 | 3DK 51.61m2 | 築43年 | 埼玉高速鉄道 鳩ケ谷駅 徒歩11分 埼玉高速鉄道 新井宿駅 徒歩31分 埼玉県川口市大字辻 | 詳細を見る | |
アパート プチメゾン(1LDK/1階) | |||||||
![]() | 11万円 1万円 | 11万円 11万円 | 1LDK 54.24m2 | 新築 | JR埼京線 戸田公園駅 徒歩17分 埼玉県戸田市川岸 | 詳細を見る | |
マンション ライオンズシティ川越(2DK/7階) | |||||||
![]() | 12万円 8,000円 | 12万円 12万円 | 2DK 45.4m2 | 築33年 | 東武東上線 川越駅 徒歩5分 JR川越線 川越駅 徒歩6分 西武新宿線 本川越駅 徒歩17分 埼玉県川越市菅原町 | 詳細を見る | |
アパート D-SERENO富士見町(1LDK/1階) | |||||||
![]() | 8.4万円 6,000円 | なし なし | 1LDK 31.92m2 | 築1年 | 東武鉄道東上線 川越駅 徒歩11分 埼玉県川越市富士見町 | 詳細を見る | |
マンション エスバイエルマンション越谷(2LDK/3階) | |||||||
![]() | 9.3万円 なし | 9.3万円 9.3万円 | 2LDK 53.56m2 | 築32年 | 東武伊勢崎線 越谷駅 徒歩9分 東武伊勢崎線 北越谷駅 徒歩24分 埼玉県越谷市赤山町 | 詳細を見る | |
マンション BELAIR川口元郷(1LDK/7階) | |||||||
![]() | 15.3万円 1万円 | 15.3万円 15.3万円 | 1LDK 42.01m2 | 築1年 | 埼玉高速鉄道 川口元郷駅 徒歩1分 JR京浜東北線 川口駅 徒歩17分 埼玉高速鉄道 南鳩ケ谷駅 徒歩24分 埼玉県川口市元郷 | 詳細を見る | |







