賃貸マンション
S-RESIDENCE堺筋本町DEUXの賃貸物件情報(1K/14階)
| 家賃 | 管理費等 | 敷金 | 礼金 | 間取り | 専有面積 |
|---|---|---|---|---|---|
| 8.85万円 | 1万円 | なし | 8.85万円 | 1K | 22.32m2 |
入居決定でお祝い金最大100,000円
Point
地下鉄なんば駅14番出口出てすぐ「アパマンショップなんば店」
提供:アパマンショップ心斎橋店

詳細情報 S-RESIDENCE堺筋本町DEUX
物件紹介
S-RESIDENCE堺筋本町DEUXは地下鉄中央線堺筋本町駅から徒歩4分にあり、駅近で通勤通学に便利なマンションです。
このお部屋は2階以上に位置しているので、通行人や周囲の住人からの視線が気になりにくく、防犯面でも安心。建物のエントランスはオートロックがついており、インターホンにはTVモニタもついているため、相手の顔を確認してから来客対応することができます。
おしゃれなデザイナーズ物件!人気の角部屋で周囲の居住者の生活音も気になりにくく、また、フローリングのお部屋なのでお掃除もラクラク。室内にはウォークインクローゼットがありますので、たくさんの荷物も効率的に収納ができます。キッチンはシステムキッチン仕様になっていますので、お料理好きの方にもぴったり。バス・トイレは別なので、のんびりお風呂タイムも楽しめるでしょう。また、雨の日でも浴室乾燥機を使えば、お洗濯も問題ありません。
通信設備面では、インターネットが無料で使えるので、月々の出費を抑えられるのも魅力です。また、BSアンテナ・CSアンテナがありCATVにも対応しているので、おうち時間も充実するでしょう(別途工事、BS・CS・CATVの契約料等が必要な場合あり)。
建物にはエレベーターがついているので、重い荷物があっても安心。共用部には宅配ボックスが設定されているので、不在の時にも荷物を受け取ることができます。
コンビニまで徒歩10分の場所にあり、日用品や食料品のお買い物にも便利です。
このお部屋は2階以上に位置しているので、通行人や周囲の住人からの視線が気になりにくく、防犯面でも安心。建物のエントランスはオートロックがついており、インターホンにはTVモニタもついているため、相手の顔を確認してから来客対応することができます。
おしゃれなデザイナーズ物件!人気の角部屋で周囲の居住者の生活音も気になりにくく、また、フローリングのお部屋なのでお掃除もラクラク。室内にはウォークインクローゼットがありますので、たくさんの荷物も効率的に収納ができます。キッチンはシステムキッチン仕様になっていますので、お料理好きの方にもぴったり。バス・トイレは別なので、のんびりお風呂タイムも楽しめるでしょう。また、雨の日でも浴室乾燥機を使えば、お洗濯も問題ありません。
通信設備面では、インターネットが無料で使えるので、月々の出費を抑えられるのも魅力です。また、BSアンテナ・CSアンテナがありCATVにも対応しているので、おうち時間も充実するでしょう(別途工事、BS・CS・CATVの契約料等が必要な場合あり)。
建物にはエレベーターがついているので、重い荷物があっても安心。共用部には宅配ボックスが設定されているので、不在の時にも荷物を受け取ることができます。
コンビニまで徒歩10分の場所にあり、日用品や食料品のお買い物にも便利です。
お金・契約の情報
※「-」と表示されているものは、実際は料金が発生するものもございます。詳細はお問い合わせください。
| 家賃 | 8.85万円 | 管理費・共益費 | 1万円 |
|---|---|---|---|
| 敷金 | なし | 礼金 | 8.85万円 |
| 入居決定でお祝い金最大100,000円 | |||
| 保証金 | - | 償却・敷引 | - |
| 住宅保険料 | - | 更新料 | - |
| 保証会社利用 | 必須 | 保証会社名 | - |
| 保証会社費用 | - | 保証会社備考 | [初回保証料]総賃料30% [更新料]10,000円/年 [口座振替手数料]330円(税込) |
| 契約形態 | - | 契約期間 | 2年 |
| 入居・引渡期間 | 相談 | 現況 | - |
部屋の情報
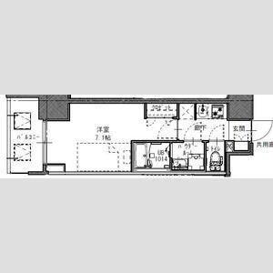
| 間取り | 1K | 専有面積 | 22.32m2 |
|---|---|---|---|
| 所在階 / 向き | 14階 / 西 | バルコニー面積 | - |
| 水道 / ガス | ガス【都市】 | ||
| 設備 | バス・トイレ別、オートロック、テレビドアホン、宅配ボックス、浴室乾燥機、光ファイバー対応、システムキッチン、エレベーター、温水洗浄便座、バルコニー、フローリング、コンロ:ガス、インターネット使用料無料、シャワー、給湯、冷房、洗濯機:室内、タイル張り、閑静な住宅街 | ||
| 当社物件ID | 134116878 | ||
建物の情報
| 建物名 | S-RESIDENCE堺筋本町DEUX | ||
|---|---|---|---|
| 所在地 | 大阪府大阪市中央区南久宝寺町1丁目 | ||
| 交通 | 大阪メトロ御堂筋線 心斎橋駅 徒歩9分 | ||
| 階数 | 15階建 | 総戸数 | 140戸 |
| 築年月 | 2023年05月 / 築3年 | エレベーター | あり |
| 駐車場 | 空有 3.63万円/月 | バイク置き場 | あり |
| 駐輪場 | あり | 管理人/管理会社 | - |
| 周辺環境 | その他 ファミリーマート博労町一丁目店 徒歩2分(119m) その他 ファミリーマート北久宝寺町一丁目店 徒歩2分(102m) その他 KOHYO南船場店 徒歩2分(105m) その他 セブン−イレブン大阪南久宝寺町1丁目店 徒歩2分(94m) その他 スギドラッグ北久宝寺店 徒歩2分(143m) その他 セブン−イレブン大阪南久宝寺町2丁目店 徒歩2分(160m) その他 大阪南船場一郵便局 徒歩4分(255m) その他 ライフ堺筋本町店 徒歩4分(267m) | ||
| 建物種別 | マンション | 建物構造 | RC(鉄筋コンクリート) |
この部屋の取扱い不動産会社
| 会社名 | アパマンショップなんば店 | ||
|---|---|---|---|
| 所在地 | 大阪府大阪市中央区難波1丁目 7-10難波泉屋ビル2F | 交通 | 大阪市御堂筋線なんばから徒歩1分 |
| 営業時間 | 10:00〜19:00(年中無休[年末年始等は除く]) | 定休日 | - |
| 免許番号 | 大阪府知事(6)47572 | 取引態様 | 仲介 |
| 不動産会社管理番号 | 97529830 | 当社管理番号 | 4 |
| 所属団体 | (一社)大阪府宅地建物取引業協会 | ||
| 公正取引協議会 | (公社) 近畿地区不動産公正取引協議会加盟 | ||
| 取扱い物件情報 | 物件詳細へ | ||
※各種情報と現状に差異がある場合は、現状優先となります。問い合わせをすることで、より詳しい条件、情報を確認する事ができます。
提供:アパマンショップなんば店
この物件が気になったら掲載期限まであと10日
S-RESIDENCE堺筋本町DEUXの空き部屋一覧
全部で21の空き部屋があります。
S-RESIDENCE堺筋本町DEUXに条件(家賃・エリア)が近い物件一覧
| 写真 | 家賃 管理費等 | 敷金 礼金 | 間取り 専有面積 | 築年数 | 最寄り駅 所在地 | キープ | 詳細 |
|---|---|---|---|---|---|---|---|
マンション VITA荒本(1LDK/5階) | |||||||
![]() | 10.85万円 8,000円 | なし なし | 1LDK 39.6m2 | 築1年 | 近鉄けいはんな線 荒本駅 徒歩3分 近鉄けいはんな線 長田駅(大阪) 徒歩10分 地下鉄中央線 長田駅(大阪) 徒歩10分 大阪府東大阪市荒本西 | 詳細を見る | |
アパート グレース 寿(2K/1階) | |||||||
| 6.2万円 4,100円 | なし 6.2万円 | 2K 40.25m2 | 築10年 | 大阪モノレール本線 南摂津駅 徒歩37分 京阪電気鉄道京阪線 寝屋川市駅 徒歩48分 大阪モノレール本線 摂津駅 徒歩49分 大阪府摂津市鳥飼中1丁目20-1 | 詳細を見る | ||
アパート TKアンバーコート浜寺Ⅲ(1LDK/2階) | |||||||
![]() | 7.2万円 5,000円 | なし 10万円 | 1LDK 40.03m2 | 築1年 | 南海電鉄南海本線 石津川駅 徒歩3分 南海電鉄南海本線 諏訪ノ森駅 徒歩12分 南海電鉄南海本線 湊駅 徒歩23分 大阪府堺市西区浜寺石津町西4丁 | 詳細を見る | |
マンション アリビオ江坂垂水町(1K/8階) | |||||||
| 7.4万円 1万円 | なし 7.4万円 | 1K 24.18m2 | 築12年 | 阪急電鉄千里線 豊津駅(大阪) 徒歩8分 北大阪急行南北線 江坂駅 徒歩12分 阪急電鉄千里線 関大前駅 徒歩17分 大阪府吹田市垂水町3丁目7-32 | 詳細を見る | ||
マンション レジデンス鶴見緑地(2DK/4階) | |||||||
![]() | 6.4万円 7,400円 | 5万円 なし | 2DK 51.5m2 | 築34年 | 大阪市長堀鶴見緑地 鶴見緑地駅 徒歩17分 大阪市長堀鶴見緑地 門真南駅 徒歩23分 大阪市今里筋線 清水駅(大阪メトロ) 徒歩25分 大阪府守口市 | 詳細を見る | |
マンション ライブガーデン江坂9(1DK/3階) | |||||||
| 8.4万円 1万円 | なし 16.8万円 | 1DK 28.8m2 | 築4年 | 北大阪急行南北線 江坂駅 徒歩14分 おおさか東線 南吹田駅 徒歩16分 阪急電鉄千里線 豊津駅(大阪) 徒歩18分 大阪府吹田市南金田2丁目8-28 | 詳細を見る | ||
マンション スリーフレンド河合(1LDK/4階) | |||||||
![]() | 5.6万円 3,000円 | なし なし | 1LDK 45m2 | 築30年 | 近鉄南大阪線 高見ノ里駅 徒歩15分 近鉄南大阪線 布忍駅 徒歩19分 近鉄南大阪線 河内松原駅 徒歩30分 大阪府松原市河合3丁目 | 詳細を見る | |




