賃貸マンション
レオパレスフェリーチェの賃貸物件情報(1K/4階)
| 家賃 | 管理費等 | 敷金 | 礼金 | 間取り | 専有面積 |
|---|---|---|---|---|---|
| 7.4万円 | 7,500円 | なし | 7.4万円 | 1K | 19.87m2 |
入居決定でお祝い金最大100,000円
Point
まずはお問い合わせ!
不動産会社は街のプロ、あなたに合った物件がきっと見つかります。
提供:ハウスコム東海株式会社 星ヶ丘店

詳細情報 レオパレスフェリーチェ
物件紹介
レオパレスフェリーチェは名古屋市東山線千種駅から徒歩6分にあり、駅近で通勤通学に便利なマンションです。
このお部屋は2階以上に位置しているので、通行人や周囲の住人からの視線が気になりにくく、防犯面でも安心。建物のエントランスはオートロックがついており、インターホンにはTVモニタもついているため、相手の顔を確認してから来客対応することができます。
バス・トイレ別の仕様で、のんびりお風呂タイムも楽しめます。
通信設備面では、インターネット接続が可能です(別途工事、契約料が必要な場合あり)。
コンビニまで徒歩7分の場所にあり、日用品や食料品のお買い物にも便利です。
このお部屋は2階以上に位置しているので、通行人や周囲の住人からの視線が気になりにくく、防犯面でも安心。建物のエントランスはオートロックがついており、インターホンにはTVモニタもついているため、相手の顔を確認してから来客対応することができます。
バス・トイレ別の仕様で、のんびりお風呂タイムも楽しめます。
通信設備面では、インターネット接続が可能です(別途工事、契約料が必要な場合あり)。
コンビニまで徒歩7分の場所にあり、日用品や食料品のお買い物にも便利です。
お金・契約の情報
※「-」と表示されているものは、実際は料金が発生するものもございます。詳細はお問い合わせください。
| 家賃 | 7.4万円 | 管理費・共益費 | 7,500円 |
|---|---|---|---|
| 敷金 | なし | 礼金 | 7.4万円 |
| 入居決定でお祝い金最大100,000円 | |||
| 保証金 | - | 償却・敷引 | - |
| 住宅保険料 | 1円 | 更新料 | - |
| その他費用 | 抗菌施工(任意):2.376万円 | ||
| 保証会社利用 | 必須 | 保証会社名 | - |
| 保証会社費用 | - | 保証会社備考 | 保証料:98390円(契約内容により100〜120%で変動有)※記載金額は120%の場合 |
| 契約形態 | - | 契約期間 | - |
| 入居・引渡期間 | 即時 | 現況 | - |
| 契約備考 | 月額(環境維持費 550円) 鍵交換費用:16500 室内清掃費用:41800 その他設備/条件:室内洗濯機置き場 | ||
部屋の情報
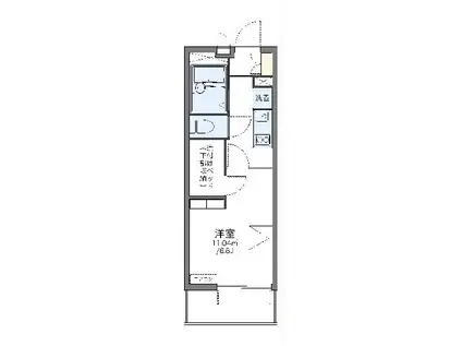
| 間取り | 1K | 専有面積 | 19.87m2 |
|---|---|---|---|
| 所在階 / 向き | 4階 / - | バルコニー面積 | - |
| 水道 / ガス | - | ||
| 設備 | バス・トイレ別、オートロック、テレビドアホン、光ファイバー対応、エアコン、温水洗浄便座、バルコニー、コンロ:電気 | ||
| 当社物件ID | 22712506 | ||
建物の情報
| 建物名 | レオパレスフェリーチェ | ||
|---|---|---|---|
| 所在地 | 愛知県名古屋市千種区内山3丁目 | ||
| 交通 | 名古屋市東山線 千種駅 徒歩6分 | ||
| 階数 | 4階建 | 総戸数 | 24戸 |
| 築年月 | 2010年01月 / 築16年 | エレベーター | - |
| 駐車場 | なし | バイク置き場 | - |
| 駐輪場 | - | 管理人/管理会社 | - |
| 周辺環境 | コンビニ 徒歩7分(530m) その他 ドラッグストア その他 公園 その他 銀行 その他 * | ||
| 建物種別 | マンション | 建物構造 | 鉄骨造 |
この部屋の取扱い不動産会社
| 会社名 | ハウスコム東海株式会社 星ヶ丘店 | ||
|---|---|---|---|
| 所在地 | 愛知県名古屋市千種区129-1エストレヤビル1階 | 交通 | - |
| 営業時間 | 10:00~18:00 | 定休日 | - |
| 免許番号 | 国土交通大臣(1)第10227号 | 取引態様 | 仲介 |
| 不動産会社管理番号 | HC5-1590079-404-0103 | 当社管理番号 | 468 |
| 所属団体 | 、 | ||
| 取扱い物件情報 | 物件詳細へ | ||
※各種情報と現状に差異がある場合は、現状優先となります。問い合わせをすることで、より詳しい条件、情報を確認する事ができます。
提供:ハウスコム東海株式会社 星ヶ丘店
この物件が気になったら掲載期限まであと4日
レオパレスフェリーチェに条件(家賃・エリア)が近い物件一覧
| 写真 | 家賃 管理費等 | 敷金 礼金 | 間取り 専有面積 | 築年数 | 最寄り駅 所在地 | キープ | 詳細 |
|---|---|---|---|---|---|---|---|
マンション プレサンス錦通 THE 葵(1K/11階) | |||||||
![]() | 7.002万円 9,980円 | なし なし | 1K 27.72m2 | 築7年 | 名古屋市東山線 新栄町駅(愛知) 徒歩1分 愛知県名古屋市東区葵1丁目 | 詳細を見る | |
マンション エステムコート名古屋千種グレイス(1K/5階) | |||||||
![]() | 5.5万円 7,090円 | なし なし | 1K 21.01m2 | 築7年 | 名古屋市桜通線 吹上駅(愛知) 徒歩12分 中央本線 千種駅 徒歩13分 愛知県名古屋市千種区千種1丁目 | 詳細を見る | |
マンション メイクスWアート今池Ⅲ(1K/14階) | |||||||
![]() | 6.18万円 8,000円 | なし なし | 1K 22.23m2 | 築2年 | 名古屋市東山線 今池駅(愛知) 徒歩5分 名古屋市東山線 池下駅 徒歩12分 名古屋市桜通線 吹上駅(愛知) 徒歩14分 愛知県名古屋市千種区今池5丁目 | 詳細を見る | |
マンション S-RESIDENCE今池ARCANA(1K/10階) | |||||||
![]() | 6.9万円 8,000円 | なし なし | 1K 22.28m2 | 築1年 | 名古屋市東山線 今池駅(愛知) 徒歩8分 名古屋市桜通線 今池駅(愛知) 徒歩8分 名古屋市東山線 池下駅 徒歩12分 愛知県名古屋市千種区今池5丁目 | 詳細を見る | |
マンション LAA KEA 徳川(1LDK/5階) | |||||||
![]() | 9.8万円 7,000円 | なし 9.8万円 | 1LDK 46.9m2 | 築1年 | 名鉄瀬戸線 森下駅(愛知) 徒歩12分 名古屋市桜通線 車道駅 徒歩19分 愛知県名古屋市東区徳川1丁目 | 詳細を見る | |
マンション エスリード新栄プライム(1K/3階) | |||||||
![]() | 5.88万円 8,000円 | なし なし | 1K 25.35m2 | 築5年 | 名古屋市東山線 新栄町駅(愛知) 徒歩7分 名古屋市東山線 千種駅 徒歩12分 名古屋市桜通線 高岳駅 徒歩17分 愛知県名古屋市中区新栄2丁目 | 詳細を見る | |
マンション プレサンス レイズ 千種今池(1LDK/5階) | |||||||
![]() | 10.054万円 9,460円 | なし 11万円 | 1LDK 35.05m2 | 築2年 | 名古屋市東山線 今池駅(愛知) 徒歩4分 名古屋市桜通線 今池駅(愛知) 徒歩4分 中央本線 千種駅 徒歩11分 愛知県名古屋市千種区今池5丁目 | 詳細を見る | |
マンション プレサンス広小路通葵(1K/11階) | |||||||
![]() | 6.33万円 8,780円 | なし 7.2万円 | 1K 23.4m2 | 築7年 | 地下鉄東山線 新栄町駅(愛知) 徒歩6分 JR中央本線 千種駅 徒歩7分 地下鉄桜通線 車道駅 徒歩7分 愛知県名古屋市中区葵 | 詳細を見る | |








