賃貸マンション
グランド・ガーラ高輪の賃貸物件情報(1K/11階)
| 家賃 | 管理費等 | 敷金 | 礼金 | 間取り | 専有面積 |
|---|---|---|---|---|---|
| 9.6万円 | 9,000円 | 9.6万円 | 19.2万円 | 1K | 21.31m2 |
入居決定でお祝い金最大100,000円
- 保証金
- -
- 償却・敷引
- -
- 築年数
- 築23年
- 所在階
- 11階
- 向き
- 西
Point
共用部にはゴミ出し24時間OK・宅配ボックスなどが備わっておりとても充実しています。収納はクロゼット・シューズボックスなど豊富なので、広々と空間を利用することも可能です。陽当たりの良い物件です。
提供:(株)FJネクスト(SUUMO経由)

詳細情報 グランド・ガーラ高輪
物件紹介
グランド・ガーラ高輪は都営浅草線泉岳寺駅から徒歩1分にあり、駅近で通勤通学に便利なマンションです。
このお部屋は2階以上に位置しているので、通行人や周囲の住人からの視線が気になりにくく、防犯面でも安心。建物のエントランスはオートロックがついており、インターホンにはTVモニタもついているため、相手の顔を確認してから来客対応することができます。
フローリングのお部屋なのでお掃除もラクラク。キッチンはシステムキッチン仕様になっていますので、お料理好きの方にもぴったり。バス・トイレは別なので、のんびりお風呂タイムも楽しめるでしょう。また、雨の日でも浴室乾燥機を使えば、お洗濯も問題ありません。
通信設備面では、インターネット接続が可能です(別途工事、契約料が必要な場合あり)。
建物にはエレベーターがついているので、重い荷物があっても安心。共用部には宅配ボックスが設定されているので、不在の時にも荷物を受け取ることができます。
このお部屋は2階以上に位置しているので、通行人や周囲の住人からの視線が気になりにくく、防犯面でも安心。建物のエントランスはオートロックがついており、インターホンにはTVモニタもついているため、相手の顔を確認してから来客対応することができます。
フローリングのお部屋なのでお掃除もラクラク。キッチンはシステムキッチン仕様になっていますので、お料理好きの方にもぴったり。バス・トイレは別なので、のんびりお風呂タイムも楽しめるでしょう。また、雨の日でも浴室乾燥機を使えば、お洗濯も問題ありません。
通信設備面では、インターネット接続が可能です(別途工事、契約料が必要な場合あり)。
建物にはエレベーターがついているので、重い荷物があっても安心。共用部には宅配ボックスが設定されているので、不在の時にも荷物を受け取ることができます。
お金・契約の情報
※「-」と表示されているものは、実際は料金が発生するものもございます。詳細はお問い合わせください。
| 家賃 | 9.6万円 | 管理費・共益費 | 9,000円 |
|---|---|---|---|
| 敷金 | 9.6万円 | 礼金 | 19.2万円 |
| 入居決定でお祝い金最大100,000円 | |||
| 保証金 | - | 償却・敷引 | - |
| 住宅保険料 | - | 更新料 | - |
| 保証会社利用 | 必須 | 保証会社名 | - |
| 保証会社費用 | - | 保証会社備考 | 保証会社利用必 保証料:賃料等の0.5ヶ月分(最低保証料2万円)/月額保証料 賃料等の1.2% |
| 契約形態 | - | 契約期間 | - |
| 入居・引渡期間 | - | 現況 | - |
| 契約備考 | 通勤管理 合計6.23万円(内訳:(退去時)エアコンクリーニング費用/1台につき1.32万円火災保険(地震特約付き)2.6万円鍵交換代2.31万円) 更新料 新賃料1.00ヶ月分 室内清掃費用 38500円 1K 普通借家2年 損保【2万円2年】 バストイレ別、バルコニー、エアコン、ガスコンロ対応、クロゼット、フローリング、TVインターホン、浴室乾燥機、オートロック、室内洗濯置、陽当り良好、シューズボックス、システムキッチン、温水洗浄便座、脱衣所、エレベーター、洗面所独立、洗面化粧台、2口コンロ、駐輪場、宅配ボックス、光ファイバー、外壁タイル張り、防犯カメラ、グリル付、保証人不要、24時間緊急通報システム、ディンプルキー、ネット専用回線、駅まで平坦、24時間換気システム、フロントサービス、エレベーター2基、駅前、24時間ゴミ出し可、敷地内ごみ置き場、当社管理物件、耐震ラッチ吊戸棚、都市ガス、年内入居可、礼金2ヶ月、IT重説対応物件、初期費用カード決済可、家賃カード決済可 入居日:'26年4月下旬 | ||
部屋の情報
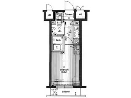
| 間取り | 1K | 専有面積 | 21.31m2 |
|---|---|---|---|
| 所在階 / 向き | 11階 / 西 | バルコニー面積 | 2m2 |
| 水道 / ガス | - | ||
| 設備 | バス・トイレ別、2階以上、オートロック、テレビドアホン、宅配ボックス、浴室乾燥機、インターネット対応、システムキッチン、エアコン、エレベーター、温水洗浄便座、バルコニー、フローリング、洗髪洗面化粧台、2口コンロ、コンロ:ガス、洗濯機:室内 | ||
| 当社物件ID | 3235061 | ||
建物の情報
| 建物名 | グランド・ガーラ高輪 | ||
|---|---|---|---|
| 所在地 | 東京都港区高輪 | ||
| 交通 | 都営浅草線 泉岳寺駅 徒歩1分 JR山手線 高輪ゲートウェイ駅 徒歩6分 JR横須賀線 品川駅 徒歩14分 | ||
| 階数 | 地下1地上14階建 | 総戸数 | 222戸 |
| 築年月 | 2003年05月 / 築23年 | エレベーター | あり |
| 駐車場 | なし | バイク置き場 | - |
| 駐輪場 | あり | 管理人/管理会社 | - |
| 周辺環境 | その他 なか卯泉岳寺前店(その他)まで172m その他 ほっともっと泉岳寺駅前店(飲食店)まで190m その他 コミュニティストア(コンビニ)まで180m その他 大丸ピーコック(その他)まで580m その他 デイリーヤマザキ(コンビニ)まで135m | ||
| 建物種別 | マンション | 建物構造 | SRC(鉄骨鉄筋コンクリート) |
この部屋の取扱い不動産会社
| 会社名 | (株)FJネクスト(SUUMO経由) | ||
|---|---|---|---|
| 所在地 | 東京都新宿区西新宿6-5-1 新宿アイランドタワー11階 | 交通 | - |
| 営業時間 | 10:00~19:00 | 定休日 | 年中無休 |
| 免許番号 | 国土交通大臣9976 | 取引態様 | 代理 |
| 不動産会社管理番号 | 100492557177 | 当社管理番号 | 89 |
| 所属団体 | (公社)全日本不動産協会東京都本部会員 | ||
| 公正取引協議会 | (公社)首都圏不動産公正取引協議会加盟 | ||
| 取扱い物件情報 | 物件詳細へ | ||
※各種情報と現状に差異がある場合は、現状優先となります。問い合わせをすることで、より詳しい条件、情報を確認する事ができます。
提供:(株)FJネクスト(SUUMO経由)
この物件が気になったら掲載期限まであと11日
グランド・ガーラ高輪に条件(家賃・エリア)が近い物件一覧
| 写真 | 家賃 管理費等 | 敷金 礼金 | 間取り 専有面積 | 築年数 | 最寄り駅 所在地 | キープ | 詳細 |
|---|---|---|---|---|---|---|---|
マンション クレヴィスタ亀戸IV(1K/10階) | |||||||
![]() | 13.5万円 1.1万円 | なし 13.5万円 | 1K 25.56m2 | 築7年 | 総武・中央緩行線 亀戸駅 徒歩4分 東武鉄道亀戸線 亀戸駅 徒歩4分 総武本線 錦糸町駅 徒歩12分 東京都江東区亀戸2丁目 | 詳細を見る | |
マンション ドルチェ月島・弐番館(1K/10階) | |||||||
![]() | 12.8万円 1.1万円 | なし 12.8万円 | 1K 22.7m2 | 築23年 | 都営大江戸線 勝どき駅 徒歩4分 東京メトロ有楽町線 月島駅 徒歩6分 東京メトロ日比谷線 築地駅 徒歩20分 東京都中央区月島 | 詳細を見る | |
マンション プライムステイ築地(ワンルーム/9階) | |||||||
![]() | 8.2万円 7,000円 | 8.2万円 8.2万円 | ワンルーム 16.92m2 | 築40年 | 東京地下鉄日比谷線 築地駅 徒歩3分 東京地下鉄有楽町線 新富町駅(東京) 徒歩6分 東京都大江戸線 築地市場駅 徒歩9分 東京都中央区築地3丁目 | 詳細を見る | |
マンション メゾン大沢(1DK/5階) | |||||||
![]() | 8.5万円 なし | 8.5万円 8.5万円 | 1DK 28m2 | 築47年 | 東京地下鉄東西線 門前仲町駅 徒歩11分 東京地下鉄東西線 木場駅 徒歩11分 東京地下鉄半蔵門線 清澄白河駅 徒歩14分 東京都江東区冬木 | 詳細を見る | |
マンション GARDEN XAVIS木場(1LDK/4階) | |||||||
![]() | 15.1万円 1.2万円 | 15.1万円 なし | 1LDK 27.28m2 | 築1年 | 東京メトロ東西線 木場駅 徒歩4分 東京メトロ東西線 東陽町駅 徒歩7分 都営大江戸線 門前仲町駅 徒歩19分 東京都江東区東陽 | 詳細を見る | |
マンション アジールコート汐浜キャナル(1K/2階) | |||||||
![]() | 11.2万円 1万円 | 11.2万円 11.2万円 | 1K 25.2m2 | 築3年 | JR京葉線 越中島駅 徒歩10分 東京メトロ東西線 木場駅 徒歩14分 東京メトロ有楽町線 豊洲駅 徒歩16分 東京都江東区塩浜 | 詳細を見る | |
マンション ラング・タワー京橋(1K/4階) | |||||||
![]() | 13.3万円 1.1万円 | なし 13.3万円 | 1K 20.8m2 | 築24年 | 東京メトロ銀座線 京橋駅(東京) 徒歩1分 都営浅草線 宝町駅 徒歩4分 東京メトロ有楽町線 銀座一丁目駅 徒歩8分 東京都中央区京橋 | 詳細を見る | |
マンション ユリカロゼAZ亀戸II(1K/7階) | |||||||
![]() | 11.2万円 1.5万円 | なし 11.2万円 | 1K 26.32m2 | 築1年 | 東武鉄道亀戸線 亀戸水神駅 徒歩3分 総武・中央緩行線 亀戸駅 徒歩10分 東武鉄道亀戸線 東あずま駅 徒歩11分 東京都江東区亀戸4丁目 | 詳細を見る | |








