賃貸マンション
ブライズ三軒茶屋の賃貸物件情報(1K/2階)
| 家賃 | 管理費等 | 敷金 | 礼金 | 間取り | 専有面積 |
|---|---|---|---|---|---|
| 11.5万円 | 1万円 | なし | なし | 1K | 22.08m2 |
入居決定でお祝い金最大100,000円
- 保証金
- -
- 償却・敷引
- -
- 築年数
- 築18年
- 所在階
- 2階
- 向き
- 南
Point
◇商業施設が充実している三軒茶屋駅へ徒歩5分のアクセス性の高さ◇南向き住戸、日当たり良好◇収納豊富◇外出が多い生活で重宝する浴室乾燥機、宅配BOX付
提供:(株)ブライト・エージェント(SUUMO経由)

詳細情報 ブライズ三軒茶屋
物件紹介
ブライズ三軒茶屋は東急世田谷線西太子堂駅から徒歩3分にあり、駅近で通勤通学に便利なマンションです。
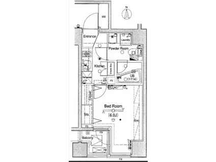
このお部屋は2階以上に位置しているので、通行人や周囲の住人からの視線が気になりにくく、防犯面でも安心。建物のエントランスはオートロックがついており、インターホンにはTVモニタもついているため、相手の顔を確認してから来客対応することができます。
人気の南向き・フローリングのお部屋。角部屋でもあるため、周囲の居住者の生活音も気になりにくい場所です。キッチンはシステムキッチン仕様になっていますので、お料理好きの方にもぴったり。バス・トイレは別なので、のんびりお風呂タイムも楽しめるでしょう。また、雨の日でも浴室乾燥機を使えば、お洗濯も問題ありません。
通信設備面では、インターネット接続が可能です。また、BSアンテナ・CSアンテナがありCATVにも対応しているので、おうち時間も充実するでしょう(別途工事、契約料が必要な場合あり)。
建物にはエレベーターがついているので、重い荷物があっても安心。共用部には宅配ボックスが設定されているので、不在の時にも荷物を受け取ることができます。
このお部屋は2階以上に位置しているので、通行人や周囲の住人からの視線が気になりにくく、防犯面でも安心。建物のエントランスはオートロックがついており、インターホンにはTVモニタもついているため、相手の顔を確認してから来客対応することができます。
人気の南向き・フローリングのお部屋。角部屋でもあるため、周囲の居住者の生活音も気になりにくい場所です。キッチンはシステムキッチン仕様になっていますので、お料理好きの方にもぴったり。バス・トイレは別なので、のんびりお風呂タイムも楽しめるでしょう。また、雨の日でも浴室乾燥機を使えば、お洗濯も問題ありません。
通信設備面では、インターネット接続が可能です。また、BSアンテナ・CSアンテナがありCATVにも対応しているので、おうち時間も充実するでしょう(別途工事、契約料が必要な場合あり)。
建物にはエレベーターがついているので、重い荷物があっても安心。共用部には宅配ボックスが設定されているので、不在の時にも荷物を受け取ることができます。
お金・契約の情報
※「-」と表示されているものは、実際は料金が発生するものもございます。詳細はお問い合わせください。
| 家賃 | 11.5万円 | 管理費・共益費 | 1万円 |
|---|---|---|---|
| 敷金 | なし | 礼金 | なし |
| 入居決定でお祝い金最大100,000円 | |||
| 保証金 | - | 償却・敷引 | - |
| 住宅保険料 | - | 更新料 | - |
| 保証会社利用 | 必須 | 保証会社名 | - |
| 保証会社費用 | - | 保証会社備考 | 保証会社利用必 いえらぶパートナーズ【初回保証料:総賃料の50%~】、年間保証料(12,000円)、引落手数料(550円/月) |
| 契約形態 | - | 契約期間 | - |
| 入居・引渡期間 | 相談 | 現況 | - |
| 契約備考 | 合計1.65万円(内訳:24時間サポート:16,500円(2年)) 退去時ハウスクリーニング:44,000円(税込)退去時エアコンクリーニング:13,200円/台(税込) 1K 法人希望/単身者限定/子供不可/事務所利用不可/ルームシェア不可 普通借家2年 損保【2.2万円2年】 バストイレ別、バルコニー、エアコン、ガスコンロ対応、クロゼット、フローリング、TVインターホン、浴室乾燥機、オートロック、室内洗濯置、陽当り良好、シューズボックス、システムキッチン、南向き、角住戸、温水洗浄便座、エレベーター、洗面所独立、2口コンロ、駐輪場、宅配ボックス、CATV、光ファイバー、礼金不要、BS・CS、敷金不要、防犯カメラ、保証人不要、2沿線利用可、24時間換気システム、2駅利用可、駅徒歩5分以内、駅徒歩10分以内、敷地内ごみ置き場、都市ガス、高速ネット対応、敷金・礼金不要、IT重説対応物件 | ||
部屋の情報
| 間取り | 1K | 専有面積 | 22.08m2 |
|---|---|---|---|
| 所在階 / 向き | 2階 / 南 | バルコニー面積 | - |
| 水道 / ガス | - | ||
| 設備 | バス・トイレ別、2階以上、オートロック、テレビドアホン、宅配ボックス、浴室乾燥機、インターネット対応、システムキッチン、エアコン、エレベーター、温水洗浄便座、南向き、角部屋、バルコニー、フローリング、洗髪洗面化粧台、2口コンロ、コンロ:ガス、CATV、CSアンテナ、BSアンテナ、洗濯機:室内 | ||
| 当社物件ID | 47009122 | ||
建物の情報
| 建物名 | ブライズ三軒茶屋 | ||
|---|---|---|---|
| 所在地 | 東京都世田谷区太子堂 | ||
| 交通 | 東急世田谷線 西太子堂駅 徒歩3分 東急田園都市線 三軒茶屋駅 徒歩4分 東急世田谷線 若林駅(東京) 徒歩11分 | ||
| 階数 | 12階建 | 総戸数 | - |
| 築年月 | 2009年02月 / 築18年 | エレベーター | あり |
| 駐車場 | なし | バイク置き場 | - |
| 駐輪場 | あり | 管理人/管理会社 | - |
| 周辺環境 | その他 まいばすけっと三軒茶屋駅西店(スーパー)まで98m その他 キッチンオリジン三軒茶屋二丁目店(飲食店)まで24m その他 スーパーオオゼキ三軒茶屋店(スーパー)まで307m その他 ドトールコーヒーショップ三軒茶屋キャロットタワー店(飲食店)まで278m その他 ファミリーマート三軒茶屋二丁目(コンビニ)まで91m その他 ローソン三軒茶屋店(コンビニ)まで20m | ||
| 建物種別 | マンション | 建物構造 | RC(鉄筋コンクリート) |
この部屋の取扱い不動産会社
| 会社名 | (株)ブライト・エージェント(SUUMO経由) | ||
|---|---|---|---|
| 所在地 | 東京都杉並区松ノ木3-25-3 坂本ハイツ103 | 交通 | - |
| 営業時間 | 9:30~18:30 | 定休日 | 水曜日 |
| 免許番号 | 東京都知事111314 | 取引態様 | 仲介 |
| 不動産会社管理番号 | 100485834160 | 当社管理番号 | 89 |
| 所属団体 | (公社)東京都宅地建物取引業協会会員 | ||
| 公正取引協議会 | (公社)首都圏不動産公正取引協議会加盟 | ||
| 取扱い物件情報 | 物件詳細へ | ||
※各種情報と現状に差異がある場合は、現状優先となります。問い合わせをすることで、より詳しい条件、情報を確認する事ができます。
提供:(株)ブライト・エージェント(SUUMO経由)
この物件が気になったら掲載期限まであと11日
ブライズ三軒茶屋に条件(家賃・エリア)が近い物件一覧
| 写真 | 家賃 管理費等 | 敷金 礼金 | 間取り 専有面積 | 築年数 | 最寄り駅 所在地 | キープ | 詳細 |
|---|---|---|---|---|---|---|---|
アパート SEED SAVE PETIRASU Ⅲ(1LDK/3階) | |||||||
![]() | 10.7万円 1万円 | 21.4万円 10.7万円 | 1LDK 30.55m2 | 築1年 | 東京モノレール羽田 昭和島駅 徒歩12分 京浜急行電鉄本線 大森町駅 徒歩18分 東京都大田区大森東5丁目 | 詳細を見る | |
マンション ライオンズマンション下丸子(1LDK/1階) | |||||||
![]() | 11.3万円 7,000円 | 11.3万円 11.3万円 | 1LDK 39.6m2 | 築56年 | 東急多摩川線 下丸子駅 徒歩1分 東急多摩川線 鵜の木駅 徒歩9分 東京都大田区下丸子3丁目 | 詳細を見る | |
アパート タカマルハイム(1LDK/1階) | |||||||
![]() | 11.5万円 3,000円 | 11.5万円 11.5万円 | 1LDK 34m2 | 築11年 | 東急多摩川線 武蔵新田駅 徒歩8分 東急多摩川線 下丸子駅 徒歩9分 東京都大田区下丸子2丁目 | 詳細を見る | |
タウンハウス 大田菜園長屋(2LDK) | |||||||
![]() | 15.4万円 5,000円 | 15.4万円 23.1万円 | 2LDK 52.17m2 | 築10年 | 京浜急行電鉄本線 雑色駅 徒歩8分 京浜急行電鉄本線 六郷土手駅 徒歩13分 東京都大田区東六郷3丁目 | 詳細を見る | |
マンション NSマンション(1K/3階) | |||||||
![]() | 8万円 2,000円 | 8万円 8万円 | 1K 18m2 | 築39年 | 東急池上線 蓮沼駅 徒歩3分 JR京浜東北線 蒲田駅 徒歩13分 東急池上線 池上駅 徒歩14分 東京都大田区西蒲田 | 詳細を見る | |
マンション レジデンス望(1K/3階) | |||||||
![]() | 7.1万円 2,000円 | 7.1万円 7.1万円 | 1K 19.83m2 | 築27年 | 京浜急行電鉄本線 大森町駅 徒歩8分 京浜急行電鉄本線 平和島駅 徒歩11分 東京都大田区大森東2丁目 | 詳細を見る | |
マンション SEED JUST B-BASE Ⅱ(1LDK/4階) | |||||||
![]() | 9.4万円 1.5万円 | 9.4万円 9.4万円 | 1LDK 24.55m2 | 築1年 | 東京モノレール羽田 昭和島駅 徒歩11分 京浜急行電鉄本線 梅屋敷駅(東京) 徒歩19分 東京都大田区大森南4丁目 | 詳細を見る | |








