賃貸マンション
スパシエオリエンス板橋本町の賃貸物件情報(1K/2階)
| 家賃 | 管理費等 | 敷金 | 礼金 | 間取り | 専有面積 |
|---|---|---|---|---|---|
| 7.5万円 | 7,000円 | 7.5万円 | 7.5万円 | 1K | 21.12m2 |
入居決定でお祝い金最大100,000円
- 保証金
- -
- 償却・敷引
- -
- 築年数
- 築18年
- 所在階
- 2階
- 向き
- 東
Point
まずはお問い合わせ!
不動産会社は街のプロ、あなたに合った物件がきっと見つかります。
提供:(株)アドバンスリビング(SUUMO経由)

詳細情報 スパシエオリエンス板橋本町
物件紹介
スパシエオリエンス板橋本町は都営三田線板橋本町駅から徒歩5分にあり、駅近で通勤通学に便利なマンションです。
このお部屋は2階以上に位置しているので、通行人や周囲の住人からの視線が気になりにくく、防犯面でも安心。建物のエントランスはオートロックがついており、インターホンにはTVモニタもついているため、相手の顔を確認してから来客対応することができます。
フローリングのお部屋なのでお掃除もラクラク。キッチンはシステムキッチン仕様になっていますので、お料理好きの方にもぴったり。バス・トイレは別なので、のんびりお風呂タイムも楽しめるでしょう。また、雨の日でも浴室乾燥機を使えば、お洗濯も問題ありません。
通信設備面では、インターネット接続が可能です。また、BSアンテナ・CSアンテナがありCATVにも対応しているので、おうち時間も充実するでしょう(別途工事、契約料が必要な場合あり)。
建物にはエレベーターがついているので、重い荷物があっても安心。共用部には宅配ボックスが設定されているので、不在の時にも荷物を受け取ることができます。また、ペット飼育の相談ができますので、あなたの大切な家族の一員も快適に暮らせるか、ぜひ確認してみてください。
このお部屋は2階以上に位置しているので、通行人や周囲の住人からの視線が気になりにくく、防犯面でも安心。建物のエントランスはオートロックがついており、インターホンにはTVモニタもついているため、相手の顔を確認してから来客対応することができます。
フローリングのお部屋なのでお掃除もラクラク。キッチンはシステムキッチン仕様になっていますので、お料理好きの方にもぴったり。バス・トイレは別なので、のんびりお風呂タイムも楽しめるでしょう。また、雨の日でも浴室乾燥機を使えば、お洗濯も問題ありません。
通信設備面では、インターネット接続が可能です。また、BSアンテナ・CSアンテナがありCATVにも対応しているので、おうち時間も充実するでしょう(別途工事、契約料が必要な場合あり)。
建物にはエレベーターがついているので、重い荷物があっても安心。共用部には宅配ボックスが設定されているので、不在の時にも荷物を受け取ることができます。また、ペット飼育の相談ができますので、あなたの大切な家族の一員も快適に暮らせるか、ぜひ確認してみてください。
お金・契約の情報
※「-」と表示されているものは、実際は料金が発生するものもございます。詳細はお問い合わせください。
| 家賃 | 7.5万円 | 管理費・共益費 | 7,000円 |
|---|---|---|---|
| 敷金 | 7.5万円 | 礼金 | 7.5万円 |
| 入居決定でお祝い金最大100,000円 | |||
| 保証金 | - | 償却・敷引 | - |
| 住宅保険料 | - | 更新料 | - |
| 保証会社利用 | 必須 | 保証会社名 | - |
| 保証会社費用 | - | 保証会社備考 | 保証会社利用必 個人:賃料等50%/1千円/月、外国籍:賃料等70%/1千円/月、法人:賃料等50% /1千円/月 |
| 契約形態 | - | 契約期間 | - |
| 入居・引渡期間 | - | 現況 | - |
| 入居可能条件 | 事務所可、ペット相談 | ||
| 契約備考 | 弊社では東京のみならず、ネットに掲載のある物件はすべてご紹介が可能です! 合計3.52万円(内訳:初回登録手数料0.55万円鍵交換代2.97万円) 更新料 新賃料1.00ヶ月分 家財保険料相当額 月額600円 緊急サポート24 月額1650円 1K ペット相談 普通借家2年 バストイレ別、バルコニー、エアコン、ガスコンロ対応、クロゼット、浴室乾燥機、オートロック、室内洗濯置、シューズボックス、温水洗浄便座、エレベーター、2口コンロ、駐輪場、宅配ボックス、CATV、ペット相談、照明付、分譲賃貸、敷金1ヶ月、バイク置場、2沿線利用可、CS、保証金不要、事務所相談、耐火構造、2駅利用可、3駅以上利用可、駅徒歩5分以内、駅徒歩10分以内、都市ガス、BS、礼金1ヶ月、保証会社利用可 入居日:'26年1月中旬 | ||
部屋の情報
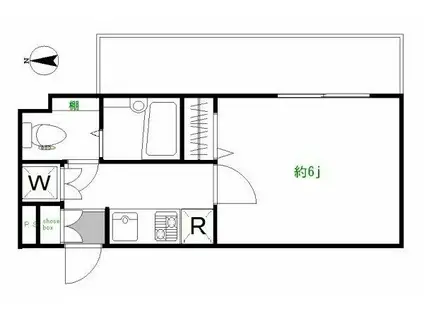
| 間取り | 1K | 専有面積 | 21.12m2 |
|---|---|---|---|
| 所在階 / 向き | 2階 / 東 | バルコニー面積 | 6m2 |
| 水道 / ガス | - | ||
| 設備 | バス・トイレ別、2階以上、オートロック、宅配ボックス、浴室乾燥機、エアコン、エレベーター、温水洗浄便座、バルコニー、2口コンロ、コンロ:ガス、CATV、CSアンテナ、BSアンテナ、洗濯機:室内 | ||
| 当社物件ID | 11714884 | ||
建物の情報
| 建物名 | スパシエオリエンス板橋本町 | ||
|---|---|---|---|
| 所在地 | 東京都板橋区本町 | ||
| 交通 | 都営三田線 板橋本町駅 徒歩5分 JR埼京線 十条駅(東京) 徒歩15分 都営三田線 板橋区役所前駅 徒歩18分 | ||
| 階数 | 9階建 | 総戸数 | - |
| 築年月 | 2008年06月 / 築18年 | エレベーター | あり |
| 駐車場 | なし | バイク置き場 | あり |
| 駐輪場 | あり | 管理人/管理会社 | - |
| 周辺環境 | その他 栄町保育園(幼稚園・保育園)まで1725m その他 まいばすけっと 板橋本町駅南店(スーパー)まで503m その他 まいばすけっと 板橋本町商店街店(スーパー)まで535m その他 オーケー 十条店(スーパー)まで1000m その他 セブンイレブン 板橋本町駅東店(コンビニ)まで243m その他 セブンイレブン 板橋清水町東店(コンビニ)まで540m | ||
| 建物種別 | マンション | 建物構造 | RC(鉄筋コンクリート) |
この部屋の取扱い不動産会社
| 会社名 | (株)DoDoNPA新橋店(SUUMO経由) | ||
|---|---|---|---|
| 所在地 | 東京都港区新橋2-18-3 故萩堂ビル5階 | 交通 | - |
| 営業時間 | 10時~19時 | 定休日 | 水曜日 |
| 免許番号 | 東京都知事110262 | 取引態様 | 仲介 |
| 不動産会社管理番号 | 100481343943 | 当社管理番号 | 89 |
| 所属団体 | (公社)全日本不動産協会東京都本部会員 | ||
| 公正取引協議会 | (公社)首都圏不動産公正取引協議会加盟 | ||
| 取扱い物件情報 | 物件詳細へ | ||
※各種情報と現状に差異がある場合は、現状優先となります。問い合わせをすることで、より詳しい条件、情報を確認する事ができます。
提供:(株)DoDoNPA新橋店(SUUMO経由)
この物件が気になったら掲載期限まであと10日
スパシエオリエンス板橋本町に条件(家賃・エリア)が近い物件一覧
| 写真 | 家賃 管理費等 | 敷金 礼金 | 間取り 専有面積 | 築年数 | 最寄り駅 所在地 | キープ | 詳細 |
|---|---|---|---|---|---|---|---|
マンション 井口ビル(ワンルーム/3階) | |||||||
![]() | 5.7万円 3,000円 | 5.7万円 5.7万円 | ワンルーム 19.4m2 | 築28年 | 西武池袋線 保谷駅 徒歩1分 西武池袋線 大泉学園駅 徒歩30分 西武新宿線 東伏見駅 徒歩30分 東京都練馬区南大泉 | 詳細を見る | |
マンション フラワー11(1K/4階) | |||||||
![]() | 6.8万円 5,000円 | 6.8万円 なし | 1K 24.47m2 | 築38年 | 都営三田線 板橋区役所前駅 徒歩3分 東武東上線 下板橋駅 徒歩11分 都営三田線 新板橋駅 徒歩11分 東京都板橋区板橋 | 詳細を見る | |
アパート マーレ練馬高野台(1K/3階) | |||||||
![]() | 7.7万円 5,000円 | なし なし | 1K 20.06m2 | 新築 | 西武池袋線 練馬高野台駅 徒歩6分 西武池袋線 石神井公園駅 徒歩15分 西武池袋線 富士見台駅 徒歩22分 東京都練馬区高野台 | 詳細を見る | |
アパート ASABA(ワンルーム/2階) | |||||||
![]() | 9.2万円 5,500円 | なし 9.2万円 | ワンルーム 24.13m2 | 築10年 | 都営三田線 蓮根駅 徒歩13分 JR埼京線 浮間舟渡駅 徒歩14分 都営三田線 西台駅 徒歩17分 東京都板橋区坂下 | 詳細を見る | |
アパート RS HOME練馬(1K/1階) | |||||||
![]() | 7.5万円 5,000円 | 7.5万円 7.5万円 | 1K 21.17m2 | 築9年 | 都営大江戸線 豊島園駅 徒歩5分 東京都練馬区練馬 | 詳細を見る | |
アパート フェッロヴィア桜台(1K/3階) | |||||||
![]() | 7.8万円 5,000円 | なし 7.8万円 | 1K 15.01m2 | 新築 | 西武有楽町線 新桜台駅 徒歩3分 西武池袋・豊島線 桜台駅(東京) 徒歩6分 東京都練馬区桜台1丁目 | 詳細を見る | |
アパート レオネクストソネット(1K/2階) | |||||||
![]() | 8.4万円 5,500円 | なし 8.4万円 | 1K 21.73m2 | 築12年 | 東武鉄道東上線 ときわ台駅(東京) 徒歩17分 東京都板橋区前野町6丁目 | 詳細を見る | |
マンション SAKURA AXIS 中板橋(1K/3階) | |||||||
![]() | 11.65万円 1万円 | 11.65万円 11.65万円 | 1K 25.65m2 | 築1年 | 東武東上線 中板橋駅 徒歩5分 東武東上線 ときわ台駅(東京) 徒歩5分 都営三田線 板橋本町駅 徒歩16分 東京都板橋区常盤台 | 詳細を見る | |







