賃貸マンション
日興パレス伊勢佐木町北の賃貸物件情報(ワンルーム/2階)
| 家賃 | 管理費等 | 敷金 | 礼金 | 間取り | 専有面積 |
|---|---|---|---|---|---|
| 4.7万円 | 5,000円 | なし | なし | ワンルーム | 16.94m2 |
入居決定でお祝い金最大100,000円
- 保証金
- -
- 償却・敷引
- -
- 築年数
- 築38年
- 所在階
- 2階
- 向き
- -
Point
住人以外が住居エリアに侵入しにくく安全性が上がるオートロック機能を備えています。
提供:(株)ネクストライフ八王子店(SUUMO経由)

詳細情報 日興パレス伊勢佐木町北
物件紹介
日興パレス伊勢佐木町北は京急本線黄金町駅から徒歩3分にあり、駅近で通勤通学に便利なマンションです。
このお部屋は2階以上に位置しているので、通行人や周囲の住人からの視線が気になりにくく、防犯面でも安心。建物のエントランスはオートロックがついており、インターホンにはTVモニタもついているため、相手の顔を確認してから来客対応することができます。
人気の南向きのお部屋。また、フローリングなのでお掃除もラクラク。
通信設備面では、インターネット接続が可能です。また、CATVにも対応しているので、おうち時間も充実するでしょう(別途工事、契約料が必要な場合あり)。
建物にはエレベーターがついているので、重い荷物があっても安心。
コンビニまで徒歩5分の場所にあり、日用品や食料品のお買い物にも便利です。
このお部屋は2階以上に位置しているので、通行人や周囲の住人からの視線が気になりにくく、防犯面でも安心。建物のエントランスはオートロックがついており、インターホンにはTVモニタもついているため、相手の顔を確認してから来客対応することができます。
人気の南向きのお部屋。また、フローリングなのでお掃除もラクラク。
通信設備面では、インターネット接続が可能です。また、CATVにも対応しているので、おうち時間も充実するでしょう(別途工事、契約料が必要な場合あり)。
建物にはエレベーターがついているので、重い荷物があっても安心。
コンビニまで徒歩5分の場所にあり、日用品や食料品のお買い物にも便利です。
お金・契約の情報
※「-」と表示されているものは、実際は料金が発生するものもございます。詳細はお問い合わせください。
| 家賃 | 4.7万円 | 管理費・共益費 | 5,000円 |
|---|---|---|---|
| 敷金 | なし | 礼金 | なし |
| 入居決定でお祝い金最大100,000円 | |||
| 保証金 | - | 償却・敷引 | - |
| 住宅保険料 | 1円 | 更新料 | - |
| その他費用 | くらしーど:1.65万円 | ||
| 保証会社利用 | 必須 | 保証会社名 | - |
| 保証会社費用 | - | 保証会社備考 | 初回保証料:総賃料等の50% |
| 契約形態 | - | 契約期間 | 2年 |
| 入居・引渡期間 | 即時 | 現況 | - |
| 入居可能条件 | 単身者限定、ペット不可 | ||
| 契約備考 | 保険18000円/2年 室内清掃費用:33000 その他設備/条件:ルームシェア不可、分譲賃貸 | ||
部屋の情報
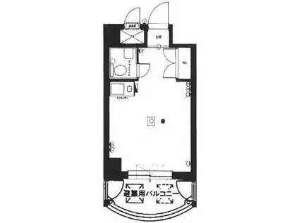
| 間取り | ワンルーム | 専有面積 | 16.94m2 |
|---|---|---|---|
| 間取り詳細 | 洋室(6帖) | ||
| 所在階 / 向き | 2階 / - | バルコニー面積 | - |
| 水道 / ガス | 水道【公営】、ガス【都市】 | ||
| 設備 | オートロック、テレビドアホン、インターネット対応、エレベーター、バルコニー、シャワー、給湯、1口コンロ、タイル張り | ||
| 当社物件ID | 721474 | ||
建物の情報
| 建物名 | 日興パレス伊勢佐木町北 | ||
|---|---|---|---|
| 所在地 | 神奈川県横浜市中区末吉町3丁目 | ||
| 交通 | 京浜急行電鉄本線 黄金町駅 徒歩5分 横浜市ブルーライン 阪東橋駅 徒歩5分 | ||
| 階数 | 8階建 | 総戸数 | 30戸 |
| 築年月 | 1988年12月 / 築38年 | エレベーター | あり |
| 駐車場 | - | バイク置き場 | - |
| 駐輪場 | - | 管理人/管理会社 | - |
| 周辺環境 | コンビニ 徒歩5分(391m) 販売店 徒歩1分(73m) その他 ドラッグストア その他 公園 その他 銀行 その他 * | ||
| 建物種別 | マンション | 建物構造 | SRC(鉄骨鉄筋コンクリート) |
この部屋の取扱い不動産会社
| 会社名 | ハウスコム東神奈川株式会社 菊名店 | ||
|---|---|---|---|
| 所在地 | 神奈川県横浜市港北区1-6クレセント菊名1階 | 交通 | - |
| 営業時間 | 10:00~18:00 | 定休日 | - |
| 免許番号 | 神奈川県知事(1)第31769号 | 取引態様 | 仲介 |
| 不動産会社管理番号 | HC2-1586695-202-0189 | 当社管理番号 | 468 |
| 所属団体 | 、 | ||
| 取扱い物件情報 | 物件詳細へ | ||
※各種情報と現状に差異がある場合は、現状優先となります。問い合わせをすることで、より詳しい条件、情報を確認する事ができます。
提供:ハウスコム東神奈川株式会社 菊名店
この物件が気になったら掲載期限まであと4日
日興パレス伊勢佐木町北に条件(家賃・エリア)が近い物件一覧
| 写真 | 家賃 管理費等 | 敷金 礼金 | 間取り 専有面積 | 築年数 | 最寄り駅 所在地 | キープ | 詳細 |
|---|---|---|---|---|---|---|---|
アパート スコル津久井(1K/2階) | |||||||
![]() | 4.7万円 2,000円 | なし なし | 1K 23.18m2 | 築30年 | 京急久里浜線 津久井浜駅 徒歩7分 京急久里浜線 京急長沢駅 徒歩20分 京急久里浜線 YRP野比駅 徒歩30分 神奈川県横須賀市津久井 | 詳細を見る | |
マンション リブリ・プモリIII(1K/1階) | |||||||
![]() | 7万円 4,000円 | なし 3.5万円 | 1K 26.08m2 | 築10年 | 小田急江ノ島線 大和駅(神奈川) 徒歩7分 相鉄本線 瀬谷駅 徒歩22分 小田急江ノ島線 桜ケ丘駅 徒歩26分 神奈川県大和市深見台 | 詳細を見る | |
アパート ラ・フォーレ湘南I(3DK/1階) | |||||||
![]() | 6.4万円 1,000円 | 6.4万円 なし | 3DK 45.2m2 | 築39年 | 小田急江ノ島線 藤沢本町駅 徒歩17分 神奈川県藤沢市羽鳥 | 詳細を見る | |
アパート ジーエーヒルズ小田2丁目B棟(ワンルーム/2階) | |||||||
![]() | 5.7万円 3,000円 | なし なし | ワンルーム 14.49m2 | 築11年 | JR南武線 小田栄駅 徒歩5分 JR南武線 川崎新町駅 徒歩8分 京急本線 八丁畷駅 徒歩20分 神奈川県川崎市川崎区小田 | 詳細を見る | |
アパート フューチャーサエキII(1DK/2階) | |||||||
![]() | 5.4万円 3,000円 | 5.4万円 5.4万円 | 1DK 29.86m2 | 築30年 | 小田急江ノ島線 長後駅 徒歩10分 相鉄いずみ野線 湘南台駅 徒歩13分 ブルーライン 下飯田駅 徒歩26分 神奈川県藤沢市下土棚 | 詳細を見る | |
アパート エキニア川崎ウエスト(1K/1階) | |||||||
![]() | 7.6万円 3,000円 | なし なし | 1K 20.03m2 | 築1年 | JR南武線 鹿島田駅 徒歩10分 JR横須賀線 新川崎駅 徒歩15分 JR南武線 平間駅 徒歩16分 神奈川県川崎市中原区上平間 | 詳細を見る | |
アパート ジャパンビル鎌倉(1K/2階) | |||||||
![]() | 6.2万円 2,000円 | 6.2万円 6.2万円 | 1K 15.34m2 | 築33年 | 東海道本線 大船駅 徒歩5分 横須賀線 大船駅 徒歩5分 神奈川県鎌倉市小袋谷1丁目 | 詳細を見る | |
アパート OCEAN'S14(1K/1階) | |||||||
![]() | 6.7万円 5,000円 | なし なし | 1K 22.53m2 | 築2年 | 小田急電鉄江ノ島線 鵠沼海岸駅 徒歩6分 神奈川県藤沢市鵠沼海岸3丁目 | 詳細を見る | |








