賃貸マンション
ザ・パークハビオ日本橋茅場町の賃貸物件情報(ワンルーム/8階)
| 家賃 | 管理費等 | 敷金 | 礼金 | 間取り | 専有面積 |
|---|---|---|---|---|---|
| 16.2万円 | 1.5万円 | 16.2万円 | なし | ワンルーム | 28.56m2 |
入居決定でお祝い金最大100,000円
- 保証金
- -
- 償却・敷引
- -
- 築年数
- 新築
- 所在階
- 8階
- 向き
- 南東
Point
創業46年の信頼と直営139店舗のネットワークを活かし、専任物件だけでなく他社物件もご紹介いたします。オンライン接客、オンライン内見のサービス対応、初期費用のクレジット決済も可能です。
提供:(株)タウンハウジング東京 人形町店(SUUMO経由)

詳細情報 ザ・パークハビオ日本橋茅場町
物件紹介
ザ・パークハビオ日本橋茅場町は東京メトロ日比谷線茅場町駅から徒歩3分にあり、駅近で通勤通学に便利なマンションです。
このお部屋は2階以上に位置しているので、通行人や周囲の住人からの視線が気になりにくく、防犯面でも安心。建物のエントランスはオートロックがついており、インターホンにはTVモニタもついているため、相手の顔を確認してから来客対応することができます。
こちらは楽器相談が可能な物件。楽器演奏をお考えの方はぜひ相談してみてください。人気の南向きのお部屋。また、フローリングなのでお掃除もラクラク。キッチンはシステムキッチン仕様になっていますので、お料理好きの方にもぴったり。また、バス・トイレは別で、のんびりお風呂タイムも楽しめるでしょう。
通信設備面では、インターネットが無料で使えるので、月々の出費を抑えられるのも魅力です(別途工事等が必要な場合あり)。
建物にはエレベーターがついているので、重い荷物があっても安心。共用部には宅配ボックスが設定されているので、不在の時にも荷物を受け取ることができます。また、ペット飼育の相談ができますので、あなたの大切な家族の一員も快適に暮らせるか、ぜひ確認してみてください。
このお部屋は2階以上に位置しているので、通行人や周囲の住人からの視線が気になりにくく、防犯面でも安心。建物のエントランスはオートロックがついており、インターホンにはTVモニタもついているため、相手の顔を確認してから来客対応することができます。
こちらは楽器相談が可能な物件。楽器演奏をお考えの方はぜひ相談してみてください。人気の南向きのお部屋。また、フローリングなのでお掃除もラクラク。キッチンはシステムキッチン仕様になっていますので、お料理好きの方にもぴったり。また、バス・トイレは別で、のんびりお風呂タイムも楽しめるでしょう。
通信設備面では、インターネットが無料で使えるので、月々の出費を抑えられるのも魅力です(別途工事等が必要な場合あり)。
建物にはエレベーターがついているので、重い荷物があっても安心。共用部には宅配ボックスが設定されているので、不在の時にも荷物を受け取ることができます。また、ペット飼育の相談ができますので、あなたの大切な家族の一員も快適に暮らせるか、ぜひ確認してみてください。
お金・契約の情報
※「-」と表示されているものは、実際は料金が発生するものもございます。詳細はお問い合わせください。
| 家賃 | 16.2万円 | 管理費・共益費 | 1.5万円 |
|---|---|---|---|
| 敷金 | 16.2万円 | 礼金 | なし |
| フリーレント | あり | ||
| 入居決定でお祝い金最大100,000円 | |||
| 保証金 | - | 償却・敷引 | - |
| 住宅保険料 | - | 更新料 | - |
| 保証会社利用 | 必須 | 保証会社名 | - |
| 保証会社費用 | - | 保証会社備考 | 保証会社利用必 賃料等合計額の50%(最低保証料2万円)2年目以降:1年毎1万円 |
| 契約形態 | 定期借家 | 契約期間 | 2年 |
| 入居・引渡期間 | - | 現況 | - |
| 入居可能条件 | 楽器相談、ペット相談 | ||
| 契約備考 | 東京メトロ半蔵門線水天宮前駅徒歩11分/初期費用クレジット決済可(一部)/IT重説対応/オンライン相談・内見可/短期解約違約金あり/SOHO使用・ペット飼育時敷金1か月積増 合計1.65万円(内訳:24時間サポート料:16500円) 駐輪場:空有:330円/月 ワンルーム 単身者可/ペット相談/楽器相談/フリーレント1ヶ月 定期借家2年 損保【2万円2年】 バストイレ別、バルコニー、エアコン、クロゼット、フローリング、TVインターホン、オートロック、室内洗濯置、シューズボックス、システムキッチン、温水洗浄便座、脱衣所、エレベーター、洗面所独立、洗面化粧台、2口コンロ、駐輪場、宅配ボックス、礼金不要、対面式キッチン、防犯カメラ、ペット相談、IHクッキングヒーター、全居室収納、全居室洋室、振分、保証人不要、単身者相談、敷金1ヶ月、2沿線利用可、ネット使用料不要、フリーレント、エアコン全室、保証金不要、築2年以内、楽器相談、クロゼット2ヶ所、築3年以内、南面リビング、全室東南向き、2駅利用可、3駅以上利用可、3沿線以上利用可、駅徒歩5分以内、駅徒歩10分以内、キッズルーム、24時間ゴミ出し可、敷地内ごみ置き場、築5年以内、東南向き、寝室8畳以上、全居室6畳以上、全居室8畳以上、都市ガス、洗面所にドア、マルチメディアコンセント、年度内入居可、IT重説対応物件、初期費用カード決済可 敷金積み増し【ペット飼育の場合敷金2ヶ月(総額)】 入居日:'26年2月中旬 | ||
部屋の情報
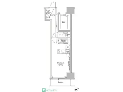
| 間取り | ワンルーム | 専有面積 | 28.56m2 |
|---|---|---|---|
| 所在階 / 向き | 8階 / 南東 | バルコニー面積 | - |
| 水道 / ガス | - | ||
| 設備 | バス・トイレ別、2階以上、オートロック、テレビドアホン、宅配ボックス、インターネット対応、システムキッチン、エアコン、エレベーター、温水洗浄便座、南向き、バルコニー、フローリング、洗髪洗面化粧台、2口コンロ、コンロ:IH、インターネット使用料無料、洗濯機:室内 | ||
| 当社物件ID | 160003006 | ||
建物の情報
| 建物名 | ザ・パークハビオ日本橋茅場町 | ||
|---|---|---|---|
| 所在地 | 東京都中央区日本橋茅場町 | ||
| 交通 | 東京メトロ日比谷線 茅場町駅 徒歩3分 東京メトロ日比谷線 八丁堀駅(東京) 徒歩8分 都営浅草線 日本橋駅(東京) 徒歩11分 | ||
| 階数 | 10階建 | 総戸数 | - |
| 築年月 | 2026年02月 / 新築 | エレベーター | あり |
| 駐車場 | 空有 77000円 | バイク置き場 | - |
| 駐輪場 | あり | 管理人/管理会社 | - |
| 周辺環境 | その他 エフワン日本橋店(ショッピングセンター)まで460m その他 まいばすけっと(スーパー)まで200m その他 マルエツプチ八丁堀店(スーパー)まで380m その他 肉のハナマサ(スーパー)まで500m その他 セブンイレブン(コンビニ)まで30m その他 ファミリーマート日本橋茅場町店(コンビニ)まで130m | ||
| 建物種別 | マンション | 建物構造 | RC(鉄筋コンクリート) |
この部屋の取扱い不動産会社
| 会社名 | (株)タウンハウジング東京 芝公園店(SUUMO経由) | ||
|---|---|---|---|
| 所在地 | 東京都港区芝3-5-7 カレッタ芝1階 | 交通 | - |
| 営業時間 | AM10:00~PM7:00 | 定休日 | 水曜日 |
| 免許番号 | 国土交通大臣9926 | 取引態様 | 仲介 |
| 不動産会社管理番号 | 100478964444 | 当社管理番号 | 89 |
| 所属団体 | (公社)東京都宅地建物取引業協会会員 | ||
| 公正取引協議会 | (公社)首都圏不動産公正取引協議会加盟 | ||
| 取扱い物件情報 | 物件詳細へ | ||
※各種情報と現状に差異がある場合は、現状優先となります。問い合わせをすることで、より詳しい条件、情報を確認する事ができます。
提供:(株)タウンハウジング東京 芝公園店(SUUMO経由)
この物件が気になったら掲載期限まであと10日
ザ・パークハビオ日本橋茅場町の空き部屋一覧
全部で33の空き部屋があります。
ザ・パークハビオ日本橋茅場町に条件(家賃・エリア)が近い物件一覧
| 写真 | 家賃 管理費等 | 敷金 礼金 | 間取り 専有面積 | 築年数 | 最寄り駅 所在地 | キープ | 詳細 |
|---|---|---|---|---|---|---|---|
マンション GENOVIA両国VIGREEN VEIL(ワンルーム/8階) | |||||||
![]() | 12.1万円 1.5万円 | なし なし | ワンルーム 26.53m2 | 築4年 | 都営新宿線 菊川駅(東京) 徒歩11分 JR総武線 錦糸町駅 徒歩12分 都営大江戸線 森下駅(東京) 徒歩19分 東京都墨田区緑 | 詳細を見る | |
アパート 月島ひまわり荘(ワンルーム/2階) | |||||||
![]() | 10万円 なし | なし 20万円 | ワンルーム 12.94m2 | 築40年 | 都営大江戸線 月島駅 徒歩4分 東京メトロ有楽町線 月島駅 徒歩5分 都営大江戸線 勝どき駅 徒歩10分 東京都中央区月島 | 詳細を見る | |
マンション FIRSTSTAGE ASAKUSA BUILDING(1LDK/4階) | |||||||
![]() | 13.8万円 5,000円 | 13.8万円 なし | 1LDK 42.71m2 | 築34年 | つくばエクスプレス 新御徒町駅 徒歩6分 東京都大江戸線 新御徒町駅 徒歩6分 東京地下鉄銀座線 稲荷町駅(東京) 徒歩8分 東京都台東区元浅草3丁目 | 詳細を見る | |
マンション ZOOM日本橋馬喰町(1K/8階) | |||||||
![]() | 13.1万円 9,000円 | 13.1万円 13.1万円 | 1K 26.09m2 | 築8年 | 総武本線 馬喰町駅 徒歩2分 東京都新宿線 馬喰横山駅 徒歩3分 東京都浅草線 東日本橋駅 徒歩3分 東京都千代田区東神田1丁目 | 詳細を見る | |
マンション LOG入谷(1DK/4階) | |||||||
![]() | 11.6万円 1万円 | なし なし | 1DK 25.44m2 | 築2年 | 東京地下鉄日比谷線 入谷駅(東京) 徒歩5分 東京地下鉄日比谷線 三ノ輪駅 徒歩9分 山手線 鶯谷駅 徒歩15分 東京都台東区竜泉1丁目 | 詳細を見る | |
マンション プレール・ドゥーク東京CANAL(1K/6階) | |||||||
![]() | 10.6万円 1.1万円 | なし 10.6万円 | 1K 22.34m2 | 築20年 | 京葉線 潮見駅 徒歩7分 東京地下鉄有楽町線 豊洲駅 徒歩22分 東京地下鉄東西線 木場駅 徒歩23分 東京都江東区枝川3丁目 | 詳細を見る | |
マンション レジディア錦糸町(1LDK/11階) | |||||||
![]() | 21.8万円 2万円 | 21.8万円 21.8万円 | 1LDK 40.02m2 | 築19年 | 東京地下鉄半蔵門線 錦糸町駅 徒歩5分 総武・中央緩行線 錦糸町駅 徒歩5分 東京都新宿線 住吉駅(東京) 徒歩17分 東京都墨田区錦糸1丁目 | 詳細を見る | |








