賃貸マンション
ユリカロゼ五反野IIIの賃貸物件情報(1K/8階)
| 家賃 | 管理費等 | 敷金 | 礼金 | 間取り | 専有面積 |
|---|---|---|---|---|---|
| 11.1万円 | 1.5万円 | なし | 11.1万円 | 1K | 31.37m2 |
入居決定でお祝い金最大100,000円
- 保証金
- -
- 償却・敷引
- -
- 築年数
- 築1年
- 所在階
- 8階
- 向き
- 南東
Point
インターネットに載っているほとんどのお部屋を当店でご紹介できます。複数の物件でも一度に確認できるので、比較検討がスムーズに進みます。お部屋探しにぜひご活用ください。
提供:(株)タウンハウジング東京 綾瀬店(SUUMO経由)

詳細情報 ユリカロゼ五反野III
物件紹介
ユリカロゼ五反野IIIは東武伊勢崎線小菅駅から徒歩6分にあり、駅近で通勤通学に便利なマンションです。
このお部屋は2階以上に位置しているので、通行人や周囲の住人からの視線が気になりにくく、防犯面でも安心。建物のエントランスはオートロックがついており、インターホンにはTVモニタもついているため、相手の顔を確認してから来客対応することができます。
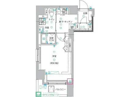
人気の南向き・フローリングのお部屋。角部屋でもあるため、周囲の居住者の生活音も気になりにくい場所です。キッチンはシステムキッチン仕様になっていますので、お料理好きの方にもぴったり。バス・トイレは別なので、のんびりお風呂タイムも楽しめるでしょう。また、雨の日でも浴室乾燥機を使えば、お洗濯も問題ありません。
通信設備面では、インターネットが無料で使えるので、月々の出費を抑えられるのも魅力です(別途工事等が必要な場合あり)。
建物にはエレベーターがついているので、重い荷物があっても安心。共用部には宅配ボックスが設定されているので、不在の時にも荷物を受け取ることができます。また、ペット飼育の相談ができますので、あなたの大切な家族の一員も快適に暮らせるか、ぜひ確認してみてください。
このお部屋は2階以上に位置しているので、通行人や周囲の住人からの視線が気になりにくく、防犯面でも安心。建物のエントランスはオートロックがついており、インターホンにはTVモニタもついているため、相手の顔を確認してから来客対応することができます。
人気の南向き・フローリングのお部屋。角部屋でもあるため、周囲の居住者の生活音も気になりにくい場所です。キッチンはシステムキッチン仕様になっていますので、お料理好きの方にもぴったり。バス・トイレは別なので、のんびりお風呂タイムも楽しめるでしょう。また、雨の日でも浴室乾燥機を使えば、お洗濯も問題ありません。
通信設備面では、インターネットが無料で使えるので、月々の出費を抑えられるのも魅力です(別途工事等が必要な場合あり)。
建物にはエレベーターがついているので、重い荷物があっても安心。共用部には宅配ボックスが設定されているので、不在の時にも荷物を受け取ることができます。また、ペット飼育の相談ができますので、あなたの大切な家族の一員も快適に暮らせるか、ぜひ確認してみてください。
お金・契約の情報
※「-」と表示されているものは、実際は料金が発生するものもございます。詳細はお問い合わせください。
| 家賃 | 11.1万円 | 管理費・共益費 | 1.5万円 |
|---|---|---|---|
| 敷金 | なし | 礼金 | 11.1万円 |
| 入居決定でお祝い金最大100,000円 | |||
| 保証金 | - | 償却・敷引 | - |
| 住宅保険料 | - | 更新料 | - |
| 保証会社利用 | 必須 | 保証会社名 | 全保連 |
| 保証会社費用 | - | 保証会社備考 | 全保連利用必 60% |
| 契約形態 | - | 契約期間 | - |
| 入居・引渡期間 | - | 現況 | - |
| 入居可能条件 | ペット相談 | ||
| 契約備考 | 【お部屋探しはタウンハウジング八潮店にお任せください。】 合計1.32万円(内訳:アクセス24:13200円) 更新料新賃料(ヶ月):1.00ヶ月 1K 二人入居可/ペット相談 普通借家2年 損保【2.4万円2年】 バストイレ別、バルコニー、エアコン、ガスコンロ対応、クロゼット、フローリング、TVインターホン、浴室乾燥機、オートロック、室内洗濯置、シューズボックス、システムキッチン、角住戸、温水洗浄便座、エレベーター、洗面所独立、2口コンロ、駐輪場、宅配ボックス、外壁タイル張り、最上階、敷金不要、防犯カメラ、ペット相談、分譲賃貸、保証人不要、二人入居相談、全居室フローリング、2沿線利用可、ディンプルキー、ネット専用回線、ネット使用料不要、ダブルロックキー、保証金不要、築2年以内、24時間換気システム、築3年以内、3駅以上利用可、駅徒歩10分以内、24時間ゴミ出し可、築5年以内、東南向き、都市ガス、マルチメディアコンセント、礼金1ヶ月、IT重説対応物件、初期費用カード決済可 入居日:'25年12月下旬 | ||
部屋の情報
| 間取り | 1K | 専有面積 | 31.37m2 |
|---|---|---|---|
| 所在階 / 向き | 8階 / 南東 | バルコニー面積 | - |
| 水道 / ガス | - | ||
| 設備 | バス・トイレ別、2階以上、オートロック、テレビドアホン、宅配ボックス、浴室乾燥機、インターネット対応、システムキッチン、エアコン、エレベーター、温水洗浄便座、南向き、角部屋、バルコニー、フローリング、洗髪洗面化粧台、2口コンロ、コンロ:ガス、インターネット使用料無料、洗濯機:室内 | ||
| 当社物件ID | 159563263 | ||
建物の情報
| 建物名 | ユリカロゼ五反野III | ||
|---|---|---|---|
| 所在地 | 東京都足立区足立 | ||
| 交通 | 東武伊勢崎線 小菅駅 徒歩6分 東武伊勢崎線 五反野駅 徒歩10分 JR常磐線 綾瀬駅 徒歩20分 | ||
| 階数 | 8階建 | 総戸数 | - |
| 築年月 | 2025年12月 / 築1年 | エレベーター | あり |
| 駐車場 | 近隣 300m16500円 | バイク置き場 | - |
| 駐輪場 | あり | 管理人/管理会社 | - |
| 周辺環境 | その他 東武ストア小菅店(スーパー)まで370m その他 マルエツ五反野駅店(スーパー)まで890m その他 東武ストア(コンビニ)まで370m その他 マルエツプチ五反野駅店(コンビニ)まで890m その他 ユニバーサルドラッグ新五反野店グッドプライス(ドラッグストア)まで840m その他 どらっぐぱぱす(ドラッグストア)まで910m | ||
| 建物種別 | マンション | 建物構造 | RC(鉄筋コンクリート) |
この部屋の取扱い不動産会社
| 会社名 | (株)タウンハウジング埼玉 八潮店(SUUMO経由) | ||
|---|---|---|---|
| 所在地 | 埼玉県八潮市大瀬1-1-3 フレスポ八潮1階 | 交通 | - |
| 営業時間 | AM10:00~PM7:00 | 定休日 | 水曜日 |
| 免許番号 | 国土交通大臣9925 | 取引態様 | 仲介 |
| 不動産会社管理番号 | 100462377135 | 当社管理番号 | 89 |
| 所属団体 | (公社)埼玉県宅地建物取引業協会会員 | ||
| 公正取引協議会 | (公社)首都圏不動産公正取引協議会加盟 | ||
| 取扱い物件情報 | 物件詳細へ | ||
※各種情報と現状に差異がある場合は、現状優先となります。問い合わせをすることで、より詳しい条件、情報を確認する事ができます。
提供:(株)タウンハウジング埼玉 八潮店(SUUMO経由)
この物件が気になったら掲載期限まであと10日
ユリカロゼ五反野IIIの空き部屋一覧
全部で43の空き部屋があります。
ユリカロゼ五反野IIIに条件(家賃・エリア)が近い物件一覧
| 写真 | 家賃 管理費等 | 敷金 礼金 | 間取り 専有面積 | 築年数 | 最寄り駅 所在地 | キープ | 詳細 |
|---|---|---|---|---|---|---|---|
マンション クレストコート本所吾妻橋ノース(1LDK/3階) | |||||||
![]() | 15.5万円 1.5万円 | 15.5万円 なし | 1LDK 30.83m2 | 築1年 | 東京都浅草線 本所吾妻橋駅 徒歩3分 東京地下鉄銀座線 浅草駅(東武・都営・メトロ) 徒歩7分 東京都浅草線 浅草駅(東武・都営・メトロ) 徒歩9分 東京都墨田区吾妻橋2丁目 | 詳細を見る | |
マンション グランハイツ錦糸町(ワンルーム/7階) | |||||||
![]() | 11.4万円 6,000円 | 11.4万円 11.4万円 | ワンルーム 26.47m2 | 築19年 | 東京地下鉄半蔵門線 押上駅 徒歩5分 東京都浅草線 押上駅 徒歩11分 総武本線 錦糸町駅 徒歩12分 東京都墨田区横川3丁目 | 詳細を見る | |
マンション エスペランサK錦糸町(1K/12階) | |||||||
![]() | 11万円 1万円 | なし 11万円 | 1K 25.69m2 | 築6年 | 総武・中央緩行線 錦糸町駅 徒歩9分 総武本線 錦糸町駅 徒歩9分 東京地下鉄半蔵門線 錦糸町駅 徒歩9分 東京都墨田区緑4丁目 | 詳細を見る | |
マンション スカイコート両国壱番館(ワンルーム/11階) | |||||||
![]() | 9.31万円 5,900円 | 9.31万円 9.31万円 | ワンルーム 23.53m2 | 築24年 | 総武・中央緩行線 両国駅 徒歩3分 東京都浅草線 東日本橋駅 徒歩11分 東京都新宿線 浜町駅 徒歩16分 東京都墨田区両国2丁目 | 詳細を見る | |
マンション カーサ シンセラ オグ(1K/3階) | |||||||
![]() | 9万円 5,000円 | 9万円 9万円 | 1K 26.87m2 | 築4年 | 高崎線 尾久駅 徒歩6分 山手線 田端駅 徒歩15分 東京都荒川区西尾久4丁目 | 詳細を見る | |
マンション グランデュール富士(1LDK/3階) | |||||||
![]() | 15万円 6,000円 | 15万円 15万円 | 1LDK 35.05m2 | 築6年 | 東京地下鉄千代田線 西日暮里駅 徒歩3分 山手線 西日暮里駅 徒歩4分 京浜東北・根岸線 日暮里駅 徒歩6分 東京都荒川区西日暮里2丁目 | 詳細を見る | |
マンション ベルジューレ錦糸町(1K/4階) | |||||||
![]() | 9.3万円 9,000円 | 9.3万円 9.3万円 | 1K 26.03m2 | 築11年 | 東京地下鉄半蔵門線 錦糸町駅 徒歩8分 総武・中央緩行線 錦糸町駅 徒歩8分 東京都墨田区太平1丁目 | 詳細を見る | |
マンション ガリシア森下Ⅴ(1K/3階) | |||||||
![]() | 12.8万円 1万円 | なし なし | 1K 26.35m2 | 築5年 | 東京都大江戸線 森下駅(東京) 徒歩4分 総武・中央緩行線 両国駅 徒歩14分 東京都新宿線 菊川駅(東京) 徒歩14分 東京都墨田区千歳3丁目 | 詳細を見る | |








