賃貸マンション
コンフォリア・リヴ北浜高麗橋の賃貸物件情報(1LDK/11階)
| 家賃 | 管理費等 | 敷金 | 礼金 | 間取り | 専有面積 |
|---|---|---|---|---|---|
| 13.1万円 | 1.2万円 | なし | 13.1万円 | 1LDK | 31.44m2 |
入居決定でお祝い金最大100,000円
Point
新築◆2026年2月中旬入居開始◆専有部にスマートロック導入
提供:アパマンショップ新大阪中央店

詳細情報 コンフォリア・リヴ北浜高麗橋
物件紹介
コンフォリア・リヴ北浜高麗橋は大阪メトロ堺筋線北浜駅から徒歩1分にあり、駅近で通勤通学に便利なマンションです。
このお部屋は2階以上に位置しているので、通行人や周囲の住人からの視線が気になりにくく、防犯面でも安心。建物のエントランスはオートロックがついており、インターホンにはTVモニタもついているため、相手の顔を確認してから来客対応することができます。
フローリングのお部屋なのでお掃除もラクラク。室内には人気のウォークインクローゼットがありますので、たくさんの荷物も効率的に収納ができます。キッチンはシステムキッチン仕様になっていますので、お料理好きの方にもぴったり。バス・トイレは別なので、のんびりお風呂タイムも楽しめるでしょう。また、雨の日でも浴室乾燥機を使えば、お洗濯も問題ありません。
通信設備面では、インターネットが無料で使えるので、月々の出費を抑えられるのも魅力です。また、BSアンテナ・CSアンテナがありCATVにも対応しているので、おうち時間も充実するでしょう(別途工事、BS・CS・CATVの契約料等が必要な場合あり)。
建物にはエレベーターがついているので、重い荷物があっても安心。共用部には宅配ボックスが設定されているので、不在の時にも荷物を受け取ることができます。また、ペット飼育の相談ができますので、あなたの大切な家族の一員も快適に暮らせるか、ぜひ確認してみてください。
このお部屋は2階以上に位置しているので、通行人や周囲の住人からの視線が気になりにくく、防犯面でも安心。建物のエントランスはオートロックがついており、インターホンにはTVモニタもついているため、相手の顔を確認してから来客対応することができます。
フローリングのお部屋なのでお掃除もラクラク。室内には人気のウォークインクローゼットがありますので、たくさんの荷物も効率的に収納ができます。キッチンはシステムキッチン仕様になっていますので、お料理好きの方にもぴったり。バス・トイレは別なので、のんびりお風呂タイムも楽しめるでしょう。また、雨の日でも浴室乾燥機を使えば、お洗濯も問題ありません。
通信設備面では、インターネットが無料で使えるので、月々の出費を抑えられるのも魅力です。また、BSアンテナ・CSアンテナがありCATVにも対応しているので、おうち時間も充実するでしょう(別途工事、BS・CS・CATVの契約料等が必要な場合あり)。
建物にはエレベーターがついているので、重い荷物があっても安心。共用部には宅配ボックスが設定されているので、不在の時にも荷物を受け取ることができます。また、ペット飼育の相談ができますので、あなたの大切な家族の一員も快適に暮らせるか、ぜひ確認してみてください。
お金・契約の情報
※「-」と表示されているものは、実際は料金が発生するものもございます。詳細はお問い合わせください。
| 家賃 | 13.1万円 | 管理費・共益費 | 1.2万円 |
|---|---|---|---|
| 敷金 | なし | 礼金 | 13.1万円 |
| 入居決定でお祝い金最大100,000円 | |||
| 保証金 | - | 償却・敷引 | - |
| 住宅保険料 | 1.655万円(2年) | 更新料 | - |
| 保証会社利用 | 必須 | 保証会社名 | エポスカード(RP) |
| 保証会社費用 | - | 保証会社備考 | 保証料:賃料等の50%(最低2万)、月額保証料:賃料等の1%(更新料無) |
| 契約形態 | - | 契約期間 | 2年 |
| 入居・引渡期間 | 2026年02月中旬 | 現況 | - |
| 入居可能条件 | ペット可 | ||
| 契約備考 | 小型犬:不可、大型犬:不可、猫:不可 エアコン清掃費 8250円/駐輪場ステッカー 440円/清掃費 38500円/鍵交換代 22000円 | ||
部屋の情報
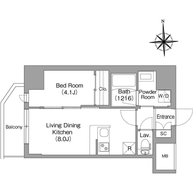
| 間取り | 1LDK | 専有面積 | 31.44m2 |
|---|---|---|---|
| 間取り詳細 | LDK(8帖)、洋室(4.1帖) | ||
| 所在階 / 向き | 11階 / 西 | バルコニー面積 | - |
| 水道 / ガス | - | ||
| 設備 | バス・トイレ別、オートロック、テレビドアホン、宅配ボックス、浴室乾燥機、ウォークインクローゼット、エレベーター、CATV、CSアンテナ、洗濯機:室内 | ||
| 当社物件ID | 160364710 | ||
建物の情報
| 建物名 | コンフォリア・リヴ北浜高麗橋 | ||
|---|---|---|---|
| 所在地 | 大阪府大阪市中央区高麗橋1丁目 | ||
| 交通 | 大阪メトロ堺筋線 北浜駅(大阪) 徒歩3分 | ||
| 階数 | 15階建 | 総戸数 | 44戸 |
| 築年月 | 2026年01月 / 築1年 | エレベーター | あり |
| 駐車場 | - | バイク置き場 | - |
| 駐輪場 | あり | 管理人/管理会社 | - |
| 建物種別 | マンション | 建物構造 | RC(鉄筋コンクリート) |
この部屋の取扱い不動産会社
| 会社名 | アパマンショップ梅田東店 | ||
|---|---|---|---|
| 所在地 | 大阪府大阪市北区堂山町 4-4阪急東ビル3F | 交通 | 大阪市谷町線東梅田から徒歩5分 |
| 営業時間 | 10:00〜18:30(泉の広場M10出口右階段すぐ!) | 定休日 | - |
| 免許番号 | 大阪府知事(6)47572 | 取引態様 | 仲介 |
| 不動産会社管理番号 | 112031435 | 当社管理番号 | 4 |
| 所属団体 | (一社)大阪府宅地建物取引業協会 | ||
| 公正取引協議会 | (公社) 近畿地区不動産公正取引協議会加盟 | ||
| 取扱い物件情報 | 物件詳細へ | ||
※各種情報と現状に差異がある場合は、現状優先となります。問い合わせをすることで、より詳しい条件、情報を確認する事ができます。
提供:アパマンショップ梅田東店
この物件が気になったら掲載期限まであと11日
コンフォリア・リヴ北浜高麗橋の空き部屋一覧
全部で25の空き部屋があります。
コンフォリア・リヴ北浜高麗橋に条件(家賃・エリア)が近い物件一覧
| 写真 | 家賃 管理費等 | 敷金 礼金 | 間取り 専有面積 | 築年数 | 最寄り駅 所在地 | キープ | 詳細 |
|---|---|---|---|---|---|---|---|
マンション ディームス江坂(1K/3階) | |||||||
| 8.2万円 1万円 | なし なし | 1K 24.27m2 | 築9年 | 北大阪急行南北線 江坂駅 徒歩9分 阪急電鉄宝塚線 庄内駅(大阪) 徒歩27分 阪急電鉄千里線 豊津駅(大阪) 徒歩28分 大阪府吹田市江の木町10-3 | 詳細を見る | ||
アパート BIVIO(3LDK/1階) | |||||||
| 17.7万円 8,000円 | 17.7万円 35.4万円 | 3LDK 76.86m2 | 築3年 | 北大阪急行南北線 江坂駅 徒歩10分 阪急電鉄宝塚線 服部天神駅 徒歩23分 北大阪急行南北線 緑地公園駅 徒歩24分 大阪府吹田市豊津町40-36 | 詳細を見る | ||
マンション VITA荒本(1LDK/8階) | |||||||
![]() | 11万円 8,000円 | なし なし | 1LDK 39.6m2 | 築3年 | 近鉄けいはんな線 荒本駅 徒歩3分 大阪市中央線 長田駅(大阪) 徒歩10分 大阪府東大阪市荒本西4丁目 | 詳細を見る | |
アパート パサログランデ鳳中町(1LDK/1階) | |||||||
![]() | 9.5万円 7,500円 | なし 14.25万円 | 1LDK 41.48m2 | 新築 | 阪和線 鳳駅 徒歩4分 阪和線 富木駅 徒歩16分 阪和線 東羽衣駅 徒歩17分 大阪府堺市西区鳳中町9丁 | 詳細を見る | |
アパート サンシャインⅡ(2LDK/1階) | |||||||
| 8.55万円 4,500円 | なし 8.55万円 | 2LDK 50.44m2 | 新築 | 大阪モノレール本線 沢良宜駅 徒歩46分 京阪電気鉄道京阪線 香里園駅 徒歩47分 京阪電気鉄道京阪線 寝屋川市駅 徒歩54分 大阪府摂津市鳥飼上1丁目652-3、653-2 | 詳細を見る | ||
マンション 南海電鉄泉北線 深井駅 徒歩14分 築38年(4LDK/2階) | |||||||
![]() | 8.8万円 6,000円 | なし 17.6万円 | 4LDK 79.5m2 | 築38年 | 南海電鉄泉北線 深井駅 徒歩14分 阪和線 上野芝駅 徒歩25分 阪和線 津久野駅 徒歩31分 大阪府堺市中区深井中町 | 詳細を見る | |
マンション 南海電鉄泉北線 深井駅 徒歩5分 築31年(3LDK/2階) | |||||||
![]() | 10.2万円 5,000円 | なし 10万円 | 3LDK 68.58m2 | 築31年 | 南海電鉄泉北線 深井駅 徒歩5分 阪和線 上野芝駅 徒歩37分 阪和線 津久野駅 徒歩39分 大阪府堺市中区深井清水町 | 詳細を見る | |
マンション シャーメゾン オーク八戸ノ里(1LDK/1階) | |||||||
![]() | 10.7万円 9,000円 | 3万円 なし | 1LDK 46.2m2 | 築3年 | 近鉄奈良線 八戸ノ里駅 徒歩6分 近鉄奈良線 河内小阪駅 徒歩15分 近鉄奈良線 若江岩田駅 徒歩24分 大阪府東大阪市下小阪 | 詳細を見る | |





