賃貸マンション
セントポーリア カルーアの賃貸物件情報(ワンルーム/4階)
| 家賃 | 管理費等 | 敷金 | 礼金 | 間取り | 専有面積 |
|---|---|---|---|---|---|
| 5.3万円 | 5,000円 | なし | なし | ワンルーム | 27.3m2 |
入居決定でお祝い金最大100,000円
- 保証金
- -
- 償却・敷引
- -
- 築年数
- 築20年
- 所在階
- 4階
- 向き
- 東
Point
地下鉄豊水すすきの駅徒歩5分♪2006年完成、27平米以上・エアコン付・ネット無料の人気ワンルームに空きが出ました(^O^)ペット可・エレベーター・バルコニー☆
提供:ビッグ西28丁目店(株)パワー・ステーション(SUUMO経由)

詳細情報 セントポーリア カルーア
物件紹介
セントポーリア カルーアは地下鉄東豊線豊水すすきの駅から徒歩5分にあり、駅近で通勤通学に便利なマンションです。
このお部屋は2階以上に位置しているので通行人や周囲の住人からの視線が気になりにくく、建物のエントランスはオートロックがついているので防犯性が高くなっています。
おしゃれなデザイナーズ物件!フローリングのお部屋なのでお掃除もラクラク。バス・トイレ別の仕様で、のんびりお風呂タイムも楽しめます。
通信設備面では、インターネットが無料で使えるので、月々の出費を抑えられるのも魅力です。また、BSアンテナ・CSアンテナがありCATVにも対応しているので、おうち時間も充実するでしょう(別途工事、BS・CS・CATVの契約料等が必要な場合あり)。
建物にはエレベーターがついているので、重い荷物があっても安心。共用部には宅配ボックスが設定されているので、不在の時にも荷物を受け取ることができます。また、ペット飼育の相談ができますので、あなたの大切な家族の一員も快適に暮らせるか、ぜひ確認してみてください。
このお部屋は2階以上に位置しているので通行人や周囲の住人からの視線が気になりにくく、建物のエントランスはオートロックがついているので防犯性が高くなっています。
おしゃれなデザイナーズ物件!フローリングのお部屋なのでお掃除もラクラク。バス・トイレ別の仕様で、のんびりお風呂タイムも楽しめます。
通信設備面では、インターネットが無料で使えるので、月々の出費を抑えられるのも魅力です。また、BSアンテナ・CSアンテナがありCATVにも対応しているので、おうち時間も充実するでしょう(別途工事、BS・CS・CATVの契約料等が必要な場合あり)。
建物にはエレベーターがついているので、重い荷物があっても安心。共用部には宅配ボックスが設定されているので、不在の時にも荷物を受け取ることができます。また、ペット飼育の相談ができますので、あなたの大切な家族の一員も快適に暮らせるか、ぜひ確認してみてください。
お金・契約の情報
※「-」と表示されているものは、実際は料金が発生するものもございます。詳細はお問い合わせください。
| 家賃 | 5.3万円 | 管理費・共益費 | 5,000円 |
|---|---|---|---|
| 敷金 | なし | 礼金 | なし |
| 入居決定でお祝い金最大100,000円 | |||
| 保証金 | - | 償却・敷引 | - |
| 住宅保険料 | - | 更新料 | - |
| 保証会社利用 | 必須 | 保証会社名 | - |
| 保証会社費用 | - | 保証会社備考 | 保証会社利用必 ほくせん ・初回保証料 月額賃料等合計の50%(最低保証料15,000円) ・月次保証料(非課税)M・T構造→1,700円 H構造(木造)→2,100円 もっと安心コース(家財保険300万円)M・T構造→1,900円 H構造(木造)→2,300円 |
| 契約形態 | - | 契約期間 | - |
| 入居・引渡期間 | 相談 | 現況 | - |
| 入居可能条件 | ペット相談 | ||
| 契約備考 | 巡回管理 ワンルーム 単身者可/二人入居可/ペット相談 損保【要】 バストイレ別、バルコニー、エアコン、ガスコンロ対応、クロゼット、シャワー付洗面台、オートロック、室内洗濯置、陽当り良好、シューズボックス、脱衣所、エレベーター、洗面所独立、洗面化粧台、駐輪場、宅配ボックス、CATV、光ファイバー、礼金不要、敷金不要、防犯カメラ、独立型キッチン、ペット相談、照明付、保証人不要、単身者相談、仲介手数料不要、二人入居相談、2沿線利用可、ネット専用回線、ネット使用料不要、眺望良好、ロードヒーティング、学生相談、2駅利用可、3駅以上利用可、駅徒歩5分以内、駅徒歩10分以内、バス停徒歩3分以内、敷地内ごみ置き場、BS、敷金・礼金不要、保証会社利用可、IT重説対応物件、初期費用カード決済可、通風良好 | ||
部屋の情報
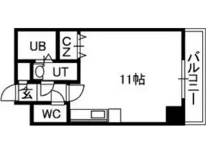
| 間取り | ワンルーム | 専有面積 | 27.3m2 |
|---|---|---|---|
| 所在階 / 向き | 4階 / 東 | バルコニー面積 | - |
| 水道 / ガス | - | ||
| 設備 | バス・トイレ別、2階以上、オートロック、宅配ボックス、インターネット対応、エアコン、エレベーター、バルコニー、洗髪洗面化粧台、コンロ:ガス、CATV、BSアンテナ、インターネット使用料無料、洗濯機:室内 | ||
| 当社物件ID | 3620890 | ||
建物の情報
| 建物名 | セントポーリア カルーア | ||
|---|---|---|---|
| 所在地 | 北海道札幌市中央区南五条東 | ||
| 交通 | 地下鉄東豊線 豊水すすきの駅 徒歩5分 地下鉄南北線 すすきの駅(市営) 徒歩9分 地下鉄東西線 バスセンター前駅 徒歩9分 | ||
| 階数 | 10階建 | 総戸数 | 54戸 |
| 築年月 | 2006年09月 / 築20年 | エレベーター | あり |
| 駐車場 | 近隣 210m14300円 | バイク置き場 | - |
| 駐輪場 | あり | 管理人/管理会社 | - |
| 周辺環境 | その他 まいばすけっと南4条東4丁目店(スーパー)まで481m その他 ファミリーマート札幌南5条東店(コンビニ)まで88m その他 ココカラファイン狸小路店(ドラッグストア)まで567m その他 医療法人えんどう会創成東病院(病院)まで366m その他 札幌南四条郵便局(郵便局)まで175m その他 創成川公園(公園)まで429m | ||
| 建物種別 | マンション | 建物構造 | RC(鉄筋コンクリート) |
この部屋の取扱い不動産会社
| 会社名 | ビッグ桑園店(株)パワー・ステーション(SUUMO経由) | ||
|---|---|---|---|
| 所在地 | 北海道札幌市中央区北十条西15-1-6 クリーンリバー桑園駅前1号棟1階 | 交通 | - |
| 営業時間 | 10:00~19:00 | 定休日 | 年中無休 |
| 免許番号 | 北海道知事石狩6414 | 取引態様 | 仲介 |
| 不動産会社管理番号 | 100489752398 | 当社管理番号 | 89 |
| 所属団体 | (公社)全日本不動産協会北海道本部会員 | ||
| 公正取引協議会 | (一社)北海道不動産公正取引協議会加盟 | ||
| 取扱い物件情報 | 物件詳細へ | ||
※各種情報と現状に差異がある場合は、現状優先となります。問い合わせをすることで、より詳しい条件、情報を確認する事ができます。
提供:ビッグ桑園店(株)パワー・ステーション(SUUMO経由)
この物件が気になったら掲載期限まであと12日
セントポーリア カルーアに条件(家賃・エリア)が近い物件一覧
| 写真 | 家賃 管理費等 | 敷金 礼金 | 間取り 専有面積 | 築年数 | 最寄り駅 所在地 | キープ | 詳細 |
|---|---|---|---|---|---|---|---|
アパート レイディアント南9条(1LDK/3階) | |||||||
![]() | 4.9万円 2,000円 | なし なし | 1LDK 31m2 | 築18年 | 札幌市軌道線 西線9条旭山公園通駅 徒歩6分 北海道札幌市中央区南九条西13丁目 | 詳細を見る | |
アパート レオパレス 文京台フォレ(1K/2階) | |||||||
![]() | 4.3万円 6,500円 | なし なし | 1K 23.18m2 | 築20年 | 函館本線 大麻駅 徒歩4分 北海道江別市文京台東町 | 詳細を見る | |
マンション ABE HILLS(ワンルーム/3階) | |||||||
![]() | 3.8万円 2,000円 | なし なし | ワンルーム 18.92m2 | 築31年 | 函館本線 小樽駅 徒歩10分 北海道小樽市緑1丁目 | 詳細を見る | |
マンション 表参道・明豊ビル(1LDK/3階) | |||||||
![]() | 5.1万円 3,000円 | 5.1万円 なし | 1LDK 37.71m2 | 築38年 | 地下鉄東西線 西18丁目駅 徒歩4分 地下鉄東西線 円山公園駅 徒歩10分 札幌市電 西15丁目駅 徒歩13分 北海道札幌市中央区北一条西 | 詳細を見る | |
マンション AUREA TERRACE(1LDK/2階) | |||||||
![]() | 6.9万円 なし | なし 6.9万円 | 1LDK 35.91m2 | 新築 | 千歳線 千歳駅(北海道) 徒歩21分 北海道千歳市緑町5丁目 | 詳細を見る | |
マンション E&Sハイツ(1LDK/2階) | |||||||
![]() | 5.5万円 3,000円 | なし なし | 1LDK 42.1m2 | 築23年 | 札幌市電 西線6条駅 徒歩3分 札幌市電 西15丁目駅 徒歩6分 地下鉄東西線 西18丁目駅 徒歩8分 北海道札幌市中央区南四条西 | 詳細を見る | |
アパート レオパレスサンインレットⅤ(1K/1階) | |||||||
![]() | 4.2万円 6,500円 | なし なし | 1K 23.18m2 | 築19年 | 函館本線 森林公園駅(北海道) 徒歩18分 北海道江別市文京台 | 詳細を見る | |
マンション リベルティ大通(1LDK/7階) | |||||||
![]() | 4.5万円 5,000円 | 4.5万円 なし | 1LDK 31.83m2 | 築42年 | 札幌市東西線 西18丁目駅 徒歩2分 北海道札幌市中央区南一条西16丁目 | 詳細を見る | |


/105x80-f1-q70-wp1)


/105x80-f1-q70-wp1)

/105x80-f1-q70-wp1)
