賃貸マンション
リバティー浦安の賃貸物件情報(2LDK/7階)
| 家賃 | 管理費等 | 敷金 | 礼金 | 間取り | 専有面積 |
|---|---|---|---|---|---|
| 25万円 | 1万円 | 50万円 | 25万円 | 2LDK | 59m2 |
入居決定でお祝い金最大100,000円
- 保証金
- -
- 償却・敷引
- -
- 築年数
- 築37年
- 所在階
- 7階
- 向き
- 北
Point
室内見学承ります・お客様のご都合に合わせてオンラインまたはお近くの店舗でご提案可・初期費用分割払い可・クレジットカード利用可・引越業者割引・初期費用のお見積や入居日のご相談もお気軽にお問合せください
提供:(株)リライフ葛西店(SUUMO経由)

詳細情報 リバティー浦安
物件紹介
リバティー浦安は東京メトロ東西線浦安駅から徒歩3分にあり、駅近で通勤通学に便利なマンションです。
このお部屋は2階以上に位置しているので、通行人や周囲の住人からの視線が気になりにくく、防犯面でも安心。建物のエントランスはオートロックがついており、インターホンにはTVモニタもついているため、相手の顔を確認してから来客対応することができます。
人気の角部屋で周囲の居住者の生活音も気になりにくく、また、フローリングのお部屋なのでお掃除もラクラク。キッチンはシステムキッチン仕様になっていますので、お料理好きの方にもぴったり。また、バス・トイレは別で、のんびりお風呂タイムも楽しめるでしょう。
通信設備面では、インターネットが無料で使えるので、月々の出費を抑えられるのも魅力です。また、CATVにも対応しているので、おうち時間も充実するでしょう(別途工事、CATVの契約料等が必要な場合あり)。
建物にはエレベーターがついているので、重い荷物があっても安心。共用部には宅配ボックスが設定されているので、不在の時にも荷物を受け取ることができます。
このお部屋は2階以上に位置しているので、通行人や周囲の住人からの視線が気になりにくく、防犯面でも安心。建物のエントランスはオートロックがついており、インターホンにはTVモニタもついているため、相手の顔を確認してから来客対応することができます。
人気の角部屋で周囲の居住者の生活音も気になりにくく、また、フローリングのお部屋なのでお掃除もラクラク。キッチンはシステムキッチン仕様になっていますので、お料理好きの方にもぴったり。また、バス・トイレは別で、のんびりお風呂タイムも楽しめるでしょう。
通信設備面では、インターネットが無料で使えるので、月々の出費を抑えられるのも魅力です。また、CATVにも対応しているので、おうち時間も充実するでしょう(別途工事、CATVの契約料等が必要な場合あり)。
建物にはエレベーターがついているので、重い荷物があっても安心。共用部には宅配ボックスが設定されているので、不在の時にも荷物を受け取ることができます。
お金・契約の情報
※「-」と表示されているものは、実際は料金が発生するものもございます。詳細はお問い合わせください。
| 家賃 | 25万円 | 管理費・共益費 | 1万円 |
|---|---|---|---|
| 敷金 | 50万円 | 礼金 | 25万円 |
| 入居決定でお祝い金最大100,000円 | |||
| 保証金 | - | 償却・敷引 | - |
| 住宅保険料 | - | 更新料 | - |
| 保証会社利用 | 必須 | 保証会社名 | - |
| 保証会社費用 | - | 保証会社備考 | 保証会社利用必 詳細はお問い合わせください |
| 契約形態 | - | 契約期間 | - |
| 入居・引渡期間 | 即時 | 現況 | - |
| 契約備考 | 当物件は「住まいのリライフ」で取り扱っております。リライフは首都圏25店舗のネットワークで豊富な物件情報をお客様へご提供します。当物件に類似した未公開物件なども合わせてご提案可能です。お気軽にお問合せください。 2LDK 二人入居可 損保【要】 バストイレ別、バルコニー、エアコン、クロゼット、フローリング、シャワー付洗面台、TVインターホン、オートロック、室内洗濯置、シューズボックス、システムキッチン、追焚機能浴室、角住戸、脱衣所、エレベーター、洗面所独立、駐輪場、宅配ボックス、CATV、光ファイバー、2面採光、最上階、3口以上コンロ、保証人不要、CATVインターネット、二人入居相談、全居室フローリング、2面バルコニー、3面採光、物置、ネット使用料不要、エアコン全室、エアコン3台、3駅以上利用可、上階無し、都市ガス、玄関収納、保証会社利用可、初期費用カード決済可、通風良好 | ||
部屋の情報
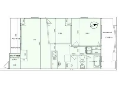
| 間取り | 2LDK | 専有面積 | 59m2 |
|---|---|---|---|
| 所在階 / 向き | 7階 / 北 | バルコニー面積 | - |
| 水道 / ガス | - | ||
| 設備 | バス・トイレ別、2階以上、オートロック、テレビドアホン、宅配ボックス、追い焚き、インターネット対応、システムキッチン、エアコン、エレベーター、角部屋、バルコニー、フローリング、洗髪洗面化粧台、2口コンロ、CATV、インターネット使用料無料、洗濯機:室内 | ||
| 当社物件ID | 159955850 | ||
建物の情報
| 建物名 | リバティー浦安 | ||
|---|---|---|---|
| 所在地 | 千葉県浦安市当代島 | ||
| 交通 | 東京メトロ東西線 浦安駅(千葉) 徒歩3分 東京メトロ東西線 南行徳駅 徒歩18分 東京メトロ東西線 葛西駅 徒歩29分 | ||
| 階数 | 地下1地上7階建 | 総戸数 | - |
| 築年月 | 1989年05月 / 築37年 | エレベーター | あり |
| 駐車場 | なし | バイク置き場 | - |
| 駐輪場 | あり | 管理人/管理会社 | - |
| 周辺環境 | その他 クリーニングヘイワ 葛西店(その他)まで1807m その他 ワイズマート 浦安本店(スーパー)まで74m その他 サミットストア 浦安駅北口店(スーパー)まで214m その他 ファミリーマート 浦安駅東口店(コンビニ)まで177m その他 セブン-イレブン 浦安駅南口店(コンビニ)まで240m その他 ウエルシア薬局浦安駅前店 (調剤薬局)(ドラッグストア)まで133m | ||
| 建物種別 | マンション | 建物構造 | SRC(鉄骨鉄筋コンクリート) |
この部屋の取扱い不動産会社
| 会社名 | (株)リライフ葛西店(SUUMO経由) | ||
|---|---|---|---|
| 所在地 | 東京都江戸川区東葛西6-4-19 HARUKAS 3階 | 交通 | - |
| 営業時間 | 10:00~18:30 | 定休日 | 火曜日水曜日(祝日を除く) |
| 免許番号 | 国土交通大臣10792 | 取引態様 | 仲介 |
| 不動産会社管理番号 | 100475251386 | 当社管理番号 | 89 |
| 所属団体 | (公社)東京都宅地建物取引業協会会員 | ||
| 公正取引協議会 | (公社)首都圏不動産公正取引協議会加盟 | ||
| 取扱い物件情報 | 物件詳細へ | ||
※各種情報と現状に差異がある場合は、現状優先となります。問い合わせをすることで、より詳しい条件、情報を確認する事ができます。
提供:(株)リライフ葛西店(SUUMO経由)
この物件が気になったら掲載期限まであと10日
リバティー浦安に条件(家賃・エリア)が近い物件一覧
| 写真 | 家賃 管理費等 | 敷金 礼金 | 間取り 専有面積 | 築年数 | 最寄り駅 所在地 | キープ | 詳細 |
|---|---|---|---|---|---|---|---|
マンション サンジョイアゼロ(2LDK/3階) | |||||||
![]() | 24.7万円 1.1万円 | なし 24.7万円 | 2LDK 65.71m2 | 築1年 | 東京地下鉄東西線 葛西駅 徒歩5分 東京都江戸川区中葛西5丁目 | 詳細を見る | |
マンション サロンオルセー市川(2LDK/3階) | |||||||
![]() | 15.6万円 8,000円 | 31.2万円 15.6万円 | 2LDK 61.64m2 | 築21年 | JR総武線 市川駅 徒歩9分 京成本線 市川真間駅 徒歩16分 京成本線 国府台駅 徒歩19分 千葉県市川市市川南 | 詳細を見る | |
一戸建て 武蔵野線 市川大野駅 徒歩9分 築1年(3LDK) | |||||||
![]() | 18.7万円 3,000円 | なし 18.7万円 | 3LDK 87.03m2 | 築1年 | 武蔵野線 市川大野駅 徒歩9分 千葉県市川市大野町2丁目 | 詳細を見る | |
アパート ハピネスハイム(4LDK/1階) | |||||||
![]() | 15万円 なし | 30万円 なし | 4LDK 88.2m2 | 築39年 | 東京地下鉄東西線 行徳駅 徒歩13分 東京地下鉄東西線 南行徳駅 徒歩18分 千葉県市川市香取1丁目 | 詳細を見る | |
マンション テラス本八幡(3LDK/地下階) | |||||||
![]() | 15.8万円 1万円 | 15.8万円 31.6万円 | 3LDK 80.4m2 | 築37年 | 総武・中央緩行線 本八幡駅 徒歩17分 東京都新宿線 本八幡駅 徒歩19分 千葉県市川市稲荷木1丁目 | 詳細を見る | |
マンション 西葛西田中ビル(3LDK/4階) | |||||||
![]() | 18.3万円 5,000円 | 18.3万円 なし | 3LDK 66.3m2 | 築38年 | 東京メトロ東西線 西葛西駅 徒歩5分 東京メトロ東西線 葛西駅 徒歩19分 JR京葉線 葛西臨海公園駅 徒歩34分 東京都江戸川区西葛西 | 詳細を見る | |
マンション コンフォリア東葛西(2SLDK/2階) | |||||||
![]() | 20.8万円 1.5万円 | 20.8万円 なし | 2SLDK 50.53m2 | 築1年 | 東京地下鉄東西線 葛西駅 徒歩9分 東京都江戸川区東葛西6丁目 | 詳細を見る | |








