賃貸マンション
コンフォリア東池袋ウエストの賃貸物件情報(ワンルーム/4階)
| 家賃 | 管理費等 | 敷金 | 礼金 | 間取り | 専有面積 |
|---|---|---|---|---|---|
| 11.6万円 | 8,000円 | 11.6万円 | なし | ワンルーム | 21.47m2 |
入居決定でお祝い金最大100,000円
- 保証金
- -
- 償却・敷引
- -
- 築年数
- 築17年
- 所在階
- 4階
- 向き
- 南東
Point
どこよりもお客様に寄り添ったサービスを提供いたします。池袋を拠点に、都内近郊幅広く対応しております。入居日や初期費用などお気軽にご相談ください!
提供:ピタットハウス池袋西口店(株)New Anchor(SUUMO経由)

詳細情報 コンフォリア東池袋ウエスト
物件紹介
コンフォリア東池袋ウエストは東京メトロ有楽町線東池袋駅から徒歩10分にあり、駅近で通勤通学に便利なマンションです。
このお部屋は2階以上に位置しているので通行人や周囲の住人からの視線が気になりにくく、建物のエントランスはオートロックがついているので防犯性が高くなっています。
人気の南向きのお部屋。また、フローリングなのでお掃除もラクラク。キッチンはシステムキッチン仕様になっていますので、お料理好きの方にもぴったり。バス・トイレは別なので、のんびりお風呂タイムも楽しめるでしょう。また、雨の日でも浴室乾燥機を使えば、お洗濯も問題ありません。
通信設備面では、インターネットが無料で使えるので、月々の出費を抑えられるのも魅力です。また、BSアンテナ・CSアンテナがありCATVにも対応しているので、おうち時間も充実するでしょう(別途工事、BS・CS・CATVの契約料等が必要な場合あり)。
建物にはエレベーターがついているので、重い荷物があっても安心。共用部には宅配ボックスが設定されているので、不在の時にも荷物を受け取ることができます。また、ペット飼育の相談ができますので、あなたの大切な家族の一員も快適に暮らせるか、ぜひ確認してみてください。
このお部屋は2階以上に位置しているので通行人や周囲の住人からの視線が気になりにくく、建物のエントランスはオートロックがついているので防犯性が高くなっています。
人気の南向きのお部屋。また、フローリングなのでお掃除もラクラク。キッチンはシステムキッチン仕様になっていますので、お料理好きの方にもぴったり。バス・トイレは別なので、のんびりお風呂タイムも楽しめるでしょう。また、雨の日でも浴室乾燥機を使えば、お洗濯も問題ありません。
通信設備面では、インターネットが無料で使えるので、月々の出費を抑えられるのも魅力です。また、BSアンテナ・CSアンテナがありCATVにも対応しているので、おうち時間も充実するでしょう(別途工事、BS・CS・CATVの契約料等が必要な場合あり)。
建物にはエレベーターがついているので、重い荷物があっても安心。共用部には宅配ボックスが設定されているので、不在の時にも荷物を受け取ることができます。また、ペット飼育の相談ができますので、あなたの大切な家族の一員も快適に暮らせるか、ぜひ確認してみてください。
お金・契約の情報
※「-」と表示されているものは、実際は料金が発生するものもございます。詳細はお問い合わせください。
| 家賃 | 11.6万円 | 管理費・共益費 | 8,000円 |
|---|---|---|---|
| 敷金 | 11.6万円 | 礼金 | なし |
| 入居決定でお祝い金最大100,000円 | |||
| 保証金 | - | 償却・敷引 | - |
| 住宅保険料 | - | 更新料 | - |
| 保証会社利用 | 必須 | 保証会社名 | - |
| 保証会社費用 | - | 保証会社備考 | 保証会社利用必 エポスカード(RP) 保証料:賃料等の50%(最低2万)、月額保証料:賃料等の1%(更新料無) |
| 契約形態 | - | 契約期間 | - |
| 入居・引渡期間 | - | 現況 | - |
| 入居可能条件 | ペット相談 | ||
| 契約備考 | 1F■指定保証会社利用必須 合計7.7万円(内訳:鍵交換代:33000円、清掃費:33000円、エアコン清掃費:11000円) ワンルーム ペット相談 損保【1.66万円2年】 バストイレ別、バルコニー、エアコン、ガスコンロ対応、クロゼット、フローリング、浴室乾燥機、オートロック、室内洗濯置、陽当り良好、シューズボックス、システムキッチン、脱衣所、エレベーター、洗面所独立、洗面化粧台、2口コンロ、駐輪場、宅配ボックス、CATV、外壁タイル張り、礼金不要、BS・CS、防犯カメラ、ペット相談、全居室洋室、敷金1ヶ月、バイク置場、全居室フローリング、2沿線利用可、ディンプルキー、CS、ネット使用料不要、2駅利用可、3駅以上利用可、3沿線以上利用可、駅徒歩10分以内、24時間ゴミ出し可、東南向き、全居室6畳以上、洗面所にドア、南面バルコニー、BS、保証会社利用可、IT重説対応物件、初期費用カード決済可 敷金積み増し【ペット飼育の場合敷金2ヶ月(総額)】 入居日:'26年6月中旬 | ||
部屋の情報
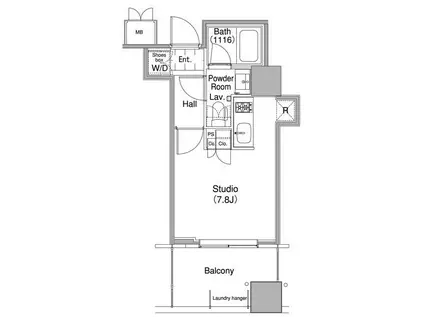
| 間取り | ワンルーム | 専有面積 | 21.47m2 |
|---|---|---|---|
| 所在階 / 向き | 4階 / 南東 | バルコニー面積 | - |
| 水道 / ガス | - | ||
| 設備 | バス・トイレ別、2階以上、オートロック、宅配ボックス、浴室乾燥機、インターネット対応、システムキッチン、エアコン、エレベーター、南向き、バルコニー、フローリング、洗髪洗面化粧台、2口コンロ、コンロ:ガス、CATV、CSアンテナ、BSアンテナ、インターネット使用料無料、洗濯機:室内 | ||
| 当社物件ID | 12946390 | ||
建物の情報
| 建物名 | コンフォリア東池袋ウエスト | ||
|---|---|---|---|
| 所在地 | 東京都豊島区東池袋 | ||
| 交通 | 東京メトロ有楽町線 東池袋駅 徒歩10分 JR山手線 大塚駅(東京) 徒歩11分 東京メトロ丸ノ内線 池袋駅 徒歩11分 | ||
| 階数 | 地下1地上13階建 | 総戸数 | 155戸 |
| 築年月 | 2009年06月 / 築17年 | エレベーター | あり |
| 駐車場 | なし | バイク置き場 | あり |
| 駐輪場 | あり | 管理人/管理会社 | - |
| 周辺環境 | その他 まいばすけっと東池袋2丁目店(スーパー)まで147m | ||
| 建物種別 | マンション | 建物構造 | RC(鉄筋コンクリート) |
この部屋の取扱い不動産会社
| 会社名 | ピタットハウス池袋西口店(株)New Anchor(SUUMO経由) | ||
|---|---|---|---|
| 所在地 | 東京都豊島区池袋2-68-9 MIBビル5階-A | 交通 | - |
| 営業時間 | 10時~18時 | 定休日 | 水曜 |
| 免許番号 | 東京都知事112838 | 取引態様 | 仲介 |
| 不動産会社管理番号 | 100501820578 | 当社管理番号 | 89 |
| 所属団体 | (公社)全日本不動産協会東京都本部会員 | ||
| 公正取引協議会 | (公社)首都圏不動産公正取引協議会加盟 | ||
| 取扱い物件情報 | 物件詳細へ | ||
※各種情報と現状に差異がある場合は、現状優先となります。問い合わせをすることで、より詳しい条件、情報を確認する事ができます。
提供:ピタットハウス池袋西口店(株)New Anchor(SUUMO経由)
この物件が気になったら掲載期限まであと12日
コンフォリア東池袋ウエストに条件(家賃・エリア)が近い物件一覧
| 写真 | 家賃 管理費等 | 敷金 礼金 | 間取り 専有面積 | 築年数 | 最寄り駅 所在地 | キープ | 詳細 |
|---|---|---|---|---|---|---|---|
マンション シャルマン文京千駄木(ワンルーム/5階) | |||||||
![]() | 7.6万円 7,000円 | なし 7.6万円 | ワンルーム 18.53m2 | 築50年 | 山手線 西日暮里駅 徒歩7分 東京地下鉄千代田線 千駄木駅 徒歩7分 山手線 田端駅 徒歩7分 東京都文京区千駄木3丁目 | 詳細を見る | |
マンション コンフォリア春日富坂(1K/5階) | |||||||
![]() | 11.6万円 7,000円 | 11.6万円 なし | 1K 21.47m2 | 築19年 | 東京地下鉄丸ノ内線 後楽園駅 徒歩7分 東京地下鉄南北線 後楽園駅 徒歩7分 東京都三田線 春日駅(東京) 徒歩8分 東京都文京区春日1丁目 | 詳細を見る | |
マンション LAPIS本駒込(1K/1階) | |||||||
![]() | 9.7万円 7,000円 | 4.85万円 14.55万円 | 1K 22.1m2 | 築7年 | 東京都三田線 千石駅 徒歩6分 東京地下鉄南北線 本駒込駅 徒歩7分 東京都三田線 白山駅(東京) 徒歩7分 東京都文京区本駒込1丁目 | 詳細を見る | |
マンション サンイング飯田橋(ワンルーム/8階) | |||||||
![]() | 12.7万円 1万円 | 12.7万円 12.7万円 | ワンルーム 25.73m2 | 築8年 | 東京地下鉄有楽町線 飯田橋駅 徒歩9分 東京地下鉄丸ノ内線 後楽園駅 徒歩9分 東京都大江戸線 春日駅(東京) 徒歩11分 東京都文京区後楽2丁目 | 詳細を見る | |
マンション ライオンズプラザ白山(1K/8階) | |||||||
![]() | 7.4万円 5,000円 | 7.4万円 7.4万円 | 1K 17.79m2 | 築33年 | 東京地下鉄南北線 本駒込駅 徒歩1分 東京都三田線 白山駅(東京) 徒歩5分 東京都文京区本駒込3丁目 | 詳細を見る | |
アパート GLANZWING音羽(ワンルーム/2階) | |||||||
![]() | 7.5万円 3,000円 | 7.5万円 7.5万円 | ワンルーム 16.26m2 | 築6年 | 東京地下鉄有楽町線 江戸川橋駅 徒歩5分 東京地下鉄有楽町線 護国寺駅 徒歩8分 東京地下鉄丸ノ内線 茗荷谷駅 徒歩14分 東京都文京区音羽1丁目 | 詳細を見る | |
マンション パークウェル千駄木弐番館(1K/9階) | |||||||
![]() | 8.9万円 4,000円 | なし 17.8万円 | 1K 20.16m2 | 築19年 | 山手線 田端駅 徒歩10分 東京地下鉄千代田線 千駄木駅 徒歩12分 東京地下鉄南北線 本駒込駅 徒歩12分 東京都文京区千駄木4丁目 | 詳細を見る | |
マンション SYNEX HON-KOMAGOME(1K/1階) | |||||||
![]() | 8.4万円 8,000円 | 8.4万円 8.4万円 | 1K 22.8m2 | 築19年 | 東京地下鉄南北線 本駒込駅 徒歩5分 東京都三田線 千石駅 徒歩10分 東京都三田線 白山駅(東京) 徒歩10分 東京都文京区本駒込1丁目 | 詳細を見る | |









