賃貸マンション
S-RESIDENCE四日市駅前COULEUR フリーレンの賃貸物件情報(1K/15階)
| 家賃 | 管理費等 | 敷金 | 礼金 | 間取り | 専有面積 |
|---|---|---|---|---|---|
| 7.95万円 | 8,500円 | なし | なし | 1K | 24.39m2 |
入居決定でお祝い金最大100,000円
- 保証金
- -
- 償却・敷引
- -
- 築年数
- 築1年
- 所在階
- 15階
- 向き
- 南
Point
オートロック完備の鉄筋コンクリートマンション♪
提供:いい部屋ネット大東建託リーシング(株)四日市店(SUUMO経由)

詳細情報 S-RESIDENCE四日市駅前COULEUR フリーレン
物件紹介
S-RESIDENCE四日市駅前COULEUR フリーレンは近鉄名古屋線近鉄四日市駅から徒歩2分にあり、駅近で通勤通学に便利なマンションです。
このお部屋は2階以上に位置しているので、通行人や周囲の住人からの視線が気になりにくく、防犯面でも安心。建物のエントランスはオートロックがついており、インターホンにはTVモニタもついているため、相手の顔を確認してから来客対応することができます。
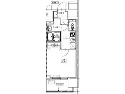
人気の南向き・フローリングのお部屋。角部屋でもあるため、周囲の居住者の生活音も気になりにくい場所です。キッチンはシステムキッチン仕様になっていますので、お料理好きの方にもぴったり。バス・トイレは別なので、のんびりお風呂タイムも楽しめるでしょう。また、雨の日でも浴室乾燥機を使えば、お洗濯も問題ありません。
通信設備面では、インターネットが無料で使えるので、月々の出費を抑えられるのも魅力です(別途工事等が必要な場合あり)。
建物にはエレベーターがついているので、重い荷物があっても安心。共用部には宅配ボックスが設定されているので、不在の時にも荷物を受け取ることができます。
このお部屋は2階以上に位置しているので、通行人や周囲の住人からの視線が気になりにくく、防犯面でも安心。建物のエントランスはオートロックがついており、インターホンにはTVモニタもついているため、相手の顔を確認してから来客対応することができます。
人気の南向き・フローリングのお部屋。角部屋でもあるため、周囲の居住者の生活音も気になりにくい場所です。キッチンはシステムキッチン仕様になっていますので、お料理好きの方にもぴったり。バス・トイレは別なので、のんびりお風呂タイムも楽しめるでしょう。また、雨の日でも浴室乾燥機を使えば、お洗濯も問題ありません。
通信設備面では、インターネットが無料で使えるので、月々の出費を抑えられるのも魅力です(別途工事等が必要な場合あり)。
建物にはエレベーターがついているので、重い荷物があっても安心。共用部には宅配ボックスが設定されているので、不在の時にも荷物を受け取ることができます。
お金・契約の情報
※「-」と表示されているものは、実際は料金が発生するものもございます。詳細はお問い合わせください。
| 家賃 | 7.95万円 | 管理費・共益費 | 8,500円 |
|---|---|---|---|
| 敷金 | なし | 礼金 | なし |
| 入居決定でお祝い金最大100,000円 | |||
| 保証金 | - | 償却・敷引 | - |
| 住宅保険料 | - | 更新料 | - |
| 保証会社利用 | 必須 | 保証会社名 | - |
| 保証会社費用 | - | 保証会社備考 | 保証会社利用必 近畿保証 初回保証料:総賃料の50% 1年更新:12,000円 法人契約(上場企業及びそれに準ずる企業)で、保証会社未加入の場合、敷金として賃料の1ヶ月分要 |
| 契約形態 | - | 契約期間 | - |
| 入居・引渡期間 | 即時 | 現況 | - |
| 契約備考 | 保険要加入/更新料1ヶ月/エアコンクリーニング(解約時)16,500円、(月額)330円駐輪場利用料※希望者のみ/法人契約時、敷金1ヶ月必要 合計3.3万円(内訳:鍵交換代3.3万円) 更新料 賃料1.00ヶ月分 室内清掃費用 33000円 1K 普通借家2年 損保【1.8万円2年】 エアコン、ガスコンロ対応、TVインターホン、浴室乾燥機、オートロック、角住戸、温水洗浄便座、エレベーター、洗面所独立、2口コンロ、駐輪場、宅配ボックス、防犯カメラ、2沿線利用可、ネット使用料不要、2駅利用可、3駅以上利用可、3沿線以上利用可、駅徒歩5分以内、駅徒歩10分以内、都市ガス | ||
部屋の情報
| 間取り | 1K | 専有面積 | 24.39m2 |
|---|---|---|---|
| 所在階 / 向き | 15階 / 南 | バルコニー面積 | - |
| 水道 / ガス | - | ||
| 設備 | 2階以上、オートロック、テレビドアホン、宅配ボックス、浴室乾燥機、インターネット対応、エアコン、エレベーター、温水洗浄便座、南向き、角部屋、洗髪洗面化粧台、2口コンロ、コンロ:ガス、インターネット使用料無料 | ||
| 当社物件ID | 160454128 | ||
建物の情報
| 建物名 | S-RESIDENCE四日市駅前COULEUR フリーレン | ||
|---|---|---|---|
| 所在地 | 三重県四日市市浜田町 | ||
| 交通 | 近鉄名古屋線 近鉄四日市駅 徒歩2分 JR関西本線 四日市駅 徒歩13分 四日市あすなろう鉄道 赤堀駅 徒歩17分 | ||
| 階数 | 15階建 | 総戸数 | 81戸 |
| 築年月 | 2026年01月 / 築1年 | エレベーター | あり |
| 駐車場 | なし | バイク置き場 | - |
| 駐輪場 | あり | 管理人/管理会社 | - |
| 周辺環境 | その他 近鉄百貨店 四日市店ふれあいモール(その他)まで290m その他 スーパーサンシ 一番街店(スーパー)まで278m その他 MEGAドンキ(その他)まで326m その他 スギ薬局(ドラッグストア)まで326m その他 ニトリ 四日市店(その他)まで757m その他 市立四日市病院(病院)まで326m | ||
| 建物種別 | マンション | 建物構造 | RC(鉄筋コンクリート) |
この部屋の取扱い不動産会社
| 会社名 | (株)ニッショー四日市支店(SUUMO経由) | ||
|---|---|---|---|
| 所在地 | 三重県四日市市浜田町 2-14 浜田マルキビル1F | 交通 | - |
| 営業時間 | 10:00~18:00 | 定休日 | 水曜定休 |
| 免許番号 | 国土交通大臣2018 | 取引態様 | 仲介 |
| 不動産会社管理番号 | 100487802451 | 当社管理番号 | 89 |
| 所属団体 | (公社)三重県宅地建物取引業協会会員 | ||
| 公正取引協議会 | 東海不動産公正取引協議会加盟 | ||
| 取扱い物件情報 | 物件詳細へ | ||
※各種情報と現状に差異がある場合は、現状優先となります。問い合わせをすることで、より詳しい条件、情報を確認する事ができます。
提供:(株)ニッショー四日市支店(SUUMO経由)
この物件が気になったら掲載期限まであと11日
S-RESIDENCE四日市駅前COULEUR フリーレンの空き部屋一覧
全部で62の空き部屋があります。
S-RESIDENCE四日市駅前COULEUR フリーレンに条件(家賃・エリア)が近い物件一覧
| 写真 | 家賃 管理費等 | 敷金 礼金 | 間取り 専有面積 | 築年数 | 最寄り駅 所在地 | キープ | 詳細 |
|---|---|---|---|---|---|---|---|
マンション タウンコートI(1LDK/1階) | |||||||
![]() | 6.3万円 5,500円 | なし 7万円 | 1LDK 33.34m2 | 築9年 | 近鉄名古屋線 新正駅 徒歩15分 近鉄名古屋線 海山道駅 徒歩20分 JR関西本線 四日市駅 徒歩20分 三重県四日市市曙町 | 詳細を見る | |
アパート スペリアージュ Ⅱ(2LDK/2階) | |||||||
![]() | 5.4万円 4,050円 | なし 5.4万円 | 2LDK 58.76m2 | 築13年 | 近鉄名古屋線 伊勢朝日駅 徒歩9分 三重県三重郡朝日町大字小向 | 詳細を見る | |
アパート リーブルファイン大治田Ⅲ 2号棟(1LDK/1階) | |||||||
![]() | 5.7万円 4,000円 | 5.7万円 5.7万円 | 1LDK 37.88m2 | 築1年 | 四日市あすなろう 追分駅(三重) 徒歩10分 四日市あすなろう 小古曽駅 徒歩10分 三重県四日市市 | 詳細を見る | |
アパート マウンテンローレルN(1LDK/1階) | |||||||
![]() | 5.8万円 2,300円 | なし 5.8万円 | 1LDK 43.66m2 | 築19年 | 三重県桑名市陽だまりの丘 | 詳細を見る | |
アパート パルミエ Ⅰ(2LDK/1階) | |||||||
![]() | 8.8万円 5,500円 | なし 17.6万円 | 2LDK 59.67m2 | 新築 | 近鉄鈴鹿線 鈴鹿市駅 徒歩10分 三重県鈴鹿市須賀3丁目 | 詳細を見る | |
マンション S-RESIDENCE四日市市堀木AMANTE(1K/7階) | |||||||
![]() | 6.75万円 8,000円 | なし なし | 1K 27.08m2 | 築1年 | 近鉄名古屋線 川原町駅 徒歩16分 近鉄湯の山線 中川原駅 徒歩16分 近鉄名古屋線 近鉄四日市駅 徒歩17分 三重県四日市市堀木 | 詳細を見る | |
アパート グランモアJII(1K/1階) | |||||||
![]() | 5.6万円 4,500円 | なし 5.6万円 | 1K 30.03m2 | 築19年 | 三岐鉄道北勢線 楚原駅 徒歩12分 三重県いなべ市員弁町笠田新田 | 詳細を見る | |
アパート レオパレスシスル(1K/2階) | |||||||
![]() | 5.2万円 5,000円 | なし 5.2万円 | 1K 19.87m2 | 築24年 | 近鉄名古屋線 近鉄四日市駅 徒歩17分 三重県四日市市城東町 | 詳細を見る | |








