賃貸マンション
ビレッジハウス石生2号棟の賃貸物件情報(3DK/1階)
| 家賃 | 管理費等 | 敷金 | 礼金 | 間取り | 専有面積 |
|---|---|---|---|---|---|
| 4.98万円 | なし | なし | なし | 3DK | 53.08m2 |
入居決定でお祝い金最大100,000円
- 保証金
- -
- 償却・敷引
- -
- 築年数
- 築34年
- 所在階
- 1階
- 向き
- 南
Point
まずはお問い合わせ!
不動産会社は街のプロ、あなたに合った物件がきっと見つかります。
提供:ビレッジハウス住まい相談センター

詳細情報 ビレッジハウス石生2号棟
物件紹介
ビレッジハウス石生2号棟は福知山線石生駅から徒歩11分にあるマンションです。
このお部屋のインターホンにはTVモニタがついているため、相手の顔を確認してから来客対応することができます。
人気の南向きのお部屋。バス・トイレ別の仕様で、のんびりお風呂タイムも楽しめます。
このお部屋のインターホンにはTVモニタがついているため、相手の顔を確認してから来客対応することができます。
人気の南向きのお部屋。バス・トイレ別の仕様で、のんびりお風呂タイムも楽しめます。
お金・契約の情報
※「-」と表示されているものは、実際は料金が発生するものもございます。詳細はお問い合わせください。
| 家賃 | 4.98万円 | 管理費・共益費 | なし |
|---|---|---|---|
| 敷金 | なし | 礼金 | なし |
| フリーレント | 1ヶ月 | ||
| 入居決定でお祝い金最大100,000円 | |||
| 保証金 | - | 償却・敷引 | - |
| 住宅保険料 | 1万円(2年) | 更新料 | - |
| 保証会社利用 | - | 保証会社名 | - |
| 保証会社費用 | - | 保証会社備考 | - |
| 契約形態 | - | 契約期間 | - |
| 入居・引渡期間 | - | 現況 | 空室 |
| 入居可能条件 | 2人入居可、高齢者相談、学生可 | ||
| 契約備考 | 契約種類:普通契約、24時間緊急対応、ウォシュレット、ウォームレット | ||
部屋の情報
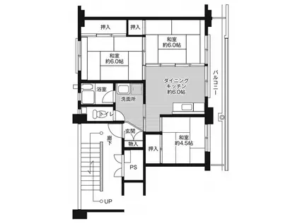
| 間取り | 3DK | 専有面積 | 53.08m2 |
|---|---|---|---|
| 所在階 / 向き | 1階 / 南 | バルコニー面積 | - |
| 水道 / ガス | - | ||
| 設備 | バス・トイレ別、テレビドアホン、追い焚き、エアコン、バルコニー、給湯、洗濯機:室内 | ||
| 当社物件ID | 25126865 | ||
建物の情報
| 建物名 | ビレッジハウス石生2号棟 | ||
|---|---|---|---|
| 所在地 | 兵庫県丹波市氷上町石生77 | ||
| 交通 | 福知山線 石生駅 徒歩11分 福知山線 黒井駅(兵庫) 徒歩51分 福知山線 柏原駅(兵庫) 徒歩51分 | ||
| 階数 | 5階建 | 総戸数 | - |
| 築年月 | 1992年07月 / 築34年 | エレベーター | - |
| 駐車場 | 空有 3,300円/月 円 | バイク置き場 | - |
| 駐輪場 | - | 管理人/管理会社 | 日勤 |
| 建物種別 | マンション | 建物構造 | RC(鉄筋コンクリート) |
この部屋の取扱い不動産会社
| 会社名 | ビレッジハウス住まい相談センター | ||
|---|---|---|---|
| 所在地 | 愛知県名古屋市中区大須4-10-32 上前津KDビル5階 | 交通 | 名城線「上前津駅」徒歩3分 |
| 営業時間 | 平日:9:00-18:30/土日祝:9:00-18:00 | 定休日 | 年中無休(年末年始を除く) |
| 免許番号 | 東京都知事(2)第100758号 | 取引態様 | 貸主 |
| 不動産会社管理番号 | 00013829486 | 当社管理番号 | 459 |
| 所属団体 | 公益社団法人東京都宅地建物取引業協会会員 日本賃貸住宅管理協会会員 | ||
| 取扱い物件情報 | 物件詳細へ | ||
※各種情報と現状に差異がある場合は、現状優先となります。問い合わせをすることで、より詳しい条件、情報を確認する事ができます。
提供:ビレッジハウス住まい相談センター
この物件が気になったら掲載期限まであと13日
ビレッジハウス石生2号棟に条件(家賃・エリア)が近い物件一覧
| 写真 | 家賃 管理費等 | 敷金 礼金 | 間取り 専有面積 | 築年数 | 最寄り駅 所在地 | キープ | 詳細 |
|---|---|---|---|---|---|---|---|
アパート ボヌールメゾン篠山(2LDK/2階) | |||||||
![]() | 7.75万円 4,100円 | なし 7.75万円 | 2LDK 61.27m2 | 築3年 | 福知山線 篠山口駅 徒歩12分 福知山線 丹波大山駅 徒歩23分 福知山線 南矢代駅 徒歩44分 兵庫県丹波篠山市味間新中澤ノ坪 | 詳細を見る | |
アパート クレール丹波篠山(1LDK/1階) | |||||||
![]() | 5.9万円 3,900円 | なし 2.95万円 | 1LDK 50.05m2 | 築1年 | 兵庫県丹波篠山市西岡屋甲 | 詳細を見る | |
アパート カーサ K スワン(2LDK/2階) | |||||||
![]() | 7.9万円 3,500円 | なし 7.9万円 | 2LDK 59.55m2 | 築1年 | 福知山線 石生駅 徒歩19分 兵庫県丹波市柏原町南多田 | 詳細を見る | |
アパート フォレストヴィラ(1LDK/1階) | |||||||
![]() | 6.3万円 4,000円 | 6.3万円 6.3万円 | 1LDK 40.19m2 | 築4年 | 福知山線 石生駅 徒歩40分 兵庫県丹波市氷上町市辺 | 詳細を見る | |
アパート ブリーゼ西岡屋(1LDK/1階) | |||||||
![]() | 6万円 4,100円 | なし 8.5万円 | 1LDK 50.16m2 | 築3年 | 福知山線 丹波大山駅 徒歩51分 福知山線 南矢代駅 徒歩55分 兵庫県丹波篠山市西岡屋スクミノ坪甲 | 詳細を見る | |
アパート デスパシオ氷上(1LDK/1階) | |||||||
![]() | 6.2万円 4,400円 | なし 2万円 | 1LDK 50.01m2 | 築1年 | 兵庫県丹波市氷上町常楽 | 詳細を見る | |
アパート ヴェルサン・アベニュⅠ(2LDK/2階) | |||||||
![]() | 5.4万円 2,000円 | なし なし | 2LDK 58.48m2 | 築21年 | 兵庫県西脇市小坂町 | 詳細を見る | |
一戸建て 加古川線 西脇市駅 徒歩15分 築45年(5LDK) | |||||||
![]() | 6.8万円 なし | 6.8万円 10万円 | 5LDK 106.22m2 | 築45年 | 加古川線 西脇市駅 徒歩15分 加古川線 新西脇駅 徒歩29分 兵庫県西脇市野村町 | 詳細を見る | |









