賃貸アパート
サニーガーデン杉塚の賃貸物件情報(1LDK/2階)
| 家賃 | 管理費等 | 敷金 | 礼金 | 間取り | 専有面積 |
|---|---|---|---|---|---|
| 6.6万円 | 3,000円 | なし | 6.6万円 | 1LDK | 35.05m2 |
入居決定でお祝い金最大100,000円
- 保証金
- -
- 償却・敷引
- -
- 築年数
- 新築
- 所在階
- 2階
- 向き
- -
Point
当店では初期費用クレジット払い、分割払い相談可能。筑紫野市・太宰府市の賃貸物件はいい部屋ネット二日市店/(株)トーマスリビングにお任せください。
提供:いい部屋ネット二日市店(株)トーマスリビング(SUUMO経由)

詳細情報 サニーガーデン杉塚
物件紹介
サニーガーデン杉塚はJR鹿児島本線都府楼南駅から徒歩11分にあるアパートです。
このお部屋は2階以上に位置しているので、通行人や周囲の住人からの視線が気になりにくく、防犯面でも安心。建物のエントランスはオートロックがついており、インターホンにはTVモニタもついているため、相手の顔を確認してから来客対応することができます。
おしゃれなデザイナーズ物件!人気の南向き・フローリングのお部屋。角部屋でもあるため、周囲の居住者の生活音も気になりにくい場所です。キッチンはシステムキッチン仕様になっていますので、お料理好きの方にもぴったり。バス・トイレは別なので、のんびりお風呂タイムも楽しめるでしょう。また、雨の日でも浴室乾燥機を使えば、お洗濯も問題ありません。
通信設備面では、インターネットが無料で使えるので、月々の出費を抑えられるのも魅力です(別途工事等が必要な場合あり)。
ペット飼育の相談ができますので、あなたの大切な家族の一員も快適に暮らせるか、ぜひ確認してみてください。
このお部屋は2階以上に位置しているので、通行人や周囲の住人からの視線が気になりにくく、防犯面でも安心。建物のエントランスはオートロックがついており、インターホンにはTVモニタもついているため、相手の顔を確認してから来客対応することができます。
おしゃれなデザイナーズ物件!人気の南向き・フローリングのお部屋。角部屋でもあるため、周囲の居住者の生活音も気になりにくい場所です。キッチンはシステムキッチン仕様になっていますので、お料理好きの方にもぴったり。バス・トイレは別なので、のんびりお風呂タイムも楽しめるでしょう。また、雨の日でも浴室乾燥機を使えば、お洗濯も問題ありません。
通信設備面では、インターネットが無料で使えるので、月々の出費を抑えられるのも魅力です(別途工事等が必要な場合あり)。
ペット飼育の相談ができますので、あなたの大切な家族の一員も快適に暮らせるか、ぜひ確認してみてください。
お金・契約の情報
※「-」と表示されているものは、実際は料金が発生するものもございます。詳細はお問い合わせください。
| 家賃 | 6.6万円 | 管理費・共益費 | 3,000円 |
|---|---|---|---|
| 敷金 | なし | 礼金 | 6.6万円 |
| 入居決定でお祝い金最大100,000円 | |||
| 保証金 | - | 償却・敷引 | - |
| 住宅保険料 | - | 更新料 | - |
| 保証会社利用 | 必須 | 保証会社名 | - |
| 保証会社費用 | - | 保証会社備考 | 保証会社利用必 初回保証料:月額総賃料の60% |
| 契約形態 | - | 契約期間 | - |
| 入居・引渡期間 | - | 現況 | - |
| 入居可能条件 | ペット相談 | ||
| 契約備考 | 店内の換気・消毒をしてお客様のご来店をお待ちしています。初期費用のクレジットカード払い可(分割可能)です。他の会社様が掲載している物件でもご紹介可能です。◆公共交通機関をご利用して来られる方は、駅までの送迎サービスを行っています。◆仲介手数料0円の物件も取り扱っております。◆電話・Line・メールにて対応可能です。お急ぎの方はお電話下さい。メールの場合お返事に1日頂く場合も御座います。 合計0.55万円(内訳:ネット初期設定費5500円) 24時間サポート880円/月 1LDK ペット相談 普通借家2年 損保【2万円2年】 バストイレ別、エアコン、クロゼット、フローリング、TVインターホン、浴室乾燥機、オートロック、室内洗濯置、システムキッチン、温水洗浄便座、脱衣所、洗面所独立、洗面化粧台、2口コンロ、閑静な住宅地、敷金不要、ペット相談、保証人不要、全居室フローリング、デザイナーズ、2沿線利用可、駅まで平坦、ネット使用料不要、緑豊かな住宅地、築2年以内、駐車3台可、未入居、3駅以上利用可、プロパンガス、礼金1ヶ月、IT重説対応物件、初期費用カード決済可 入居日:'26年3月上旬 | ||
部屋の情報
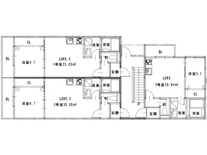
| 間取り | 1LDK | 専有面積 | 35.05m2 |
|---|---|---|---|
| 所在階 / 向き | 2階 / - | バルコニー面積 | - |
| 水道 / ガス | - | ||
| 設備 | バス・トイレ別、2階以上、オートロック、テレビドアホン、浴室乾燥機、インターネット対応、システムキッチン、エアコン、温水洗浄便座、フローリング、洗髪洗面化粧台、2口コンロ、デザイナーズ、インターネット使用料無料、洗濯機:室内 | ||
| 当社物件ID | 160065304 | ||
建物の情報
| 建物名 | サニーガーデン杉塚 | ||
|---|---|---|---|
| 所在地 | 福岡県筑紫野市杉塚 | ||
| 交通 | JR鹿児島本線 都府楼南駅 徒歩11分 西鉄天神大牟田線 西鉄二日市駅 徒歩22分 JR鹿児島本線 二日市駅 徒歩24分 | ||
| 階数 | 3階建 | 総戸数 | - |
| 築年月 | 2026年03月 / 新築 | エレベーター | - |
| 駐車場 | 空有 9900円/駐3台可 | バイク置き場 | - |
| 駐輪場 | - | 管理人/管理会社 | - |
| 周辺環境 | その他 TRIAL smart 筑紫野店(スーパー)まで313m その他 福神調剤薬局大佐野店(ドラッグストア)まで882m その他 ホームセンターグッデイ 二日市店(ホームセンター)まで1820m その他 ルミエール 太宰府店(ショッピングセンター)まで526m その他 セブンイレブン 筑紫野杉塚店(コンビニ)まで229m | ||
| 建物種別 | アパート | 建物構造 | 木造 |
この部屋の取扱い不動産会社
| 会社名 | いい部屋ネット二日市店(株)トーマスリビング(SUUMO経由) | ||
|---|---|---|---|
| 所在地 | 福岡県筑紫野市二日市中央6-1-2 | 交通 | - |
| 営業時間 | 9:30~18:30 | 定休日 | なし |
| 免許番号 | 国土交通大臣8479 | 取引態様 | 仲介 |
| 不動産会社管理番号 | 100477500000 | 当社管理番号 | 89 |
| 所属団体 | (公社)全日本不動産協会福岡県本部会員 | ||
| 公正取引協議会 | (一社)九州不動産公正取引協議会加盟 | ||
| 取扱い物件情報 | 物件詳細へ | ||
※各種情報と現状に差異がある場合は、現状優先となります。問い合わせをすることで、より詳しい条件、情報を確認する事ができます。
提供:いい部屋ネット二日市店(株)トーマスリビング(SUUMO経由)
この物件が気になったら掲載期限まであと10日
サニーガーデン杉塚に条件(家賃・エリア)が近い物件一覧
| 写真 | 家賃 管理費等 | 敷金 礼金 | 間取り 専有面積 | 築年数 | 最寄り駅 所在地 | キープ | 詳細 |
|---|---|---|---|---|---|---|---|
アパート エスペラールⅠ(1LDK/3階) | |||||||
![]() | 5.95万円 2,500円 | なし 8万円 | 1LDK 52.99m2 | 築14年 | 福岡県大野城市乙金東3丁目 | 詳細を見る | |
マンション 西鉄天神大牟田線 雑餉隈駅 徒歩13分 築32年(3LDK/3階) | |||||||
![]() | 7.9万円 3,500円 | なし 15.8万円 | 3LDK 69m2 | 築32年 | 西鉄天神大牟田線 雑餉隈駅 徒歩13分 西鉄天神大牟田線 春日原駅 徒歩16分 鹿児島本線 南福岡駅 徒歩17分 福岡県大野城市山田1丁目 | 詳細を見る | |
マンション アゼリアⅡ(3LDK/4階) | |||||||
![]() | 9.2万円 5,000円 | なし 18.4万円 | 3LDK 62.72m2 | 築27年 | 西鉄天神大牟田線 春日原駅 徒歩12分 鹿児島本線 春日駅(福岡) 徒歩17分 西鉄天神大牟田線 雑餉隈駅 徒歩25分 福岡県大野城市筒井2丁目 | 詳細を見る | |
アパート カーサ壱番館(2DK/2階) | |||||||
![]() | 4.1万円 1,500円 | なし なし | 2DK 39.73m2 | 築36年 | 西鉄天神大牟田線 桜並木駅 徒歩36分 福岡県大野城市 | 詳細を見る | |
アパート サンマリノ(2LDK/1階) | |||||||
![]() | 6.5万円 4,000円 | なし 13万円 | 2LDK 55.44m2 | 築24年 | 鹿児島本線 水城駅 徒歩34分 福岡県大野城市南ケ丘4丁目 | 詳細を見る | |
マンション サンライト村上(2K/4階) | |||||||
![]() | 4.8万円 3,400円 | なし なし | 2K 37.76m2 | 築28年 | 鹿児島本線 笹原駅 徒歩22分 西鉄天神大牟田線 井尻駅 徒歩29分 福岡県大野城市仲畑1丁目 | 詳細を見る | |
アパート フラワーポテト正弥Ⅱ(3DK/2階) | |||||||
![]() | 5.2万円 3,000円 | なし なし | 3DK 59m2 | 築29年 | 福岡県大野城市月の浦1丁目 | 詳細を見る | |
アパート レオパレス御笠川ウエスト(1K/1階) | |||||||
![]() | 4万円 4,500円 | なし 4万円 | 1K 23.71m2 | 築22年 | 西鉄天神大牟田線 雑餉隈駅 徒歩22分 西鉄天神大牟田線 春日原駅 徒歩28分 福岡県大野城市御笠川1丁目 | 詳細を見る | |









