賃貸マンション
ジェノヴィア学芸大学の賃貸物件情報(1K/2階)
| 家賃 | 管理費等 | 敷金 | 礼金 | 間取り | 専有面積 |
|---|---|---|---|---|---|
| 14.3万円 | 1万円 | なし | なし | 1K | 25.46m2 |
入居決定でお祝い金最大100,000円
- 保証金
- -
- 償却・敷引
- -
- 築年数
- 築3年
- 所在階
- 2階
- 向き
- 南
Point
宅配BOX付き。不在時の受け取りがとても便利で玄関を開けて対応する必要が無いので防犯にも役立ちます。主要採光面が南向きで、1日を通して日当たり良好です。女性やお子様にも安心のオートロック付き物件です。
提供:恵比寿不動産 恵比寿店(株)ライフアドバンス(SUUMO経由)

詳細情報 ジェノヴィア学芸大学
物件紹介
ジェノヴィア学芸大学は東急東横線学芸大学駅から徒歩12分にあるマンションです。
このお部屋は2階以上に位置しているので、通行人や周囲の住人からの視線が気になりにくく、防犯面でも安心。建物のエントランスはオートロックがついており、インターホンにはTVモニタもついているため、相手の顔を確認してから来客対応することができます。
人気の南向きのお部屋。また、フローリングなのでお掃除もラクラク。キッチンはシステムキッチン仕様になっていますので、お料理好きの方にもぴったり。バス・トイレは別なので、のんびりお風呂タイムも楽しめるでしょう。また、雨の日でも浴室乾燥機を使えば、お洗濯も問題ありません。
通信設備面では、インターネットが無料で使えるので、月々の出費を抑えられるのも魅力です。また、BSアンテナ・CSアンテナがありCATVにも対応しているので、おうち時間も充実するでしょう(別途工事、BS・CS・CATVの契約料等が必要な場合あり)。
建物にはエレベーターがついているので、重い荷物があっても安心。共用部には宅配ボックスが設定されているので、不在の時にも荷物を受け取ることができます。また、ペット飼育の相談ができますので、あなたの大切な家族の一員も快適に暮らせるか、ぜひ確認してみてください。
このお部屋は2階以上に位置しているので、通行人や周囲の住人からの視線が気になりにくく、防犯面でも安心。建物のエントランスはオートロックがついており、インターホンにはTVモニタもついているため、相手の顔を確認してから来客対応することができます。
人気の南向きのお部屋。また、フローリングなのでお掃除もラクラク。キッチンはシステムキッチン仕様になっていますので、お料理好きの方にもぴったり。バス・トイレは別なので、のんびりお風呂タイムも楽しめるでしょう。また、雨の日でも浴室乾燥機を使えば、お洗濯も問題ありません。
通信設備面では、インターネットが無料で使えるので、月々の出費を抑えられるのも魅力です。また、BSアンテナ・CSアンテナがありCATVにも対応しているので、おうち時間も充実するでしょう(別途工事、BS・CS・CATVの契約料等が必要な場合あり)。
建物にはエレベーターがついているので、重い荷物があっても安心。共用部には宅配ボックスが設定されているので、不在の時にも荷物を受け取ることができます。また、ペット飼育の相談ができますので、あなたの大切な家族の一員も快適に暮らせるか、ぜひ確認してみてください。
お金・契約の情報
※「-」と表示されているものは、実際は料金が発生するものもございます。詳細はお問い合わせください。
| 家賃 | 14.3万円 | 管理費・共益費 | 1万円 |
|---|---|---|---|
| 敷金 | なし | 礼金 | なし |
| フリーレント | あり | ||
| 入居決定でお祝い金最大100,000円 | |||
| 保証金 | - | 償却・敷引 | - |
| 住宅保険料 | - | 更新料 | - |
| 保証会社利用 | 必須 | 保証会社名 | - |
| 保証会社費用 | - | 保証会社備考 | 保証会社利用必 ルームバンクインシュア 一番手「RBI」初回保証料:50%(ペット飼育時100%) 外国籍:100%+外国籍サポート年間10,800円 (※審査により変更有・要確認) 外国籍家賃:クレカQR決 |
| 契約形態 | - | 契約期間 | - |
| 入居・引渡期間 | - | 現況 | - |
| 入居可能条件 | ペット相談 | ||
| 契約備考 | 合計22.53万円(内訳:鍵交換代:27500円/エアコン内部洗浄(1台あたり):165000円/外国人サポートプラン:10800円/消臭抗菌サービス:11000円/契約事務手数料:11000円) 更新料新賃料(ヶ月):1.00ヶ月 1K 二人入居可/ペット相談/ルームシェア相談/フリーレント1ヶ月賃料フリーレント1ヶ月つき! 普通借家2年 損保【要】 バストイレ別、バルコニー、エアコン、ガスコンロ対応、クロゼット、フローリング、TVインターホン、浴室乾燥機、オートロック、室内洗濯置、シューズボックス、システムキッチン、南向き、温水洗浄便座、エレベーター、洗面所独立、2口コンロ、宅配ボックス、外壁タイル張り、礼金不要、BS・CS、敷金不要、防犯カメラ、ペット相談、照明付、全居室収納、保証人不要、二人入居相談、全居室フローリング、ディンプルキー、ネット専用回線、ネット使用料不要、フリーレント、エアコン全室、ダブルロックキー、保証金不要、24時間換気システム、ルームシェア相談、築3年以内、人感照明センサー、24時間ゴミ出し可、都市ガス、南面バルコニー、オートライト、敷金・礼金不要、初期費用カード決済可 入居日:'26年4月中旬 | ||
部屋の情報
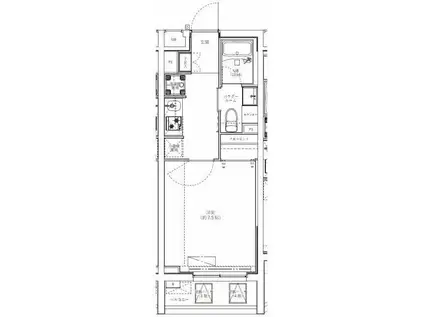
| 間取り | 1K | 専有面積 | 25.46m2 |
|---|---|---|---|
| 所在階 / 向き | 2階 / 南 | バルコニー面積 | - |
| 水道 / ガス | - | ||
| 設備 | バス・トイレ別、2階以上、オートロック、テレビドアホン、宅配ボックス、浴室乾燥機、インターネット対応、システムキッチン、エアコン、エレベーター、温水洗浄便座、南向き、バルコニー、フローリング、洗髪洗面化粧台、2口コンロ、コンロ:ガス、CSアンテナ、BSアンテナ、インターネット使用料無料、洗濯機:室内 | ||
| 当社物件ID | 147435344 | ||
建物の情報
| 建物名 | ジェノヴィア学芸大学 | ||
|---|---|---|---|
| 所在地 | 東京都目黒区目黒本町 | ||
| 交通 | 東急東横線 学芸大学駅 徒歩12分 東急目黒線 武蔵小山駅 徒歩20分 東急東横線 祐天寺駅 徒歩21分 | ||
| 階数 | 5階建 | 総戸数 | - |
| 築年月 | 2023年06月 / 築3年 | エレベーター | あり |
| 駐車場 | なし | バイク置き場 | - |
| 駐輪場 | - | 管理人/管理会社 | - |
| 周辺環境 | その他 GAKUDAI KOUKASHITA(ショッピングセンター)まで1050m その他 まいばすけっと目黒本町2丁目店(スーパー)まで220m その他 セブンイレブン目黒本町2丁目店(コンビニ)まで240m その他 サンドラッグ学芸大学駅前店(ドラッグストア)まで840m その他 丸石家具(株)(ホームセンター)まで900m その他 イオンスタイル碑文谷(ショッピングセンター)まで930m | ||
| 建物種別 | マンション | 建物構造 | RC(鉄筋コンクリート) |
この部屋の取扱い不動産会社
| 会社名 | 恵比寿不動産 (株)ライフアドバンス(SUUMO経由) | ||
|---|---|---|---|
| 所在地 | 東京都渋谷区東3-25-11 TOKYU REIT恵比寿ビル4階 | 交通 | - |
| 営業時間 | 10時から19時 | 定休日 | 水曜日 |
| 免許番号 | 東京都知事97301 | 取引態様 | 仲介 |
| 不動産会社管理番号 | 100484696719 | 当社管理番号 | 89 |
| 所属団体 | (公社)全日本不動産協会東京都本部会員 | ||
| 公正取引協議会 | (公社)首都圏不動産公正取引協議会加盟 | ||
| 取扱い物件情報 | 物件詳細へ | ||
※各種情報と現状に差異がある場合は、現状優先となります。問い合わせをすることで、より詳しい条件、情報を確認する事ができます。
提供:恵比寿不動産 (株)ライフアドバンス(SUUMO経由)
この物件が気になったら掲載期限まであと10日
ジェノヴィア学芸大学に条件(家賃・エリア)が近い物件一覧
| 写真 | 家賃 管理費等 | 敷金 礼金 | 間取り 専有面積 | 築年数 | 最寄り駅 所在地 | キープ | 詳細 |
|---|---|---|---|---|---|---|---|
マンション ARCOBALENO UMEYASHIKI(1K/5階) | |||||||
![]() | 10.5万円 1.5万円 | なし 10.5万円 | 1K 25.75m2 | 築2年 | 京急本線 梅屋敷駅(東京) 徒歩11分 京急本線 大森町駅 徒歩15分 京急本線 京急蒲田駅 徒歩19分 東京都大田区北糀谷 | 詳細を見る | |
マンション RJRプレシア蒲田(1LDK/5階) | |||||||
![]() | 15.9万円 1.2万円 | 15.9万円 なし | 1LDK 31.4m2 | 新築 | 京浜東北・根岸線 蒲田駅 徒歩10分 東京都大田区西蒲田4丁目 | 詳細を見る | |
マンション ラティエラ大鳥居(1LDK/8階) | |||||||
![]() | 18.8万円 1.2万円 | 18.8万円 18.8万円 | 1LDK 41.07m2 | 築4年 | 京急空港線 大鳥居駅 徒歩6分 京急空港線 糀谷駅 徒歩9分 京急空港線 穴守稲荷駅 徒歩17分 東京都大田区萩中 | 詳細を見る | |
アパート コーポなごみ(3DK/1階) | |||||||
![]() | 12万円 2,000円 | 12万円 12万円 | 3DK 70.8m2 | 築58年 | 東急池上線 千鳥町駅 徒歩14分 東急多摩川線 武蔵新田駅 徒歩19分 東京都浅草線 西馬込駅 徒歩19分 東京都大田区久が原5丁目 | 詳細を見る | |
タウンハウス 大田菜園長屋(2LDK) | |||||||
![]() | 15.4万円 5,000円 | 15.4万円 23.1万円 | 2LDK 52.17m2 | 築10年 | 京浜急行電鉄本線 雑色駅 徒歩8分 京浜急行電鉄本線 六郷土手駅 徒歩13分 東京都大田区東六郷3丁目 | 詳細を見る | |
アパート フォレスタ世田谷(2LDK/2階) | |||||||
![]() | 17.5万円 1,000円 | 17.5万円 17.5万円 | 2LDK 47.7m2 | 築55年 | 東急池上線 雪が谷大塚駅 徒歩6分 東急東横線 田園調布駅 徒歩16分 東急目黒線 多摩川駅 徒歩16分 東京都世田谷区東玉川 | 詳細を見る | |
マンション アーデン目黒不動前(1K/3階) | |||||||
![]() | 12.4万円 8,000円 | なし なし | 1K 23.85m2 | 築22年 | 東急目黒線 不動前駅 徒歩4分 JR山手線 大崎駅 徒歩7分 東急東横線 中目黒駅 徒歩7分 東京都品川区西五反田 | 詳細を見る | |







