賃貸マンション
エステムコート神戸湊町の賃貸物件情報(1K/9階)
| 家賃 | 管理費等 | 敷金 | 礼金 | 間取り | 専有面積 |
|---|---|---|---|---|---|
| 6.05万円 | 5,470円 | なし | なし | 1K | 21.66m2 |
入居決定でお祝い金最大100,000円
- 保証金
- -
- 償却・敷引
- -
- 築年数
- 築4年
- 所在階
- 9階
- 向き
- 北東
Point
共用部には宅配ボックスを設置しているため、荷物の受け取りのために早く帰宅する必要がありません。室内設備は洗面所独立・浴室乾燥機などが揃っており、とても充実しています。
提供:(株)SuMirai(SUUMO経由)

詳細情報 エステムコート神戸湊町
物件紹介
エステムコート神戸湊町はJR東海道本線神戸駅から徒歩10分にあり、駅近で通勤通学に便利なマンションです。
このお部屋は2階以上に位置しているので、通行人や周囲の住人からの視線が気になりにくく、防犯面でも安心。建物のエントランスはオートロックがついており、インターホンにはTVモニタもついているため、相手の顔を確認してから来客対応することができます。
おしゃれなデザイナーズ物件!フローリングのお部屋なのでお掃除もラクラク。キッチンはシステムキッチン仕様になっていますので、お料理好きの方にもぴったり。バス・トイレは別なので、のんびりお風呂タイムも楽しめるでしょう。また、雨の日でも浴室乾燥機を使えば、お洗濯も問題ありません。
通信設備面では、インターネットが無料で使えるので、月々の出費を抑えられるのも魅力です。また、BSアンテナ・CSアンテナがありCATVにも対応しているので、おうち時間も充実するでしょう(別途工事、BS・CS・CATVの契約料等が必要な場合あり)。
建物にはエレベーターがついているので、重い荷物があっても安心。共用部には宅配ボックスが設定されているので、不在の時にも荷物を受け取ることができます。また、ペット飼育の相談ができますので、あなたの大切な家族の一員も快適に暮らせるか、ぜひ確認してみてください。
このお部屋は2階以上に位置しているので、通行人や周囲の住人からの視線が気になりにくく、防犯面でも安心。建物のエントランスはオートロックがついており、インターホンにはTVモニタもついているため、相手の顔を確認してから来客対応することができます。
おしゃれなデザイナーズ物件!フローリングのお部屋なのでお掃除もラクラク。キッチンはシステムキッチン仕様になっていますので、お料理好きの方にもぴったり。バス・トイレは別なので、のんびりお風呂タイムも楽しめるでしょう。また、雨の日でも浴室乾燥機を使えば、お洗濯も問題ありません。
通信設備面では、インターネットが無料で使えるので、月々の出費を抑えられるのも魅力です。また、BSアンテナ・CSアンテナがありCATVにも対応しているので、おうち時間も充実するでしょう(別途工事、BS・CS・CATVの契約料等が必要な場合あり)。
建物にはエレベーターがついているので、重い荷物があっても安心。共用部には宅配ボックスが設定されているので、不在の時にも荷物を受け取ることができます。また、ペット飼育の相談ができますので、あなたの大切な家族の一員も快適に暮らせるか、ぜひ確認してみてください。
お金・契約の情報
※「-」と表示されているものは、実際は料金が発生するものもございます。詳細はお問い合わせください。
| 家賃 | 6.05万円 | 管理費・共益費 | 5,470円 |
|---|---|---|---|
| 敷金 | なし | 礼金 | なし |
| 入居決定でお祝い金最大100,000円 | |||
| 保証金 | - | 償却・敷引 | - |
| 住宅保険料 | - | 更新料 | - |
| 契約形態 | - | 契約期間 | - |
| 入居・引渡期間 | 即時 | 現況 | - |
| 入居可能条件 | ペット相談 | ||
| 契約備考 | 巡回管理 エステム安心クラブ月会費 月額880円 1K 二人入居可/子供可/ペット相談 普通借家1年 損保【1.7万円2年】 バストイレ別、バルコニー、エアコン、ガスコンロ対応、クロゼット、フローリング、シャワー付洗面台、TVインターホン、浴室乾燥機、オートロック、室内洗濯置、シューズボックス、システムキッチン、温水洗浄便座、脱衣所、エレベーター、洗面所独立、洗面化粧台、2口コンロ、駐輪場、宅配ボックス、CATV、光ファイバー、外壁タイル張り、即入居可、礼金不要、閑静な住宅地、BS・CS、防犯カメラ、独立型キッチン、ペット相談、保証人不要、仲介手数料不要、バイク置場、全居室フローリング、デザイナーズ、2沿線利用可、ディンプルキー、CS、駅まで平坦、ネット使用料不要、築2年以内、24時間換気システム、平坦地、人感照明センサー、耐火構造、耐震構造、駐車5台以上、2駅利用可、3駅以上利用可、3沿線以上利用可、駅徒歩10分以内、敷地内ごみ置き場、都市ガス、洗面所にドア、オートライト、BS、年内入居可、年度内入居可、敷金・礼金不要 | ||
部屋の情報
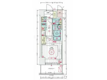
| 間取り | 1K | 専有面積 | 21.66m2 |
|---|---|---|---|
| 所在階 / 向き | 9階 / 北東 | バルコニー面積 | - |
| 水道 / ガス | - | ||
| 設備 | バス・トイレ別、2階以上、オートロック、テレビドアホン、宅配ボックス、浴室乾燥機、インターネット対応、システムキッチン、エアコン、エレベーター、温水洗浄便座、バルコニー、フローリング、洗髪洗面化粧台、2口コンロ、コンロ:ガス、デザイナーズ、CATV、CSアンテナ、BSアンテナ、インターネット使用料無料、洗濯機:室内 | ||
| 当社物件ID | 102432159 | ||
建物の情報
| 建物名 | エステムコート神戸湊町 | ||
|---|---|---|---|
| 所在地 | 兵庫県神戸市兵庫区湊町 | ||
| 交通 | JR東海道本線 神戸駅(兵庫) 徒歩10分 地下鉄海岸線 ハーバーランド駅 徒歩10分 | ||
| 階数 | 15階建 | 総戸数 | 111戸 |
| 築年月 | 2022年03月 / 築4年 | エレベーター | あり |
| 駐車場 | 近隣 350m18000円 | バイク置き場 | あり |
| 駐輪場 | あり | 管理人/管理会社 | - |
| 周辺環境 | その他 神戸信用金庫兵庫支店(銀行)まで953m その他 サンディ 兵庫駅前店(スーパー)まで1087m その他 セブンイレブン 神戸相生町5丁目店(コンビニ)まで387m その他 ミナト診療所(病院)まで567m その他 神戸下山手郵便局(郵便局)まで1829m その他 ファミリーマート 神戸湊町店(コンビニ)まで151m | ||
| 建物種別 | マンション | 建物構造 | RC(鉄筋コンクリート) |
この部屋の取扱い不動産会社
| 会社名 | (株)SuMirai(SUUMO経由) | ||
|---|---|---|---|
| 所在地 | 兵庫県神戸市中央区琴ノ緒町5-29-501 | 交通 | - |
| 営業時間 | 9:00~19:00 | 定休日 | 水曜日 |
| 免許番号 | 兵庫県知事12483 | 取引態様 | 仲介 |
| 不動産会社管理番号 | 100471352841 | 当社管理番号 | 89 |
| 所属団体 | (公社)全日本不動産協会兵庫県本部会員 | ||
| 公正取引協議会 | (公社)近畿地区不動産公正取引協議会加盟 | ||
| 取扱い物件情報 | 物件詳細へ | ||
※各種情報と現状に差異がある場合は、現状優先となります。問い合わせをすることで、より詳しい条件、情報を確認する事ができます。
提供:(株)SuMirai(SUUMO経由)
この物件が気になったら掲載期限まであと10日
エステムコート神戸湊町に条件(家賃・エリア)が近い物件一覧
| 写真 | 家賃 管理費等 | 敷金 礼金 | 間取り 専有面積 | 築年数 | 最寄り駅 所在地 | キープ | 詳細 |
|---|---|---|---|---|---|---|---|
アパート ファミリーマンション和田(1LDK/1階) | |||||||
![]() | 6.1万円 3,000円 | なし 6.1万円 | 1LDK 56.62m2 | 築12年 | 神戸電鉄粟生線 恵比須駅 徒歩6分 神戸電鉄粟生線 三木上の丸駅 徒歩13分 兵庫県三木市大塚 | 詳細を見る | |
マンション ビレッジハウス志染(3DK/1階) | |||||||
![]() | 5.97万円 なし | なし なし | 3DK 54.38m2 | 築46年 | 神戸電鉄粟生線 志染駅 徒歩19分 神戸電鉄粟生線 恵比須駅 徒歩29分 神戸電鉄粟生線 広野ゴルフ場前駅 徒歩29分 兵庫県三木市志染町西自由が丘 | 詳細を見る | |
マンション 大久保東第一(2LDK/5階) | |||||||
![]() | 4.3万円 なし | なし 4.3万円 | 2LDK 54.65m2 | 築51年 | 山陽本線 大久保駅(兵庫) 徒歩35分 山陽電気鉄道本線 中八木駅 徒歩55分 兵庫県明石市大久保町高丘3丁目 | 詳細を見る | |
アパート レジデンス永尾(2LDK/2階) | |||||||
![]() | 6.7万円 4,000円 | 2万円 なし | 2LDK 54.32m2 | 築12年 | 神戸電鉄粟生線 大村駅(兵庫) 徒歩9分 神戸電鉄粟生線 三木駅(神戸電鉄) 徒歩25分 神戸電鉄粟生線 樫山駅 徒歩30分 兵庫県三木市大村 | 詳細を見る | |
アパート ヒカルサ稲美天満Ⅰ(2LDK/2階) | |||||||
![]() | 8.05万円 3,900円 | なし 8.05万円 | 2LDK 56.48m2 | 新築 | 兵庫県加古郡稲美町六分一 | 詳細を見る | |
マンション ビレッジハウス朝日ヶ丘(2K/4階) | |||||||
![]() | 3.62万円 なし | なし なし | 2K 28.98m2 | 築61年 | 神戸電鉄粟生線 三木駅(神戸電鉄) 徒歩31分 神戸電鉄粟生線 三木上の丸駅 徒歩41分 兵庫県三木市別所町朝日ケ丘 | 詳細を見る | |
アパート FLAT本町C棟(1K/2階) | |||||||
![]() | 4.5万円 4,000円 | なし 5万円 | 1K 20m2 | 築17年 | 神戸電鉄粟生線 緑が丘駅(兵庫) 徒歩1分 神戸電鉄粟生線 広野ゴルフ場前駅 徒歩10分 神戸電鉄粟生線 押部谷駅 徒歩25分 兵庫県三木市緑が丘町本町 | 詳細を見る | |
アパート 神戸電鉄粟生線 広野ゴルフ場前駅 徒歩15分 築18年(1K/1階) | |||||||
![]() | 5万円 5,000円 | なし 5万円 | 1K 29.98m2 | 築18年 | 神戸電鉄粟生線 広野ゴルフ場前駅 徒歩15分 神戸電鉄粟生線 緑が丘駅(兵庫) 徒歩16分 兵庫県三木市緑が丘町西2 | 詳細を見る | |






