賃貸アパート
レオパレスフロラシオンⅠの賃貸物件情報(1K/2階)
| 家賃 | 管理費等 | 敷金 | 礼金 | 間取り | 専有面積 |
|---|---|---|---|---|---|
| 4.9万円 | 5,000円 | なし | なし | 1K | 28.02m2 |
入居決定でお祝い金最大100,000円
Point
まずはお問い合わせ!
不動産会社は街のプロ、あなたに合った物件がきっと見つかります。
提供:アパマンショップ鶴ヶ島店

詳細情報 レオパレスフロラシオンⅠ
物件紹介
レオパレスフロラシオンⅠは東武鉄道東上線鶴ケ島駅から徒歩17分にあるアパートです。
このお部屋は2階以上に位置しているので、通行人や周囲の住人からの視線が気になりにくく、防犯面でも安心。インターホンにはTVモニタもついているため、相手の顔を確認してから来客対応することができます。
バス・トイレ別の仕様で、のんびりお風呂タイムも楽しめます。また、浴室乾燥機を使えば、雨の日でもお洗濯は問題ありません。
通信設備面では、インターネット接続が可能です。また、CATVにも対応しているので、おうち時間も充実するでしょう(別途工事、契約料が必要な場合あり)。
コンビニまで徒歩16分の場所にあり、日用品や食料品のお買い物にも便利です。
このお部屋は2階以上に位置しているので、通行人や周囲の住人からの視線が気になりにくく、防犯面でも安心。インターホンにはTVモニタもついているため、相手の顔を確認してから来客対応することができます。
バス・トイレ別の仕様で、のんびりお風呂タイムも楽しめます。また、浴室乾燥機を使えば、雨の日でもお洗濯は問題ありません。
通信設備面では、インターネット接続が可能です。また、CATVにも対応しているので、おうち時間も充実するでしょう(別途工事、契約料が必要な場合あり)。
コンビニまで徒歩16分の場所にあり、日用品や食料品のお買い物にも便利です。
お金・契約の情報
※「-」と表示されているものは、実際は料金が発生するものもございます。詳細はお問い合わせください。
| 家賃 | 4.9万円 | 管理費・共益費 | 5,000円 |
|---|---|---|---|
| 敷金 | なし | 礼金 | なし |
| 入居決定でお祝い金最大100,000円 | |||
| 保証金 | - | 償却・敷引 | - |
| 住宅保険料 | 2.668万円(2年) | 更新料 | - |
| 保証会社利用 | 必須 | 保証会社名 | プラザ賃貸保証 |
| 保証会社費用 | - | 保証会社備考 | 家賃等の100%または120% |
| 契約形態 | - | 契約期間 | 2年 |
| 入居・引渡期間 | 2026年01月下旬 | 現況 | - |
| 契約備考 | 環境維持費:1ヶ月550円(税込)、鍵交換費:ご契約時16500円(税込)、退去時清掃費:41800円(税込)、インターネット利用料:有料、更新手数料:16500円(税込)、保証委託料:必要 | ||
部屋の情報
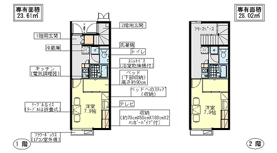
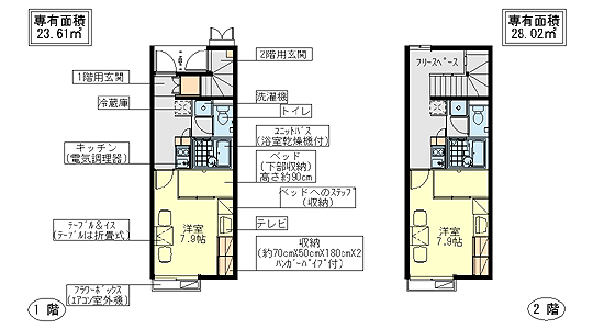
| 間取り | 1K | 専有面積 | 28.02m2 |
|---|---|---|---|
| 所在階 / 向き | 2階 / - | バルコニー面積 | - |
| 水道 / ガス | - | ||
| 設備 | バス・トイレ別、テレビドアホン、浴室乾燥機、インターネット対応、温水洗浄便座、CATV | ||
| 当社物件ID | 1699961 | ||
建物の情報
| 建物名 | レオパレスフロラシオンⅠ | ||
|---|---|---|---|
| 所在地 | 埼玉県川越市大字天沼新田 | ||
| 交通 | 東武鉄道東上線 鶴ケ島駅 徒歩17分 | ||
| 階数 | 2階建 | 総戸数 | 26戸 |
| 築年月 | 2007年09月 / 築19年 | エレベーター | - |
| 駐車場 | 空有 8,800円/月 | バイク置き場 | - |
| 駐輪場 | あり | 管理人/管理会社 | - |
| 周辺環境 | その他 オザムバリュー川越天沼店 徒歩4分(294m) その他 ファミリーマート川越天沼新田店 徒歩3分(178m) その他 ドラッグストアセキ鶴ヶ島店 徒歩5分(345m) その他 TSUTAYA鶴ヶ島店 徒歩10分(747m) その他 バーミヤン鶴ヶ島店 徒歩4分(282m) その他 飯能信用金庫鶴ヶ島支店 徒歩8分(629m) その他 コメダ珈琲店鶴ヶ島店 徒歩6分(428m) その他 コモディイイダ鶴ヶ島店 徒歩11分(848m) | ||
| 建物種別 | アパート | 建物構造 | 木造 |
この部屋の取扱い不動産会社
| 会社名 | アパマンショップ川越市駅店 | ||
|---|---|---|---|
| 所在地 | 埼玉県川越市六軒町1丁目 3-1 | 交通 | 東武鉄道東上線川越市から徒歩1分 |
| 営業時間 | 10:00〜17:30(12:30−13:30 昼休業) | 定休日 | 火曜日、水曜日 |
| 免許番号 | 埼玉県知事(10)11549 | 取引態様 | 仲介 |
| 不動産会社管理番号 | 91276869 | 当社管理番号 | 4 |
| 所属団体 | (公社)埼玉県宅地建物取引業協会 | ||
| 公正取引協議会 | (公社) 首都圏不動産公正取引協議会加盟 | ||
| 取扱い物件情報 | 物件詳細へ | ||
※各種情報と現状に差異がある場合は、現状優先となります。問い合わせをすることで、より詳しい条件、情報を確認する事ができます。
提供:アパマンショップ川越市駅店
この物件が気になったら掲載期限まであと10日
レオパレスフロラシオンⅠに条件(家賃・エリア)が近い物件一覧
| 写真 | 家賃 管理費等 | 敷金 礼金 | 間取り 専有面積 | 築年数 | 最寄り駅 所在地 | キープ | 詳細 |
|---|---|---|---|---|---|---|---|
アパート ザ・ファースト西所沢(1K/2階) | |||||||
![]() | 3.1万円 2,000円 | なし なし | 1K 12.83m2 | 築39年 | 西武池袋・豊島線 西所沢駅 徒歩8分 西武鉄道新宿線 航空公園駅 徒歩21分 西武鉄道新宿線 新所沢駅 徒歩22分 埼玉県所沢市西所沢2丁目 | 詳細を見る | |
アパート パルメゾン(1K/2階) | |||||||
![]() | 6.1万円 3,000円 | 3.05万円 6.1万円 | 1K 25.11m2 | 築22年 | 西武池袋・豊島線 小手指駅 徒歩6分 西武鉄道新宿線 新所沢駅 徒歩23分 西武鉄道狭山線 西所沢駅 徒歩38分 埼玉県所沢市小手指町1丁目 | 詳細を見る | |
マンション 煉瓦館115(ワンルーム/3階) | |||||||
![]() | 4.3万円 3,500円 | なし なし | ワンルーム 22.88m2 | 築36年 | 西武池袋・豊島線 西所沢駅 徒歩3分 西武鉄道新宿線 航空公園駅 徒歩17分 西武池袋・豊島線 所沢駅 徒歩18分 埼玉県所沢市西所沢1丁目 | 詳細を見る | |
アパート メゾンソレイユ(1K/1階) | |||||||
![]() | 6.4万円 5,000円 | なし なし | 1K 25.5m2 | 築24年 | 西武池袋・豊島線 所沢駅 徒歩9分 西武池袋・豊島線 西所沢駅 徒歩13分 西武鉄道新宿線 航空公園駅 徒歩15分 埼玉県所沢市寿町 | 詳細を見る | |
アパート ファミール西所沢(1K/2階) | |||||||
![]() | 4.5万円 3,000円 | なし なし | 1K 25.67m2 | 築33年 | 西武池袋・豊島線 西所沢駅 徒歩7分 西武鉄道狭山線 下山口駅 徒歩20分 西武池袋・豊島線 所沢駅 徒歩25分 埼玉県所沢市大字山口 | 詳細を見る | |
アパート ミーテ ブレッザ(1LDK/2階) | |||||||
![]() | 6.3万円 2,900円 | なし 6.3万円 | 1LDK 41.27m2 | 築13年 | 西武池袋・豊島線 稲荷山公園駅 徒歩37分 西武池袋・豊島線 入間市駅 徒歩43分 埼玉県狭山市広瀬東4丁目 | 詳細を見る | |
マンション ヒルグレイス武蔵野(3DK/1階) | |||||||
![]() | 7.5万円 5,500円 | 7.5万円 7.5万円 | 3DK 55.64m2 | 築33年 | 西武鉄道新宿線 新所沢駅 徒歩7分 西武鉄道新宿線 航空公園駅 徒歩9分 西武池袋・豊島線 西所沢駅 徒歩23分 埼玉県所沢市泉町 | 詳細を見る | |
アパート KIRSCHE(1DK/1階) | |||||||
![]() | 6.8万円 6,000円 | なし 6.8万円 | 1DK 27.8m2 | 築3年 | 西武鉄道新宿線 南大塚駅 徒歩3分 埼玉県川越市南台2丁目 | 詳細を見る | |








