賃貸マンション
プレール・ドゥーク東京イーストVの賃貸物件情報(1K/3階)
| 家賃 | 管理費等 | 敷金 | 礼金 | 間取り | 専有面積 |
|---|---|---|---|---|---|
| 8.5万円 | 2万円 | なし | 8.5万円 | 1K | 25.71m2 |
入居決定でお祝い金最大100,000円
- 保証金
- -
- 償却・敷引
- -
- 築年数
- 築17年
- 所在階
- 3階
- 向き
- 南西
Point
★現地でのお待ち合わせ・オンラインでのご対応など気軽にご相談ください★他の気になる物件も、一括でご案内可能です!
提供:ゴトウヤ 秋葉原店五島屋商事(株)(SUUMO経由)

詳細情報 プレール・ドゥーク東京イーストV
物件紹介
プレール・ドゥーク東京イーストVは東京メトロ日比谷線三ノ輪駅から徒歩5分にあり、駅近で通勤通学に便利なマンションです。
このお部屋は2階以上に位置しているので、通行人や周囲の住人からの視線が気になりにくく、防犯面でも安心。建物のエントランスはオートロックがついており、インターホンにはTVモニタもついているため、相手の顔を確認してから来客対応することができます。
おしゃれなデザイナーズ物件!人気の南向きのお部屋。また、フローリングなのでお掃除もラクラク。キッチンはシステムキッチン仕様になっていますので、お料理好きの方にもぴったり。また、バス・トイレは別で、のんびりお風呂タイムも楽しめるでしょう。
通信設備面では、インターネット接続が可能です。また、BSアンテナ・CSアンテナがありCATVにも対応しているので、おうち時間も充実するでしょう(別途工事、契約料が必要な場合あり)。
建物にはエレベーターがついているので、重い荷物があっても安心。共用部には宅配ボックスが設定されているので、不在の時にも荷物を受け取ることができます。
このお部屋は2階以上に位置しているので、通行人や周囲の住人からの視線が気になりにくく、防犯面でも安心。建物のエントランスはオートロックがついており、インターホンにはTVモニタもついているため、相手の顔を確認してから来客対応することができます。
おしゃれなデザイナーズ物件!人気の南向きのお部屋。また、フローリングなのでお掃除もラクラク。キッチンはシステムキッチン仕様になっていますので、お料理好きの方にもぴったり。また、バス・トイレは別で、のんびりお風呂タイムも楽しめるでしょう。
通信設備面では、インターネット接続が可能です。また、BSアンテナ・CSアンテナがありCATVにも対応しているので、おうち時間も充実するでしょう(別途工事、契約料が必要な場合あり)。
建物にはエレベーターがついているので、重い荷物があっても安心。共用部には宅配ボックスが設定されているので、不在の時にも荷物を受け取ることができます。
お金・契約の情報
※「-」と表示されているものは、実際は料金が発生するものもございます。詳細はお問い合わせください。
| 家賃 | 8.5万円 | 管理費・共益費 | 2万円 |
|---|---|---|---|
| 敷金 | なし | 礼金 | 8.5万円 |
| 入居決定でお祝い金最大100,000円 | |||
| 保証金 | - | 償却・敷引 | - |
| 住宅保険料 | - | 更新料 | - |
| 契約形態 | - | 契約期間 | - |
| 入居・引渡期間 | 相談 | 現況 | - |
| 契約備考 | ★最適な物件に出会える様、全力でサポート致します★WEB相談・WEB内見・IT重説に対応。初期費用(一部)クレジット決済対応。弊社ゴトウヤまでお問合せください! 1K 単身者可 普通借家2年 損保【1.7万円2年】 バストイレ別、バルコニー、エアコン、ガスコンロ対応、クロゼット、フローリング、TVインターホン、オートロック、室内洗濯置、シューズボックス、システムキッチン、脱衣所、エレベーター、洗面所独立、洗面化粧台、2口コンロ、宅配ボックス、CATV、光ファイバー、BS・CS、敷金不要、防犯カメラ、全居室収納、分譲賃貸、保証人不要、仲介手数料不要、CATVインターネット、全居室フローリング、デザイナーズ、CS、ネット専用回線、駅まで平坦、エアコン全室、保証金不要、南面リビング、一部フローリング、ISDN対応、耐震構造、3駅以上利用可、駅徒歩5分以内、敷地内ごみ置き場、南西向き、全室南西向き、日勤管理、セキュリティ会社加入済、都市ガス、南面バルコニー、玄関収納、BS、高速ネット対応、LAN、保証会社利用可、IT重説対応物件、LGBTフレンドリー、初期費用カード決済可 | ||
部屋の情報
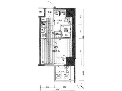
| 間取り | 1K | 専有面積 | 25.71m2 |
|---|---|---|---|
| 所在階 / 向き | 3階 / 南西 | バルコニー面積 | - |
| 水道 / ガス | - | ||
| 設備 | バス・トイレ別、2階以上、オートロック、テレビドアホン、宅配ボックス、インターネット対応、システムキッチン、エアコン、エレベーター、南向き、バルコニー、フローリング、洗髪洗面化粧台、2口コンロ、コンロ:ガス、デザイナーズ、CATV、CSアンテナ、BSアンテナ、洗濯機:室内 | ||
| 当社物件ID | 3902366 | ||
建物の情報
| 建物名 | プレール・ドゥーク東京イーストV | ||
|---|---|---|---|
| 所在地 | 東京都台東区三ノ輪 | ||
| 交通 | 東京メトロ日比谷線 三ノ輪駅 徒歩5分 都電荒川線 三ノ輪橋駅 徒歩8分 東京メトロ日比谷線 南千住駅 徒歩11分 | ||
| 階数 | 13階建 | 総戸数 | - |
| 築年月 | 2010年02月 / 築17年 | エレベーター | あり |
| 駐車場 | なし | バイク置き場 | - |
| 駐輪場 | - | 管理人/管理会社 | - |
| 周辺環境 | その他 ワイズマート三ノ輪店(スーパー)まで399m その他 まいばすけっと三ノ輪駅前店(スーパー)まで379m その他 セブンイレブン台東日本堤店(コンビニ)まで166m その他 フレッシュフードまつだ(コンビニ)まで220m その他 どらっぐぱぱす三ノ輪店(ドラッグストア)まで398m その他 ウエルシア三ノ輪橋駅前店(ドラッグストア)まで397m | ||
| 建物種別 | マンション | 建物構造 | RC(鉄筋コンクリート) |
この部屋の取扱い不動産会社
| 会社名 | ゴトウヤ 秋葉原店五島屋商事(株)(SUUMO経由) | ||
|---|---|---|---|
| 所在地 | 東京都千代田区神田須田町2-15-3 215ビル101 | 交通 | - |
| 営業時間 | 9時~18時 | 定休日 | 第一、第三水曜日 |
| 免許番号 | 東京都知事113082 | 取引態様 | 仲介 |
| 不動産会社管理番号 | 100480538073 | 当社管理番号 | 89 |
| 所属団体 | (公社)東京都宅地建物取引業協会会員 | ||
| 公正取引協議会 | (公社)首都圏不動産公正取引協議会加盟 | ||
| 取扱い物件情報 | 物件詳細へ | ||
※各種情報と現状に差異がある場合は、現状優先となります。問い合わせをすることで、より詳しい条件、情報を確認する事ができます。
提供:ゴトウヤ 秋葉原店五島屋商事(株)(SUUMO経由)
この物件が気になったら掲載期限まであと11日
プレール・ドゥーク東京イーストVに条件(家賃・エリア)が近い物件一覧
| 写真 | 家賃 管理費等 | 敷金 礼金 | 間取り 専有面積 | 築年数 | 最寄り駅 所在地 | キープ | 詳細 |
|---|---|---|---|---|---|---|---|
マンション ミレドゥーエ両国(1K/6階) | |||||||
![]() | 11.6万円 1万円 | 11.6万円 11.6万円 | 1K 26.46m2 | 築6年 | 東京都墨田区千歳3丁目 | 詳細を見る | |
マンション シティハイツ新大塚(1K/6階) | |||||||
![]() | 7.2万円 8,000円 | 7.2万円 7.2万円 | 1K 19.99m2 | 築20年 | 東京地下鉄丸ノ内線 新大塚駅 徒歩6分 東京地下鉄有楽町線 東池袋駅 徒歩9分 山手線 大塚駅(東京) 徒歩10分 東京都文京区大塚6丁目 | 詳細を見る | |



