賃貸マンション
コンフォリア・リヴ大阪本町の賃貸物件情報(1K/4階)
| 家賃 | 管理費等 | 敷金 | 礼金 | 間取り | 専有面積 |
|---|---|---|---|---|---|
| 7.9万円 | 1.2万円 | なし | 15.8万円 | 1K | 20.34m2 |
入居決定でお祝い金最大100,000円
- 保証金
- -
- 償却・敷引
- -
- 築年数
- 築1年
- 所在階
- 4階
- 向き
- 西
Point
建物のエントランスには防犯対策として優れているオートロック機能が付いております。室内設備は洗面所独立・浴室乾燥機など充実した設備を備え付けています。こちらの物件はマンションです。
提供:(株)エーポジション福島店(SUUMO経由)

詳細情報 コンフォリア・リヴ大阪本町
物件紹介
コンフォリア・リヴ大阪本町は地下鉄中央線堺筋本町駅から徒歩6分にあり、駅近で通勤通学に便利なマンションです。
このお部屋は2階以上に位置しているので、通行人や周囲の住人からの視線が気になりにくく、防犯面でも安心。建物のエントランスはオートロックがついており、インターホンにはTVモニタもついているため、相手の顔を確認してから来客対応することができます。
おしゃれなデザイナーズ物件!人気の角部屋で周囲の居住者の生活音も気になりにくく、また、フローリングのお部屋なのでお掃除もラクラク。室内にはウォークインクローゼットがありますので、たくさんの荷物も効率的に収納ができます。キッチンはシステムキッチン仕様になっていますので、お料理好きの方にもぴったり。バス・トイレは別なので、のんびりお風呂タイムも楽しめるでしょう。また、雨の日でも浴室乾燥機を使えば、お洗濯も問題ありません。
通信設備面では、インターネットが無料で使えるので、月々の出費を抑えられるのも魅力です。また、BSアンテナ・CSアンテナがありCATVにも対応しているので、おうち時間も充実するでしょう(別途工事、BS・CS・CATVの契約料等が必要な場合あり)。
建物にはエレベーターがついているので、重い荷物があっても安心。共用部には宅配ボックスが設定されているので、不在の時にも荷物を受け取ることができます。また、ペット飼育の相談ができますので、あなたの大切な家族の一員も快適に暮らせるか、ぜひ確認してみてください。
このお部屋は2階以上に位置しているので、通行人や周囲の住人からの視線が気になりにくく、防犯面でも安心。建物のエントランスはオートロックがついており、インターホンにはTVモニタもついているため、相手の顔を確認してから来客対応することができます。
おしゃれなデザイナーズ物件!人気の角部屋で周囲の居住者の生活音も気になりにくく、また、フローリングのお部屋なのでお掃除もラクラク。室内にはウォークインクローゼットがありますので、たくさんの荷物も効率的に収納ができます。キッチンはシステムキッチン仕様になっていますので、お料理好きの方にもぴったり。バス・トイレは別なので、のんびりお風呂タイムも楽しめるでしょう。また、雨の日でも浴室乾燥機を使えば、お洗濯も問題ありません。
通信設備面では、インターネットが無料で使えるので、月々の出費を抑えられるのも魅力です。また、BSアンテナ・CSアンテナがありCATVにも対応しているので、おうち時間も充実するでしょう(別途工事、BS・CS・CATVの契約料等が必要な場合あり)。
建物にはエレベーターがついているので、重い荷物があっても安心。共用部には宅配ボックスが設定されているので、不在の時にも荷物を受け取ることができます。また、ペット飼育の相談ができますので、あなたの大切な家族の一員も快適に暮らせるか、ぜひ確認してみてください。
お金・契約の情報
※「-」と表示されているものは、実際は料金が発生するものもございます。詳細はお問い合わせください。
| 家賃 | 7.9万円 | 管理費・共益費 | 1.2万円 |
|---|---|---|---|
| 敷金 | なし | 礼金 | 15.8万円 |
| 入居決定でお祝い金最大100,000円 | |||
| 保証金 | - | 償却・敷引 | - |
| 住宅保険料 | - | 更新料 | - |
| 保証会社利用 | 必須 | 保証会社名 | - |
| 保証会社費用 | - | 保証会社備考 | 保証会社利用必 お問い合わせください。 |
| 契約形態 | - | 契約期間 | - |
| 入居・引渡期間 | 即時 | 現況 | - |
| 入居可能条件 | ペット相談 | ||
| 契約備考 | 大阪市内のお部屋探しはルームアイにお任せください! 合計2.2万円(内訳:鍵交換代2.2万円) 更新料 30000円 室内清掃費用 27500円 1K ペット相談 普通借家2年 損保【要】 バストイレ別、バルコニー、エアコン、クロゼット、フローリング、浴室乾燥機、オートロック、室内洗濯置、システムキッチン、温水洗浄便座、エレベーター、洗面所独立、宅配ボックス、即入居可、敷金不要、防犯カメラ、ペット相談、バイク置場、2沿線利用可、ネット使用料不要、3駅以上利用可、都市ガス | ||
部屋の情報
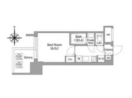
| 間取り | 1K | 専有面積 | 20.34m2 |
|---|---|---|---|
| 所在階 / 向き | 4階 / 西 | バルコニー面積 | - |
| 水道 / ガス | - | ||
| 設備 | バス・トイレ別、2階以上、オートロック、宅配ボックス、浴室乾燥機、インターネット対応、システムキッチン、エアコン、エレベーター、温水洗浄便座、バルコニー、フローリング、洗髪洗面化粧台、インターネット使用料無料、洗濯機:室内 | ||
| 当社物件ID | 159944932 | ||
建物の情報
| 建物名 | コンフォリア・リヴ大阪本町 | ||
|---|---|---|---|
| 所在地 | 大阪府大阪市中央区瓦町 | ||
| 交通 | 地下鉄堺筋線 堺筋本町駅 徒歩6分 地下鉄御堂筋線 本町駅 徒歩7分 地下鉄堺筋線 北浜駅(大阪) 徒歩7分 | ||
| 階数 | 15階建 | 総戸数 | - |
| 築年月 | 2025年09月 / 築1年 | エレベーター | あり |
| 駐車場 | なし | バイク置き場 | あり |
| 駐輪場 | - | 管理人/管理会社 | - |
| 周辺環境 | その他 セブン-イレブン 大阪平野町2丁目店(コンビニ)まで212m その他 ミニストップ平野町3丁目店(コンビニ)まで281m その他 ローソン 瓦町一丁目店(コンビニ)まで231m その他 スギ薬局 堺筋本町店(ドラッグストア)まで638m その他 三菱東京UFJ銀行 瓦町支店(銀行)まで216m その他 りそな銀行大阪営業部(銀行)まで247m | ||
| 建物種別 | マンション | 建物構造 | RC(鉄筋コンクリート) |
この部屋の取扱い不動産会社
| 会社名 | お部屋探しのルームアイ (株)Room I(SUUMO経由) | ||
|---|---|---|---|
| 所在地 | 大阪府大阪市中央区内本町1-2-14 | 交通 | - |
| 営業時間 | AM9:00~PM17:30 | 定休日 | 毎週水曜日 |
| 免許番号 | 大阪府知事59226 | 取引態様 | 仲介 |
| 不動産会社管理番号 | 100454896257 | 当社管理番号 | 89 |
| 所属団体 | (公社)全日本不動産協会大阪府本部会員 | ||
| 公正取引協議会 | (公社)近畿地区不動産公正取引協議会加盟 | ||
| 取扱い物件情報 | 物件詳細へ | ||
※各種情報と現状に差異がある場合は、現状優先となります。問い合わせをすることで、より詳しい条件、情報を確認する事ができます。
提供:お部屋探しのルームアイ (株)Room I(SUUMO経由)
この物件が気になったら掲載期限まであと10日
コンフォリア・リヴ大阪本町の空き部屋一覧
全部で23の空き部屋があります。
コンフォリア・リヴ大阪本町に条件(家賃・エリア)が近い物件一覧
| 写真 | 家賃 管理費等 | 敷金 礼金 | 間取り 専有面積 | 築年数 | 最寄り駅 所在地 | キープ | 詳細 |
|---|---|---|---|---|---|---|---|
アパート KTIレジデンス片山町(1LDK/2階) | |||||||
![]() | 8万円 4,500円 | なし 8万円 | 1LDK 34.59m2 | 新築 | 東海道本線 吹田駅(JR) 徒歩6分 阪急電鉄千里線 吹田駅(阪急) 徒歩13分 阪急電鉄千里線 豊津駅(大阪) 徒歩20分 大阪府吹田市片山町3丁目37-7 | 詳細を見る | |
アパート フジパレス月出町Ⅱ番館(1LDK/2階) | |||||||
![]() | 7.2万円 4,600円 | なし 10万円 | 1LDK 37.23m2 | 築5年 | 大阪モノレール本線 大日駅 徒歩9分 大阪府門真市月出町 | 詳細を見る | |
マンション WORVE吹田江坂(2K/4階) | |||||||
| 11.8万円 1.2万円 | なし なし | 2K 31.28m2 | 築1年 | 北大阪急行南北線 江坂駅 徒歩9分 阪急電鉄千里線 豊津駅(大阪) 徒歩19分 おおさか東線 南吹田駅 徒歩20分 大阪府吹田市広芝町17-18 | 詳細を見る | ||
アパート 阪和線 鳳駅 徒歩7分 築1年(1LDK/1階) | |||||||
![]() | 6.6万円 5,200円 | なし 15万円 | 1LDK 36m2 | 築1年 | 阪和線 鳳駅 徒歩7分 阪和線 東羽衣駅 徒歩17分 南海電鉄南海本線 羽衣駅 徒歩18分 大阪府堺市西区鳳中町9丁 | 詳細を見る | |
アパート クレアール八戸ノ里(1LDK/2階) | |||||||
![]() | 7.15万円 5,500円 | なし 14.3万円 | 1LDK 30.21m2 | 築1年 | 近鉄奈良線 八戸ノ里駅 徒歩7分 近鉄奈良線 河内小阪駅 徒歩14分 地下鉄中央線 長田駅(大阪) 徒歩16分 大阪府東大阪市御厨南 | 詳細を見る | |
マンション S-RESIDENCE堺浜寺BROAD(1K/5階) | |||||||
![]() | 5.6万円 1万円 | なし なし | 1K 21m2 | 築1年 | 南海電鉄南海本線 石津川駅 徒歩7分 南海電鉄南海本線 湊駅 徒歩14分 南海電鉄南海本線 諏訪ノ森駅 徒歩19分 大阪府堺市西区浜寺石津町西1丁 | 詳細を見る | |
マンション 南海電鉄南海本線 石津川駅 徒歩5分 築1年(1K/5階) | |||||||
![]() | 5.75万円 1万円 | なし なし | 1K 22.97m2 | 築1年 | 南海電鉄南海本線 石津川駅 徒歩5分 阪堺電気軌道阪堺線 石津北駅 徒歩5分 南海電鉄南海本線 湊駅 徒歩15分 大阪府堺市西区浜寺石津町中1丁 | 詳細を見る | |
マンション マンション真砂(2DK/3階) | |||||||
| 5.5万円 5,000円 | なし なし | 2DK 42m2 | 築57年 | 阪急電鉄千里線 千里山駅 徒歩7分 阪急電鉄千里線 関大前駅 徒歩11分 北大阪急行南北線 緑地公園駅 徒歩23分 大阪府吹田市千里山東3丁目11-10 | 詳細を見る | ||






