賃貸マンション
エンクレストベイ天神東IIIの賃貸物件情報(1K/10階)
| 家賃 | 管理費等 | 敷金 | 礼金 | 間取り | 専有面積 |
|---|---|---|---|---|---|
| 8.2万円 | なし | なし | 16.4万円 | 1K | 25.74m2 |
入居決定でお祝い金最大100,000円
- 保証金
- -
- 償却・敷引
- -
- 築年数
- 築9年
- 所在階
- 10階
- 向き
- 北西
Point
間取りは1K。充実した水回りは女性にも好評。共用部には宅配ボックスがあるので、荷物の受け取りのために早く帰宅する必要がありません。築8年の設備が充実した物件となっています。
提供:イースマイル博多店(株)スリーエイチ(SUUMO経由)

詳細情報 エンクレストベイ天神東III
物件紹介
エンクレストベイ天神東IIIは地下鉄空港線中洲川端駅から徒歩14分にあるマンションです。
このお部屋は2階以上に位置しているので、通行人や周囲の住人からの視線が気になりにくく、防犯面でも安心。建物のエントランスはオートロックがついており、インターホンにはTVモニタもついているため、相手の顔を確認してから来客対応することができます。
おしゃれなデザイナーズ物件!フローリングのお部屋なのでお掃除もラクラク。キッチンはシステムキッチン仕様になっていますので、お料理好きの方にもぴったり。バス・トイレは別なので、のんびりお風呂タイムも楽しめるでしょう。また、雨の日でも浴室乾燥機を使えば、お洗濯も問題ありません。
通信設備面では、インターネットが無料で使えるので、月々の出費を抑えられるのも魅力です(別途工事等が必要な場合あり)。
建物にはエレベーターがついているので、重い荷物があっても安心。共用部には宅配ボックスが設定されているので、不在の時にも荷物を受け取ることができます。
このお部屋は2階以上に位置しているので、通行人や周囲の住人からの視線が気になりにくく、防犯面でも安心。建物のエントランスはオートロックがついており、インターホンにはTVモニタもついているため、相手の顔を確認してから来客対応することができます。
おしゃれなデザイナーズ物件!フローリングのお部屋なのでお掃除もラクラク。キッチンはシステムキッチン仕様になっていますので、お料理好きの方にもぴったり。バス・トイレは別なので、のんびりお風呂タイムも楽しめるでしょう。また、雨の日でも浴室乾燥機を使えば、お洗濯も問題ありません。
通信設備面では、インターネットが無料で使えるので、月々の出費を抑えられるのも魅力です(別途工事等が必要な場合あり)。
建物にはエレベーターがついているので、重い荷物があっても安心。共用部には宅配ボックスが設定されているので、不在の時にも荷物を受け取ることができます。
お金・契約の情報
※「-」と表示されているものは、実際は料金が発生するものもございます。詳細はお問い合わせください。
| 家賃 | 8.2万円 | 管理費・共益費 | なし |
|---|---|---|---|
| 敷金 | なし | 礼金 | 16.4万円 |
| 入居決定でお祝い金最大100,000円 | |||
| 保証金 | - | 償却・敷引 | - |
| 住宅保険料 | - | 更新料 | - |
| 保証会社利用 | 必須 | 保証会社名 | - |
| 保証会社費用 | - | 保証会社備考 | 保証会社利用必 初回保証委託料30%/毎月・月額総額1% |
| 契約形態 | - | 契約期間 | - |
| 入居・引渡期間 | 相談 | 現況 | - |
| 契約備考 | 巡回管理/当店は総合仲介業者です。他社がインターネット掲載している物件も全てご紹介可能ですので、気になっている物件がございましたらお気軽にご連絡下さい。初期費用のクレジットカード決済も可能で分割支払いも可能です。店頭にお客様専用駐車場も4台完備しておりますのでお車でもご来店下さい! 合計3.85万円(内訳:消毒1.65万円鍵交換代2.2万円) 室内清掃費用 38500円 町費 月額300円 えんくらぶ 月額1100円 1K 普通借家2年 損保【要】 バストイレ別、バルコニー、エアコン、ガスコンロ対応、クロゼット、フローリング、シャワー付洗面台、TVインターホン、浴室乾燥機、オートロック、室内洗濯置、陽当り良好、シューズボックス、システムキッチン、追焚機能浴室、温水洗浄便座、脱衣所、エレベーター、洗面所独立、洗面化粧台、2口コンロ、駐輪場、宅配ボックス、閑静な住宅地、敷金不要、防犯カメラ、分譲賃貸、全居室洋室、単身者相談、バイク置場、24時間緊急通報システム、全居室フローリング、デザイナーズ、2沿線利用可、ネット専用回線、駅まで平坦、ネット使用料不要、眺望良好、24時間換気システム、平坦地、2駅利用可、3駅以上利用可、駅前、敷地内ごみ置き場、全居室6畳以上、プロパンガス、洗面所にドア、縦型照明付洗面化粧台、ワイドバルコニー、高速ネット対応、保証会社利用可、初期費用カード決済可、通風良好 | ||
部屋の情報
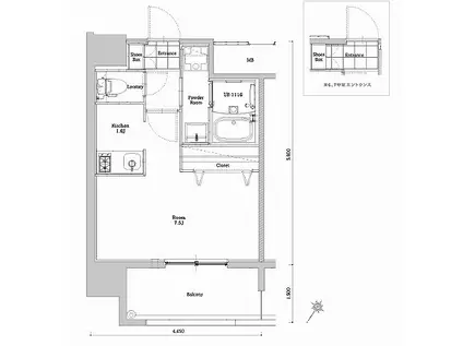
| 間取り | 1K | 専有面積 | 25.74m2 |
|---|---|---|---|
| 所在階 / 向き | 10階 / 北西 | バルコニー面積 | - |
| 水道 / ガス | - | ||
| 設備 | バス・トイレ別、2階以上、オートロック、テレビドアホン、宅配ボックス、浴室乾燥機、追い焚き、インターネット対応、システムキッチン、エアコン、エレベーター、温水洗浄便座、バルコニー、フローリング、洗髪洗面化粧台、2口コンロ、コンロ:ガス、デザイナーズ、インターネット使用料無料、洗濯機:室内 | ||
| 当社物件ID | 23100165 | ||
建物の情報
| 建物名 | エンクレストベイ天神東III | ||
|---|---|---|---|
| 所在地 | 福岡県福岡市博多区築港本町 | ||
| 交通 | 地下鉄空港線 中洲川端駅 徒歩14分 地下鉄箱崎線 中洲川端駅 徒歩14分 地下鉄箱崎線 呉服町駅(福岡) 徒歩16分 | ||
| 階数 | 14階建 | 総戸数 | 104戸 |
| 築年月 | 2017年03月 / 築9年 | エレベーター | あり |
| 駐車場 | 近隣 160m18700円 | バイク置き場 | あり |
| 駐輪場 | あり | 管理人/管理会社 | - |
| 周辺環境 | その他 レガネットキュート 中洲川端店(スーパー)まで985m その他 フードウェイ中洲食小町店(スーパー)まで1042m その他 ベイサイドプレイス博多(ショッピングセンター)まで756m その他 ザ・ダイソーショッパーズ福岡店(その他)まで930m その他 ドン・キホーテ中洲店(その他)まで1042m その他 ローソン 博多築港本町店(コンビニ)まで192m | ||
| 建物種別 | マンション | 建物構造 | RC(鉄筋コンクリート) |
この部屋の取扱い不動産会社
| 会社名 | イースマイル博多店(株)スリーエイチ(SUUMO経由) | ||
|---|---|---|---|
| 所在地 | 福岡県福岡市博多区博多駅南1-14-6 クレベール博多1階 | 交通 | - |
| 営業時間 | 9:30~18:30 | 定休日 | なし |
| 免許番号 | 福岡県知事18562 | 取引態様 | 仲介 |
| 不動産会社管理番号 | 100483287424 | 当社管理番号 | 89 |
| 所属団体 | (公社)福岡県宅地建物取引業協会会員 | ||
| 公正取引協議会 | (一社)九州不動産公正取引協議会加盟 | ||
| 取扱い物件情報 | 物件詳細へ | ||
※各種情報と現状に差異がある場合は、現状優先となります。問い合わせをすることで、より詳しい条件、情報を確認する事ができます。
提供:イースマイル博多店(株)スリーエイチ(SUUMO経由)
この物件が気になったら掲載期限まであと10日
エンクレストベイ天神東IIIに条件(家賃・エリア)が近い物件一覧
| 写真 | 家賃 管理費等 | 敷金 礼金 | 間取り 専有面積 | 築年数 | 最寄り駅 所在地 | キープ | 詳細 |
|---|---|---|---|---|---|---|---|
アパート DーRESIDENCE光丘町B棟 B棟(1LDK/3階) | |||||||
![]() | 9.2万円 6,000円 | なし 18.4万円 | 1LDK 40.01m2 | 新築 | 鹿児島本線 春日駅(福岡) 徒歩8分 鹿児島本線 南福岡駅 徒歩11分 西鉄天神大牟田線 春日原駅 徒歩11分 福岡県福岡市博多区光丘町2丁目 | 詳細を見る | |
マンション 西鉄天神大牟田線 雑餉隈駅 徒歩13分 築30年(3LDK/7階) | |||||||
![]() | 8.2万円 5,000円 | なし 16.4万円 | 3LDK 76.44m2 | 築30年 | 西鉄天神大牟田線 雑餉隈駅 徒歩13分 鹿児島本線 南福岡駅 徒歩15分 西鉄天神大牟田線 春日原駅 徒歩25分 福岡県福岡市博多区井相田3丁目 | 詳細を見る | |
マンション パープルハイツ大野(3LDK/2階) | |||||||
![]() | 6.2万円 3,000円 | なし なし | 3LDK 59.08m2 | 築37年 | 鹿児島本線 水城駅 徒歩24分 西鉄天神大牟田線 下大利駅 徒歩26分 鹿児島本線 大野城駅 徒歩27分 福岡県大野城市紫台 | 詳細を見る | |
アパート ファミールライト(2LDK/2階) | |||||||
![]() | 5.9万円 なし | なし 5.9万円 | 2LDK 57.7m2 | 築38年 | 鹿児島本線 春日駅(福岡) 徒歩6分 西鉄天神大牟田線 春日原駅 徒歩12分 鹿児島本線 南福岡駅 徒歩13分 福岡県福岡市博多区光丘町2丁目 | 詳細を見る | |
マンション LIFEFIELD諸岡2(1DK/4階) | |||||||
![]() | 6.8万円 4,000円 | なし なし | 1DK 27.13m2 | 新築 | 鹿児島本線 笹原駅 徒歩8分 西鉄天神大牟田線 井尻駅 徒歩14分 鹿児島本線 南福岡駅 徒歩24分 福岡県福岡市博多区諸岡5丁目 | 詳細を見る | |
マンション ラクラス博多Ⅱ(1LDK/5階) | |||||||
| 9.1万円 5,000円 | なし 9.1万円 | 1LDK 33.83m2 | 築3年 | 福岡市空港線 博多駅 徒歩9分 福岡市空港線 東比恵駅 徒歩13分 福岡市空港線 祇園駅(福岡) 徒歩20分 福岡県福岡市博多区博多駅南2丁目 | 詳細を見る | ||
アパート CHERIM南福岡V(1LDK/1階) | |||||||
![]() | 7.2万円 3,400円 | なし 7.2万円 | 1LDK 34.22m2 | 新築 | 西鉄天神大牟田線 雑餉隈駅 徒歩5分 西鉄天神大牟田線 桜並木駅 徒歩9分 鹿児島本線 南福岡駅 徒歩13分 福岡県福岡市博多区麦野6丁目 | 詳細を見る | |







