賃貸マンション
S-RESIDENCE豊田AVANTA12月契約限定キの賃貸物件情報(1K/3階)
| 家賃 | 管理費等 | 敷金 | 礼金 | 間取り | 専有面積 |
|---|---|---|---|---|---|
| 6.4万円 | 1万円 | なし | なし | 1K | 24.37m2 |
入居決定でお祝い金最大100,000円
- 保証金
- -
- 償却・敷引
- -
- 築年数
- 築1年
- 所在階
- 3階
- 向き
- 西
Point
エアコンクリーニング費用(解約時)16,500円、(月額)330円
提供:(株)ニッショー豊田支店(SUUMO経由)

詳細情報 S-RESIDENCE豊田AVANTA12月契約限定キ
物件紹介
S-RESIDENCE豊田AVANTA12月契約限定キは名鉄三河線豊田市駅から徒歩10分にあり、駅近で通勤通学に便利なマンションです。
このお部屋は2階以上に位置しているので、通行人や周囲の住人からの視線が気になりにくく、防犯面でも安心。建物のエントランスはオートロックがついており、インターホンにはTVモニタもついているため、相手の顔を確認してから来客対応することができます。
フローリングのお部屋なのでお掃除もラクラク。バス・トイレ別の仕様で、のんびりお風呂タイムも楽しめます。また、浴室乾燥機を使えば、雨の日でもお洗濯は問題ありません。
通信設備面では、インターネットが無料で使えるので、月々の出費を抑えられるのも魅力です(別途工事等が必要な場合あり)。
建物にはエレベーターがついているので、重い荷物があっても安心。また、ペット飼育の相談ができますので、あなたの大切な家族の一員も快適に暮らせるか、ぜひ確認してみてください。
このお部屋は2階以上に位置しているので、通行人や周囲の住人からの視線が気になりにくく、防犯面でも安心。建物のエントランスはオートロックがついており、インターホンにはTVモニタもついているため、相手の顔を確認してから来客対応することができます。
フローリングのお部屋なのでお掃除もラクラク。バス・トイレ別の仕様で、のんびりお風呂タイムも楽しめます。また、浴室乾燥機を使えば、雨の日でもお洗濯は問題ありません。
通信設備面では、インターネットが無料で使えるので、月々の出費を抑えられるのも魅力です(別途工事等が必要な場合あり)。
建物にはエレベーターがついているので、重い荷物があっても安心。また、ペット飼育の相談ができますので、あなたの大切な家族の一員も快適に暮らせるか、ぜひ確認してみてください。
お金・契約の情報
※「-」と表示されているものは、実際は料金が発生するものもございます。詳細はお問い合わせください。
| 家賃 | 6.4万円 | 管理費・共益費 | 1万円 |
|---|---|---|---|
| 敷金 | なし | 礼金 | なし |
| 入居決定でお祝い金最大100,000円 | |||
| 保証金 | - | 償却・敷引 | - |
| 住宅保険料 | - | 更新料 | - |
| 保証会社利用 | 必須 | 保証会社名 | - |
| 保証会社費用 | - | 保証会社備考 | 保証会社利用必 近畿保証 初回保証料:総賃料の50% 1年更新:12,000円 法人契約(上場企業及びそれに準ずる企業)で、保証会社未加入の場合、敷金として賃料の1ヶ月分要 |
| 契約形態 | - | 契約期間 | - |
| 入居・引渡期間 | 即時 | 現況 | - |
| 入居可能条件 | ペット相談 | ||
| 契約備考 | 合計3.3万円(内訳:鍵交換代3.3万円) 更新料 賃料1.00ヶ月分 室内清掃費用 33000円 1K ペット相談 普通借家2年 損保【1.8万円2年】 エアコン、ガスコンロ対応、シャワー付洗面台、TVインターホン、浴室乾燥機、オートロック、温水洗浄便座、エレベーター、洗面所独立、駐輪場、ペット相談、2沿線利用可、2駅利用可、3駅以上利用可、駅徒歩10分以内 | ||
部屋の情報
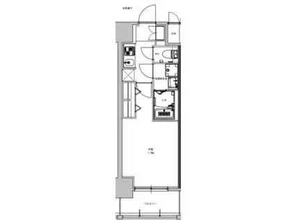
| 間取り | 1K | 専有面積 | 24.37m2 |
|---|---|---|---|
| 所在階 / 向き | 3階 / 西 | バルコニー面積 | - |
| 水道 / ガス | - | ||
| 設備 | 2階以上、オートロック、テレビドアホン、浴室乾燥機、エアコン、エレベーター、温水洗浄便座、洗髪洗面化粧台、コンロ:ガス | ||
| 当社物件ID | 159879984 | ||
建物の情報
| 建物名 | S-RESIDENCE豊田AVANTA12月契約限定キ | ||
|---|---|---|---|
| 所在地 | 愛知県豊田市日之出町 | ||
| 交通 | 名鉄三河線 豊田市駅 徒歩10分 愛知環状鉄道 新豊田駅 徒歩14分 名鉄三河線 梅坪駅 徒歩18分 | ||
| 階数 | 14階建 | 総戸数 | 65戸 |
| 築年月 | 2025年10月 / 築1年 | エレベーター | あり |
| 駐車場 | なし | バイク置き場 | - |
| 駐輪場 | あり | 管理人/管理会社 | - |
| 周辺環境 | その他 セブンイレブン豊田市日之出町店(コンビニ)まで267m その他 t-face(ショッピングセンター)まで1008m その他 クロスモール豊田陣中(ショッピングセンター)まで432m その他 フェルナ陣中店(スーパー)まで589m | ||
| 建物種別 | マンション | 建物構造 | RC(鉄筋コンクリート) |
この部屋の取扱い不動産会社
| 会社名 | (株)ニッショー豊田支店(SUUMO経由) | ||
|---|---|---|---|
| 所在地 | 愛知県豊田市御幸本町1-192京屋ビル2階 | 交通 | - |
| 営業時間 | 10:00~18:00 | 定休日 | 水曜定休(土日祝は営業) |
| 免許番号 | 国土交通大臣2018 | 取引態様 | 仲介 |
| 不動産会社管理番号 | 100473516814 | 当社管理番号 | 89 |
| 所属団体 | (公社)愛知県宅地建物取引業協会会員 | ||
| 公正取引協議会 | 東海不動産公正取引協議会加盟 | ||
| 取扱い物件情報 | 物件詳細へ | ||
※各種情報と現状に差異がある場合は、現状優先となります。問い合わせをすることで、より詳しい条件、情報を確認する事ができます。
提供:(株)ニッショー豊田支店(SUUMO経由)
この物件が気になったら掲載期限まであと11日
S-RESIDENCE豊田AVANTA12月契約限定キの空き部屋一覧
全部で51の空き部屋があります。
S-RESIDENCE豊田AVANTA12月契約限定キに条件(家賃・エリア)が近い物件一覧
| 写真 | 家賃 管理費等 | 敷金 礼金 | 間取り 専有面積 | 築年数 | 最寄り駅 所在地 | キープ | 詳細 |
|---|---|---|---|---|---|---|---|
テラスハウス ネクストハタマ(2LDK) | |||||||
![]() | 6.4万円 3,600円 | 12.8万円 なし | 2LDK 59.62m2 | 築24年 | 名鉄三河線 上挙母駅 徒歩7分 愛知環状鉄道 新上挙母駅 徒歩12分 愛知県豊田市金谷町6丁目 | 詳細を見る | |
アパート クレストール新城C(2DK/1階) | |||||||
![]() | 4.5万円 3,300円 | なし なし | 2DK 44.34m2 | 築29年 | 飯田線 茶臼山駅 徒歩12分 飯田線 東新町駅 徒歩12分 愛知県新城市平井字道目木 | 詳細を見る | |
アパート レイクヒルズ(2LDK/1階) | |||||||
![]() | 6.7万円 3,000円 | なし なし | 2LDK 55.79m2 | 築16年 | 名鉄三河線 豊田市駅 徒歩50分 愛知県豊田市泉町 | 詳細を見る | |
アパート エコハウス畔柳(2LDK/1階) | |||||||
![]() | 7.3万円 3,000円 | 14.6万円 なし | 2LDK 66.9m2 | 築21年 | 名鉄名古屋本線 新安城駅 徒歩21分 名鉄三河線 三河八橋駅 徒歩33分 名鉄名古屋本線 牛田駅(愛知) 徒歩46分 愛知県安城市里町 | 詳細を見る | |
アパート モストフィールド上地(1K/2階) | |||||||
![]() | 4.8万円 5,000円 | なし 2万円 | 1K 26.71m2 | 築25年 | 愛知県岡崎市上地4丁目 | 詳細を見る | |
アパート セントラルコートサイトウ(1K/2階) | |||||||
![]() | 4.3万円 5,000円 | 4.3万円 なし | 1K 25.29m2 | 築25年 | 愛知環状鉄道 愛環梅坪駅 徒歩3分 名鉄三河線 梅坪駅 徒歩12分 愛知県豊田市京町 | 詳細を見る | |
アパート サフィニアガーデンB棟(2DK/2階) | |||||||
![]() | 6.1万円 4,000円 | なし なし | 2DK 50m2 | 築21年 | 名鉄豊田線 日進駅(愛知) 徒歩15分 愛知県日進市折戸町高松 | 詳細を見る | |








