賃貸マンション
ザ・パークハビオ名古屋松原の賃貸物件情報(1K/9階)
| 家賃 | 管理費等 | 敷金 | 礼金 | 間取り | 専有面積 |
|---|---|---|---|---|---|
| 6.93万円 | 8,000円 | 6.93万円 | なし | 1K | 27.23m2 |
入居決定でお祝い金最大100,000円
Point
礼金無・フリーレント賃料1か月 個人のみ※2月末申込分迄
提供:アパマンショップ金山店

詳細情報 ザ・パークハビオ名古屋松原
物件紹介
ザ・パークハビオ名古屋松原は名古屋市鶴舞線大須観音駅から徒歩9分にあり、駅近で通勤通学に便利なマンションです。
このお部屋は2階以上に位置しているので、通行人や周囲の住人からの視線が気になりにくく、防犯面でも安心。建物のエントランスはオートロックがついており、インターホンにはTVモニタもついているため、相手の顔を確認してから来客対応することができます。
こちらは楽器相談が可能な物件。楽器演奏をお考えの方はぜひ相談してみてください。フローリングのお部屋なのでお掃除もラクラク。室内には人気のウォークインクローゼットがありますので、たくさんの荷物も効率的に収納ができます。キッチンはシステムキッチン仕様になっていますので、お料理好きの方にもぴったり。バス・トイレは別なので、のんびりお風呂タイムも楽しめるでしょう。また、雨の日でも浴室乾燥機を使えば、お洗濯も問題ありません。
通信設備面では、インターネット接続が可能です。また、BSアンテナ・CSアンテナもありますので、おうち時間も充実するでしょう(別途工事、契約料が必要な場合あり)。
建物にはエレベーターがついているので、重い荷物があっても安心。共用部には宅配ボックスが設定されているので、不在の時にも荷物を受け取ることができます。また、ペット飼育の相談ができますので、あなたの大切な家族の一員も快適に暮らせるか、ぜひ確認してみてください。
このお部屋は2階以上に位置しているので、通行人や周囲の住人からの視線が気になりにくく、防犯面でも安心。建物のエントランスはオートロックがついており、インターホンにはTVモニタもついているため、相手の顔を確認してから来客対応することができます。
こちらは楽器相談が可能な物件。楽器演奏をお考えの方はぜひ相談してみてください。フローリングのお部屋なのでお掃除もラクラク。室内には人気のウォークインクローゼットがありますので、たくさんの荷物も効率的に収納ができます。キッチンはシステムキッチン仕様になっていますので、お料理好きの方にもぴったり。バス・トイレは別なので、のんびりお風呂タイムも楽しめるでしょう。また、雨の日でも浴室乾燥機を使えば、お洗濯も問題ありません。
通信設備面では、インターネット接続が可能です。また、BSアンテナ・CSアンテナもありますので、おうち時間も充実するでしょう(別途工事、契約料が必要な場合あり)。
建物にはエレベーターがついているので、重い荷物があっても安心。共用部には宅配ボックスが設定されているので、不在の時にも荷物を受け取ることができます。また、ペット飼育の相談ができますので、あなたの大切な家族の一員も快適に暮らせるか、ぜひ確認してみてください。
お金・契約の情報
※「-」と表示されているものは、実際は料金が発生するものもございます。詳細はお問い合わせください。
| 家賃 | 6.93万円 | 管理費・共益費 | 8,000円 |
|---|---|---|---|
| 敷金 | 6.93万円 | 礼金 | なし |
| 入居決定でお祝い金最大100,000円 | |||
| 保証金 | - | 償却・敷引 | - |
| 住宅保険料 | - | 更新料 | - |
| 保証会社利用 | 必須 | 保証会社名 | - |
| 保証会社費用 | - | 保証会社備考 | 日本セーフティー 初年度保証料:賃料等合計額の50%(最低保証料2万円)2年目以降:1年毎1万円 |
| 契約形態 | - | 契約期間 | 2年 |
| 入居・引渡期間 | 相談 | 現況 | - |
| 入居可能条件 | 楽器可、ペット可 | ||
| 契約備考 | 礼金無・フリーレント賃料1か月(1年未満解約時、賃料2か月分の違約金有/法人契約は礼金1か月・FR無) 引越日は引越幹事会社へ要相談 駆付けサポート24借主加入 保証会社未使用時敷金2か月 ペット・楽器(諸条件弊社募集図面要確認) SOHO使用応相談(敷金 | ||
部屋の情報
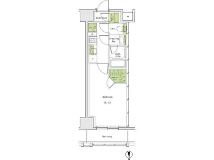
| 間取り | 1K | 専有面積 | 27.23m2 |
|---|---|---|---|
| 間取り詳細 | 洋室(8.1帖) | ||
| 所在階 / 向き | 9階 / 北 | バルコニー面積 | 3m2 |
| 水道 / ガス | - | ||
| 設備 | バス・トイレ別、オートロック、テレビドアホン、宅配ボックス、浴室乾燥機、ウォークインクローゼット、追い焚き、光ファイバー対応、エレベーター、温水洗浄便座、バルコニー、フローリング、シャワー、給湯、洗濯機:室内 | ||
| 当社物件ID | 160473913 | ||
建物の情報
| 建物名 | ザ・パークハビオ名古屋松原 | ||
|---|---|---|---|
| 所在地 | 愛知県名古屋市中区松原2丁目 | ||
| 交通 | 名古屋市鶴舞線 大須観音駅 徒歩9分 | ||
| 階数 | 13階建 | 総戸数 | 108戸 |
| 築年月 | 2025年02月 / 築2年 | エレベーター | あり |
| 駐車場 | 空有 2.42万円/月 | バイク置き場 | あり |
| 駐輪場 | あり | 管理人/管理会社 | - |
| 周辺環境 | 小学校 松原小学校 徒歩8分(612m) 病院 大須病院 徒歩3分(168m) その他 大須観音宝生院 徒歩13分(968m) その他 ヤマナカ松原店 徒歩6分(416m) その他 ドラッグスギヤマ松原店 徒歩5分(399m) その他 西大須公園 徒歩8分(589m) その他 ファミリーマート 徒歩11分(831m) その他 名古屋橘郵便局 徒歩8分(602m) | ||
| 建物種別 | マンション | 建物構造 | RC(鉄筋コンクリート) |
この部屋の取扱い不動産会社
| 会社名 | アパマンショップ御器所店 | ||
|---|---|---|---|
| 所在地 | 愛知県名古屋市昭和区阿由知通3丁目 23ソレイユ御器所1F | 交通 | 名古屋市鶴舞線御器所から徒歩1分 |
| 営業時間 | 10:00〜18:00 | 定休日 | - |
| 免許番号 | 愛知県知事(8)16306 | 取引態様 | 仲介 |
| 不動産会社管理番号 | 1003245895 | 当社管理番号 | 4 |
| 所属団体 | (公社)愛知県宅地建物取引業協会 | ||
| 公正取引協議会 | 東海不動産公正取引協議会加盟 | ||
| 取扱い物件情報 | 物件詳細へ | ||
※各種情報と現状に差異がある場合は、現状優先となります。問い合わせをすることで、より詳しい条件、情報を確認する事ができます。
提供:アパマンショップ御器所店
この物件が気になったら掲載期限まであと13日
ザ・パークハビオ名古屋松原の空き部屋一覧
全部で24の空き部屋があります。
ザ・パークハビオ名古屋松原に条件(家賃・エリア)が近い物件一覧
| 写真 | 家賃 管理費等 | 敷金 礼金 | 間取り 専有面積 | 築年数 | 最寄り駅 所在地 | キープ | 詳細 |
|---|---|---|---|---|---|---|---|
マンション プレサンス上前津ディアシス(1LDK/15階) | |||||||
![]() | 9.07万円 8,880円 | なし 9.07万円 | 1LDK 32.3m2 | 築1年 | 地下鉄鶴舞線 上前津駅 徒歩4分 地下鉄名城線 東別院駅 徒歩11分 地下鉄鶴舞線 大須観音駅 徒歩14分 愛知県名古屋市中区上前津 | 詳細を見る | |
マンション プレサンスMIU新栄(ワンルーム/10階) | |||||||
![]() | 5.301万円 1.099万円 | なし 6.4万円 | ワンルーム 24.94m2 | 築18年 | 名古屋市東山線 新栄町駅(愛知) 徒歩7分 名古屋市桜通線 高岳駅 徒歩16分 中央本線 千種駅 徒歩17分 愛知県名古屋市中区新栄2丁目 | 詳細を見る | |
マンション プレサンス新栄アーバンフロー(1K/14階) | |||||||
![]() | 6.293万円 7,070円 | なし 7万円 | 1K 22.8m2 | 築4年 | 名古屋市東山線 新栄町駅(愛知) 徒歩7分 愛知県名古屋市中区新栄2丁目 | 詳細を見る | |
マンション メイクスデザイン鶴舞(1K/7階) | |||||||
![]() | 5.9万円 8,000円 | なし なし | 1K 23.63m2 | 築7年 | JR中央本線 鶴舞駅 徒歩5分 地下鉄名城線 矢場町駅 徒歩11分 地下鉄鶴舞線 上前津駅 徒歩14分 愛知県名古屋市中区千代田 | 詳細を見る | |
マンション メイクス鶴舞Ⅱ(1DK/9階) | |||||||
![]() | 6.65万円 8,000円 | なし なし | 1DK 26.76m2 | 築4年 | 名古屋市鶴舞線 鶴舞駅 徒歩6分 中央本線 鶴舞駅 徒歩9分 名古屋市鶴舞線 上前津駅 徒歩9分 愛知県名古屋市中区千代田3丁目 | 詳細を見る | |
マンション メイクスアート新栄Ⅲ(1K/6階) | |||||||
![]() | 6.05万円 8,000円 | なし なし | 1K 22.37m2 | 築1年 | 名古屋市東山線 新栄町駅(愛知) 徒歩8分 愛知県名古屋市中区新栄2丁目 | 詳細を見る | |
マンション MAXIV新栄(1K/10階) | |||||||
![]() | 5.8万円 8,000円 | なし なし | 1K 20.72m2 | 築1年 | 中央本線 千種駅 徒歩9分 名古屋市東山線 新栄町駅(愛知) 徒歩10分 名古屋市桜通線 車道駅 徒歩12分 愛知県名古屋市中区新栄3丁目 | 詳細を見る | |
マンション S-RESIDENCE東別院(1K/13階) | |||||||
![]() | 7.8万円 7,000円 | なし なし | 1K 29.72m2 | 築4年 | 名古屋市名城線 東別院駅 徒歩5分 名古屋市鶴舞線 上前津駅 徒歩12分 名古屋市名城線 上前津駅 徒歩12分 愛知県名古屋市中区大井町 | 詳細を見る | |



/105x80-f1-q70-wp1)




