賃貸マンション
THE TOKYO TOWERS MIDTOWERの賃貸物件情報(1LDK/11階)
| 家賃 | 管理費等 | 敷金 | 礼金 | 間取り | 専有面積 |
|---|---|---|---|---|---|
| 24.1万円 | 1.5万円 | 48.2万円 | なし | 1LDK | 52.32m2 |
入居決定でお祝い金最大100,000円
- 保証金
- -
- 償却・敷引
- -
- 築年数
- 築19年
- 所在階
- 11階
- 向き
- 北東
Point
☆港区・渋谷区の不動産はピアホームにお任せください・初期費用クレカ決済もご相談下さい!!
提供:SEG(株)PeerHome広尾駅前店アネックス(SUUMO経由)

詳細情報 THE TOKYO TOWERS MIDTOWER
物件紹介
THE TOKYO TOWERS MIDTOWERは都営大江戸線勝どき駅から徒歩5分にあり、駅近で通勤通学に便利なマンションです。
このお部屋は2階以上に位置しているので、通行人や周囲の住人からの視線が気になりにくく、防犯面でも安心。建物のエントランスはオートロックがついており、インターホンにはTVモニタもついているため、相手の顔を確認してから来客対応することができます。
こちらは楽器相談が可能な物件。楽器演奏をお考えの方はぜひ相談してみてください。フローリングのお部屋なのでお掃除もラクラク。キッチンはシステムキッチン仕様になっていますので、お料理好きの方にもぴったり。バス・トイレは別なので、のんびりお風呂タイムも楽しめるでしょう。また、雨の日でも浴室乾燥機を使えば、お洗濯も問題ありません。
通信設備面では、インターネットが無料で使えるので、月々の出費を抑えられるのも魅力です。また、CATVにも対応しているので、おうち時間も充実するでしょう(別途工事、CATVの契約料等が必要な場合あり)。
建物にはエレベーターがついているので、重い荷物があっても安心。共用部には宅配ボックスが設定されているので、不在の時にも荷物を受け取ることができます。また、ペット飼育の相談ができますので、あなたの大切な家族の一員も快適に暮らせるか、ぜひ確認してみてください。
このお部屋は2階以上に位置しているので、通行人や周囲の住人からの視線が気になりにくく、防犯面でも安心。建物のエントランスはオートロックがついており、インターホンにはTVモニタもついているため、相手の顔を確認してから来客対応することができます。
こちらは楽器相談が可能な物件。楽器演奏をお考えの方はぜひ相談してみてください。フローリングのお部屋なのでお掃除もラクラク。キッチンはシステムキッチン仕様になっていますので、お料理好きの方にもぴったり。バス・トイレは別なので、のんびりお風呂タイムも楽しめるでしょう。また、雨の日でも浴室乾燥機を使えば、お洗濯も問題ありません。
通信設備面では、インターネットが無料で使えるので、月々の出費を抑えられるのも魅力です。また、CATVにも対応しているので、おうち時間も充実するでしょう(別途工事、CATVの契約料等が必要な場合あり)。
建物にはエレベーターがついているので、重い荷物があっても安心。共用部には宅配ボックスが設定されているので、不在の時にも荷物を受け取ることができます。また、ペット飼育の相談ができますので、あなたの大切な家族の一員も快適に暮らせるか、ぜひ確認してみてください。
お金・契約の情報
※「-」と表示されているものは、実際は料金が発生するものもございます。詳細はお問い合わせください。
| 家賃 | 24.1万円 | 管理費・共益費 | 1.5万円 |
|---|---|---|---|
| 敷金 | 48.2万円 | 礼金 | なし |
| 入居決定でお祝い金最大100,000円 | |||
| 保証金 | - | 償却・敷引 | - |
| 住宅保険料 | - | 更新料 | - |
| 保証会社利用 | 必須 | 保証会社名 | オリコ |
| 保証会社費用 | - | 保証会社備考 | オリコ利用必 初回保証料:賃料等の50%、年次保証料:10000円/年、支払委託手数料月額330円 |
| 契約形態 | - | 契約期間 | - |
| 入居・引渡期間 | 即時 | 現況 | - |
| 入居可能条件 | 楽器相談、ペット相談 | ||
| 契約備考 | 常駐管理/※短期解約時、違約金が発生する場合がございます。※同タイプ・別階の内観写真を掲載している場合があります。図面と現況が異なる場合は現況を優先いたします。※2024年10月から2027年3月頃まで大規模修繕実施 ペット(小型犬又は猫)・登録料有:賃料1ケ月/ペットクラブ要加入(有料) 1LDK ペット相談/楽器相談 損保【2万円2年】 バストイレ別、バルコニー、エアコン、ガスコンロ対応、クロゼット、フローリング、TVインターホン、浴室乾燥機、オートロック、室内洗濯置、シューズボックス、システムキッチン、追焚機能浴室、温水洗浄便座、エレベーター、洗面所独立、駐輪場、宅配ボックス、CATV、3口以上コンロ、防犯カメラ、ペット相談、保証人不要、全居室フローリング、24時間換気システム、楽器相談、エレベーター2基、タワー型マンション、24時間ゴミ出し可、敷地内ごみ置き場、都市ガス、初期費用カード決済可 | ||
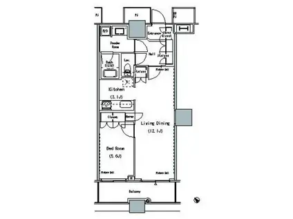
部屋の情報
| 間取り | 1LDK | 専有面積 | 52.32m2 |
|---|---|---|---|
| 所在階 / 向き | 11階 / 北東 | バルコニー面積 | - |
| 水道 / ガス | - | ||
| 設備 | バス・トイレ別、2階以上、オートロック、テレビドアホン、宅配ボックス、浴室乾燥機、追い焚き、システムキッチン、エアコン、エレベーター、温水洗浄便座、バルコニー、フローリング、洗髪洗面化粧台、タワーマンション、2口コンロ、コンロ:ガス、CATV、洗濯機:室内 | ||
| 当社物件ID | 21255945 | ||
建物の情報
| 建物名 | THE TOKYO TOWERS MIDTOWER | ||
|---|---|---|---|
| 所在地 | 東京都中央区勝どき | ||
| 交通 | 都営大江戸線 勝どき駅 徒歩5分 東京メトロ有楽町線 月島駅 徒歩15分 都営大江戸線 築地市場駅 徒歩19分 | ||
| 階数 | 58階建 | 総戸数 | - |
| 築年月 | 2008年01月 / 築19年 | エレベーター | あり |
| 駐車場 | なし | バイク置き場 | - |
| 駐輪場 | あり | 管理人/管理会社 | - |
| 周辺環境 | その他 豊海小学校(小学校)まで300m その他 一般財団法人 聖路加国際メディカルセンター(病院)まで1392m その他 セブンイレブン 勝どき5丁目(コンビニ)まで50m その他 マルエツ 晴海三丁目店(スーパー)まで50m その他 晴海中学校(中学校)まで1077m | ||
| 建物種別 | マンション | 建物構造 | RC(鉄筋コンクリート) |
この部屋の取扱い不動産会社
| 会社名 | SEG(株)広尾本店(SUUMO経由) | ||
|---|---|---|---|
| 所在地 | 東京都渋谷区広尾5-3-13 Barbizon86 6階 | 交通 | - |
| 営業時間 | 9:00~18:30 | 定休日 | なし |
| 免許番号 | 東京都知事103362 | 取引態様 | 仲介 |
| 不動産会社管理番号 | 100464369233 | 当社管理番号 | 89 |
| 所属団体 | (公社)東京都宅地建物取引業協会会員 | ||
| 公正取引協議会 | (公社)首都圏不動産公正取引協議会加盟 | ||
| 取扱い物件情報 | 物件詳細へ | ||
※各種情報と現状に差異がある場合は、現状優先となります。問い合わせをすることで、より詳しい条件、情報を確認する事ができます。
提供:SEG(株)広尾本店(SUUMO経由)
この物件が気になったら掲載期限まであと10日
THE TOKYO TOWERS MIDTOWERの空き部屋一覧
全部で29の空き部屋があります。
THE TOKYO TOWERS MIDTOWERに条件(家賃・エリア)が近い物件一覧
| 写真 | 家賃 管理費等 | 敷金 礼金 | 間取り 専有面積 | 築年数 | 最寄り駅 所在地 | キープ | 詳細 |
|---|---|---|---|---|---|---|---|
マンション マイナビSTAY浅草蔵前(1LDK/4階) | |||||||
![]() | 23.6万円 1.1万円 | なし 47.2万円 | 1LDK 40.49m2 | 築6年 | 東京都浅草線 蔵前駅 徒歩5分 東京都大江戸線 新御徒町駅 徒歩8分 総武・中央緩行線 浅草橋駅 徒歩11分 東京都台東区三筋1丁目 | 詳細を見る | |
マンション ORSUS 三ノ輪(1LDK/5階) | |||||||
![]() | 16.8万円 1.5万円 | 16.8万円 なし | 1LDK 38.64m2 | 築3年 | 東京地下鉄日比谷線 三ノ輪駅 徒歩7分 東京都荒川線 三ノ輪橋駅 徒歩10分 東武伊勢崎・大師線 竹ノ塚駅 徒歩3分 東京都台東区竜泉3丁目 | 詳細を見る | |
マンション ザ・パークワンズ日本橋人形町(1LDK/2階) | |||||||
![]() | 21万円 なし | 21万円 21万円 | 1LDK 33.26m2 | 築1年 | 東京メトロ日比谷線 人形町駅 徒歩3分 東京メトロ半蔵門線 水天宮前駅 徒歩5分 都営新宿線 浜町駅 徒歩8分 東京都中央区日本橋人形町 | 詳細を見る | |
マンション あやめガーデン(2K/12階) | |||||||
![]() | 17.5万円 1万円 | 17.5万円 17.5万円 | 2K 42.26m2 | 築12年 | 東京メトロ日比谷線 築地駅 徒歩1分 東京メトロ有楽町線 新富町駅(東京) 徒歩6分 東京メトロ日比谷線 東銀座駅 徒歩6分 東京都中央区築地 | 詳細を見る | |
マンション RR HIRANO(1LDK/3階) | |||||||
![]() | 21万円 なし | 42万円 21万円 | 1LDK 56.21m2 | 築35年 | 東京メトロ半蔵門線 清澄白河駅 徒歩9分 都営大江戸線 清澄白河駅 徒歩9分 東京メトロ東西線 門前仲町駅 徒歩16分 東京都江東区平野 | 詳細を見る | |
マンション ジェノヴィア錦糸町スカイガーデン(1LDK/9階) | |||||||
![]() | 18.9万円 1.1万円 | なし 18.9万円 | 1LDK 40.71m2 | 築7年 | JR総武線 錦糸町駅 徒歩9分 東京メトロ半蔵門線 錦糸町駅 徒歩9分 都営新宿線 菊川駅(東京) 徒歩11分 東京都墨田区緑 | 詳細を見る | |
マンション パークアクシス東陽町レジデンス(1LDK/2階) | |||||||
![]() | 20.4万円 1.8万円 | 20.4万円 なし | 1LDK 37.59m2 | 築4年 | 東京メトロ東西線 東陽町駅 徒歩9分 東京メトロ東西線 木場駅 徒歩13分 東京メトロ半蔵門線 住吉駅(東京) 徒歩23分 東京都江東区東陽 | 詳細を見る | |
マンション ベルファース神田神保町(1DK/11階) | |||||||
![]() | 18万円 1万円 | 18万円 なし | 1DK 25.05m2 | 築3年 | 東京地下鉄半蔵門線 神保町駅 徒歩4分 東京都三田線 神保町駅 徒歩4分 総武・中央緩行線 水道橋駅 徒歩8分 東京都千代田区神田神保町1丁目 | 詳細を見る | |








