賃貸マンション
ハーモニーレジデンス大塚山手の賃貸物件情報(1K/12階)
| 家賃 | 管理費等 | 敷金 | 礼金 | 間取り | 専有面積 |
|---|---|---|---|---|---|
| 10.6万円 | 1.5万円 | なし | 10.6万円 | 1K | 27.31m2 |
入居決定でお祝い金最大100,000円
Point
弊社のAIお部屋探しでは多条件の物件でも広範囲からお探しできます。SUUMO掲載は募集後4~9時間遅れます。LINEでは最新物件をご提案!管理会社・オーナー意向での掲載不可物件も多数紹介可能!
提供:(株)トナリスク(SUUMO経由)

詳細情報 ハーモニーレジデンス大塚山手
物件紹介
ハーモニーレジデンス大塚山手はJR山手線大塚駅から徒歩6分にあり、駅近で通勤通学に便利なマンションです。
このお部屋は2階以上に位置しているので、通行人や周囲の住人からの視線が気になりにくく、防犯面でも安心。建物のエントランスはオートロックがついており、インターホンにはTVモニタもついているため、相手の顔を確認してから来客対応することができます。
フローリングのお部屋なのでお掃除もラクラク。キッチンはシステムキッチン仕様になっていますので、お料理好きの方にもぴったり。バス・トイレは別なので、のんびりお風呂タイムも楽しめるでしょう。また、雨の日でも浴室乾燥機を使えば、お洗濯も問題ありません。
通信設備面では、インターネット接続が可能です。また、BSアンテナ・CSアンテナもありますので、おうち時間も充実するでしょう(別途工事、契約料が必要な場合あり)。
建物にはエレベーターがついているので、重い荷物があっても安心。共用部には宅配ボックスが設定されているので、不在の時にも荷物を受け取ることができます。
このお部屋は2階以上に位置しているので、通行人や周囲の住人からの視線が気になりにくく、防犯面でも安心。建物のエントランスはオートロックがついており、インターホンにはTVモニタもついているため、相手の顔を確認してから来客対応することができます。
フローリングのお部屋なのでお掃除もラクラク。キッチンはシステムキッチン仕様になっていますので、お料理好きの方にもぴったり。バス・トイレは別なので、のんびりお風呂タイムも楽しめるでしょう。また、雨の日でも浴室乾燥機を使えば、お洗濯も問題ありません。
通信設備面では、インターネット接続が可能です。また、BSアンテナ・CSアンテナもありますので、おうち時間も充実するでしょう(別途工事、契約料が必要な場合あり)。
建物にはエレベーターがついているので、重い荷物があっても安心。共用部には宅配ボックスが設定されているので、不在の時にも荷物を受け取ることができます。
お金・契約の情報
※「-」と表示されているものは、実際は料金が発生するものもございます。詳細はお問い合わせください。
| 家賃 | 10.6万円 | 管理費・共益費 | 1.5万円 |
|---|---|---|---|
| 敷金 | なし | 礼金 | 10.6万円 |
| 入居決定でお祝い金最大100,000円 | |||
| 保証金 | - | 償却・敷引 | - |
| 住宅保険料 | - | 更新料 | - |
| 保証会社利用 | 利用可 | 保証会社名 | - |
| 保証会社費用 | - | 保証会社備考 | 保証会社利用可 確認中 |
| 契約形態 | - | 契約期間 | - |
| 入居・引渡期間 | 相談 | 現況 | - |
| 契約備考 | 更新料 新賃料1.00ヶ月分 1K 普通借家2年 バストイレ別、エアコン、ガスコンロ対応、フローリング、TVインターホン、浴室乾燥機、オートロック、室内洗濯置、システムキッチン、温水洗浄便座、エレベーター、洗面所独立、宅配ボックス、照明付、分譲賃貸、24時間緊急通報システム、ディンプルキー、CS、24時間換気システム、プロパンガス、BS、高速ネット対応 | ||
部屋の情報
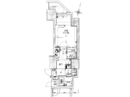
| 間取り | 1K | 専有面積 | 27.31m2 |
|---|---|---|---|
| 所在階 / 向き | 12階 / 北 | バルコニー面積 | - |
| 水道 / ガス | - | ||
| 設備 | バス・トイレ別、2階以上、オートロック、テレビドアホン、宅配ボックス、浴室乾燥機、インターネット対応、システムキッチン、エアコン、エレベーター、温水洗浄便座、フローリング、洗髪洗面化粧台、コンロ:ガス、CSアンテナ、BSアンテナ、洗濯機:室内 | ||
| 当社物件ID | 28925199 | ||
建物の情報
| 建物名 | ハーモニーレジデンス大塚山手 | ||
|---|---|---|---|
| 所在地 | 東京都豊島区南大塚 | ||
| 交通 | JR山手線 大塚駅(東京) 徒歩6分 東京メトロ丸ノ内線 新大塚駅 徒歩6分 | ||
| 階数 | 14階建 | 総戸数 | 39戸 |
| 築年月 | 2018年10月 / 築8年 | エレベーター | あり |
| 駐車場 | なし | バイク置き場 | - |
| 駐輪場 | - | 管理人/管理会社 | - |
| 建物種別 | マンション | 建物構造 | RC(鉄筋コンクリート) |
この部屋の取扱い不動産会社
| 会社名 | (株)トナリスク(SUUMO経由) | ||
|---|---|---|---|
| 所在地 | 東京都豊島区北大塚2-14-1 鈴矢ビル402 | 交通 | - |
| 営業時間 | 10時~19時 | 定休日 | 火曜・水曜 |
| 免許番号 | 東京都知事112620 | 取引態様 | 仲介 |
| 不動産会社管理番号 | 100492600241 | 当社管理番号 | 89 |
| 所属団体 | (公社)東京都宅地建物取引業協会会員 | ||
| 公正取引協議会 | (公社)首都圏不動産公正取引協議会加盟 | ||
| 取扱い物件情報 | 物件詳細へ | ||
※各種情報と現状に差異がある場合は、現状優先となります。問い合わせをすることで、より詳しい条件、情報を確認する事ができます。
提供:(株)トナリスク(SUUMO経由)
この物件が気になったら掲載期限まであと10日
ハーモニーレジデンス大塚山手に条件(家賃・エリア)が近い物件一覧
| 写真 | 家賃 管理費等 | 敷金 礼金 | 間取り 専有面積 | 築年数 | 最寄り駅 所在地 | キープ | 詳細 |
|---|---|---|---|---|---|---|---|
マンション 菱和パレス御茶ノ水湯島天神町(1K/6階) | |||||||
![]() | 9.3万円 1万円 | 9.3万円 9.3万円 | 1K 19.57m2 | 築27年 | 東京地下鉄千代田線 湯島駅 徒歩2分 東京地下鉄銀座線 上野広小路駅 徒歩7分 山手線 御徒町駅 徒歩8分 東京都文京区湯島3丁目 | 詳細を見る | |
マンション ウェルスクエアイズム文京小日向(ワンルーム/3階) | |||||||
![]() | 11万円 6,000円 | なし 11万円 | ワンルーム 21.49m2 | 築7年 | 東京地下鉄有楽町線 江戸川橋駅 徒歩3分 東京地下鉄東西線 神楽坂駅 徒歩12分 東京地下鉄丸ノ内線 茗荷谷駅 徒歩13分 東京都文京区小日向2丁目 | 詳細を見る | |
マンション ヴェルト湯島(1K/9階) | |||||||
![]() | 9.6万円 9,000円 | 9.6万円 9.6万円 | 1K 21.58m2 | 築22年 | 東京地下鉄千代田線 湯島駅 徒歩1分 東京地下鉄銀座線 上野広小路駅 徒歩5分 山手線 御徒町駅 徒歩8分 東京都文京区湯島3丁目 | 詳細を見る | |
マンション 本郷SSレジデンス(1K/4階) | |||||||
![]() | 10.6万円 6,000円 | 10.6万円 10.6万円 | 1K 24.9m2 | 築23年 | 東京都大江戸線 本郷三丁目駅 徒歩3分 東京地下鉄丸ノ内線 本郷三丁目駅 徒歩3分 東京都文京区本郷3丁目 | 詳細を見る | |
マンション チアフル弥生(2LDK/3階) | |||||||
![]() | 13.8万円 なし | 13.8万円 なし | 2LDK 44.8m2 | 築50年 | 東京地下鉄千代田線 根津駅 徒歩6分 東京地下鉄南北線 東大前駅 徒歩8分 東京都大江戸線 本郷三丁目駅 徒歩17分 東京都文京区弥生2丁目 | 詳細を見る | |
マンション シルバープラザ白山(ワンルーム/9階) | |||||||
![]() | 10.4万円 1.2万円 | 10.4万円 10.4万円 | ワンルーム 26.88m2 | 築41年 | 東京都三田線 春日駅(東京) 徒歩6分 東京都大江戸線 春日駅(東京) 徒歩6分 東京都三田線 白山駅(東京) 徒歩7分 東京都文京区白山1丁目 | 詳細を見る | |
マンション 山口第一ビル(ワンルーム/4階) | |||||||
![]() | 8万円 なし | 8万円 なし | ワンルーム 21.5m2 | 築64年 | 山手線 巣鴨駅 徒歩9分 東京都三田線 千石駅 徒歩9分 山手線 大塚駅(東京) 徒歩14分 東京都文京区千石3丁目 | 詳細を見る | |
マンション メゾン・ド・ヴィレ本駒込(1K/8階) | |||||||
![]() | 8.3万円 1万円 | 8.3万円 8.3万円 | 1K 27.08m2 | 築28年 | 山手線 田端駅 徒歩9分 東京地下鉄南北線 本駒込駅 徒歩12分 東京地下鉄千代田線 千駄木駅 徒歩12分 東京都文京区本駒込4丁目 | 詳細を見る | |









