賃貸マンション
エミリブ鷺ノ宮の賃貸物件情報(1DK/2階)
| 家賃 | 管理費等 | 敷金 | 礼金 | 間取り | 専有面積 |
|---|---|---|---|---|---|
| 12.3万円 | 8,000円 | 12.3万円 | なし | 1DK | 30.26m2 |
入居決定でお祝い金最大100,000円
- 保証金
- -
- 償却・敷引
- -
- 築年数
- 築8年
- 所在階
- 2階
- 向き
- 南東
Point
【相見積もり歓迎宣言キャンペーン!ご見学予約受付中♪】こちらのお部屋はアクセス増加中の人気物件です!初期費用のお見積り無料・クレカ決済も対応しておりますので、気になる方はお早めにお問い合わせください!
提供:(株)アブレイズ・コーポレーション渋谷駅前支店(SUUMO経由)

詳細情報 エミリブ鷺ノ宮
物件紹介
エミリブ鷺ノ宮は西武新宿線鷺ノ宮駅から徒歩3分にあり、駅近で通勤通学に便利なマンションです。
このお部屋は2階以上に位置しているので、通行人や周囲の住人からの視線が気になりにくく、防犯面でも安心。建物のエントランスはオートロックがついており、インターホンにはTVモニタもついているため、相手の顔を確認してから来客対応することができます。
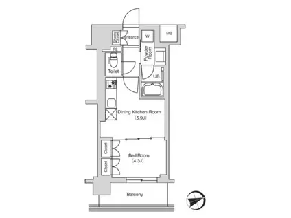
人気の南向き・フローリングのお部屋。角部屋でもあるため、周囲の居住者の生活音も気になりにくい場所です。キッチンはシステムキッチン仕様になっていますので、お料理好きの方にもぴったり。バス・トイレは別なので、のんびりお風呂タイムも楽しめるでしょう。また、雨の日でも浴室乾燥機を使えば、お洗濯も問題ありません。
通信設備面では、インターネットが無料で使えるので、月々の出費を抑えられるのも魅力です。また、BSアンテナ・CSアンテナがありCATVにも対応しているので、おうち時間も充実するでしょう(別途工事、BS・CS・CATVの契約料等が必要な場合あり)。
建物にはエレベーターがついているので、重い荷物があっても安心。共用部には宅配ボックスが設定されているので、不在の時にも荷物を受け取ることができます。
このお部屋は2階以上に位置しているので、通行人や周囲の住人からの視線が気になりにくく、防犯面でも安心。建物のエントランスはオートロックがついており、インターホンにはTVモニタもついているため、相手の顔を確認してから来客対応することができます。
人気の南向き・フローリングのお部屋。角部屋でもあるため、周囲の居住者の生活音も気になりにくい場所です。キッチンはシステムキッチン仕様になっていますので、お料理好きの方にもぴったり。バス・トイレは別なので、のんびりお風呂タイムも楽しめるでしょう。また、雨の日でも浴室乾燥機を使えば、お洗濯も問題ありません。
通信設備面では、インターネットが無料で使えるので、月々の出費を抑えられるのも魅力です。また、BSアンテナ・CSアンテナがありCATVにも対応しているので、おうち時間も充実するでしょう(別途工事、BS・CS・CATVの契約料等が必要な場合あり)。
建物にはエレベーターがついているので、重い荷物があっても安心。共用部には宅配ボックスが設定されているので、不在の時にも荷物を受け取ることができます。
お金・契約の情報
※「-」と表示されているものは、実際は料金が発生するものもございます。詳細はお問い合わせください。
| 家賃 | 12.3万円 | 管理費・共益費 | 8,000円 |
|---|---|---|---|
| 敷金 | 12.3万円 | 礼金 | なし |
| 入居決定でお祝い金最大100,000円 | |||
| 保証金 | - | 償却・敷引 | - |
| 住宅保険料 | - | 更新料 | - |
| 保証会社利用 | 必須 | 保証会社名 | - |
| 保証会社費用 | - | 保証会社備考 | 保証会社利用必 初回保証料:総賃料の40パーセント 1年毎:1万円 |
| 契約形態 | 定期借家 | 契約期間 | 3年 |
| 入居・引渡期間 | 相談 | 現況 | - |
| 契約備考 | ◆初期費用に関してはクレジット決済も可能です。初期費用全額からご指定の一部まで選択してご利用できます。詳細についてはお気軽にご質問ください♪◆お見積りは無料で承っております。お問い合わせ時にお気軽にご依頼下さい♪◆オンラインでご相談・ご見学・ご契約まで可能です♪◆ご質問・ご要望等に関しては、その他の問合せからお気軽にご相談下さい!※退去時エアコン清掃代借主負担 ※再契約料新賃料1か月分 合計1.65万円(内訳:鍵交換代1.65万円) 室内清掃費用 53707円 1DK 二人入居可 定期借家3年 損保【2.48万円2年】 バストイレ別、バルコニー、エアコン、ガスコンロ対応、クロゼット、フローリング、TVインターホン、浴室乾燥機、オートロック、室内洗濯置、シューズボックス、システムキッチン、角住戸、温水洗浄便座、脱衣所、エレベーター、洗面所独立、洗面化粧台、2口コンロ、宅配ボックス、CATV、外壁タイル張り、礼金不要、防犯カメラ、照明付、全居室洋室、保証人不要、単身者相談、敷金1ヶ月、二人入居相談、全居室フローリング、仲手0.55ヶ月、CS、ネット専用回線、ネット使用料不要、耐火構造、耐震構造、3駅以上利用可、3沿線以上利用可、駅徒歩5分以内、東南向き、オープンキッチン、都市ガス、洗面所にドア、BS、保証会社利用可、IT重説対応物件、初期費用カード決済可 | ||
部屋の情報
| 間取り | 1DK | 専有面積 | 30.26m2 |
|---|---|---|---|
| 所在階 / 向き | 2階 / 南東 | バルコニー面積 | - |
| 水道 / ガス | - | ||
| 設備 | バス・トイレ別、2階以上、オートロック、テレビドアホン、宅配ボックス、浴室乾燥機、インターネット対応、システムキッチン、エアコン、エレベーター、温水洗浄便座、南向き、角部屋、バルコニー、フローリング、洗髪洗面化粧台、2口コンロ、コンロ:ガス、CATV、CSアンテナ、BSアンテナ、インターネット使用料無料、洗濯機:室内 | ||
| 当社物件ID | 26286024 | ||
建物の情報
| 建物名 | エミリブ鷺ノ宮 | ||
|---|---|---|---|
| 所在地 | 東京都中野区白鷺 | ||
| 交通 | 西武新宿線 鷺ノ宮駅 徒歩3分 西武池袋線 中村橋駅 徒歩24分 JR総武線 阿佐ケ谷駅 徒歩26分 | ||
| 階数 | 10階建 | 総戸数 | - |
| 築年月 | 2018年03月 / 築8年 | エレベーター | あり |
| 駐車場 | なし | バイク置き場 | - |
| 駐輪場 | - | 管理人/管理会社 | - |
| 周辺環境 | その他 スーパー金次郎(スーパー)まで230m その他 備長 鷺ノ宮店(飲食店)まで264m その他 中野白鷺郵便局(郵便局)まで294m その他 松屋 鷺宮店(飲食店)まで289m その他 セブンイレブン中野鷺宮店(コンビニ)まで459m その他 小七山公園(公園)まで604m | ||
| 建物種別 | マンション | 建物構造 | RC(鉄筋コンクリート) |
この部屋の取扱い不動産会社
| 会社名 | (株)アブレイズ・コーポレーション渋谷駅前支店(SUUMO経由) | ||
|---|---|---|---|
| 所在地 | 東京都渋谷区渋谷2-19-20 VORT渋谷宮益坂II 2階 | 交通 | - |
| 営業時間 | 10:00~19:00 | 定休日 | 水曜日 |
| 免許番号 | 東京都知事90182 | 取引態様 | 仲介 |
| 不動産会社管理番号 | 100490077747 | 当社管理番号 | 89 |
| 所属団体 | (公社)全日本不動産協会東京都本部会員 | ||
| 公正取引協議会 | (公社)首都圏不動産公正取引協議会加盟 | ||
| 取扱い物件情報 | 物件詳細へ | ||
※各種情報と現状に差異がある場合は、現状優先となります。問い合わせをすることで、より詳しい条件、情報を確認する事ができます。
提供:(株)アブレイズ・コーポレーション渋谷駅前支店(SUUMO経由)
この物件が気になったら掲載期限まであと11日
エミリブ鷺ノ宮に条件(家賃・エリア)が近い物件一覧
| 写真 | 家賃 管理費等 | 敷金 礼金 | 間取り 専有面積 | 築年数 | 最寄り駅 所在地 | キープ | 詳細 |
|---|---|---|---|---|---|---|---|
マンション エルファーロ明大前III(1LDK/3階) | |||||||
![]() | 15.5万円 1.5万円 | なし なし | 1LDK 30.12m2 | 築1年 | 京王線 代田橋駅 徒歩10分 京王線 明大前駅 徒歩15分 京王線 笹塚駅 徒歩20分 東京都杉並区和泉 | 詳細を見る | |
アパート MOKU TERRACE(1LDK/1階) | |||||||
![]() | 13.3万円 6,000円 | 13.3万円 13.3万円 | 1LDK 34.78m2 | 新築 | 西武池袋線 大泉学園駅 徒歩9分 西武池袋線 石神井公園駅 徒歩21分 東京都練馬区東大泉 | 詳細を見る | |
アパート PROSPERITA NAKANO SAKAUE(ワンルーム/1階) | |||||||
![]() | 9.3万円 5,000円 | なし なし | ワンルーム 18.68m2 | 築5年 | 東京メトロ丸ノ内線 中野坂上駅 徒歩4分 都営大江戸線 中野坂上駅 徒歩5分 東京メトロ丸ノ内線 新中野駅 徒歩12分 東京都中野区本町 | 詳細を見る | |
マンション 白坂ハイム(2DK/4階) | |||||||
![]() | 11.5万円 5,000円 | 11.5万円 11.5万円 | 2DK 43m2 | 築47年 | 東京メトロ東西線 早稲田駅(メトロ) 徒歩5分 東京メトロ有楽町線 江戸川橋駅 徒歩8分 都営大江戸線 牛込柳町駅 徒歩12分 東京都新宿区早稲田鶴巻町 | 詳細を見る | |
マンション クアードロ中野223(1LDK/3階) | |||||||
![]() | 16.5万円 1.5万円 | 16.5万円 なし | 1LDK 30.75m2 | 築1年 | JR中央線 中野駅(東京) 徒歩11分 西武新宿線 新井薬師前駅 徒歩13分 東京都中野区新井 | 詳細を見る | |
マンション ラフィスタ鷺ノ宮(1DK/4階) | |||||||
![]() | 10.05万円 1.5万円 | なし 10.05万円 | 1DK 25.52m2 | 築2年 | 西武新宿線 鷺ノ宮駅 徒歩10分 西武新宿線 都立家政駅 徒歩17分 西武池袋線 中村橋駅 徒歩18分 東京都中野区上鷺宮 | 詳細を見る | |
マンション ザ・パークハビオ巣鴨(ワンルーム/6階) | |||||||
![]() | 13.1万円 1.5万円 | 13.1万円 なし | ワンルーム 25.48m2 | 築8年 | 都営三田線 巣鴨駅 徒歩6分 JR山手線 巣鴨駅 徒歩8分 東京都豊島区巣鴨 | 詳細を見る | |
マンション WAKABA VIEW APARTMENT(1DK/2階) | |||||||
![]() | 14.7万円 1万円 | 14.7万円 14.7万円 | 1DK 25.5m2 | 築3年 | JR中央線 信濃町駅 徒歩7分 JR総武線 四ツ谷駅 徒歩8分 東京メトロ丸ノ内線 四谷三丁目駅 徒歩9分 東京都新宿区若葉 | 詳細を見る | |








