賃貸マンション
アークプラッツの賃貸物件情報(1K/2階)
| 家賃 | 管理費等 | 敷金 | 礼金 | 間取り | 専有面積 |
|---|---|---|---|---|---|
| 5.8万円 | 1万円 | 5.8万円 | なし | 1K | 32.5m2 |
入居決定でお祝い金最大100,000円
- 保証金
- -
- 償却・敷引
- 5.8万円
- 築年数
- 築25年
- 所在階
- 2階
- 向き
- 南
Point
理しやすいです。独立洗面所もあります。、都心に近く、行動派の貴方にピッタリのマンションです。
提供:ルームセレクト本山店(株)洞口(SUUMO経由)

詳細情報 アークプラッツ
物件紹介
アークプラッツは地下鉄桜通線久屋大通駅から徒歩7分にあり、駅近で通勤通学に便利なマンションです。
このお部屋は2階以上に位置しているので通行人や周囲の住人からの視線が気になりにくく、建物のエントランスはオートロックがついているので防犯性が高くなっています。
おしゃれなデザイナーズ物件!人気の南向き・フローリングのお部屋。角部屋でもあるため、周囲の居住者の生活音も気になりにくい場所です。キッチンはシステムキッチン仕様になっていますので、お料理好きの方にもぴったり。また、バス・トイレは別で、のんびりお風呂タイムも楽しめるでしょう。
通信設備面では、インターネット接続が可能です。また、BSアンテナ・CSアンテナがありCATVにも対応しているので、おうち時間も充実するでしょう(別途工事、契約料が必要な場合あり)。
建物にはエレベーターがついているので、重い荷物があっても安心。
このお部屋は2階以上に位置しているので通行人や周囲の住人からの視線が気になりにくく、建物のエントランスはオートロックがついているので防犯性が高くなっています。
おしゃれなデザイナーズ物件!人気の南向き・フローリングのお部屋。角部屋でもあるため、周囲の居住者の生活音も気になりにくい場所です。キッチンはシステムキッチン仕様になっていますので、お料理好きの方にもぴったり。また、バス・トイレは別で、のんびりお風呂タイムも楽しめるでしょう。
通信設備面では、インターネット接続が可能です。また、BSアンテナ・CSアンテナがありCATVにも対応しているので、おうち時間も充実するでしょう(別途工事、契約料が必要な場合あり)。
建物にはエレベーターがついているので、重い荷物があっても安心。
お金・契約の情報
※「-」と表示されているものは、実際は料金が発生するものもございます。詳細はお問い合わせください。
| 家賃 | 5.8万円 | 管理費・共益費 | 1万円 |
|---|---|---|---|
| 敷金 | 5.8万円 | 礼金 | なし |
| 入居決定でお祝い金最大100,000円 | |||
| 保証金 | - | 償却・敷引 | 5.8万円 |
| 住宅保険料 | - | 更新料 | - |
| 保証会社利用 | 利用可 | 保証会社名 | - |
| 保証会社費用 | - | 保証会社備考 | 保証会社利用可 利用可(相談) |
| 契約形態 | - | 契約期間 | - |
| 入居・引渡期間 | 即時 | 現況 | - |
| 契約備考 | 巡回管理 1K バストイレ別、バルコニー、エアコン、クロゼット、フローリング、シャワー付洗面台、オートロック、室内洗濯置、システムキッチン、南向き、角住戸、温水洗浄便座、エレベーター、洗面所独立、2口コンロ、駐輪場、CATV、即入居可、礼金不要、BS・CS、防犯カメラ、全居室洋室、デザイナーズ、保証金不要、3駅以上利用可、3沿線以上利用可、駅徒歩10分以内、敷地内ごみ置き場、全居室8畳以上、都市ガス、高速ネット対応 | ||
部屋の情報
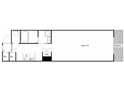
| 間取り | 1K | 専有面積 | 32.5m2 |
|---|---|---|---|
| 所在階 / 向き | 2階 / 南 | バルコニー面積 | - |
| 水道 / ガス | - | ||
| 設備 | バス・トイレ別、2階以上、オートロック、インターネット対応、システムキッチン、エアコン、エレベーター、温水洗浄便座、南向き、角部屋、バルコニー、フローリング、洗髪洗面化粧台、2口コンロ、デザイナーズ、CATV、CSアンテナ、BSアンテナ、洗濯機:室内 | ||
| 当社物件ID | 21986430 | ||
建物の情報
| 建物名 | アークプラッツ | ||
|---|---|---|---|
| 所在地 | 愛知県名古屋市東区泉 | ||
| 交通 | 地下鉄名城線 久屋大通駅 徒歩7分 地下鉄桜通線 高岳駅 徒歩9分 名鉄瀬戸線 東大手駅 徒歩11分 | ||
| 階数 | 10階建 | 総戸数 | 38戸 |
| 築年月 | 2001年02月 / 築25年 | エレベーター | あり |
| 駐車場 | 空有 35200円 | バイク置き場 | - |
| 駐輪場 | あり | 管理人/管理会社 | - |
| 周辺環境 | その他 セブンイレブン名古屋泉1丁目店(その他)まで104m その他 ナゴヤキッチュエビオ(その他)まで440m その他 マツモトキヨシ名古屋テレビ塔前店(その他)まで800m その他 デニーズ高岳店(その他)まで657m その他 無印良品栄アネックス店(その他)まで758m | ||
| 建物種別 | マンション | 建物構造 | SRC(鉄骨鉄筋コンクリート) |
この部屋の取扱い不動産会社
| 会社名 | ホームメイトFC名駅三丁目店(株)グローバルエステート(SUUMO経由) | ||
|---|---|---|---|
| 所在地 | 愛知県名古屋市中村区名駅3-16-10 | 交通 | - |
| 営業時間 | 10:00~18:00 | 定休日 | 水曜日(1月~3月除く) |
| 免許番号 | 愛知県知事23445 | 取引態様 | 仲介 |
| 不動産会社管理番号 | 100393870964 | 当社管理番号 | 89 |
| 所属団体 | (公社)全日本不動産協会愛知県本部会員 | ||
| 公正取引協議会 | 東海不動産公正取引協議会加盟 | ||
| 取扱い物件情報 | 物件詳細へ | ||
※各種情報と現状に差異がある場合は、現状優先となります。問い合わせをすることで、より詳しい条件、情報を確認する事ができます。
提供:ホームメイトFC名駅三丁目店(株)グローバルエステート(SUUMO経由)
この物件が気になったら掲載期限まであと11日
アークプラッツに条件(家賃・エリア)が近い物件一覧
| 写真 | 家賃 管理費等 | 敷金 礼金 | 間取り 専有面積 | 築年数 | 最寄り駅 所在地 | キープ | 詳細 |
|---|---|---|---|---|---|---|---|
アパート グランハイム車道(1K/2階) | |||||||
![]() | 6.1万円 4,000円 | なし 6.1万円 | 1K 20.14m2 | 築9年 | 名古屋市桜通線 車道駅 徒歩7分 中央本線 千種駅 徒歩17分 名鉄瀬戸線 森下駅(愛知) 徒歩18分 愛知県名古屋市東区車道町2丁目 | 詳細を見る | |
マンション プレサンス丸の内雅風(1K/4階) | |||||||
![]() | 6.36万円 9,400円 | なし 7.3万円 | 1K 26.55m2 | 築10年 | 名古屋市桜通線 丸の内駅(愛知) 徒歩5分 愛知県名古屋市中区丸の内3丁目 | 詳細を見る | |
マンション プレサンス栄ライズ(1K/4階) | |||||||
![]() | 6.14万円 8,620円 | なし 7万円 | 1K 25.37m2 | 築10年 | 地下鉄東山線 新栄町駅(愛知) 徒歩4分 地下鉄桜通線 高岳駅 徒歩12分 JR中央本線 千種駅 徒歩12分 愛知県名古屋市中区新栄 | 詳細を見る | |
マンション プレサンスTHE高岳(1DK/10階) | |||||||
![]() | 8.004万円 8,960円 | なし 8.9万円 | 1DK 28.91m2 | 築3年 | 名古屋市桜通線 高岳駅 徒歩4分 愛知県名古屋市東区代官町 | 詳細を見る | |
アパート プラット(1K/1階) | |||||||
![]() | 5.2万円 4,000円 | なし なし | 1K 18.58m2 | 築8年 | 名鉄瀬戸線 森下駅(愛知) 徒歩5分 名鉄瀬戸線 尼ケ坂駅 徒歩11分 愛知県名古屋市東区大曽根1丁目 | 詳細を見る | |
マンション プレサンス新栄リベラ(1K/15階) | |||||||
![]() | 6.41万円 8,990円 | なし 7.3万円 | 1K 23.37m2 | 築6年 | 地下鉄東山線 新栄町駅(愛知) 徒歩5分 地下鉄桜通線 高岳駅 徒歩13分 JR中央本線 千種駅 徒歩17分 愛知県名古屋市中区新栄 | 詳細を見る | |
マンション プレサンス泉セントマーク(1K/5階) | |||||||
![]() | 5.271万円 9,290円 | なし なし | 1K 22.04m2 | 築19年 | 名古屋市桜通線 高岳駅 徒歩6分 名古屋市名城線 久屋大通駅 徒歩9分 名古屋市名城線 名古屋城駅 徒歩17分 愛知県名古屋市東区泉1丁目 | 詳細を見る | |
マンション プレサンス泉アーバンゲート(1K/4階) | |||||||
![]() | 5.017万円 8,830円 | なし なし | 1K 20.16m2 | 築18年 | 名古屋市桜通線 高岳駅 徒歩7分 名古屋市名城線 久屋大通駅 徒歩10分 名古屋市名城線 名古屋城駅 徒歩15分 愛知県名古屋市東区泉1丁目 | 詳細を見る | |


/105x80-f1-q70-wp1)





