賃貸マンション
エスティメゾン都立大学の賃貸物件情報(1LDK/2階)
| 家賃 | 管理費等 | 敷金 | 礼金 | 間取り | 専有面積 |
|---|---|---|---|---|---|
| 24万円 | 1.5万円 | 24万円 | 24万円 | 1LDK | 52.36m2 |
入居決定でお祝い金最大100,000円
Point
まずはお問い合わせ!
不動産会社は街のプロ、あなたに合った物件がきっと見つかります。
提供:アパマンショップ目黒西口店

詳細情報 エスティメゾン都立大学
物件紹介
エスティメゾン都立大学は東急東横線都立大学駅から徒歩9分にあり、駅近で通勤通学に便利なマンションです。
このお部屋は2階以上に位置しているので、通行人や周囲の住人からの視線が気になりにくく、防犯面でも安心。建物のエントランスはオートロックがついており、インターホンにはTVモニタもついているため、相手の顔を確認してから来客対応することができます。
おしゃれなデザイナーズ物件!人気の角部屋で周囲の居住者の生活音も気になりにくく、また、フローリングのお部屋なのでお掃除もラクラク。室内にはウォークインクローゼットがありますので、たくさんの荷物も効率的に収納ができます。キッチンはシステムキッチン仕様になっていますので、お料理好きの方にもぴったり。バス・トイレは別なので、のんびりお風呂タイムも楽しめるでしょう。また、雨の日でも浴室乾燥機を使えば、お洗濯も問題ありません。
通信設備面では、インターネット接続が可能です。また、BSアンテナ・CSアンテナがありCATVにも対応しているので、おうち時間も充実するでしょう(別途工事、契約料が必要な場合あり)。
建物にはエレベーターがついているので、重い荷物があっても安心。共用部には宅配ボックスが設定されているので、不在の時にも荷物を受け取ることができます。
このお部屋は2階以上に位置しているので、通行人や周囲の住人からの視線が気になりにくく、防犯面でも安心。建物のエントランスはオートロックがついており、インターホンにはTVモニタもついているため、相手の顔を確認してから来客対応することができます。
おしゃれなデザイナーズ物件!人気の角部屋で周囲の居住者の生活音も気になりにくく、また、フローリングのお部屋なのでお掃除もラクラク。室内にはウォークインクローゼットがありますので、たくさんの荷物も効率的に収納ができます。キッチンはシステムキッチン仕様になっていますので、お料理好きの方にもぴったり。バス・トイレは別なので、のんびりお風呂タイムも楽しめるでしょう。また、雨の日でも浴室乾燥機を使えば、お洗濯も問題ありません。
通信設備面では、インターネット接続が可能です。また、BSアンテナ・CSアンテナがありCATVにも対応しているので、おうち時間も充実するでしょう(別途工事、契約料が必要な場合あり)。
建物にはエレベーターがついているので、重い荷物があっても安心。共用部には宅配ボックスが設定されているので、不在の時にも荷物を受け取ることができます。
お金・契約の情報
※「-」と表示されているものは、実際は料金が発生するものもございます。詳細はお問い合わせください。
| 家賃 | 24万円 | 管理費・共益費 | 1.5万円 |
|---|---|---|---|
| 敷金 | 24万円 | 礼金 | 24万円 |
| 入居決定でお祝い金最大100,000円 | |||
| 保証金 | - | 償却・敷引 | - |
| 住宅保険料 | 2.05万円(2年) | 更新料 | - |
| 保証会社利用 | 必須 | 保証会社名 | - |
| 保証会社費用 | - | 保証会社備考 | 賃料+管理費の20%〜月次1% |
| 契約形態 | - | 契約期間 | 2年 |
| 入居・引渡期間 | 2026年01月下旬 | 現況 | - |
| 契約備考 | 初回20%・毎月1%※大手法人で保証会社利用不可の場合敷金1ヶ月積み増し■短期解約違約金:1年未満1ヶ月■鍵交換費用:33,000円(税込)■くらしのサポートサービス16,500円(税込)■火災保険加入必須※弊社指定の場合、20,500円〜■電気ガス水道の くらしのサポートサービス 16500円/鍵交換代 33000円、リフォーム済み | ||
部屋の情報
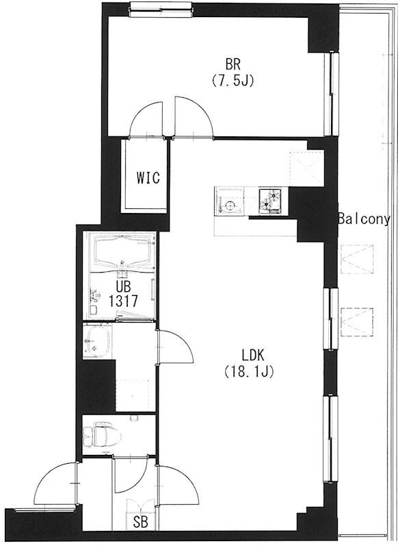
| 間取り | 1LDK | 専有面積 | 52.36m2 |
|---|---|---|---|
| 間取り詳細 | 洋室(7.5帖)、LDK(18.1帖) | ||
| 所在階 / 向き | 2階 / 西 | バルコニー面積 | - |
| 水道 / ガス | ガス【都市】 | ||
| 設備 | バス・トイレ別、オートロック、テレビドアホン、宅配ボックス、浴室乾燥機、ウォークインクローゼット、追い焚き、光ファイバー対応、システムキッチン、エレベーター、温水洗浄便座、角部屋、バルコニー、フローリング、コンロ:ガス、CATV、CSアンテナ、BSアンテナ、シャワー、給湯、冷房、洗濯機:室内、閑静な住宅街 | ||
| 当社物件ID | 10926412 | ||
建物の情報
| 建物名 | エスティメゾン都立大学 | ||
|---|---|---|---|
| 所在地 | 東京都目黒区平町2丁目 | ||
| 交通 | 東急東横線 都立大学駅 徒歩10分 | ||
| 階数 | 3階建 | 総戸数 | 20戸 |
| 築年月 | 2009年03月 / 築17年 | エレベーター | あり |
| 駐車場 | 空有 3.41万円/月 駐車場:有(敷地内) 34100円/月〜 機械式 屋根:有 駐車場敷金:1ヶ月 | バイク置き場 | あり |
| 駐輪場 | あり | 管理人/管理会社 | - |
| 建物種別 | マンション | 建物構造 | RC(鉄筋コンクリート) |
この部屋の取扱い不動産会社
| 会社名 | アパマンショップ自由が丘店 | ||
|---|---|---|---|
| 所在地 | 東京都目黒区自由が丘2丁目 11-5自由が丘ミドリビル4階 | 交通 | 東急東横線自由が丘から徒歩1分 |
| 営業時間 | 10:00〜19:00(オンライン接客・ご内覧可能!) | 定休日 | 水曜日 |
| 免許番号 | 国土交通大臣(5)6971 | 取引態様 | 仲介 |
| 不動産会社管理番号 | 111495036 | 当社管理番号 | 4 |
| 所属団体 | (公社)東京都宅地建物取引業協会 | ||
| 公正取引協議会 | (公社) 首都圏不動産公正取引協議会加盟 | ||
| 取扱い物件情報 | 物件詳細へ | ||
※各種情報と現状に差異がある場合は、現状優先となります。問い合わせをすることで、より詳しい条件、情報を確認する事ができます。
提供:アパマンショップ自由が丘店
この物件が気になったら掲載期限まであと13日
エスティメゾン都立大学に条件(家賃・エリア)が近い物件一覧
| 写真 | 家賃 管理費等 | 敷金 礼金 | 間取り 専有面積 | 築年数 | 最寄り駅 所在地 | キープ | 詳細 |
|---|---|---|---|---|---|---|---|
マンション AIFLAT品川戸越パークサイド(1DK/4階) | |||||||
![]() | 14.8万円 1万円 | 14.8万円 なし | 1DK 25.46m2 | 築1年 | 東京都浅草線 戸越駅 徒歩6分 東京都品川区戸越4丁目 | 詳細を見る | |
一戸建て 京浜東北・根岸線 蒲田駅 徒歩11分 築4年(2SLDK) | |||||||
![]() | 32.3万円 なし | 32.3万円 32.3万円 | 2SLDK 94.36m2 | 築4年 | 京浜東北・根岸線 蒲田駅 徒歩11分 東京都大田区東矢口3丁目 | 詳細を見る | |
マンション CHART HOUSEふるはま公園(2LDK/1階) | |||||||
![]() | 18.8万円 4,000円 | 18.8万円 なし | 2LDK 52.5m2 | 築6年 | 京急本線 大森町駅 徒歩14分 東京モノレール 昭和島駅 徒歩16分 京急本線 平和島駅 徒歩21分 東京都大田区大森東 | 詳細を見る | |
アパート 御殿山テラスⅡ(2LDK/1階) | |||||||
![]() | 23.9万円 3,000円 | 23.9万円 なし | 2LDK 57.6m2 | 築2年 | 山手線 大崎駅 徒歩8分 京浜急行電鉄本線 北品川駅 徒歩14分 東京都品川区北品川5丁目 | 詳細を見る | |
マンション PISO ARCE SHINAGAWA(1LDK/3階) | |||||||
![]() | 22万円 5,000円 | 22万円 なし | 1LDK 41m2 | 築11年 | 京浜東北・根岸線 大井町駅 徒歩8分 京浜急行電鉄本線 青物横丁駅 徒歩10分 東京都品川区南品川6丁目 | 詳細を見る | |
マンション レジディア品川シーサイド(2LDK/9階) | |||||||
![]() | 22.8万円 2万円 | 22.8万円 22.8万円 | 2LDK 40.01m2 | 築8年 | 京浜急行電鉄本線 青物横丁駅 徒歩5分 東京都品川区東品川4丁目 | 詳細を見る | |
マンション リージア大井町(1LDK/13階) | |||||||
![]() | 24万円 1.5万円 | 24万円 なし | 1LDK 40.03m2 | 築3年 | JR京浜東北線 大井町駅 徒歩4分 京急本線 立会川駅 徒歩15分 東急大井町線 下神明駅 徒歩16分 東京都品川区大井 | 詳細を見る | |
アパート M SONIA KUGAHARA(2LDK/1階) | |||||||
![]() | 16.5万円 3,000円 | 16.5万円 33万円 | 2LDK 49.27m2 | 築1年 | 東急池上線 久が原駅 徒歩8分 東急池上線 御嶽山駅 徒歩9分 東京都大田区西嶺町 | 詳細を見る | |








