賃貸マンション
三越ゼームス坂マンションの賃貸物件情報(2DK/5階)
| 家賃 | 管理費等 | 敷金 | 礼金 | 間取り | 専有面積 |
|---|---|---|---|---|---|
| 17.2万円 | 1万円 | なし | なし | 2DK | 44.3m2 |
入居決定でお祝い金最大100,000円
Point
まずはお問い合わせ!
不動産会社は街のプロ、あなたに合った物件がきっと見つかります。
提供:(株)クラッシー・ホームズ浜松町本店(SUUMO経由)

詳細情報 三越ゼームス坂マンション
物件紹介
三越ゼームス坂マンションはJR京浜東北線大井町駅から徒歩6分にあり、駅近で通勤通学に便利なマンションです。
このお部屋は2階以上に位置しているので、通行人や周囲の住人からの視線が気になりにくく、防犯面でも安心。建物のエントランスはオートロックがついており、インターホンにはTVモニタもついているため、相手の顔を確認してから来客対応することができます。
フローリングのお部屋なのでお掃除もラクラク。キッチンはシステムキッチン仕様になっていますので、お料理好きの方にもぴったり。また、バス・トイレは別で、のんびりお風呂タイムも楽しめるでしょう。
通信設備面では、インターネット接続が可能です。また、CATVにも対応しているので、おうち時間も充実するでしょう(別途工事、契約料が必要な場合あり)。
建物にはエレベーターがついているので、重い荷物があっても安心。
このお部屋は2階以上に位置しているので、通行人や周囲の住人からの視線が気になりにくく、防犯面でも安心。建物のエントランスはオートロックがついており、インターホンにはTVモニタもついているため、相手の顔を確認してから来客対応することができます。
フローリングのお部屋なのでお掃除もラクラク。キッチンはシステムキッチン仕様になっていますので、お料理好きの方にもぴったり。また、バス・トイレは別で、のんびりお風呂タイムも楽しめるでしょう。
通信設備面では、インターネット接続が可能です。また、CATVにも対応しているので、おうち時間も充実するでしょう(別途工事、契約料が必要な場合あり)。
建物にはエレベーターがついているので、重い荷物があっても安心。
お金・契約の情報
※「-」と表示されているものは、実際は料金が発生するものもございます。詳細はお問い合わせください。
| 家賃 | 17.2万円 | 管理費・共益費 | 1万円 |
|---|---|---|---|
| 敷金 | なし | 礼金 | なし |
| 入居決定でお祝い金最大100,000円 | |||
| 保証金 | - | 償却・敷引 | - |
| 住宅保険料 | 1円 | 更新料 | - |
| その他費用 | 退去時エアコン清掃費用/1台:1.65万円、58476円: | ||
| 保証会社利用 | 必須 | 保証会社名 | - |
| 保証会社費用 | - | 保証会社備考 | (初回)賃料・共益費の50%、(毎月)収納代行手数料550円(更新)1年毎10000円 |
| 契約形態 | - | 契約期間 | 2年 |
| 入居・引渡期間 | 2026年02月下旬 | 現況 | - |
| 契約備考 | 鍵交換費用:39600 その他設備/条件:室内洗濯機置き場、防犯カメラ | ||
部屋の情報
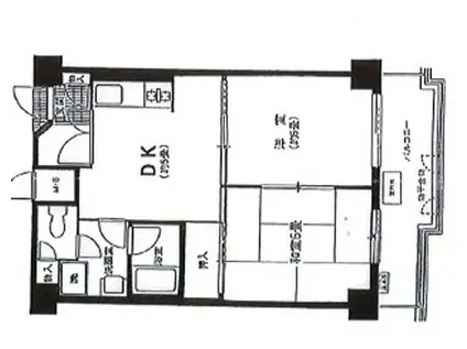
| 間取り | 2DK | 専有面積 | 44.3m2 |
|---|---|---|---|
| 所在階 / 向き | 5階 / 東 | バルコニー面積 | - |
| 水道 / ガス | ガス【都市】 | ||
| 設備 | バス・トイレ別、オートロック、エアコン、フローリング | ||
| 当社物件ID | 10059793 | ||
建物の情報
| 建物名 | 三越ゼームス坂マンション | ||
|---|---|---|---|
| 所在地 | 東京都品川区南品川6丁目 | ||
| 交通 | 京浜東北・根岸線 大井町駅 徒歩6分 | ||
| 階数 | 地下1地上9階建 | 総戸数 | 195戸 |
| 築年月 | 1983年11月 / 築43年 | エレベーター | - |
| 駐車場 | なし | バイク置き場 | - |
| 駐輪場 | - | 管理人/管理会社 | - |
| 周辺環境 | その他 ドラッグストア その他 公園 その他 銀行 その他 * | ||
| 建物種別 | マンション | 建物構造 | SRC(鉄骨鉄筋コンクリート) |
この部屋の取扱い不動産会社
| 会社名 | ハウスコム西東京株式会社 大森店 | ||
|---|---|---|---|
| 所在地 | 東京都大田区2-41階 | 交通 | - |
| 営業時間 | 10:00~18:00 | 定休日 | 水曜定休 |
| 免許番号 | 東京都知事(1)第108225号 | 取引態様 | 仲介 |
| 不動産会社管理番号 | HC4-5253990-516-0220 | 当社管理番号 | 468 |
| 所属団体 | 、 | ||
| 取扱い物件情報 | 物件詳細へ | ||
※各種情報と現状に差異がある場合は、現状優先となります。問い合わせをすることで、より詳しい条件、情報を確認する事ができます。
提供:ハウスコム西東京株式会社 大森店
この物件が気になったら掲載期限まであと5日
三越ゼームス坂マンションに条件(家賃・エリア)が近い物件一覧
| 写真 | 家賃 管理費等 | 敷金 礼金 | 間取り 専有面積 | 築年数 | 最寄り駅 所在地 | キープ | 詳細 |
|---|---|---|---|---|---|---|---|
マンション NORUM VIENTO(1LDK/3階) | |||||||
![]() | 14.5万円 3,000円 | 14.5万円 14.5万円 | 1LDK 40.27m2 | 築18年 | JR京浜東北線 蒲田駅 徒歩12分 東急池上線 蓮沼駅 徒歩16分 京急本線 京急蒲田駅 徒歩22分 東京都大田区西蒲田 | 詳細を見る | |
アパート イーストテラス大森東(2SLDK/1階) | |||||||
![]() | 19.9万円 3,000円 | 19.9万円 19.9万円 | 2SLDK 79.91m2 | 築1年 | 京浜急行電鉄本線 梅屋敷駅(東京) 徒歩14分 京浜急行電鉄本線 大森町駅 徒歩16分 東京都大田区大森東4丁目 | 詳細を見る | |
マンション プラウドフラット森下ウエスト(1K/5階) | |||||||
![]() | 10.5万円 1万円 | 10.5万円 10.5万円 | 1K 20.77m2 | 築16年 | 東京都大江戸線 森下駅(東京) 徒歩3分 東京都江東区新大橋3丁目 | 詳細を見る | |
マンション アーバネックス深川住吉III(1DK/10階) | |||||||
![]() | 13.5万円 1万円 | 13.5万円 なし | 1DK 25.16m2 | 築5年 | 東京メトロ半蔵門線 住吉駅(東京) 徒歩2分 都営新宿線 住吉駅(東京) 徒歩2分 JR総武線 錦糸町駅 徒歩13分 東京都江東区住吉 | 詳細を見る | |
マンション ジェノヴィア蒲田3スカイガーデン(1K/5階) | |||||||
![]() | 11.6万円 1.5万円 | なし なし | 1K 25.4m2 | 築5年 | 京浜急行電鉄本線 京急蒲田駅 徒歩6分 京浜急行電鉄空港線 糀谷駅 徒歩10分 京浜東北・根岸線 蒲田駅 徒歩15分 東京都大田区南蒲田2丁目 | 詳細を見る | |
マンション ベルフェリーク木場(1K/3階) | |||||||
![]() | 11.6万円 1万円 | 11.6万円 11.6万円 | 1K 25.19m2 | 築9年 | 東京地下鉄東西線 木場駅 徒歩6分 東京地下鉄東西線 東陽町駅 徒歩10分 東京都江東区東陽1丁目 | 詳細を見る | |
マンション LA MAISON EPICA(1DK/2階) | |||||||
![]() | 10.9万円 5,000円 | 10.9万円 なし | 1DK 33.06m2 | 築18年 | 京浜東北・根岸線 蒲田駅 徒歩9分 京浜急行電鉄本線 京急蒲田駅 徒歩12分 東京都大田区蒲田1丁目 | 詳細を見る | |







