賃貸マンション
S-RESIDENCE上社AUREATEの賃貸物件情報(2LDK/6階)
| 家賃 | 管理費等 | 敷金 | 礼金 | 間取り | 専有面積 |
|---|---|---|---|---|---|
| 12.85万円 | 1万円 | なし | なし | 2LDK | 60.82m2 |
入居決定でお祝い金最大100,000円
- 保証金
- -
- 償却・敷引
- -
- 築年数
- 築1年
- 所在階
- 6階
- 向き
- 西
Point
まずはお問い合わせ!
不動産会社は街のプロ、あなたに合った物件がきっと見つかります。
提供:ピタットハウス小牧店(有)大黒住宅(SUUMO経由)

詳細情報 S-RESIDENCE上社AUREATE
物件紹介
S-RESIDENCE上社AUREATEは地下鉄東山線上社駅から徒歩10分にあり、駅近で通勤通学に便利なマンションです。
このお部屋は2階以上に位置しているので、通行人や周囲の住人からの視線が気になりにくく、防犯面でも安心。建物のエントランスはオートロックがついており、インターホンにはTVモニタもついているため、相手の顔を確認してから来客対応することができます。
おしゃれなデザイナーズ物件!人気の角部屋で周囲の居住者の生活音も気になりにくく、また、フローリングのお部屋なのでお掃除もラクラク。室内にはウォークインクローゼットがありますので、たくさんの荷物も効率的に収納ができます。キッチンはシステムキッチン仕様になっていますので、お料理好きの方にもぴったり。バス・トイレは別なので、のんびりお風呂タイムも楽しめるでしょう。また、雨の日でも浴室乾燥機を使えば、お洗濯も問題ありません。
通信設備面では、インターネットが無料で使えるので、月々の出費を抑えられるのも魅力です。また、CATVにも対応しているので、おうち時間も充実するでしょう(別途工事、CATVの契約料等が必要な場合あり)。
建物にはエレベーターがついているので、重い荷物があっても安心。共用部には宅配ボックスが設定されているので、不在の時にも荷物を受け取ることができます。
このお部屋は2階以上に位置しているので、通行人や周囲の住人からの視線が気になりにくく、防犯面でも安心。建物のエントランスはオートロックがついており、インターホンにはTVモニタもついているため、相手の顔を確認してから来客対応することができます。
おしゃれなデザイナーズ物件!人気の角部屋で周囲の居住者の生活音も気になりにくく、また、フローリングのお部屋なのでお掃除もラクラク。室内にはウォークインクローゼットがありますので、たくさんの荷物も効率的に収納ができます。キッチンはシステムキッチン仕様になっていますので、お料理好きの方にもぴったり。バス・トイレは別なので、のんびりお風呂タイムも楽しめるでしょう。また、雨の日でも浴室乾燥機を使えば、お洗濯も問題ありません。
通信設備面では、インターネットが無料で使えるので、月々の出費を抑えられるのも魅力です。また、CATVにも対応しているので、おうち時間も充実するでしょう(別途工事、CATVの契約料等が必要な場合あり)。
建物にはエレベーターがついているので、重い荷物があっても安心。共用部には宅配ボックスが設定されているので、不在の時にも荷物を受け取ることができます。
お金・契約の情報
※「-」と表示されているものは、実際は料金が発生するものもございます。詳細はお問い合わせください。
| 家賃 | 12.85万円 | 管理費・共益費 | 1万円 |
|---|---|---|---|
| 敷金 | なし | 礼金 | なし |
| フリーレント | あり | ||
| 入居決定でお祝い金最大100,000円 | |||
| 保証金 | - | 償却・敷引 | - |
| 住宅保険料 | - | 更新料 | - |
| 保証会社利用 | 必須 | 保証会社名 | - |
| 保証会社費用 | - | 保証会社備考 | 保証会社利用必 ジェイリース 初回保証料:総家賃の30%(1年毎1万円) 法人契約(上場企業及びそれに準ずる企業)で、保証会社未加入の場合、敷金として賃料の1ヶ月分要。 |
| 契約形態 | - | 契約期間 | - |
| 入居・引渡期間 | 即時 | 現況 | - |
| 契約備考 | 通勤管理/(株)オフィスゼロなら、全物件仲介手数料無料半額となっております。スーモなどで、他に気になる物件がございましたら、まとめてご案内できます。お見積書はお電話またはメールにて承ります。お気軽にお申し付け下さい。全物件、初期費用をクレジットカードでお支払いできます。 合計3.3万円(内訳:鍵交換代3.3万円) 更新料 新賃料1.00ヶ月分 2LDK 二人入居可/子供可/フリーレント2ヶ月 普通借家2年 損保【0.8万円1年】 バストイレ別、バルコニー、エアコン、ガスコンロ対応、クロゼット、フローリング、TVインターホン、浴室乾燥機、オートロック、室内洗濯置、シューズボックス、システムキッチン、追焚機能浴室、角住戸、温水洗浄便座、脱衣所、エレベーター、洗面所独立、駐輪場、宅配ボックス、CATV、即入居可、礼金不要、最上階、敷金不要、3口以上コンロ、対面式キッチン、防犯カメラ、分譲賃貸、オートバス、ウォークインクロゼット、保証人不要、仲介手数料不要、二人入居相談、バイク置場、全居室フローリング、デザイナーズ、LDK15畳以上、ディンプルキー、ネット使用料不要、フリーレント、食器洗乾燥機、エアコン全室、ダブルロックキー、24時間換気システム、耐火構造、耐震構造、未入居、3駅以上利用可、駅徒歩10分以内、24時間ゴミ出し可、敷地内ごみ置き場、ガラストップコンロ、都市ガス、三面鏡付洗面化粧台、玄関収納、オートライト、敷金・礼金不要、IT重説対応物件、初期費用カード決済可 | ||
部屋の情報
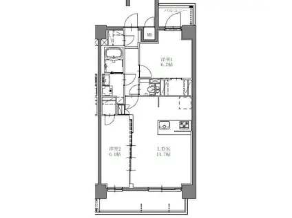
| 間取り | 2LDK | 専有面積 | 60.82m2 |
|---|---|---|---|
| 所在階 / 向き | 6階 / 西 | バルコニー面積 | - |
| 水道 / ガス | - | ||
| 設備 | バス・トイレ別、2階以上、オートロック、テレビドアホン、宅配ボックス、浴室乾燥機、ウォークインクローゼット、追い焚き、インターネット対応、システムキッチン、エアコン、エレベーター、温水洗浄便座、角部屋、バルコニー、フローリング、洗髪洗面化粧台、2口コンロ、コンロ:ガス、デザイナーズ、CATV、インターネット使用料無料、洗濯機:室内 | ||
| 当社物件ID | 159093141 | ||
建物の情報
| 建物名 | S-RESIDENCE上社AUREATE | ||
|---|---|---|---|
| 所在地 | 愛知県名古屋市名東区猪高台 | ||
| 交通 | 地下鉄東山線 上社駅 徒歩10分 地下鉄東山線 本郷駅(愛知) 徒歩17分 地下鉄東山線 一社駅 徒歩23分 | ||
| 階数 | 6階建 | 総戸数 | 52戸 |
| 築年月 | 2025年08月 / 築1年 | エレベーター | あり |
| 駐車場 | 空有 15400円 | バイク置き場 | あり |
| 駐輪場 | あり | 管理人/管理会社 | - |
| 周辺環境 | その他 セブンイレブン 名古屋猪高台店(コンビニ)まで544m その他 コープ上社店(スーパー)まで630m その他 スギ薬局 文教台店(ドラッグストア)まで509m その他 ローソン 名東社台店(コンビニ)まで595m その他 クオリテ 上社店(スーパー)まで1113m その他 マックスバリュ 一社店(スーパー)まで1992m | ||
| 建物種別 | マンション | 建物構造 | RC(鉄筋コンクリート) |
この部屋の取扱い不動産会社
| 会社名 | (株)オフィスゼロ(SUUMO経由) | ||
|---|---|---|---|
| 所在地 | 愛知県名古屋市中区丸の内2-14-31 ジェムストーン丸の内ビル1階 | 交通 | - |
| 営業時間 | 10:00~18:00(お問い合わせ24時間受付) | 定休日 | 年中無休 |
| 免許番号 | 愛知県知事22870 | 取引態様 | 仲介 |
| 不動産会社管理番号 | 100476008850 | 当社管理番号 | 89 |
| 取扱い物件情報 | 物件詳細へ | ||
※各種情報と現状に差異がある場合は、現状優先となります。問い合わせをすることで、より詳しい条件、情報を確認する事ができます。
提供:(株)オフィスゼロ(SUUMO経由)
この物件が気になったら掲載期限まであと11日
S-RESIDENCE上社AUREATEの空き部屋一覧
全部で33の空き部屋があります。
S-RESIDENCE上社AUREATEに条件(家賃・エリア)が近い物件一覧
| 写真 | 家賃 管理費等 | 敷金 礼金 | 間取り 専有面積 | 築年数 | 最寄り駅 所在地 | キープ | 詳細 |
|---|---|---|---|---|---|---|---|
テラスハウス ジョイフルA.(3LDK) | |||||||
![]() | 11万円 なし | 22万円 なし | 3LDK 72.04m2 | 築28年 | 名古屋市東山線 藤が丘駅(愛知) 徒歩12分 愛知県名古屋市名東区高柳町 | 詳細を見る | |
一戸建て 愛知高速東部丘陵線 公園西駅 徒歩9分 築9年(3LDK) | |||||||
![]() | 14万円 なし | 28万円 14万円 | 3LDK 137.91m2 | 築9年 | 愛知高速東部丘陵線 公園西駅 徒歩9分 愛知県長久手市 | 詳細を見る | |
マンション LIEN(1LDK/1階) | |||||||
![]() | 7.7万円 5,000円 | なし 7.7万円 | 1LDK 40m2 | 新築 | 名鉄名古屋本線 中京競馬場前駅 徒歩14分 愛知県豊明市新栄町3丁目 | 詳細を見る | |
アパート アンバーシャトーII(2LDK/2階) | |||||||
![]() | 8.6199万円 5,000円 | 8.6199万円 なし | 2LDK 58.17m2 | 新築 | 名鉄名古屋本線 丸ノ内駅 徒歩11分 愛知県清須市寺野元町 | 詳細を見る | |
アパート リバーストーン富木島(2LDK/2階) | |||||||
![]() | 8.2万円 4,000円 | なし 8.2万円 | 2LDK 57.96m2 | 築3年 | 名鉄河和線 太田川駅 徒歩43分 名鉄常滑線 新日鉄前駅 徒歩44分 愛知県東海市富木島町新山田 | 詳細を見る | |
マンション NC STYLE 一社(2LDK/3階) | |||||||
![]() | 16.7万円 7,500円 | 16.7万円 33.4万円 | 2LDK 73.83m2 | 築1年 | 地下鉄東山線 一社駅 徒歩8分 愛知県名古屋市名東区亀の井 | 詳細を見る | |
マンション ラ・フォンテ(1LDK/1階) | |||||||
![]() | 8.9万円 6,000円 | 8.9万円 なし | 1LDK 54.6m2 | 築15年 | 名古屋市東山線 一社駅 徒歩2分 愛知県名古屋市名東区一社2丁目 | 詳細を見る | |
一戸建て 名鉄瀬戸線 尾張旭駅 徒歩12分 築1年(2LDK) | |||||||
![]() | 12.5万円 5,000円 | 25万円 なし | 2LDK 64.6m2 | 築1年 | 名鉄瀬戸線 尾張旭駅 徒歩12分 愛知県尾張旭市西大道町六兵衛前 | 詳細を見る | |








/105x80-f1-q70-wp1)