賃貸マンション
ロイヤルパークス赤羽ノースの賃貸物件情報(3LDK/9階)
| 家賃 | 管理費等 | 敷金 | 礼金 | 間取り | 専有面積 |
|---|---|---|---|---|---|
| 35万円 | 3万円 | なし | なし | 3LDK | 73.5m2 |
入居決定でお祝い金最大100,000円
Point
初期費用立替・分割対応可!アパマンショップ新宿東南口店まで♪
提供:アパマンショップ池袋東口店

詳細情報 ロイヤルパークス赤羽ノース
物件紹介
ロイヤルパークス赤羽ノースは東京地下鉄南北線志茂駅から徒歩8分にあり、駅近で通勤通学に便利なマンションです。
このお部屋は2階以上に位置しているので、通行人や周囲の住人からの視線が気になりにくく、防犯面でも安心。建物のエントランスはオートロックがついており、インターホンにはTVモニタもついているため、相手の顔を確認してから来客対応することができます。
こちらは楽器相談が可能な物件。楽器演奏をお考えの方はぜひ相談してみてください。フローリングのお部屋なのでお掃除もラクラク。室内には人気のウォークインクローゼットがありますので、たくさんの荷物も効率的に収納ができます。キッチンはシステムキッチン仕様になっていますので、お料理好きの方にもぴったり。バス・トイレは別なので、のんびりお風呂タイムも楽しめるでしょう。また、雨の日でも浴室乾燥機を使えば、お洗濯も問題ありません。
通信設備面では、インターネットが無料で使えるので、月々の出費を抑えられるのも魅力です。また、BSアンテナ・CSアンテナもありますので、おうち時間も充実するでしょう(別途工事、BS・CSの契約料等が必要な場合あり)。
建物にはエレベーターがついているので、重い荷物があっても安心。共用部には宅配ボックスが設定されているので、不在の時にも荷物を受け取ることができます。また、ペット飼育の相談ができますので、あなたの大切な家族の一員も快適に暮らせるか、ぜひ確認してみてください。
このお部屋は2階以上に位置しているので、通行人や周囲の住人からの視線が気になりにくく、防犯面でも安心。建物のエントランスはオートロックがついており、インターホンにはTVモニタもついているため、相手の顔を確認してから来客対応することができます。
こちらは楽器相談が可能な物件。楽器演奏をお考えの方はぜひ相談してみてください。フローリングのお部屋なのでお掃除もラクラク。室内には人気のウォークインクローゼットがありますので、たくさんの荷物も効率的に収納ができます。キッチンはシステムキッチン仕様になっていますので、お料理好きの方にもぴったり。バス・トイレは別なので、のんびりお風呂タイムも楽しめるでしょう。また、雨の日でも浴室乾燥機を使えば、お洗濯も問題ありません。
通信設備面では、インターネットが無料で使えるので、月々の出費を抑えられるのも魅力です。また、BSアンテナ・CSアンテナもありますので、おうち時間も充実するでしょう(別途工事、BS・CSの契約料等が必要な場合あり)。
建物にはエレベーターがついているので、重い荷物があっても安心。共用部には宅配ボックスが設定されているので、不在の時にも荷物を受け取ることができます。また、ペット飼育の相談ができますので、あなたの大切な家族の一員も快適に暮らせるか、ぜひ確認してみてください。
お金・契約の情報
※「-」と表示されているものは、実際は料金が発生するものもございます。詳細はお問い合わせください。
| 家賃 | 35万円 | 管理費・共益費 | 3万円 |
|---|---|---|---|
| 敷金 | なし | 礼金 | なし |
| 入居決定でお祝い金最大100,000円 | |||
| 保証金 | - | 償却・敷引 | - |
| 住宅保険料 | - | 更新料 | - |
| 保証会社利用 | 利用可 | 保証会社名 | レジデントアシスタント |
| 保証会社費用 | - | 保証会社備考 | 初回:月額賃料(共益費・駐車場料金含む)の50%、年間:9,600円 |
| 契約形態 | - | 契約期間 | 2年 |
| 入居・引渡期間 | 相談 | 現況 | - |
| 入居可能条件 | 楽器可、ペット可 | ||
| 契約備考 | 口座振替事務手数料 220円、[退去時費用:室内清掃費 113,190円 ※故意・過失等別途実費] | ||
部屋の情報
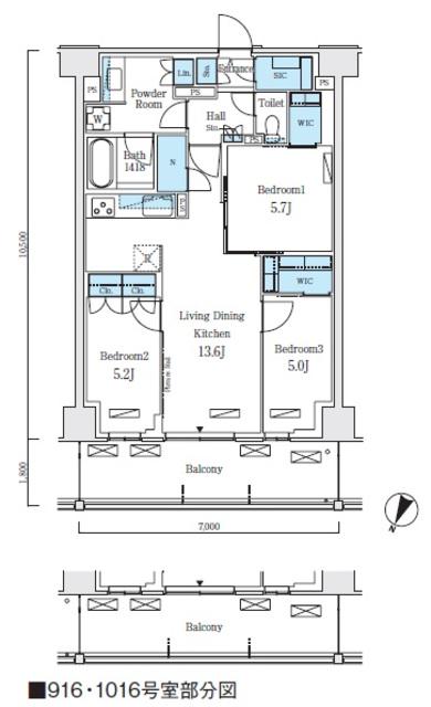
| 間取り | 3LDK | 専有面積 | 73.5m2 |
|---|---|---|---|
| 所在階 / 向き | 9階 / 北 | バルコニー面積 | 12m2 |
| 水道 / ガス | - | ||
| 設備 | バス・トイレ別、オートロック、宅配ボックス、浴室乾燥機、ウォークインクローゼット、追い焚き、システムキッチン、エレベーター、バルコニー、フローリング、CSアンテナ、BSアンテナ、洗濯機:室内 | ||
| 当社物件ID | 159295885 | ||
建物の情報
| 建物名 | ロイヤルパークス赤羽ノース | ||
|---|---|---|---|
| 所在地 | 東京都北区神谷3丁目 | ||
| 交通 | 東京地下鉄南北線 志茂駅 徒歩8分 | ||
| 階数 | 10階建 | 総戸数 | - |
| 築年月 | 2025年09月 / 築1年 | エレベーター | あり |
| 駐車場 | - | バイク置き場 | あり |
| 駐輪場 | - | 管理人/管理会社 | - |
| 周辺環境 | 病院 明理会中央総合病院 徒歩14分(1068m) その他 スーパーバリュー志茂店 徒歩4分(311m) その他 志茂駅 徒歩10分(731m) その他 ダイエー赤羽店 徒歩13分(996m) その他 スーパーみらべる東十条店 徒歩14分(1042m) その他 サミット王子桜田通り店 徒歩13分(983m) その他 東十条駅北口 徒歩15分(1164m) その他 王子神谷駅 徒歩15分(1136m) | ||
| 建物種別 | マンション | 建物構造 | RC(鉄筋コンクリート) |
この部屋の取扱い不動産会社
| 会社名 | アパマンショップ新宿東南口店 | ||
|---|---|---|---|
| 所在地 | 東京都新宿区新宿3丁目 36-18国土三協ビル4階 | 交通 | 湘南新宿ライン宇須新宿から徒歩1分 |
| 営業時間 | 10:00〜19:00(時間外もご相談ください!) | 定休日 | 水曜日 |
| 免許番号 | 国土交通大臣(5)6971 | 取引態様 | 仲介 |
| 不動産会社管理番号 | 110829820 | 当社管理番号 | 4 |
| 所属団体 | (公社)埼玉県宅地建物取引業協会 | ||
| 公正取引協議会 | (公社) 首都圏不動産公正取引協議会加盟 | ||
| 取扱い物件情報 | 物件詳細へ | ||
※各種情報と現状に差異がある場合は、現状優先となります。問い合わせをすることで、より詳しい条件、情報を確認する事ができます。
提供:アパマンショップ新宿東南口店
この物件が気になったら掲載期限まであと12日
ロイヤルパークス赤羽ノースの空き部屋一覧
全部で128の空き部屋があります。
ロイヤルパークス赤羽ノースに条件(家賃・エリア)が近い物件一覧
| 写真 | 家賃 管理費等 | 敷金 礼金 | 間取り 専有面積 | 築年数 | 最寄り駅 所在地 | キープ | 詳細 |
|---|---|---|---|---|---|---|---|
マンション PARKSIDE RESIDENCE(2LDK/3階) | |||||||
![]() | 22万円 9,000円 | 22万円 22万円 | 2LDK 54.51m2 | 築1年 | 山手線 大塚駅(東京) 徒歩10分 東京都豊島区西巣鴨1丁目 | 詳細を見る | |
マンション RESIDIA MINAMI-SENJYU(2LDK/10階) | |||||||
![]() | 24万円 2.5万円 | 24万円 24万円 | 2LDK 64.9m2 | 築20年 | 東京メトロ日比谷線 南千住駅 徒歩13分 東京メトロ日比谷線 三ノ輪駅 徒歩19分 東武伊勢崎線 東向島駅 徒歩23分 東京都荒川区南千住 | 詳細を見る | |
マンション レジディア御茶ノ水(1LDK/5階) | |||||||
![]() | 22万円 2万円 | 22万円 22万円 | 1LDK 44.08m2 | 築21年 | 東京メトロ千代田線 湯島駅 徒歩2分 東京メトロ銀座線 末広町駅(東京) 徒歩5分 JR山手線 御徒町駅 徒歩5分 東京都文京区湯島 | 詳細を見る | |
マンション 末武ビル(1K/3階) | |||||||
![]() | 23.1万円 8,800円 | 46.2万円 23.1万円 | 1K 73.64m2 | 築30年 | 東武伊勢崎線 竹ノ塚駅 徒歩2分 東京都足立区西竹の塚 | 詳細を見る | |
マンション パークアクシス御茶ノ水ステージ(2LDK/9階) | |||||||
![]() | 31万円 1.2万円 | 31万円 31万円 | 2LDK 58.51m2 | 築21年 | 東京メトロ千代田線 湯島駅 徒歩6分 東京メトロ銀座線 末広町駅(東京) 徒歩6分 東京メトロ丸ノ内線 御茶ノ水駅 徒歩8分 東京都文京区湯島 | 詳細を見る | |
マンション グランカーサ尾久(2LDK/3階) | |||||||
![]() | 21.3万円 1.5万円 | なし なし | 2LDK 51.33m2 | 築1年 | 都電荒川線 荒川車庫前駅 徒歩2分 JR高崎線 尾久駅 徒歩6分 JR宇都宮線 尾久駅 徒歩6分 東京都荒川区西尾久 | 詳細を見る | |
マンション スカイテラス南大塚(1SLDK/4階) | |||||||
![]() | 22.7万円 1万円 | なし 45.4万円 | 1SLDK 50.43m2 | 築1年 | 東京メトロ丸ノ内線 新大塚駅 徒歩3分 JR山手線 大塚駅(東京) 徒歩5分 東京都豊島区南大塚 | 詳細を見る | |
マンション プラウド本郷ヒルトップ(3LDK/8階) | |||||||
![]() | 38万円 2万円 | 76万円 38万円 | 3LDK 82.22m2 | 築13年 | 都営大江戸線 春日駅(東京) 徒歩4分 東京メトロ丸ノ内線 本郷三丁目駅 徒歩6分 東京メトロ丸ノ内線 後楽園駅 徒歩6分 東京都文京区本郷 | 詳細を見る | |

/105x80-f1-q70-wp1)






