賃貸アパート
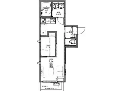
KEIAI RESIDENCE 大和田IIの賃貸物件情報(1LDK/2階)
| 家賃 | 管理費等 | 敷金 | 礼金 | 間取り | 専有面積 |
|---|---|---|---|---|---|
| 7万円 | 3,500円 | なし | 7万円 | 1LDK | 27.32m2 |
入居決定でお祝い金最大100,000円
Point
1LDKの使いやすい物件です便利なシステムキッチン/2口コンロ/ガスコンロ設置済/ガスコンロ/ガスコンロ設置可でお料理らくらく。
提供:(株)OSラテルーム大宮(SUUMO経由)

詳細情報 KEIAI RESIDENCE 大和田II
物件紹介
KEIAI RESIDENCE 大和田IIは東武野田線大和田駅から徒歩8分にあり、駅近で通勤通学に便利なアパートです。
このお部屋は2階以上に位置しているので通行人や周囲の住人からの視線が気になりにくく、建物のエントランスはオートロックがついているので防犯性が高くなっています。
おしゃれなデザイナーズ物件!人気の南向き・フローリングのお部屋。角部屋でもあるため、周囲の居住者の生活音も気になりにくい場所です。キッチンはシステムキッチン仕様になっていますので、お料理好きの方にもぴったり。バス・トイレは別なので、のんびりお風呂タイムも楽しめるでしょう。また、雨の日でも浴室乾燥機を使えば、お洗濯も問題ありません。
通信設備面では、インターネットが無料で使えるので、月々の出費を抑えられるのも魅力です。また、CATVにも対応しているので、おうち時間も充実するでしょう(別途工事、CATVの契約料等が必要な場合あり)。
共用部には宅配ボックスが設定されているので、不在の時にも荷物を受け取ることができます。
このお部屋は2階以上に位置しているので通行人や周囲の住人からの視線が気になりにくく、建物のエントランスはオートロックがついているので防犯性が高くなっています。
おしゃれなデザイナーズ物件!人気の南向き・フローリングのお部屋。角部屋でもあるため、周囲の居住者の生活音も気になりにくい場所です。キッチンはシステムキッチン仕様になっていますので、お料理好きの方にもぴったり。バス・トイレは別なので、のんびりお風呂タイムも楽しめるでしょう。また、雨の日でも浴室乾燥機を使えば、お洗濯も問題ありません。
通信設備面では、インターネットが無料で使えるので、月々の出費を抑えられるのも魅力です。また、CATVにも対応しているので、おうち時間も充実するでしょう(別途工事、CATVの契約料等が必要な場合あり)。
共用部には宅配ボックスが設定されているので、不在の時にも荷物を受け取ることができます。
お金・契約の情報
※「-」と表示されているものは、実際は料金が発生するものもございます。詳細はお問い合わせください。
| 家賃 | 7万円 | 管理費・共益費 | 3,500円 |
|---|---|---|---|
| 敷金 | なし | 礼金 | 7万円 |
| 入居決定でお祝い金最大100,000円 | |||
| 保証金 | - | 償却・敷引 | - |
| 住宅保険料 | - | 更新料 | - |
| 保証会社利用 | 必須 | 保証会社名 | - |
| 保証会社費用 | - | 保証会社備考 | 保証会社利用必 要保証会社加入初回保証料:家賃総額50% 月額保証料:900円/月 |
| 契約形態 | - | 契約期間 | - |
| 入居・引渡期間 | 相談 | 現況 | - |
| 契約備考 | 合計9.9万円(内訳:退去時清掃費用55000円/契約事務手数料16500円/鍵交発行手数料27500円) ■KEIAICLUB会費:2,750円・火災保険(楽天損害保険株式会社様)・24時間サポート・インターネット使用料※火災保険はKEIAICLUB内に付帯しておりますので、別途費用はかかりません。、KEIAICLUB会費2750円/月 1LDK 二人入居可 普通借家2年 損保【1.56万円】 バストイレ別、エアコン、ガスコンロ対応、フローリング、シャワー付洗面台、浴室乾燥機、オートロック、室内洗濯置、シューズボックス、システムキッチン、角住戸、温水洗浄便座、洗面所独立、洗面化粧台、2口コンロ、宅配ボックス、CATV、敷金不要、ディンプルキー、ネット使用料不要、築2年以内、24時間換気システム、未入居、駅徒歩10分以内、敷地内ごみ置き場、東南向き、プロパンガス | ||
部屋の情報
| 間取り | 1LDK | 専有面積 | 27.32m2 |
|---|---|---|---|
| 所在階 / 向き | 2階 / 南東 | バルコニー面積 | - |
| 水道 / ガス | - | ||
| 設備 | バス・トイレ別、2階以上、オートロック、宅配ボックス、浴室乾燥機、インターネット対応、システムキッチン、エアコン、温水洗浄便座、南向き、角部屋、フローリング、洗髪洗面化粧台、2口コンロ、コンロ:ガス、CATV、インターネット使用料無料、洗濯機:室内 | ||
| 当社物件ID | 159869748 | ||
建物の情報
| 建物名 | KEIAI RESIDENCE 大和田II | ||
|---|---|---|---|
| 所在地 | 埼玉県さいたま市見沼区堀崎町 | ||
| 交通 | 東武野田線 大和田駅(埼玉) 徒歩9分 | ||
| 階数 | 3階建 | 総戸数 | 9戸 |
| 築年月 | 2026年01月 / 築1年 | エレベーター | - |
| 駐車場 | なし | バイク置き場 | - |
| 駐輪場 | - | 管理人/管理会社 | - |
| 建物種別 | アパート | 建物構造 | 木造 |
この部屋の取扱い不動産会社
| 会社名 | シャーメゾンショップ (有)ヒロックス大宮東口店(SUUMO経由) | ||
|---|---|---|---|
| 所在地 | 埼玉県さいたま市大宮区大門町1-24-1-1 | 交通 | - |
| 営業時間 | 9時30分から19時 | 定休日 | 水曜、第1・3・5木曜日 |
| 免許番号 | 埼玉県知事17042 | 取引態様 | 仲介 |
| 不動産会社管理番号 | 100475914254 | 当社管理番号 | 89 |
| 所属団体 | (公社)全日本不動産協会埼玉県本部会員 | ||
| 公正取引協議会 | (公社)首都圏不動産公正取引協議会加盟 | ||
| 取扱い物件情報 | 物件詳細へ | ||
※各種情報と現状に差異がある場合は、現状優先となります。問い合わせをすることで、より詳しい条件、情報を確認する事ができます。
提供:シャーメゾンショップ (有)ヒロックス大宮東口店(SUUMO経由)
この物件が気になったら掲載期限まであと10日
KEIAI RESIDENCE 大和田IIに条件(家賃・エリア)が近い物件一覧
| 写真 | 家賃 管理費等 | 敷金 礼金 | 間取り 専有面積 | 築年数 | 最寄り駅 所在地 | キープ | 詳細 |
|---|---|---|---|---|---|---|---|
アパート ロイヤルパーク(1K/1階) | |||||||
![]() | 4.5万円 6,000円 | なし 4.5万円 | 1K 24.7m2 | 築23年 | 東武東上線 霞ケ関駅(埼玉) 徒歩6分 JR川越線 的場駅 徒歩14分 埼玉県川越市霞ケ関東 | 詳細を見る | |
マンション グランデール東越谷(3DK/1階) | |||||||
![]() | 7.2万円 3,000円 | 7.2万円 なし | 3DK 53m2 | 築37年 | 東武伊勢崎・大師線 越谷駅 徒歩15分 埼玉県越谷市東越谷1丁目 | 詳細を見る | |
アパート CASA RIO(1K/1階) | |||||||
![]() | 6.8万円 4,000円 | なし なし | 1K 27.57m2 | 築1年 | 東武東上線 みずほ台駅 徒歩10分 東武東上線 鶴瀬駅 徒歩11分 埼玉県富士見市 | 詳細を見る | |
マンション グランデ六甲道(1K/3階) | |||||||
![]() | 7.3万円 8,000円 | なし 14.6万円 | 1K 24.97m2 | 築9年 | JR東海道本線 六甲道駅 徒歩3分 阪神本線 新在家駅 徒歩8分 阪急神戸線 六甲駅 徒歩12分 兵庫県神戸市灘区深田町 | 詳細を見る | |
アパート パームコテージ川越20番館(1LDK/2階) | |||||||
![]() | 7.2万円 3,500円 | 7.2万円 なし | 1LDK 38.67m2 | 築1年 | 東武東上線 新河岸駅 徒歩9分 JR川越線 川越駅 徒歩32分 埼玉県川越市 | 詳細を見る | |
マンション NKH並木(ワンルーム/1階) | |||||||
![]() | 4.5万円 2,000円 | 4.5万円 なし | ワンルーム 9.51m2 | 築37年 | JR京浜東北線 西川口駅 徒歩9分 JR京浜東北線 川口駅 徒歩22分 埼玉高速鉄道 川口元郷駅 徒歩29分 埼玉県川口市並木 | 詳細を見る | |
アパート レオネクストユニオン(1LDK/1階) | |||||||
![]() | 6.4万円 5,000円 | なし なし | 1LDK 46.94m2 | 築16年 | 東武鉄道野田線 七里駅 徒歩13分 埼玉県さいたま市見沼区大字小深作 | 詳細を見る | |
アパート レオパレスラ・フォンテ(2DK/1階) | |||||||
![]() | 5.8万円 5,000円 | なし 5.8万円 | 2DK 40.95m2 | 築26年 | JR宇都宮線 蓮田駅 徒歩21分 埼玉県蓮田市大字黒浜 | 詳細を見る | |









