賃貸マンション
アーバンフラッツ池袋プレミアムの賃貸物件情報(2LDK/25階)
| 家賃 | 管理費等 | 敷金 | 礼金 | 間取り | 専有面積 |
|---|---|---|---|---|---|
| 44.1万円 | 2万円 | なし | なし | 2LDK | 71.3m2 |
入居決定でお祝い金最大100,000円
Point
まずはお問い合わせ!
不動産会社は街のプロ、あなたに合った物件がきっと見つかります。
提供:アパマンショップ駒込店

詳細情報 アーバンフラッツ池袋プレミアム
物件紹介
アーバンフラッツ池袋プレミアムは山手線池袋駅から徒歩2分にあり、駅近で通勤通学に便利なマンションです。
このお部屋は2階以上に位置しているので、通行人や周囲の住人からの視線が気になりにくく、防犯面でも安心。建物のエントランスはオートロックがついており、インターホンにはTVモニタもついているため、相手の顔を確認してから来客対応することができます。
おしゃれなデザイナーズ物件!人気の角部屋で周囲の居住者の生活音も気になりにくく、また、フローリングのお部屋なのでお掃除もラクラク。室内にはウォークインクローゼットがありますので、たくさんの荷物も効率的に収納ができます。キッチンはシステムキッチン仕様になっていますので、お料理好きの方にもぴったり。バス・トイレは別なので、のんびりお風呂タイムも楽しめるでしょう。また、雨の日でも浴室乾燥機を使えば、お洗濯も問題ありません。
通信設備面では、インターネットが無料で使えるので、月々の出費を抑えられるのも魅力です。また、BSアンテナ・CSアンテナもありますので、おうち時間も充実するでしょう(別途工事、BS・CSの契約料等が必要な場合あり)。
建物にはエレベーターがついているので、重い荷物があっても安心。共用部には宅配ボックスが設定されているので、不在の時にも荷物を受け取ることができます。
このお部屋は2階以上に位置しているので、通行人や周囲の住人からの視線が気になりにくく、防犯面でも安心。建物のエントランスはオートロックがついており、インターホンにはTVモニタもついているため、相手の顔を確認してから来客対応することができます。
おしゃれなデザイナーズ物件!人気の角部屋で周囲の居住者の生活音も気になりにくく、また、フローリングのお部屋なのでお掃除もラクラク。室内にはウォークインクローゼットがありますので、たくさんの荷物も効率的に収納ができます。キッチンはシステムキッチン仕様になっていますので、お料理好きの方にもぴったり。バス・トイレは別なので、のんびりお風呂タイムも楽しめるでしょう。また、雨の日でも浴室乾燥機を使えば、お洗濯も問題ありません。
通信設備面では、インターネットが無料で使えるので、月々の出費を抑えられるのも魅力です。また、BSアンテナ・CSアンテナもありますので、おうち時間も充実するでしょう(別途工事、BS・CSの契約料等が必要な場合あり)。
建物にはエレベーターがついているので、重い荷物があっても安心。共用部には宅配ボックスが設定されているので、不在の時にも荷物を受け取ることができます。
お金・契約の情報
※「-」と表示されているものは、実際は料金が発生するものもございます。詳細はお問い合わせください。
| 家賃 | 44.1万円 | 管理費・共益費 | 2万円 |
|---|---|---|---|
| 敷金 | なし | 礼金 | なし |
| 入居決定でお祝い金最大100,000円 | |||
| 保証金 | - | 償却・敷引 | - |
| 住宅保険料 | - | 更新料 | - |
| 契約形態 | 定期借家 | 契約期間 | 2年 |
| 入居・引渡期間 | 2026年01月中旬 | 現況 | - |
| 契約備考 | Goodプレミアムα(24Hサポートのみ) 12100円/Goodプレミアムα登録料 2200円/鍵交換費用 24200円 | ||
部屋の情報
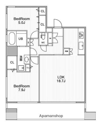
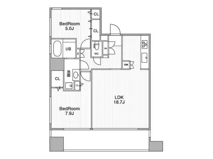
| 間取り | 2LDK | 専有面積 | 71.3m2 |
|---|---|---|---|
| 所在階 / 向き | 25階 / - | バルコニー面積 | - |
| 水道 / ガス | - | ||
| 設備 | バス・トイレ別、オートロック、テレビドアホン、宅配ボックス、浴室乾燥機、光ファイバー対応、システムキッチン、エレベーター、温水洗浄便座、バルコニー、フローリング、オール電化、コンロ:IH、CSアンテナ、BSアンテナ、インターネット使用料無料、シャワー、冷房、洗濯機:室内、タイル張り | ||
| 当社物件ID | 156860112 | ||
建物の情報
| 建物名 | アーバンフラッツ池袋プレミアム | ||
|---|---|---|---|
| 所在地 | 東京都豊島区西池袋1丁目 | ||
| 交通 | 山手線 池袋駅 徒歩2分 | ||
| 階数 | 26階建 | 総戸数 | 175戸 |
| 築年月 | 2007年06月 / 築19年 | エレベーター | あり |
| 駐車場 | - | バイク置き場 | - |
| 駐輪場 | - | 管理人/管理会社 | - |
| 建物種別 | マンション | 建物構造 | RC(鉄筋コンクリート) |
この部屋の取扱い不動産会社
| 会社名 | アパマンショップ駒込店 | ||
|---|---|---|---|
| 所在地 | 東京都豊島区駒込2丁目 14-12蔵王ビル1階 | 交通 | 山手線駒込から徒歩1分 |
| 営業時間 | 10:00〜19:00(時間外対応可能です!!) | 定休日 | - |
| 免許番号 | 東京都知事(4)89517 | 取引態様 | 仲介 |
| 不動産会社管理番号 | 111499736 | 当社管理番号 | 4 |
| 所属団体 | (公社)東京都宅地建物取引業協会 | ||
| 公正取引協議会 | (公社) 首都圏不動産公正取引協議会加盟 | ||
| 取扱い物件情報 | 物件詳細へ | ||
※各種情報と現状に差異がある場合は、現状優先となります。問い合わせをすることで、より詳しい条件、情報を確認する事ができます。
提供:アパマンショップ駒込店
この物件が気になったら掲載期限まであと12日
アーバンフラッツ池袋プレミアムの空き部屋一覧
全部で21の空き部屋があります。
アーバンフラッツ池袋プレミアムに条件(家賃・エリア)が近い物件一覧
| 写真 | 家賃 管理費等 | 敷金 礼金 | 間取り 専有面積 | 築年数 | 最寄り駅 所在地 | キープ | 詳細 |
|---|---|---|---|---|---|---|---|
マンション クリオ目白台壱番館(3LDK/7階) | |||||||
![]() | 35万円 なし | 35万円 35万円 | 3LDK 75.45m2 | 築22年 | 東京メトロ副都心線 雑司が谷駅(東京メトロ) 徒歩5分 東京メトロ有楽町線 護国寺駅 徒歩11分 JR山手線 目白駅 徒歩15分 東京都文京区目白台 | 詳細を見る | |
マンション ザ・タワー十条(3LDK/28階) | |||||||
![]() | 34万円 なし | 34万円 なし | 3LDK 68.96m2 | 築2年 | JR埼京線 十条駅(東京) 徒歩1分 JR京浜東北線 東十条駅 徒歩9分 東京都北区上十条 | 詳細を見る | |
マンション グレンドール新宿牛込柳町(2LDK/5階) | |||||||
![]() | 28万円 1万円 | 28万円 28万円 | 2LDK 53.94m2 | 築4年 | 都営大江戸線 牛込柳町駅 徒歩4分 東京メトロ東西線 早稲田駅(メトロ) 徒歩10分 都営大江戸線 若松河田駅 徒歩16分 東京都新宿区弁天町 | 詳細を見る | |
マンション ロイジェント南池袋(2LDK/7階) | |||||||
![]() | 31.7万円 1.2万円 | なし なし | 2LDK 47.55m2 | 築1年 | 西武池袋線 池袋駅 徒歩4分 JR山手線 目白駅 徒歩9分 東京メトロ副都心線 雑司が谷駅(東京メトロ) 徒歩11分 東京都豊島区南池袋 | 詳細を見る | |
マンション シティタワーズ板橋大山サウスタワー(2LDK/5階) | |||||||
![]() | 31万円 2万円 | 31万円 31万円 | 2LDK 53.85m2 | 築1年 | 東武東上線 大山駅(東京) 徒歩3分 都営三田線 板橋区役所前駅 徒歩12分 東武東上線 中板橋駅 徒歩14分 東京都板橋区大山町 | 詳細を見る | |
マンション VISTA西早稲田(2SLDK/10階) | |||||||
![]() | 35.5万円 なし | 35.5万円 なし | 2SLDK 68.3m2 | 築1年 | 東京メトロ東西線 早稲田駅(メトロ) 徒歩7分 都電荒川線 早稲田駅(都電) 徒歩7分 都電荒川線 面影橋駅 徒歩8分 東京都新宿区西早稲田 | 詳細を見る | |
アパート アルファ1号館(1LDK/1階) | |||||||
![]() | 5.3万円 3,500円 | なし 6万円 | 1LDK 37.13m2 | 築15年 | 南海電鉄南海本線 忠岡駅 徒歩13分 南海電鉄南海本線 春木駅 徒歩17分 大阪府岸和田市吉井町4丁目 | 詳細を見る | |
マンション サンパレス新宿(4SLDK/12階) | |||||||
![]() | 66.98万円 2,000円 | 66.98万円 66.98万円 | 4SLDK 130.33m2 | 築44年 | 東京メトロ丸ノ内線 西新宿駅 徒歩1分 都営大江戸線 都庁前駅 徒歩10分 西武新宿線 西武新宿駅 徒歩14分 東京都新宿区西新宿 | 詳細を見る | |








