賃貸マンション
パークアクシス豊洲の賃貸物件情報(3LDK/4階)
| 家賃 | 管理費等 | 敷金 | 礼金 | 間取り | 専有面積 |
|---|---|---|---|---|---|
| 37.8万円 | 1.2万円 | 37.8万円 | 37.8万円 | 3LDK | 78.45m2 |
入居決定でお祝い金最大100,000円
- 保証金
- -
- 償却・敷引
- -
- 築年数
- 築19年
- 所在階
- 4階
- 向き
- 南東
Point
【めやす賃料】405750円/短ペナ有/小型犬猫2匹相談可-管理費1000円-敷1増/駐輪場1F330円2F220円/保証会社要
提供:三井の賃貸レジデントファースト(株)仲介営業二部(SUUMO経由)

詳細情報 パークアクシス豊洲
物件紹介
パークアクシス豊洲は東京メトロ有楽町線豊洲駅から徒歩8分にあり、駅近で通勤通学に便利なマンションです。
このお部屋は2階以上に位置しているので通行人や周囲の住人からの視線が気になりにくく、建物のエントランスはオートロックがついているので防犯性が高くなっています。
こちらは楽器相談が可能な物件。楽器演奏をお考えの方はぜひ相談してみてください。人気の南向きのお部屋。また、フローリングなのでお掃除もラクラク。バス・トイレ別の仕様で、のんびりお風呂タイムも楽しめます。また、浴室乾燥機を使えば、雨の日でもお洗濯は問題ありません。
通信設備面ではBSアンテナ・CSアンテナがあり、CATVにも対応しているので、おうち時間も充実するでしょう(別途工事、契約料が必要な場合あり)。
建物にはエレベーターがついているので、重い荷物があっても安心。共用部には宅配ボックスが設定されているので、不在の時にも荷物を受け取ることができます。また、ペット飼育の相談ができますので、あなたの大切な家族の一員も快適に暮らせるか、ぜひ確認してみてください。
このお部屋は2階以上に位置しているので通行人や周囲の住人からの視線が気になりにくく、建物のエントランスはオートロックがついているので防犯性が高くなっています。
こちらは楽器相談が可能な物件。楽器演奏をお考えの方はぜひ相談してみてください。人気の南向きのお部屋。また、フローリングなのでお掃除もラクラク。バス・トイレ別の仕様で、のんびりお風呂タイムも楽しめます。また、浴室乾燥機を使えば、雨の日でもお洗濯は問題ありません。
通信設備面ではBSアンテナ・CSアンテナがあり、CATVにも対応しているので、おうち時間も充実するでしょう(別途工事、契約料が必要な場合あり)。
建物にはエレベーターがついているので、重い荷物があっても安心。共用部には宅配ボックスが設定されているので、不在の時にも荷物を受け取ることができます。また、ペット飼育の相談ができますので、あなたの大切な家族の一員も快適に暮らせるか、ぜひ確認してみてください。
お金・契約の情報
※「-」と表示されているものは、実際は料金が発生するものもございます。詳細はお問い合わせください。
| 家賃 | 37.8万円 | 管理費・共益費 | 1.2万円 |
|---|---|---|---|
| 敷金 | 37.8万円 | 礼金 | 37.8万円 |
| 入居決定でお祝い金最大100,000円 | |||
| 保証金 | - | 償却・敷引 | - |
| 住宅保険料 | - | 更新料 | - |
| 保証会社利用 | 必須 | 保証会社名 | - |
| 保証会社費用 | - | 保証会社備考 | 保証会社利用必 初回保証委託料(最低20,000円):月額賃料等の50%、 2年目以降:9,600円/年 |
| 契約形態 | - | 契約期間 | - |
| 入居・引渡期間 | - | 現況 | - |
| 入居可能条件 | 楽器相談、ペット相談 | ||
| 契約備考 | 東京都大江戸線月島駅徒歩16分/常駐管理 合計16.33万円(内訳:入居時の玄関錠交換代16500円/退去時の通常清掃費用146701円) 口座振替事務手数料220円 3LDK ペット相談/楽器相談/事務所利用不可 普通借家24ヶ月 損保【要】 バストイレ別、バルコニー、エアコン、フローリング、浴室乾燥機、オートロック、室内洗濯置、エレベーター、洗面所独立、宅配ボックス、CATV、BS・CS、ペット相談、グリル付、敷金1ヶ月、LDK15畳以上、保証金不要、楽器相談、フロントサービス、駅徒歩10分以内、東南向き、礼金1ヶ月 入居日:'26年4月下旬 | ||
部屋の情報
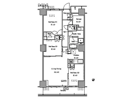
| 間取り | 3LDK | 専有面積 | 78.45m2 |
|---|---|---|---|
| 所在階 / 向き | 4階 / 南東 | バルコニー面積 | - |
| 水道 / ガス | - | ||
| 設備 | バス・トイレ別、2階以上、オートロック、宅配ボックス、浴室乾燥機、エアコン、エレベーター、南向き、バルコニー、フローリング、洗髪洗面化粧台、CATV、CSアンテナ、BSアンテナ、洗濯機:室内 | ||
| 当社物件ID | 687192 | ||
建物の情報
| 建物名 | パークアクシス豊洲 | ||
|---|---|---|---|
| 所在地 | 東京都江東区豊洲 | ||
| 交通 | 東京メトロ有楽町線 豊洲駅 徒歩8分 新交通ゆりかもめ 豊洲駅 徒歩11分 東京メトロ有楽町線 月島駅 徒歩16分 | ||
| 階数 | 地下1地上20階建 | 総戸数 | - |
| 築年月 | 2008年03月 / 築19年 | エレベーター | あり |
| 駐車場 | 空有 27500円 | バイク置き場 | - |
| 駐輪場 | - | 管理人/管理会社 | - |
| 建物種別 | マンション | 建物構造 | RC(鉄筋コンクリート) |
この部屋の取扱い不動産会社
| 会社名 | 三井の賃貸レジデントファースト(株)仲介営業二部(SUUMO経由) | ||
|---|---|---|---|
| 所在地 | 東京都港区赤坂8-4-14 青山タワープレイス | 交通 | - |
| 営業時間 | 9:30~18:00 | 定休日 | 水曜日 |
| 免許番号 | 東京都知事96482 | 取引態様 | 仲介 |
| 不動産会社管理番号 | 100492325452 | 当社管理番号 | 89 |
| 所属団体 | (一社)不動産流通経営協会会員 | ||
| 公正取引協議会 | (公社)首都圏不動産公正取引協議会加盟 | ||
| 取扱い物件情報 | 物件詳細へ | ||
※各種情報と現状に差異がある場合は、現状優先となります。問い合わせをすることで、より詳しい条件、情報を確認する事ができます。
提供:三井の賃貸レジデントファースト(株)仲介営業二部(SUUMO経由)
この物件が気になったら掲載期限まであと12日
パークアクシス豊洲の空き部屋一覧
全部で36の空き部屋があります。
パークアクシス豊洲に条件(家賃・エリア)が近い物件一覧
| 写真 | 家賃 管理費等 | 敷金 礼金 | 間取り 専有面積 | 築年数 | 最寄り駅 所在地 | キープ | 詳細 |
|---|---|---|---|---|---|---|---|
マンション ラフィーネ大森(3LDK/3階) | |||||||
![]() | 31.8万円 2,000円 | 31.8万円 31.8万円 | 3LDK 116.22m2 | 築22年 | 京急本線 平和島駅 徒歩14分 京急本線 大森町駅 徒歩16分 JR京浜東北線 大森駅(東京) 徒歩16分 東京都大田区大森西 | 詳細を見る | |
マンション コンフォリア・リヴ豊洲キャナル(2LDK/3階) | |||||||
![]() | 27.3万円 1.2万円 | 27.3万円 なし | 2LDK 64.02m2 | 築2年 | 東京メトロ有楽町線 豊洲駅 徒歩14分 JR京葉線 潮見駅 徒歩22分 東京メトロ有楽町線 辰巳駅 徒歩32分 東京都江東区枝川 | 詳細を見る | |
マンション 京浜急行電鉄本線 梅屋敷駅(東京) 徒歩4分 築37年(3LDK/2階) | |||||||
![]() | 23万円 7,000円 | 23万円 23万円 | 3LDK 84.68m2 | 築37年 | 京浜急行電鉄本線 梅屋敷駅(東京) 徒歩4分 京浜急行電鉄本線 大森町駅 徒歩12分 東京都大田区大森西6丁目 | 詳細を見る | |
マンション SKYWOOD錦糸町(2LDK/2階) | |||||||
![]() | 28.3万円 1.5万円 | なし なし | 2LDK 59.43m2 | 築1年 | JR総武線 錦糸町駅 徒歩7分 東京メトロ半蔵門線 錦糸町駅 徒歩7分 都営大江戸線 両国駅 徒歩13分 東京都墨田区亀沢 | 詳細を見る | |
マンション プレール・ドゥーク大島(2LDK/2階) | |||||||
![]() | 23.3万円 1.1万円 | なし 23.3万円 | 2LDK 53.96m2 | 築2年 | 東京都新宿線 東大島駅 徒歩6分 東京都新宿線 大島駅(東京) 徒歩8分 総武・中央緩行線 亀戸駅 徒歩25分 東京都江東区大島7丁目 | 詳細を見る | |
マンション ブリリア有明スカイタワー(3LDK/20階) | |||||||
![]() | 44万円 2万円 | 88万円 44万円 | 3LDK 93.55m2 | 築16年 | ゆりかもめ 有明テニスの森駅 徒歩9分 東京臨海高速鉄道 国際展示場駅 徒歩10分 ゆりかもめ 有明駅(東京) 徒歩14分 東京都江東区有明1丁目 | 詳細を見る | |
マンション エスティメゾン豊洲レジデンス E棟(2LDK/2階) | |||||||
![]() | 24.8万円 1.2万円 | 24.8万円 24.8万円 | 2LDK 56.5m2 | 築19年 | 東京メトロ有楽町線 豊洲駅 徒歩5分 東京メトロ有楽町線 月島駅 徒歩19分 新交通ゆりかもめ 新豊洲駅 徒歩20分 東京都江東区豊洲 | 詳細を見る | |
マンション アーバネックス錦糸公園II(2LDK/10階) | |||||||
![]() | 22.8万円 2万円 | 22.8万円 なし | 2LDK 40.01m2 | 築2年 | JR総武線 錦糸町駅 徒歩4分 東京メトロ半蔵門線 錦糸町駅 徒歩4分 都営浅草線 押上駅 徒歩16分 東京都墨田区錦糸 | 詳細を見る | |









