賃貸マンション
幕張ベイパーク ミッドスクエアタワーの賃貸物件情報(3LDK/11階)
| 家賃 | 管理費等 | 敷金 | 礼金 | 間取り | 専有面積 |
|---|---|---|---|---|---|
| 26.8万円 | なし | 26.8万円 | 26.8万円 | 3LDK | 80.56m2 |
入居決定でお祝い金最大100,000円
Point
快適な住宅設備満載、ゆとりのあるマンションライフが楽しめるマンションです
提供:(株)協進ホームライフ検見川浜店(SUUMO経由)

詳細情報 幕張ベイパーク ミッドスクエアタワー
物件紹介
幕張ベイパーク ミッドスクエアタワーはJR京葉線海浜幕張駅から徒歩15分にあるマンションです。
このお部屋は2階以上に位置しているので、通行人や周囲の住人からの視線が気になりにくく、防犯面でも安心。建物のエントランスはオートロックがついており、インターホンにはTVモニタもついているため、相手の顔を確認してから来客対応することができます。
こちらは楽器相談が可能な物件。楽器演奏をお考えの方はぜひ相談してみてください。フローリングのお部屋なのでお掃除もラクラク。室内には人気のウォークインクローゼットがありますので、たくさんの荷物も効率的に収納ができます。キッチンはシステムキッチン仕様になっていますので、お料理好きの方にもぴったり。また、バス・トイレは別で、のんびりお風呂タイムも楽しめるでしょう。
通信設備面では、インターネットが無料で使えるので、月々の出費を抑えられるのも魅力です。また、CATVにも対応しているので、おうち時間も充実するでしょう(別途工事、CATVの契約料等が必要な場合あり)。
床暖房があり、冬も足元から暖かく快適に過ごすことができます。建物にはエレベーターがついているので、重い荷物があっても安心。共用部には宅配ボックスが設定されているので、不在の時にも荷物を受け取ることができます。また、ペット飼育の相談ができますので、あなたの大切な家族の一員も快適に暮らせるか、ぜひ確認してみてください。
このお部屋は2階以上に位置しているので、通行人や周囲の住人からの視線が気になりにくく、防犯面でも安心。建物のエントランスはオートロックがついており、インターホンにはTVモニタもついているため、相手の顔を確認してから来客対応することができます。
こちらは楽器相談が可能な物件。楽器演奏をお考えの方はぜひ相談してみてください。フローリングのお部屋なのでお掃除もラクラク。室内には人気のウォークインクローゼットがありますので、たくさんの荷物も効率的に収納ができます。キッチンはシステムキッチン仕様になっていますので、お料理好きの方にもぴったり。また、バス・トイレは別で、のんびりお風呂タイムも楽しめるでしょう。
通信設備面では、インターネットが無料で使えるので、月々の出費を抑えられるのも魅力です。また、CATVにも対応しているので、おうち時間も充実するでしょう(別途工事、CATVの契約料等が必要な場合あり)。
床暖房があり、冬も足元から暖かく快適に過ごすことができます。建物にはエレベーターがついているので、重い荷物があっても安心。共用部には宅配ボックスが設定されているので、不在の時にも荷物を受け取ることができます。また、ペット飼育の相談ができますので、あなたの大切な家族の一員も快適に暮らせるか、ぜひ確認してみてください。
お金・契約の情報
※「-」と表示されているものは、実際は料金が発生するものもございます。詳細はお問い合わせください。
| 家賃 | 26.8万円 | 管理費・共益費 | なし |
|---|---|---|---|
| 敷金 | 26.8万円 | 礼金 | 26.8万円 |
| 入居決定でお祝い金最大100,000円 | |||
| 保証金 | - | 償却・敷引 | - |
| 住宅保険料 | - | 更新料 | - |
| 保証会社利用 | 必須 | 保証会社名 | - |
| 保証会社費用 | - | 保証会社備考 | 保証会社利用必 入居時:賃料等の50% 毎月:賃料等の1% |
| 契約形態 | - | 契約期間 | - |
| 入居・引渡期間 | 即時 | 現況 | - |
| 入居可能条件 | 楽器相談、ペット相談 | ||
| 契約備考 | 通勤管理 合計19.01万円(内訳:清掃費124、062円エアコン清掃費66、000円) コールセンター利用料1、100円/月 3LDK ペット相談/楽器相談/事務所利用不可/ルームシェア不可 普通借家2年 損保【1.66万円2年】 バストイレ別、TVインターホン、オートロック、室内洗濯置、シューズボックス、システムキッチン、追焚機能浴室、温水洗浄便座、エレベーター、洗面所独立、駐輪場、宅配ボックス、CATV、即入居可、3口以上コンロ、対面式キッチン、ペット相談、分譲賃貸、オートバス、グリル付、全居室洋室、ウォークインクロゼット、敷金1ヶ月、バイク置場、全居室フローリング、LDK15畳以上、ディンプルキー、駅まで平坦、ネット使用料不要、浄水器、床暖房、食器洗乾燥機、眺望良好、ダブルロックキー、ディスポーザー、24時間換気システム、楽器相談、複層ガラス、フロントサービス、平坦地、築3年以内、人感照明センサー、エアコン4台、クロゼット3ヶ所、大型タウン内、タワー型マンション、集会所、ゲストルーム、敷地内遊び場、敷地内ごみ置き場、日勤管理、備付食器棚、都市ガス、タンクレストイレ、三面鏡付洗面化粧台、ワイドバルコニー、玄関収納、礼金1ヶ月、通風良好 入居日:'26年3月下旬 | ||
部屋の情報
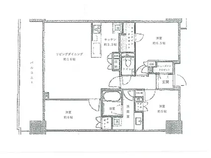
| 間取り | 3LDK | 専有面積 | 80.56m2 |
|---|---|---|---|
| 所在階 / 向き | 11階 / 西 | バルコニー面積 | - |
| 水道 / ガス | - | ||
| 設備 | バス・トイレ別、2階以上、オートロック、テレビドアホン、宅配ボックス、ウォークインクローゼット、追い焚き、インターネット対応、システムキッチン、エアコン、エレベーター、温水洗浄便座、バルコニー、フローリング、洗髪洗面化粧台、タワーマンション、床暖房、2口コンロ、CATV、インターネット使用料無料、洗濯機:室内 | ||
| 当社物件ID | 160419187 | ||
建物の情報
| 建物名 | 幕張ベイパーク ミッドスクエアタワー | ||
|---|---|---|---|
| 所在地 | 千葉県千葉市美浜区若葉 | ||
| 交通 | JR京葉線 海浜幕張駅 徒歩15分 | ||
| 階数 | 43階建 | 総戸数 | - |
| 築年月 | 2023年10月 / 築3年 | エレベーター | あり |
| 駐車場 | なし | バイク置き場 | あり |
| 駐輪場 | あり | 管理人/管理会社 | - |
| 周辺環境 | その他 みはま病院(病院)まで331m その他 イオンスタイル幕張ベイパーク(ショッピングセンター)まで368m その他 幕張総合高校(高校・高専)まで466m その他 打瀬保育園(幼稚園・保育園)まで276m その他 打瀬小(小学校)まで379m | ||
| 建物種別 | マンション | 建物構造 | RC(鉄筋コンクリート) |
この部屋の取扱い不動産会社
| 会社名 | (株)協進ホームライフ検見川浜店(SUUMO経由) | ||
|---|---|---|---|
| 所在地 | 千葉県千葉市美浜区真砂4-1-10 ショッピングセンター「ピア」内 | 交通 | - |
| 営業時間 | - | 定休日 | - |
| 免許番号 | 千葉県知事17345 | 取引態様 | 仲介 |
| 不動産会社管理番号 | 100494208231 | 当社管理番号 | 89 |
| 所属団体 | (一社)千葉県宅地建物取引業協会会員 | ||
| 公正取引協議会 | (公社)首都圏不動産公正取引協議会加盟 | ||
| 取扱い物件情報 | 物件詳細へ | ||
※各種情報と現状に差異がある場合は、現状優先となります。問い合わせをすることで、より詳しい条件、情報を確認する事ができます。
提供:(株)協進ホームライフ検見川浜店(SUUMO経由)
この物件が気になったら掲載期限まであと11日
幕張ベイパーク ミッドスクエアタワーに条件(家賃・エリア)が近い物件一覧
| 写真 | 家賃 管理費等 | 敷金 礼金 | 間取り 専有面積 | 築年数 | 最寄り駅 所在地 | キープ | 詳細 |
|---|---|---|---|---|---|---|---|
マンション スカイグランデ津田沼(3LDK/5階) | |||||||
![]() | 20.7万円 1.5万円 | なし なし | 3LDK 65.1m2 | 築1年 | 京成松戸線 新津田沼駅 徒歩4分 JR総武線 津田沼駅 徒歩7分 千葉県習志野市津田沼 | 詳細を見る | |
マンション 津田沼ザ・タワー(3LDK/37階) | |||||||
![]() | 26.1万円 なし | 26.1万円 26.1万円 | 3LDK 75.87m2 | 築7年 | JR総武線 津田沼駅 徒歩5分 京成松戸線 新津田沼駅 徒歩14分 京成本線 京成津田沼駅 徒歩14分 千葉県習志野市谷津 | 詳細を見る | |
マンション 幕張ベイパーク ライズゲートタワー(3SLDK/34階) | |||||||
![]() | 35万円 3万円 | 35万円 35万円 | 3SLDK 83.12m2 | 築1年 | JR京葉線 検見川浜駅 徒歩13分 JR京葉線 海浜幕張駅 徒歩14分 千葉県千葉市美浜区若葉 | 詳細を見る | |
マンション ザ・パークハウス津田沼奏の杜カームレジデンス(2LDK/19階) | |||||||
![]() | 20.5万円 なし | 20.5万円 20.5万円 | 2LDK 63.23m2 | 築14年 | JR総武線 津田沼駅 徒歩7分 千葉県習志野市奏の杜 | 詳細を見る | |
アパート RESI NOIR(2LDK/2階) | |||||||
![]() | 17.5万円 5,000円 | なし 8.75万円 | 2LDK 53.84m2 | 築1年 | 総武・中央緩行線 津田沼駅 徒歩6分 千葉県習志野市谷津7丁目 | 詳細を見る | |
マンション ガーネットコート2(3LDK/3階) | |||||||
![]() | 16.5万円 5,000円 | 16.5万円 なし | 3LDK 54.72m2 | 築1年 | 総武・中央緩行線 幕張本郷駅 徒歩6分 千葉県千葉市花見川区幕張本郷2丁目 | 詳細を見る | |
一戸建て 京成電鉄本線 京成大久保駅 徒歩15分 築1年(3LDK) | |||||||
![]() | 16.8万円 なし | 16.8万円 33.6万円 | 3LDK 85.5m2 | 築1年 | 京成電鉄本線 京成大久保駅 徒歩15分 千葉県習志野市屋敷4丁目 | 詳細を見る | |
マンション ユトリシア四番街(4LDK/1階) | |||||||
![]() | 20万円 なし | 40万円 20万円 | 4LDK 110m2 | 築14年 | 京成電鉄本線 実籾駅 徒歩11分 千葉県習志野市東習志野2丁目 | 詳細を見る | |





/105x80-f1-q70-wp1)


