賃貸マンション
ファミールコヌマの賃貸物件情報(2LDK/4階)
| 家賃 | 管理費等 | 敷金 | 礼金 | 間取り | 専有面積 |
|---|---|---|---|---|---|
| 9万円 | 5,000円 | なし | なし | 2LDK | 48m2 |
入居決定でお祝い金最大100,000円
- 保証金
- -
- 償却・敷引
- -
- 築年数
- 築40年
- 所在階
- 4階
- 向き
- 西
Point
オンラインにて申込みから契約までのお手続きも可能です。入居日が合わずにお悩みの方、契約金のお見積もりや室内写真のご要望などお気軽にお問い合わせください。初期費用の分割払いも承ります。
提供:(株)エールーム赤羽店(SUUMO経由)

詳細情報 ファミールコヌマ
物件紹介
ファミールコヌマはJR埼京線戸田公園駅から徒歩15分にあるマンションです。
このお部屋は2階以上に位置しているので、通行人や周囲の住人からの視線が気になりにくく、防犯面でも安心です。
人気の角部屋で周囲の居住者の生活音も気になりにくく、また、フローリングのお部屋なのでお掃除もラクラク。バス・トイレ別の仕様で、のんびりお風呂タイムも楽しめます。
通信設備面では、インターネット接続が可能です。また、CATVにも対応しているので、おうち時間も充実するでしょう(別途工事、契約料が必要な場合あり)。
建物にはエレベーターがついているので、重い荷物があっても安心。
このお部屋は2階以上に位置しているので、通行人や周囲の住人からの視線が気になりにくく、防犯面でも安心です。
人気の角部屋で周囲の居住者の生活音も気になりにくく、また、フローリングのお部屋なのでお掃除もラクラク。バス・トイレ別の仕様で、のんびりお風呂タイムも楽しめます。
通信設備面では、インターネット接続が可能です。また、CATVにも対応しているので、おうち時間も充実するでしょう(別途工事、契約料が必要な場合あり)。
建物にはエレベーターがついているので、重い荷物があっても安心。
お金・契約の情報
※「-」と表示されているものは、実際は料金が発生するものもございます。詳細はお問い合わせください。
| 家賃 | 9万円 | 管理費・共益費 | 5,000円 |
|---|---|---|---|
| 敷金 | なし | 礼金 | なし |
| 入居決定でお祝い金最大100,000円 | |||
| 保証金 | - | 償却・敷引 | - |
| 住宅保険料 | - | 更新料 | - |
| 保証会社利用 | 必須 | 保証会社名 | - |
| 保証会社費用 | - | 保証会社備考 | 保証会社利用必 初回保証料:賃料・管理費の50パーセント 1年毎の更新料12000円 |
| 契約形態 | - | 契約期間 | - |
| 入居・引渡期間 | 即時 | 現況 | - |
| 入居可能条件 | 事務所可 | ||
| 契約備考 | 【仲介手数料無料(0円)対象物件】初期費用の分割・クレジットカード決済可能です!お気軽にご相談下さい。短期違約金として、1年未満の解約は賃料・管理費の1ヶ月となります。 合計4.07万円(内訳:24時間サポート1.65万円鍵交換代2.42万円) 更新料 新賃料1.00ヶ月分 室内清掃費用 55000円 2LDK 二人入居可 普通借家2年 損保【2.2万円2年】 バストイレ別、バルコニー、エアコン、ガスコンロ対応、クロゼット、室内洗濯置、エレベーター、洗面化粧台、即入居可、礼金不要、2面採光、敷金不要、防犯カメラ、仲介手数料不要、二人入居相談、2沿線利用可、ネット専用回線、保証金不要、事務所相談、2駅利用可、3駅以上利用可、都市ガス、敷金・礼金不要、初期費用カード決済可 | ||
部屋の情報
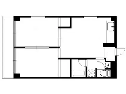
| 間取り | 2LDK | 専有面積 | 48m2 |
|---|---|---|---|
| 所在階 / 向き | 4階 / 西 | バルコニー面積 | - |
| 水道 / ガス | - | ||
| 設備 | バス・トイレ別、2階以上、インターネット対応、エアコン、エレベーター、バルコニー、コンロ:ガス、洗濯機:室内 | ||
| 当社物件ID | 2954697 | ||
建物の情報
| 建物名 | ファミールコヌマ | ||
|---|---|---|---|
| 所在地 | 埼玉県戸田市下戸田 | ||
| 交通 | JR埼京線 戸田公園駅 徒歩15分 JR埼京線 戸田駅(埼玉) 徒歩16分 JR京浜東北線 蕨駅 徒歩23分 | ||
| 階数 | 6階建 | 総戸数 | - |
| 築年月 | 1987年03月 / 築40年 | エレベーター | あり |
| 駐車場 | なし | バイク置き場 | - |
| 駐輪場 | - | 管理人/管理会社 | - |
| 周辺環境 | その他 戸田公園(その他)まで1216m その他 戸田駅(その他)まで1236m その他 蕨駅(その他)まで1755m その他 アコレ 上戸田店(スーパー)まで681m その他 サミットストア 戸田公園駅店(スーパー)まで1251m その他 ファミリーマート 戸田本町一丁目店(コンビニ)まで1155m | ||
| 建物種別 | マンション | 建物構造 | RC(鉄筋コンクリート) |
この部屋の取扱い不動産会社
| 会社名 | (株)エールーム赤羽店(SUUMO経由) | ||
|---|---|---|---|
| 所在地 | 東京都北区赤羽2-16-1 高和赤羽ビル3階(旧中村ビル) | 交通 | - |
| 営業時間 | 10:00~19:00 | 定休日 | 毎週水曜日 |
| 免許番号 | 国土交通大臣9710 | 取引態様 | 仲介 |
| 不動産会社管理番号 | 100490463243 | 当社管理番号 | 89 |
| 所属団体 | (公社)東京都宅地建物取引業協会会員 | ||
| 公正取引協議会 | (公社)首都圏不動産公正取引協議会加盟 | ||
| 取扱い物件情報 | 物件詳細へ | ||
※各種情報と現状に差異がある場合は、現状優先となります。問い合わせをすることで、より詳しい条件、情報を確認する事ができます。
提供:(株)エールーム赤羽店(SUUMO経由)
この物件が気になったら掲載期限まであと10日
ファミールコヌマに条件(家賃・エリア)が近い物件一覧
| 写真 | 家賃 管理費等 | 敷金 礼金 | 間取り 専有面積 | 築年数 | 最寄り駅 所在地 | キープ | 詳細 |
|---|---|---|---|---|---|---|---|
マンション アクシーズV(1K/5階) | |||||||
![]() | 6.2万円 3,000円 | 6.2万円 なし | 1K 22.4m2 | 築22年 | JR京浜東北線 川口駅 徒歩6分 埼玉高速鉄道 川口元郷駅 徒歩18分 JR京浜東北線 西川口駅 徒歩24分 埼玉県川口市幸町 | 詳細を見る | |
マンション ディアコート参番館(3LDK/6階) | |||||||
![]() | 12.1万円 9,000円 | 24.2万円 なし | 3LDK 63.12m2 | 築29年 | JR京浜東北線 大宮駅(埼玉) 徒歩18分 東武野田線 大宮公園駅 徒歩22分 東武野田線 北大宮駅 徒歩24分 埼玉県さいたま市大宮区堀の内町 | 詳細を見る | |
アパート シャトネルA(1LDK/2階) | |||||||
![]() | 11.3万円 3,000円 | 11.3万円 16.95万円 | 1LDK 44.92m2 | 築1年 | 東武東上線 朝霞駅 徒歩7分 東武東上線 和光市駅 徒歩23分 東武東上線 朝霞台駅 徒歩42分 埼玉県朝霞市本町 | 詳細を見る | |
アパート REGALEST KB前(2LDK/3階) | |||||||
![]() | 10.5万円 3,000円 | なし なし | 2LDK 38.98m2 | 新築 | 湘南新宿ライン宇須 土呂駅 徒歩3分 東武野田線 大宮公園駅 徒歩17分 埼玉新都市交通伊奈線 加茂宮駅 徒歩24分 埼玉県さいたま市北区土呂町 | 詳細を見る | |
マンション あさかヴィレッジパティオ棟3号棟(3LDK/1階) | |||||||
![]() | 11.1万円 7,000円 | 11.1万円 なし | 3LDK 82.62m2 | 築34年 | 東武東上線 朝霞駅 徒歩18分 東京メトロ有楽町線 和光市駅 徒歩34分 東武東上線 朝霞台駅 徒歩35分 埼玉県朝霞市根岸台 | 詳細を見る | |
アパート キャメル宮原14(1K/3階) | |||||||
![]() | 6.6万円 3,000円 | なし 6.6万円 | 1K 25.07m2 | 新築 | 埼玉新都市交通伊奈線 加茂宮駅 徒歩7分 JR高崎線 宮原駅 徒歩8分 埼玉新都市交通伊奈線 東宮原駅 徒歩10分 埼玉県さいたま市北区宮原町 | 詳細を見る | |
マンション ビューフレア片町(3LDK/3階) | |||||||
![]() | 9.5万円 6,700円 | 19万円 なし | 3LDK 66.88m2 | 築25年 | JR埼京線 与野本町駅 徒歩33分 JR埼京線 南与野駅 徒歩36分 JR埼京線 北与野駅 徒歩48分 埼玉県さいたま市桜区大字大久保領家 | 詳細を見る | |
マンション 日東北袋ハイツ(2LDK/3階) | |||||||
![]() | 7.7万円 5,000円 | 7.7万円 7.7万円 | 2LDK 52.89m2 | 築39年 | JR京浜東北線 与野駅 徒歩12分 JR京浜東北線 さいたま新都心駅 徒歩14分 JR埼京線 北与野駅 徒歩23分 埼玉県さいたま市大宮区北袋町 | 詳細を見る | |









