賃貸マンション
ガーラ・ステーション川崎久地の賃貸物件情報(1DK/4階)
| 家賃 | 管理費等 | 敷金 | 礼金 | 間取り | 専有面積 |
|---|---|---|---|---|---|
| 9.7万円 | 9,000円 | 9.7万円 | 9.7万円 | 1DK | 27.57m2 |
入居決定でお祝い金最大100,000円
Point
セキュリティ面は、オートロック・TVインターホンなど充実しているので、防犯対策もばっちりです。収納はシューズボックス・クロゼットなどが備え付けられているので、衣類や日用品の収納に重宝します。
提供:(株)FJネクスト(SUUMO経由)

詳細情報 ガーラ・ステーション川崎久地
物件紹介
ガーラ・ステーション川崎久地はJR南武線久地駅から徒歩4分にあり、駅近で通勤通学に便利なマンションです。
このお部屋は2階以上に位置しているので、通行人や周囲の住人からの視線が気になりにくく、防犯面でも安心。建物のエントランスはオートロックがついており、インターホンにはTVモニタもついているため、相手の顔を確認してから来客対応することができます。
フローリングのお部屋なのでお掃除もラクラク。キッチンはシステムキッチン仕様になっていますので、お料理好きの方にもぴったり。バス・トイレは別なので、のんびりお風呂タイムも楽しめるでしょう。また、雨の日でも浴室乾燥機を使えば、お洗濯も問題ありません。
通信設備面では、インターネットが無料で使えるので、月々の出費を抑えられるのも魅力です。また、BSアンテナ・CSアンテナもありますので、おうち時間も充実するでしょう(別途工事、BS・CSの契約料等が必要な場合あり)。
建物にはエレベーターがついているので、重い荷物があっても安心。共用部には宅配ボックスが設定されているので、不在の時にも荷物を受け取ることができます。
このお部屋は2階以上に位置しているので、通行人や周囲の住人からの視線が気になりにくく、防犯面でも安心。建物のエントランスはオートロックがついており、インターホンにはTVモニタもついているため、相手の顔を確認してから来客対応することができます。
フローリングのお部屋なのでお掃除もラクラク。キッチンはシステムキッチン仕様になっていますので、お料理好きの方にもぴったり。バス・トイレは別なので、のんびりお風呂タイムも楽しめるでしょう。また、雨の日でも浴室乾燥機を使えば、お洗濯も問題ありません。
通信設備面では、インターネットが無料で使えるので、月々の出費を抑えられるのも魅力です。また、BSアンテナ・CSアンテナもありますので、おうち時間も充実するでしょう(別途工事、BS・CSの契約料等が必要な場合あり)。
建物にはエレベーターがついているので、重い荷物があっても安心。共用部には宅配ボックスが設定されているので、不在の時にも荷物を受け取ることができます。
お金・契約の情報
※「-」と表示されているものは、実際は料金が発生するものもございます。詳細はお問い合わせください。
| 家賃 | 9.7万円 | 管理費・共益費 | 9,000円 |
|---|---|---|---|
| 敷金 | 9.7万円 | 礼金 | 9.7万円 |
| 入居決定でお祝い金最大100,000円 | |||
| 保証金 | - | 償却・敷引 | - |
| 住宅保険料 | - | 更新料 | - |
| 保証会社利用 | 必須 | 保証会社名 | - |
| 保証会社費用 | - | 保証会社備考 | 保証会社利用必 保証料:賃料等の0.5ヶ月分(最低保証料2万円)/月額保証料 賃料等の1.2% |
| 契約形態 | - | 契約期間 | - |
| 入居・引渡期間 | - | 現況 | - |
| 契約備考 | 通勤管理 合計3.92万円(内訳:(退去時)エアコンクリーニング費用/1台につき1.32万円火災保険(地震特約付き)2.6万円) 更新料 新賃料1.00ヶ月分 室内清掃費用 38500円 1DK 二人入居可/事務所利用不可 普通借家2年 損保【2万円2年】 バストイレ別、バルコニー、エアコン、ガスコンロ対応、クロゼット、フローリング、シャワー付洗面台、TVインターホン、浴室乾燥機、オートロック、室内洗濯置、シューズボックス、システムキッチン、追焚機能浴室、温水洗浄便座、脱衣所、エレベーター、洗面所独立、洗面化粧台、2口コンロ、駐輪場、宅配ボックス、BS・CS、防犯カメラ、分譲賃貸、オートバス、グリル付、保証人不要、敷金1ヶ月、バイク置場、防犯シャッター、カードキー、2沿線利用可、CS、ネット使用料不要、築2年以内、24時間換気システム、外壁コンクリート、学生相談、人感照明センサー、トイレ未使用、2駅利用可、駅徒歩5分以内、駅徒歩10分以内、24時間ゴミ出し可、風除室、敷地内ごみ置き場、日勤管理、当社管理物件、キッチン未使用、都市ガス、浴室床暖房、洗面所にドア、BS、年度内入居可、礼金1ヶ月、保証会社利用可、IT重説対応物件 入居日:'26年3月下旬 | ||
部屋の情報
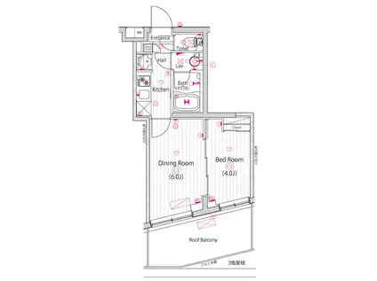
| 間取り | 1DK | 専有面積 | 27.57m2 |
|---|---|---|---|
| 所在階 / 向き | 4階 / 北西 | バルコニー面積 | - |
| 水道 / ガス | - | ||
| 設備 | バス・トイレ別、2階以上、オートロック、テレビドアホン、宅配ボックス、浴室乾燥機、追い焚き、インターネット対応、システムキッチン、エアコン、エレベーター、温水洗浄便座、バルコニー、フローリング、洗髪洗面化粧台、2口コンロ、コンロ:ガス、CSアンテナ、BSアンテナ、インターネット使用料無料、洗濯機:室内 | ||
| 当社物件ID | 160264685 | ||
建物の情報
| 建物名 | ガーラ・ステーション川崎久地 | ||
|---|---|---|---|
| 所在地 | 神奈川県川崎市多摩区宿河原 | ||
| 交通 | JR南武線 久地駅 徒歩4分 | ||
| 階数 | 5階建 | 総戸数 | - |
| 築年月 | 2026年03月 / 新築 | エレベーター | あり |
| 駐車場 | なし | バイク置き場 | あり |
| 駐輪場 | あり | 管理人/管理会社 | - |
| 周辺環境 | その他 まいばすけっと 久地駅西店(スーパー)まで196m その他 ファミリーマート 久地店(コンビニ)まで157m その他 キャンドゥ 久地駅前店(その他)まで279m その他 セブンイレブン 川崎堰店(コンビニ)まで409m その他 緑ヶ丘霊園(公園)まで1429m | ||
| 建物種別 | マンション | 建物構造 | RC(鉄筋コンクリート) |
この部屋の取扱い不動産会社
| 会社名 | (株)FJネクスト(SUUMO経由) | ||
|---|---|---|---|
| 所在地 | 東京都新宿区西新宿6-5-1 新宿アイランドタワー11階 | 交通 | - |
| 営業時間 | 10:00~19:00 | 定休日 | 年中無休 |
| 免許番号 | 国土交通大臣9976 | 取引態様 | 貸主 |
| 不動産会社管理番号 | 100482979838 | 当社管理番号 | 89 |
| 所属団体 | (公社)全日本不動産協会東京都本部会員 | ||
| 公正取引協議会 | (公社)首都圏不動産公正取引協議会加盟 | ||
| 取扱い物件情報 | 物件詳細へ | ||
※各種情報と現状に差異がある場合は、現状優先となります。問い合わせをすることで、より詳しい条件、情報を確認する事ができます。
提供:(株)FJネクスト(SUUMO経由)
この物件が気になったら掲載期限まであと10日
ガーラ・ステーション川崎久地の空き部屋一覧
全部で76の空き部屋があります。
ガーラ・ステーション川崎久地に条件(家賃・エリア)が近い物件一覧
| 写真 | 家賃 管理費等 | 敷金 礼金 | 間取り 専有面積 | 築年数 | 最寄り駅 所在地 | キープ | 詳細 |
|---|---|---|---|---|---|---|---|
アパート フォレスト ルーチェ(2LDK/2階) | |||||||
![]() | 12.9万円 4,000円 | なし 45.15万円 | 2LDK 65m2 | 築4年 | グリーンライン 日吉本町駅 徒歩20分 東急東横線 日吉駅(神奈川) 徒歩23分 グリーンライン 高田駅(神奈川) 徒歩24分 神奈川県横浜市港北区下田町 | 詳細を見る | |
マンション SPATIE OKURAYAMA(ワンルーム/1階) | |||||||
![]() | 10万円 2万円 | なし なし | ワンルーム 21.46m2 | 築3年 | 東急東横線 大倉山駅(神奈川) 徒歩7分 東急東横線 綱島駅 徒歩15分 神奈川県横浜市港北区大曽根 | 詳細を見る | |
マンション コンシェリア横濱 (1K/11階) | |||||||
![]() | 9.15万円 1.2万円 | なし 18.3万円 | 1K 23.2m2 | 築1年 | JR京浜東北線 新子安駅 徒歩3分 京急本線 京急新子安駅 徒歩3分 JR横浜線 大口駅 徒歩19分 神奈川県横浜市神奈川区子安通 | 詳細を見る | |
アパート ビラ二俣川(1K/1階) | |||||||
![]() | 7.1万円 5,000円 | 7.1万円 なし | 1K 24.22m2 | 築11年 | 相鉄本線 二俣川駅 徒歩8分 相鉄いずみ野線 南万騎が原駅 徒歩13分 相鉄本線 希望ケ丘駅 徒歩22分 神奈川県横浜市旭区さちが丘 | 詳細を見る | |
マンション SYNEX HIGASHI-KANAGAWA(1K/5階) | |||||||
![]() | 8.1万円 9,000円 | なし 8.1万円 | 1K 22.14m2 | 築9年 | 京急本線 神奈川新町駅 徒歩4分 JR京浜東北線 東神奈川駅 徒歩13分 東急東横線 東白楽駅 徒歩22分 神奈川県横浜市神奈川区新町 | 詳細を見る | |
マンション グリフィン横浜・馬車道駅前(1K/12階) | |||||||
![]() | 9万円 8,000円 | なし 9万円 | 1K 20.01m2 | 築22年 | 横浜高速鉄道MM線 馬車道駅 徒歩1分 神奈川県横浜市中区本町4丁目 | 詳細を見る | |
マンション グリーングレイス(2LDK/3階) | |||||||
![]() | 13.2万円 5,000円 | 13.2万円 26.4万円 | 2LDK 70.33m2 | 新築 | 相鉄本線 三ツ境駅 徒歩13分 相鉄本線 瀬谷駅 徒歩15分 神奈川県横浜市瀬谷区瀬谷 | 詳細を見る | |
マンション クレヴィスタ阪東橋(1K/8階) | |||||||
![]() | 8.55万円 1.5万円 | なし なし | 1K 25.51m2 | 築1年 | 横浜市ブルーライン 阪東橋駅 徒歩2分 神奈川県横浜市南区高根町3丁目 | 詳細を見る | |







/105x80-f1-q70-wp1)

