賃貸マンション
レジディア島津山の賃貸物件情報(1K/11階)
| 家賃 | 管理費等 | 敷金 | 礼金 | 間取り | 専有面積 |
|---|---|---|---|---|---|
| 12.7万円 | 1.5万円 | なし | なし | 1K | 22.83m2 |
入居決定でお祝い金最大100,000円
- 保証金
- -
- 償却・敷引
- -
- 築年数
- 築22年
- 所在階
- 11階
- 向き
- 南東
Point
宅配ボックスは通常カードキーや暗証番号を知っている方しか受け取ることができないので、荷物の盗難の心配がいりません。新生活をご検討の方に、素敵な暮らしを当社のスタッフが全力でサポート致します。
提供:NAVI HOME(株)恵比寿店(SUUMO経由)

詳細情報 レジディア島津山
物件紹介
レジディア島津山は都営浅草線高輪台駅から徒歩5分にあり、駅近で通勤通学に便利なマンションです。
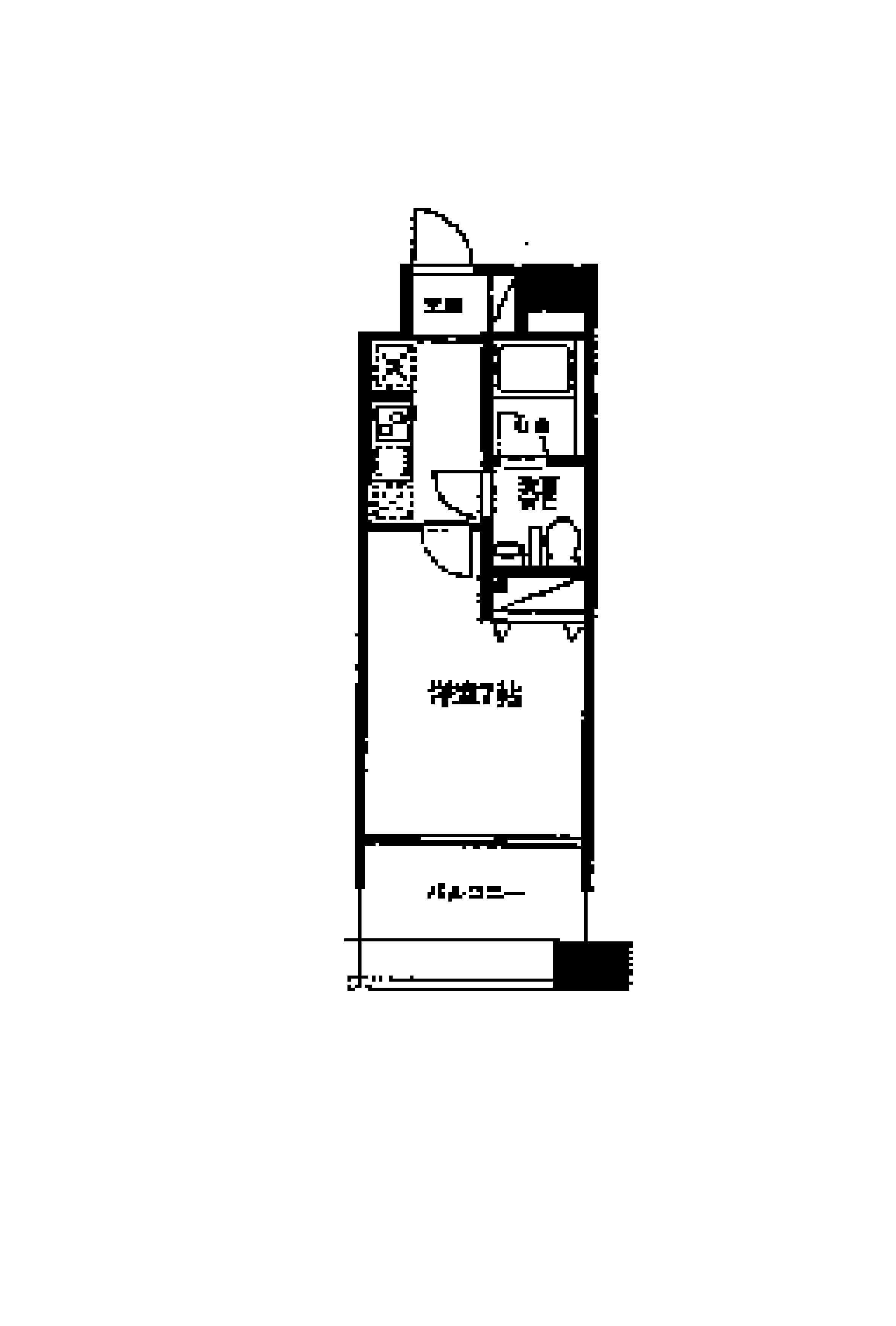
このお部屋は2階以上に位置しているので、通行人や周囲の住人からの視線が気になりにくく、防犯面でも安心。建物のエントランスはオートロックがついており、インターホンにはTVモニタもついているため、相手の顔を確認してから来客対応することができます。
人気の南向きのお部屋。また、フローリングなのでお掃除もラクラク。キッチンはシステムキッチン仕様になっていますので、お料理好きの方にもぴったり。バス・トイレは別なので、のんびりお風呂タイムも楽しめるでしょう。また、雨の日でも浴室乾燥機を使えば、お洗濯も問題ありません。
通信設備面ではBSアンテナ・CSアンテナがあり、CATVにも対応しているので、おうち時間も充実するでしょう(別途工事、契約料が必要な場合あり)。
建物にはエレベーターがついているので、重い荷物があっても安心。共用部には宅配ボックスが設定されているので、不在の時にも荷物を受け取ることができます。
このお部屋は2階以上に位置しているので、通行人や周囲の住人からの視線が気になりにくく、防犯面でも安心。建物のエントランスはオートロックがついており、インターホンにはTVモニタもついているため、相手の顔を確認してから来客対応することができます。
人気の南向きのお部屋。また、フローリングなのでお掃除もラクラク。キッチンはシステムキッチン仕様になっていますので、お料理好きの方にもぴったり。バス・トイレは別なので、のんびりお風呂タイムも楽しめるでしょう。また、雨の日でも浴室乾燥機を使えば、お洗濯も問題ありません。
通信設備面ではBSアンテナ・CSアンテナがあり、CATVにも対応しているので、おうち時間も充実するでしょう(別途工事、契約料が必要な場合あり)。
建物にはエレベーターがついているので、重い荷物があっても安心。共用部には宅配ボックスが設定されているので、不在の時にも荷物を受け取ることができます。
お金・契約の情報
※「-」と表示されているものは、実際は料金が発生するものもございます。詳細はお問い合わせください。
| 家賃 | 12.7万円 | 管理費・共益費 | 1.5万円 |
|---|---|---|---|
| 敷金 | なし | 礼金 | なし |
| 入居決定でお祝い金最大100,000円 | |||
| 保証金 | - | 償却・敷引 | - |
| 住宅保険料 | - | 更新料 | - |
| 保証会社利用 | 必須 | 保証会社名 | - |
| 保証会社費用 | - | 保証会社備考 | 保証会社利用必 【IRS】初回:賃料等の40% 月額:1000円 年間:10000円 |
| 契約形態 | - | 契約期間 | - |
| 入居・引渡期間 | 相談 | 現況 | - |
| 契約備考 | ※短期解約違約金:1年未満1カ月※敷金0円:個人契約限定 合計3.3万円(内訳:入居者限定会員サービス会費:2年1.1万円鍵交換代2.2万円) 更新料 新賃料1.00ヶ月分 インターネット使用料 月額1650円 1K 普通借家2年 損保【2.15万円2年】 バストイレ別、バルコニー、エアコン、ガスコンロ対応、クロゼット、フローリング、TVインターホン、浴室乾燥機、オートロック、室内洗濯置、シューズボックス、システムキッチン、温水洗浄便座、エレベーター、洗面所独立、洗面化粧台、2口コンロ、宅配ボックス、CATV、礼金不要、BS・CS、敷金不要、防犯カメラ、全居室収納、全居室フローリング、2沿線利用可、CS、眺望良好、24時間換気システム、耐震構造、2駅利用可、3駅以上利用可、3沿線以上利用可、駅徒歩5分以内、駅徒歩10分以内、高層階、敷地内ごみ置き場、東南向き、都市ガス、洗面所にドア、玄関収納、BS、年度内入居可、敷金・礼金不要 | ||
部屋の情報
| 間取り | 1K | 専有面積 | 22.83m2 |
|---|---|---|---|
| 所在階 / 向き | 11階 / 南東 | バルコニー面積 | - |
| 水道 / ガス | - | ||
| 設備 | バス・トイレ別、2階以上、オートロック、テレビドアホン、宅配ボックス、浴室乾燥機、システムキッチン、エアコン、エレベーター、温水洗浄便座、南向き、バルコニー、フローリング、洗髪洗面化粧台、2口コンロ、コンロ:ガス、CATV、CSアンテナ、BSアンテナ、洗濯機:室内 | ||
| 当社物件ID | 2092368 | ||
建物の情報
| 建物名 | レジディア島津山 | ||
|---|---|---|---|
| 所在地 | 東京都品川区東五反田 | ||
| 交通 | 都営浅草線 高輪台駅 徒歩5分 JR山手線 五反田駅 徒歩7分 東急池上線 大崎広小路駅 徒歩14分 | ||
| 階数 | 13階建 | 総戸数 | - |
| 築年月 | 2005年01月 / 築22年 | エレベーター | あり |
| 駐車場 | なし | バイク置き場 | - |
| 駐輪場 | - | 管理人/管理会社 | - |
| 周辺環境 | その他 ファミリーマート 東五反田四丁目店(コンビニ)まで217m その他 ナチュラルローソンクオール薬局高輪台駅前店(ドラッグストア)まで363m その他 マルエツ プチ 五反田店(スーパー)まで552m その他 アトレ五反田2(ショッピングセンター)まで524m その他 マクドナルド アトレ五反田店(飲食店)まで577m その他 ドミノ・ピザ 高輪店(飲食店)まで767m | ||
| 建物種別 | マンション | 建物構造 | RC(鉄筋コンクリート) |
この部屋の取扱い不動産会社
| 会社名 | NAVI HOME(株)目黒店(SUUMO経由) | ||
|---|---|---|---|
| 所在地 | 東京都品川区上大崎2-13-35 ニューフジビル202 | 交通 | - |
| 営業時間 | 09:00~21:00 | 定休日 | 無 |
| 免許番号 | 東京都知事107196 | 取引態様 | 仲介 |
| 不動産会社管理番号 | 100483906111 | 当社管理番号 | 89 |
| 所属団体 | (公社)東京都宅地建物取引業協会会員 | ||
| 公正取引協議会 | (公社)首都圏不動産公正取引協議会加盟 | ||
| 取扱い物件情報 | 物件詳細へ | ||
※各種情報と現状に差異がある場合は、現状優先となります。問い合わせをすることで、より詳しい条件、情報を確認する事ができます。
提供:NAVI HOME(株)目黒店(SUUMO経由)
この物件が気になったら掲載期限まであと10日
レジディア島津山に条件(家賃・エリア)が近い物件一覧
| 写真 | 家賃 管理費等 | 敷金 礼金 | 間取り 専有面積 | 築年数 | 最寄り駅 所在地 | キープ | 詳細 |
|---|---|---|---|---|---|---|---|
マンション グランディール(1K/4階) | |||||||
![]() | 9.6万円 5,000円 | 9.6万円 なし | 1K 25.02m2 | 築22年 | 京浜急行電鉄本線 大森町駅 徒歩5分 京浜急行電鉄本線 梅屋敷駅(東京) 徒歩9分 東京都大田区大森中1丁目 | 詳細を見る | |
アパート SEED SAVE PETIRASU BREEZE(1LDK/1階) | |||||||
![]() | 10.4万円 1万円 | 20.8万円 10.4万円 | 1LDK 32.95m2 | 新築 | 東京モノレール羽田 昭和島駅 徒歩12分 京浜急行電鉄本線 大森町駅 徒歩18分 東京都大田区大森東5丁目 | 詳細を見る | |
マンション クレヴィスタ亀戸III(1K/4階) | |||||||
![]() | 12.5万円 1.1万円 | なし 12.5万円 | 1K 25.6m2 | 築7年 | 東武鉄道亀戸線 亀戸水神駅 徒歩2分 総武・中央緩行線 亀戸駅 徒歩9分 東武鉄道亀戸線 東あずま駅 徒歩12分 東京都江東区亀戸8丁目 | 詳細を見る | |
マンション エクセルⅤ(1K/4階) | |||||||
![]() | 8.4万円 2,000円 | 8.4万円 なし | 1K 22.62m2 | 築27年 | 東急池上線 千鳥町駅 徒歩3分 東急多摩川線 下丸子駅 徒歩6分 東京都大田区千鳥3丁目 | 詳細を見る | |
マンション エスティメゾン豊洲レジデンスC棟(1LDK/4階) | |||||||
![]() | 17万円 1万円 | 17万円 17万円 | 1LDK 38.62m2 | 築19年 | 東京メトロ有楽町線 豊洲駅 徒歩5分 JR京葉線 越中島駅 徒歩17分 東京メトロ東西線 門前仲町駅 徒歩25分 東京都江東区豊洲 | 詳細を見る | |
マンション メゾン大沢(1DK/5階) | |||||||
![]() | 8.5万円 なし | 8.5万円 8.5万円 | 1DK 28m2 | 築47年 | 東京地下鉄東西線 門前仲町駅 徒歩11分 東京地下鉄東西線 木場駅 徒歩11分 東京地下鉄半蔵門線 清澄白河駅 徒歩14分 東京都江東区冬木 | 詳細を見る | |
マンション グローバルK(ワンルーム/7階) | |||||||
![]() | 9.9万円 1万円 | なし なし | ワンルーム 20.94m2 | 築25年 | 都営新宿線 大島駅(東京) 徒歩8分 JR総武線 亀戸駅 徒歩11分 東京都江東区亀戸 | 詳細を見る | |
マンション SEED JUST B-BASE COAST(1LDK/3階) | |||||||
![]() | 9.9万円 1.5万円 | 9.9万円 9.9万円 | 1LDK 25.41m2 | 築1年 | 東京モノレール羽田 昭和島駅 徒歩11分 京浜急行電鉄本線 梅屋敷駅(東京) 徒歩19分 東京都大田区大森南4丁目 | 詳細を見る | |








