賃貸アパート
LA FITE KYOTO OIKEウエストの賃貸物件情報(1K/4階)
| 家賃 | 管理費等 | 敷金 | 礼金 | 間取り | 専有面積 |
|---|---|---|---|---|---|
| 6.7万円 | 8,000円 | 6.7万円 | 6.7万円 | 1K | 25.3m2 |
入居決定でお祝い金最大100,000円
- 保証金
- -
- 償却・敷引
- -
- 築年数
- 新築
- 所在階
- 4階
- 向き
- 北
Point
セキュリティ面は、TVインターホン・オートロックなどを設置しているので安全面でも優れております。
提供:ハウスコム株式会社 西院店

詳細情報 LA FITE KYOTO OIKEウエスト
物件紹介
LA FITE KYOTO OIKEウエストは京福嵐山本線山ノ内駅から徒歩4分にあり、駅近で通勤通学に便利なアパートです。
このお部屋は2階以上に位置しているので、通行人や周囲の住人からの視線が気になりにくく、防犯面でも安心。建物のエントランスはオートロックがついており、インターホンにはTVモニタもついているため、相手の顔を確認してから来客対応することができます。
フローリングのお部屋なのでお掃除もラクラク。キッチンはシステムキッチン仕様になっていますので、お料理好きの方にもぴったり。バス・トイレは別なので、のんびりお風呂タイムも楽しめるでしょう。また、雨の日でも浴室乾燥機を使えば、お洗濯も問題ありません。
通信設備面では、インターネットが無料で使えるので、月々の出費を抑えられるのも魅力です。また、BSアンテナもありますので、おうち時間も充実するでしょう(別途工事、BSの契約料等が必要な場合あり)。
建物にはエレベーターがついているので、重い荷物があっても安心。共用部には宅配ボックスが設定されているので、不在の時にも荷物を受け取ることができます。
コンビニまで徒歩1分の場所にあり、日用品や食料品のお買い物にも便利です。
このお部屋は2階以上に位置しているので、通行人や周囲の住人からの視線が気になりにくく、防犯面でも安心。建物のエントランスはオートロックがついており、インターホンにはTVモニタもついているため、相手の顔を確認してから来客対応することができます。
フローリングのお部屋なのでお掃除もラクラク。キッチンはシステムキッチン仕様になっていますので、お料理好きの方にもぴったり。バス・トイレは別なので、のんびりお風呂タイムも楽しめるでしょう。また、雨の日でも浴室乾燥機を使えば、お洗濯も問題ありません。
通信設備面では、インターネットが無料で使えるので、月々の出費を抑えられるのも魅力です。また、BSアンテナもありますので、おうち時間も充実するでしょう(別途工事、BSの契約料等が必要な場合あり)。
建物にはエレベーターがついているので、重い荷物があっても安心。共用部には宅配ボックスが設定されているので、不在の時にも荷物を受け取ることができます。
コンビニまで徒歩1分の場所にあり、日用品や食料品のお買い物にも便利です。
お金・契約の情報
※「-」と表示されているものは、実際は料金が発生するものもございます。詳細はお問い合わせください。
| 家賃 | 6.7万円 | 管理費・共益費 | 8,000円 |
|---|---|---|---|
| 敷金 | 6.7万円 | 礼金 | 6.7万円 |
| 入居決定でお祝い金最大100,000円 | |||
| 保証金 | - | 償却・敷引 | - |
| 住宅保険料 | 1円 | 更新料 | - |
| その他費用 | 24時間サポート:1.65万円 | ||
| 保証会社利用 | 必須 | 保証会社名 | - |
| 保証会社費用 | - | 保証会社備考 | 加入要 |
| 契約形態 | - | 契約期間 | 2年 |
| 入居・引渡期間 | 2026年04月 | 現況 | 未完成 |
| 契約備考 | 水道代込み。更新事務手数料新賃料20%(税別)。退去時27500円(税込) その他設備/条件:室内洗濯機置き場、独立洗面台、防犯カメラ、クローゼット、シューズボックス | ||
部屋の情報
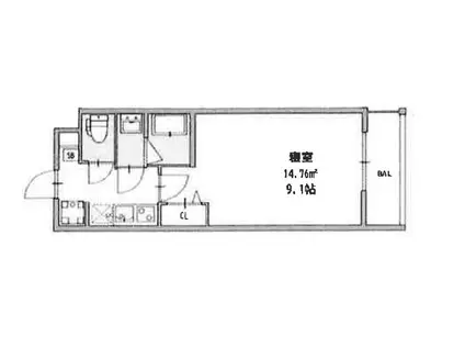
| 間取り | 1K | 専有面積 | 25.3m2 |
|---|---|---|---|
| 間取り詳細 | 洋室(9.1帖) | ||
| 所在階 / 向き | 4階 / 北 | バルコニー面積 | - |
| 水道 / ガス | - | ||
| 設備 | バス・トイレ別、オートロック、テレビドアホン、宅配ボックス、浴室乾燥機、システムキッチン、エアコン、エレベーター、温水洗浄便座、バルコニー、フローリング、洗髪洗面化粧台、2口コンロ、コンロ:IH、BSアンテナ、インターネット使用料無料、シャワー、給湯 | ||
| 当社物件ID | 160018399 | ||
建物の情報
| 建物名 | LA FITE KYOTO OIKEウエスト | ||
|---|---|---|---|
| 所在地 | 京都府京都市右京区山ノ内宮脇町 | ||
| 交通 | 京福嵐山本線 山ノ内駅(京都) 徒歩4分 京都市東西線 太秦天神川駅 徒歩12分 | ||
| 階数 | 4階建 | 総戸数 | - |
| 築年月 | 2026年03月 / 新築 | エレベーター | あり |
| 駐車場 | - | バイク置き場 | あり |
| 駐輪場 | あり | 管理人/管理会社 | - |
| 周辺環境 | コンビニ 徒歩1分(59m) 販売店 徒歩5分(329m) 病院 徒歩7分(540m) その他 ドラッグストア その他 公園 その他 銀行 その他 * | ||
| 建物種別 | アパート | 建物構造 | 鉄骨造 |
この部屋の取扱い不動産会社
| 会社名 | ハウスコム株式会社 太秦天神川店 | ||
|---|---|---|---|
| 所在地 | 京都府京都市右京区12サンサ右京1階 | 交通 | - |
| 営業時間 | 10:00~18:00 | 定休日 | 水曜定休 |
| 免許番号 | 国土交通大臣(5)第6094号 | 取引態様 | 仲介 |
| 不動産会社管理番号 | HC2-5279998-412-0177 | 当社管理番号 | 468 |
| 所属団体 | 一般社団法人全国住宅産業協会/公益社団法人首都圏不動産公正取引協議会/公益財団法人日本賃貸住宅管理協会、 | ||
| 取扱い物件情報 | 物件詳細へ | ||
※各種情報と現状に差異がある場合は、現状優先となります。問い合わせをすることで、より詳しい条件、情報を確認する事ができます。
提供:ハウスコム株式会社 太秦天神川店
この物件が気になったら掲載期限まであと4日
LA FITE KYOTO OIKEウエストの空き部屋一覧
全部で27の空き部屋があります。
LA FITE KYOTO OIKEウエストに条件(家賃・エリア)が近い物件一覧
| 写真 | 家賃 管理費等 | 敷金 礼金 | 間取り 専有面積 | 築年数 | 最寄り駅 所在地 | キープ | 詳細 |
|---|---|---|---|---|---|---|---|
マンション ベラジオ雅び京都西院(1DK/7階) | |||||||
![]() | 8.41万円 9,330円 | なし 9.343万円 | 1DK 30.57m2 | 新築 | 阪急電鉄京都線 西京極駅 徒歩14分 阪急電鉄京都線 西院駅(阪急) 徒歩15分 京都市東西線 太秦天神川駅 徒歩26分 京都府京都市右京区西院月双町 | 詳細を見る | |
アパート 奈良線 木幡駅(JR) 徒歩15分 築8年(1LDK/2階) | |||||||
![]() | 7.2万円 3,500円 | なし 7.2万円 | 1LDK 52.89m2 | 築8年 | 奈良線 木幡駅(JR) 徒歩15分 京阪電気鉄道宇治線 木幡駅(京阪) 徒歩18分 京都府宇治市木幡南山 | 詳細を見る | |
アパート 京福嵐山本線 山ノ内駅(京都) 徒歩4分 築17年(1K/2階) | |||||||
![]() | 6万円 3,000円 | 2万円 10万円 | 1K 27m2 | 築17年 | 京福嵐山本線 山ノ内駅(京都) 徒歩4分 京都市東西線 太秦天神川駅 徒歩8分 京都府京都市右京区山ノ内西八反田町 | 詳細を見る | |
アパート ローレルコート壱番館(1K/2階) | |||||||
![]() | 4.5万円 2,000円 | 5万円 5万円 | 1K 21m2 | 築31年 | 阪急京都線 長岡天神駅 徒歩8分 JR東海道本線 長岡京駅 徒歩14分 阪急京都線 西山天王山駅 徒歩14分 京都府長岡京市天神 | 詳細を見る | |
マンション 山陰本線 花園駅(京都) 徒歩10分 築1年(1DK/1階) | |||||||
![]() | 9.05万円 1.1万円 | なし 9.05万円 | 1DK 25.5m2 | 築1年 | 山陰本線 花園駅(京都) 徒歩10分 山陰本線 円町駅 徒歩11分 京都府京都市右京区花園艮北町 | 詳細を見る | |
アパート 京福北野線 御室仁和寺駅 徒歩4分 築64年(4DK/1階) | |||||||
![]() | 8万円 なし | 16万円 なし | 4DK 56.86m2 | 築64年 | 京福北野線 御室仁和寺駅 徒歩4分 京福北野線 妙心寺駅 徒歩7分 京都府京都市右京区御室岡ノ裾町 | 詳細を見る | |
マンション 山陰本線 太秦駅(JR) 徒歩9分 築48年(3DK/6階) | |||||||
![]() | 7.2万円 6,000円 | なし なし | 3DK 49m2 | 築48年 | 山陰本線 太秦駅(JR) 徒歩9分 山陰本線 嵯峨嵐山駅 徒歩15分 京都府京都市右京区嵯峨広沢南下馬野町 | 詳細を見る | |








