賃貸マンション
アイティーオー南福岡の賃貸物件情報(1DK/1階)
| 家賃 | 管理費等 | 敷金 | 礼金 | 間取り | 専有面積 |
|---|---|---|---|---|---|
| 5.8万円 | 2,000円 | なし | 5.8万円 | 1DK | 27.3m2 |
入居決定でお祝い金最大100,000円
Point
化粧品やスタイリング剤などをまとめて出し入れして、サッと身支度を整えられる独立洗面台が付いております。オートロック機能があるので来訪者は基本的に玄関先まで来ることがなく安全面に優れております。
提供:(株)プラン・ドゥ・シー博多店(SUUMO経由)

詳細情報 アイティーオー南福岡
物件紹介
アイティーオー南福岡はJR鹿児島本線南福岡駅から徒歩1分にあり、駅近で通勤通学に便利なマンションです。
建物のエントランスはオートロックがついており、防犯性が高くなっています。
人気の南向きのお部屋。また、フローリングなのでお掃除もラクラク。バス・トイレ別の仕様で、のんびりお風呂タイムも楽しめます。
通信設備面では、インターネットが無料で使えるので、月々の出費を抑えられるのも魅力です。また、CATVにも対応しているので、おうち時間も充実するでしょう(別途工事、CATVの契約料等が必要な場合あり)。
建物のエントランスはオートロックがついており、防犯性が高くなっています。
人気の南向きのお部屋。また、フローリングなのでお掃除もラクラク。バス・トイレ別の仕様で、のんびりお風呂タイムも楽しめます。
通信設備面では、インターネットが無料で使えるので、月々の出費を抑えられるのも魅力です。また、CATVにも対応しているので、おうち時間も充実するでしょう(別途工事、CATVの契約料等が必要な場合あり)。
お金・契約の情報
※「-」と表示されているものは、実際は料金が発生するものもございます。詳細はお問い合わせください。
| 家賃 | 5.8万円 | 管理費・共益費 | 2,000円 |
|---|---|---|---|
| 敷金 | なし | 礼金 | 5.8万円 |
| 入居決定でお祝い金最大100,000円 | |||
| 保証金 | - | 償却・敷引 | - |
| 住宅保険料 | - | 更新料 | - |
| 契約形態 | - | 契約期間 | - |
| 入居・引渡期間 | 相談 | 現況 | - |
| 契約備考 | 合計1.54万円(内訳:鍵交換代1.54万円) 室内清掃費用 27500円 町会費 月額300円 1DK 普通借家1年 損保【1.6万円2年】 バストイレ別、バルコニー、エアコン、ガスコンロ対応、フローリング、オートロック、室内洗濯置、シューズボックス、脱衣所、洗面所独立、洗面化粧台、CATV、敷金不要、2沿線利用可、ネット専用回線、ネット使用料不要、駅徒歩5分以内、敷地内ごみ置き場、南西向き、プロパンガス、洗面所にドア | ||
部屋の情報
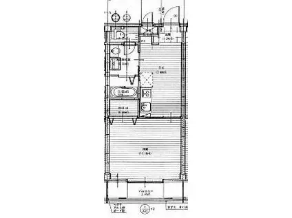
| 間取り | 1DK | 専有面積 | 27.3m2 |
|---|---|---|---|
| 所在階 / 向き | 1階 / 南西 | バルコニー面積 | - |
| 水道 / ガス | - | ||
| 設備 | バス・トイレ別、オートロック、インターネット対応、エアコン、南向き、バルコニー、フローリング、洗髪洗面化粧台、コンロ:ガス、CATV、インターネット使用料無料、洗濯機:室内 | ||
| 当社物件ID | 1962530 | ||
建物の情報
| 建物名 | アイティーオー南福岡 | ||
|---|---|---|---|
| 所在地 | 福岡県福岡市博多区元町 | ||
| 交通 | JR鹿児島本線 南福岡駅 徒歩1分 西鉄天神大牟田線 雑餉隈駅 徒歩10分 | ||
| 階数 | 3階建 | 総戸数 | - |
| 築年月 | 2010年03月 / 築16年 | エレベーター | - |
| 駐車場 | なし | バイク置き場 | - |
| 駐輪場 | - | 管理人/管理会社 | - |
| 周辺環境 | その他 ドラッグセガミ 南福岡駅店(ドラッグストア)まで121m その他 ファミリーマート 南福岡元町2丁目店(コンビニ)まで147m その他 ココカラファイン南福岡駅店(ドラッグストア)まで152m その他 Maxvalu Express(マックスバリュ エクスプレス(スーパー)まで172m その他 博多南郵便局(郵便局)まで396m その他 セブンイレブン 博多相生町2丁目店(コンビニ)まで382m | ||
| 建物種別 | マンション | 建物構造 | 鉄骨造 |
この部屋の取扱い不動産会社
| 会社名 | (株)プラン・ドゥ・シー博多店(SUUMO経由) | ||
|---|---|---|---|
| 所在地 | 福岡県福岡市博多区博多駅前2-13-13-401 | 交通 | - |
| 営業時間 | 10時00分~19時00分 | 定休日 | - |
| 免許番号 | 国土交通大臣9550 | 取引態様 | 仲介 |
| 不動産会社管理番号 | 100487073931 | 当社管理番号 | 89 |
| 所属団体 | (公社)福岡県宅地建物取引業協会会員 | ||
| 公正取引協議会 | (一社)九州不動産公正取引協議会加盟 | ||
| 取扱い物件情報 | 物件詳細へ | ||
※各種情報と現状に差異がある場合は、現状優先となります。問い合わせをすることで、より詳しい条件、情報を確認する事ができます。
提供:(株)プラン・ドゥ・シー博多店(SUUMO経由)
この物件が気になったら掲載期限まであと11日
アイティーオー南福岡に条件(家賃・エリア)が近い物件一覧
| 写真 | 家賃 管理費等 | 敷金 礼金 | 間取り 専有面積 | 築年数 | 最寄り駅 所在地 | キープ | 詳細 |
|---|---|---|---|---|---|---|---|
マンション レジディア博多2(1K/5階) | |||||||
| 7.6万円 5,300円 | 7.6万円 7.6万円 | 1K 24.4m2 | 築19年 | 福岡市空港線 東比恵駅 徒歩8分 福岡市空港線 博多駅 徒歩10分 福岡市空港線 祇園駅(福岡) 徒歩20分 福岡県福岡市博多区博多駅東3丁目 | 詳細を見る | ||
アパート カルテットコーポ(2DK/2階) | |||||||
![]() | 4.5万円 なし | なし 4.5万円 | 2DK 34m2 | 築39年 | 博多南線 博多南駅 徒歩17分 西鉄天神大牟田線 井尻駅 徒歩41分 鹿児島本線 南福岡駅 徒歩44分 福岡県春日市泉4丁目 | 詳細を見る | |
マンション パープルハイツ大野(3LDK/2階) | |||||||
![]() | 6.2万円 3,000円 | なし なし | 3LDK 59.08m2 | 築37年 | 鹿児島本線 水城駅 徒歩24分 西鉄天神大牟田線 下大利駅 徒歩26分 鹿児島本線 大野城駅 徒歩27分 福岡県大野城市紫台 | 詳細を見る | |
アパート 博多南線 博多南駅 徒歩24分 築23年(2LDK/2階) | |||||||
![]() | 6.1万円 なし | なし 6.1万円 | 2LDK 53.5m2 | 築23年 | 博多南線 博多南駅 徒歩24分 鹿児島本線 南福岡駅 徒歩29分 西鉄天神大牟田線 春日原駅 徒歩36分 福岡県春日市大谷3丁目 | 詳細を見る | |
アパート グレイス ケイ(1LDK/2階) | |||||||
![]() | 7.75万円 3,500円 | なし 7.75万円 | 1LDK 48.26m2 | 新築 | 西鉄天神大牟田線 雑餉隈駅 徒歩16分 西鉄天神大牟田線 桜並木駅 徒歩17分 西鉄天神大牟田線 井尻駅 徒歩38分 福岡県大野城市仲畑4丁目 | 詳細を見る | |
アパート フラテッリ S(1LDK/3階) | |||||||
![]() | 7.4万円 2,800円 | なし 7.4万円 | 1LDK 42.2m2 | 築1年 | 鹿児島本線 笹原駅 徒歩25分 西鉄天神大牟田線 井尻駅 徒歩31分 鹿児島本線 南福岡駅 徒歩35分 福岡県大野城市仲畑1丁目 | 詳細を見る | |
アパート グレイス エム(1LDK/2階) | |||||||
![]() | 7.85万円 3,000円 | なし 7.85万円 | 1LDK 37.63m2 | 新築 | 西鉄天神大牟田線 桜並木駅 徒歩7分 鹿児島本線 南福岡駅 徒歩16分 西鉄天神大牟田線 春日原駅 徒歩16分 福岡県大野城市山田2丁目 | 詳細を見る | |
アパート ファンファーレB(2LDK/1階) | |||||||
![]() | 6.5万円 4,000円 | なし 6.5万円 | 2LDK 62m2 | 築30年 | 鹿児島本線 大野城駅 徒歩22分 西鉄天神大牟田線 白木原駅 徒歩27分 鹿児島本線 春日駅(福岡) 徒歩28分 福岡県春日市 | 詳細を見る | |








