賃貸アパート
アンプルールクラージュ ヴィーヴルの賃貸物件情報(1DK/2階)
| 家賃 | 管理費等 | 敷金 | 礼金 | 間取り | 専有面積 |
|---|---|---|---|---|---|
| 5.4万円 | 3,000円 | なし | 5.4万円 | 1DK | 32m2 |
入居決定でお祝い金最大100,000円
- 保証金
- -
- 償却・敷引
- -
- 築年数
- 築19年
- 所在階
- 2階
- 向き
- 南
Point
まずはお問い合わせ!
不動産会社は街のプロ、あなたに合った物件がきっと見つかります。
提供:go-life合同会社(SUUMO経由)

詳細情報 アンプルールクラージュ ヴィーヴル
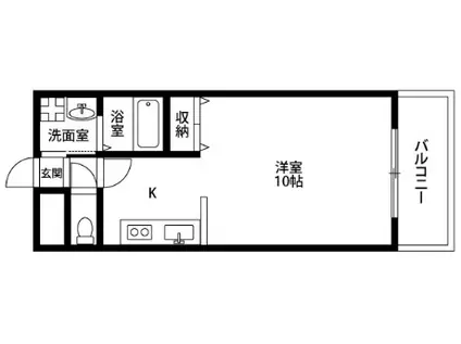
物件紹介
アンプルールクラージュ ヴィーヴルは地下鉄谷町線長原駅から徒歩14分にあるアパートです。
このお部屋は2階以上に位置しているので、通行人や周囲の住人からの視線が気になりにくく、防犯面でも安心。インターホンにはTVモニタもついているため、相手の顔を確認してから来客対応することができます。
人気の南向きのお部屋。また、フローリングなのでお掃除もラクラク。キッチンはシステムキッチン仕様になっていますので、お料理好きの方にもぴったり。また、バス・トイレは別で、のんびりお風呂タイムも楽しめるでしょう。
通信設備面では、インターネット接続が可能です。また、BSアンテナ・CSアンテナがありCATVにも対応しているので、おうち時間も充実するでしょう(別途工事、契約料が必要な場合あり)。
このお部屋は2階以上に位置しているので、通行人や周囲の住人からの視線が気になりにくく、防犯面でも安心。インターホンにはTVモニタもついているため、相手の顔を確認してから来客対応することができます。
人気の南向きのお部屋。また、フローリングなのでお掃除もラクラク。キッチンはシステムキッチン仕様になっていますので、お料理好きの方にもぴったり。また、バス・トイレは別で、のんびりお風呂タイムも楽しめるでしょう。
通信設備面では、インターネット接続が可能です。また、BSアンテナ・CSアンテナがありCATVにも対応しているので、おうち時間も充実するでしょう(別途工事、契約料が必要な場合あり)。
お金・契約の情報
※「-」と表示されているものは、実際は料金が発生するものもございます。詳細はお問い合わせください。
| 家賃 | 5.4万円 | 管理費・共益費 | 3,000円 |
|---|---|---|---|
| 敷金 | なし | 礼金 | 5.4万円 |
| 入居決定でお祝い金最大100,000円 | |||
| 保証金 | - | 償却・敷引 | - |
| 住宅保険料 | - | 更新料 | - |
| 契約形態 | - | 契約期間 | - |
| 入居・引渡期間 | 即時 | 現況 | - |
| 入居可能条件 | 事務所可 | ||
| 契約備考 | 万代長吉店まで191m/ローソン長吉出戸三丁目店まで417m/巡回管理 1DK 単身者可/事務所利用相談/ルームシェア相談 損保【要】 バストイレ別、バルコニー、エアコン、ガスコンロ対応、クロゼット、フローリング、TVインターホン、室内洗濯置、陽当り良好、シューズボックス、システムキッチン、南向き、温水洗浄便座、洗面所独立、2口コンロ、駐輪場、CATV、光ファイバー、即入居可、BS・CS、仲介手数料不要、CATVインターネット、バイク置場、全居室フローリング、2沿線利用可、CS、ネット専用回線、駅まで平坦、眺望良好、事務所相談、ルームシェア相談、ISDN対応、2駅利用可、3駅以上利用可、敷地内ごみ置き場、都市ガス、BS、高速ネット対応、LAN、初期費用カード決済可、通風良好 | ||
部屋の情報
| 間取り | 1DK | 専有面積 | 32m2 |
|---|---|---|---|
| 所在階 / 向き | 2階 / 南 | バルコニー面積 | - |
| 水道 / ガス | - | ||
| 設備 | バス・トイレ別、2階以上、テレビドアホン、インターネット対応、システムキッチン、エアコン、温水洗浄便座、南向き、バルコニー、フローリング、洗髪洗面化粧台、2口コンロ、コンロ:ガス、CATV、CSアンテナ、BSアンテナ、洗濯機:室内 | ||
| 当社物件ID | 159372661 | ||
建物の情報
| 建物名 | アンプルールクラージュ ヴィーヴル | ||
|---|---|---|---|
| 所在地 | 大阪府大阪市平野区長吉出戸 | ||
| 交通 | 地下鉄谷町線 長原駅(大阪) 徒歩14分 地下鉄谷町線 出戸駅 徒歩15分 JR関西本線 久宝寺駅 徒歩20分 | ||
| 階数 | 2階建 | 総戸数 | - |
| 築年月 | 2007年05月 / 築19年 | エレベーター | - |
| 駐車場 | 空有 11960円 | バイク置き場 | あり |
| 駐輪場 | あり | 管理人/管理会社 | - |
| 周辺環境 | その他 万代長吉店(スーパー)まで191m その他 ローソン長吉出戸三丁目店(コンビニ)まで417m その他 ドラッグストアサーバ平野長吉出戸店(ドラッグストア)まで234m その他 医療法人豊旺会共立病院(病院)まで194m その他 平野出戸郵便局(郵便局)まで222m その他 近畿大阪銀行長吉支店(銀行)まで901m | ||
| 建物種別 | アパート | 建物構造 | 軽量鉄骨造 |
この部屋の取扱い不動産会社
| 会社名 | go-life合同会社(SUUMO経由) | ||
|---|---|---|---|
| 所在地 | 大阪府大阪市平野区加美東4-19-22 2階 | 交通 | - |
| 営業時間 | 午前9:00~午後21:00 | 定休日 | 無 |
| 免許番号 | 大阪府知事58211 | 取引態様 | 仲介 |
| 不動産会社管理番号 | 100079430147 | 当社管理番号 | 89 |
| 所属団体 | (公社)全日本不動産協会大阪府本部会員 | ||
| 公正取引協議会 | (公社)近畿地区不動産公正取引協議会加盟 | ||
| 取扱い物件情報 | 物件詳細へ | ||
※各種情報と現状に差異がある場合は、現状優先となります。問い合わせをすることで、より詳しい条件、情報を確認する事ができます。
提供:go-life合同会社(SUUMO経由)
この物件が気になったら掲載期限まであと11日
アンプルールクラージュ ヴィーヴルに条件(家賃・エリア)が近い物件一覧
| 写真 | 家賃 管理費等 | 敷金 礼金 | 間取り 専有面積 | 築年数 | 最寄り駅 所在地 | キープ | 詳細 |
|---|---|---|---|---|---|---|---|
アパート くすのきアパートメントⅡ(1LDK/1階) | |||||||
| 6.85万円 3,300円 | なし 10万円 | 1LDK 36.21m2 | 築9年 | 阪急電鉄千里線 吹田駅(阪急) 徒歩12分 阪急電鉄千里線 下新庄駅 徒歩13分 おおさか東線 南吹田駅 徒歩14分 大阪府吹田市寿町2丁目28-22 | 詳細を見る | ||
マンション S-RESIDENCE堺浜寺BROAD(1K/7階) | |||||||
![]() | 5.8万円 1万円 | なし なし | 1K 21.7m2 | 築1年 | 南海電鉄南海本線 石津川駅 徒歩7分 南海電鉄南海本線 湊駅 徒歩14分 南海電鉄南海本線 諏訪ノ森駅 徒歩19分 大阪府堺市西区浜寺石津町西1丁 | 詳細を見る | |
アパート クラインガルテン B棟(1LDK/1階) | |||||||
| 7.4万円 5,000円 | なし 12万円 | 1LDK 36m2 | 築18年 | 阪急電鉄京都線 正雀駅 徒歩6分 東海道本線 岸辺駅 徒歩11分 大阪市今里筋線 井高野駅 徒歩22分 大阪府吹田市南正雀2丁目24-8 | 詳細を見る | ||
マンション LA DOUCEUR江坂Ⅱ(1K/7階) | |||||||
| 7.8万円 1万円 | 8.8万円 17.6万円 | 1K 25.87m2 | 築6年 | 阪急電鉄千里線 豊津駅(大阪) 徒歩7分 阪急電鉄千里線 関大前駅 徒歩13分 北大阪急行南北線 江坂駅 徒歩14分 大阪府吹田市垂水町3丁目6-34 | 詳細を見る | ||
アパート ALEGRIA古川橋Ⅱ(1LDK/1階) | |||||||
![]() | 7万円 5,000円 | なし 7万円 | 1LDK 29.3m2 | 築1年 | 京阪電気鉄道京阪線 古川橋駅 徒歩7分 京阪電気鉄道京阪線 門真市駅 徒歩13分 大阪市谷町線 大日駅 徒歩20分 大阪府門真市石原町 | 詳細を見る | |
マンション ハイムミーテ大和(1K/3階) | |||||||
![]() | 3.8万円 なし | なし なし | 1K 24m2 | 築34年 | 近鉄大阪線 近鉄八尾駅 徒歩5分 関西本線 八尾駅 徒歩25分 大阪府八尾市北本町2丁目 | 詳細を見る | |




