賃貸マンション
第1マーブルハイツの賃貸物件情報(2LDK/2階)
| 家賃 | 管理費等 | 敷金 | 礼金 | 間取り | 専有面積 |
|---|---|---|---|---|---|
| 6.6万円 | なし | なし | 10万円 | 2LDK | 62m2 |
入居決定でお祝い金最大100,000円
- 保証金
- -
- 償却・敷引
- -
- 築年数
- 築53年
- 所在階
- 2階
- 向き
- 南
Point
当日中の現地案内・現地解散も可能です♪当店は高槻市周辺で取り扱いの出来ない物件はほぼございません。お部屋探しのことなら、ホームメイトFC高槻駅前店「072-676-1011」までぜひお任せください。
提供:ホームメイトFC高槻駅前店ホクセツハウス(株)(SUUMO経由)

詳細情報 第1マーブルハイツ
物件紹介
第1マーブルハイツはJR東海道本線高槻駅から徒歩34分にあるマンションです。
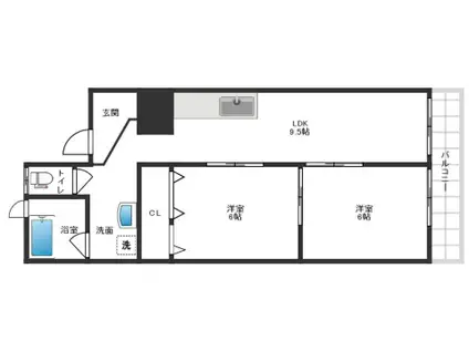
このお部屋は2階以上に位置しているので、通行人や周囲の住人からの視線が気になりにくく、防犯面でも安心です。
人気の南向き・フローリングのお部屋。角部屋でもあるため、周囲の居住者の生活音も気になりにくい場所です。バス・トイレ別の仕様で、のんびりお風呂タイムも楽しめます。
通信設備面では、インターネットが無料で使えるので、月々の出費を抑えられるのも魅力です。また、CATVにも対応しているので、おうち時間も充実するでしょう(別途工事、CATVの契約料等が必要な場合あり)。
ペット飼育の相談ができますので、あなたの大切な家族の一員も快適に暮らせるか、ぜひ確認してみてください。
このお部屋は2階以上に位置しているので、通行人や周囲の住人からの視線が気になりにくく、防犯面でも安心です。
人気の南向き・フローリングのお部屋。角部屋でもあるため、周囲の居住者の生活音も気になりにくい場所です。バス・トイレ別の仕様で、のんびりお風呂タイムも楽しめます。
通信設備面では、インターネットが無料で使えるので、月々の出費を抑えられるのも魅力です。また、CATVにも対応しているので、おうち時間も充実するでしょう(別途工事、CATVの契約料等が必要な場合あり)。
ペット飼育の相談ができますので、あなたの大切な家族の一員も快適に暮らせるか、ぜひ確認してみてください。
お金・契約の情報
※「-」と表示されているものは、実際は料金が発生するものもございます。詳細はお問い合わせください。
| 家賃 | 6.6万円 | 管理費・共益費 | なし |
|---|---|---|---|
| 敷金 | なし | 礼金 | 10万円 |
| 入居決定でお祝い金最大100,000円 | |||
| 保証金 | - | 償却・敷引 | - |
| 住宅保険料 | - | 更新料 | - |
| 契約形態 | - | 契約期間 | - |
| 入居・引渡期間 | 即時 | 現況 | - |
| 入居可能条件 | ペット相談 | ||
| 契約備考 | 2LDK 二人入居可/ペット相談 損保【要】 バストイレ別、バルコニー、クロゼット、フローリング、室内洗濯置、追焚機能浴室、角住戸、温水洗浄便座、洗面所独立、駐輪場、CATV、ペット相談、二人入居相談、バイク置場、2沿線利用可、ネット使用料不要、2駅利用可、3駅以上利用可、都市ガス、IT重説対応物件、初期費用カード決済可 | ||
部屋の情報
| 間取り | 2LDK | 専有面積 | 62m2 |
|---|---|---|---|
| 所在階 / 向き | 2階 / 南 | バルコニー面積 | 1m2 |
| 水道 / ガス | - | ||
| 設備 | バス・トイレ別、2階以上、追い焚き、インターネット対応、温水洗浄便座、南向き、角部屋、バルコニー、フローリング、洗髪洗面化粧台、CATV、インターネット使用料無料、洗濯機:室内 | ||
| 当社物件ID | 14039218 | ||
建物の情報
| 建物名 | 第1マーブルハイツ | ||
|---|---|---|---|
| 所在地 | 大阪府高槻市浦堂 | ||
| 交通 | JR東海道本線 高槻駅 徒歩34分 阪急京都線 高槻市駅 徒歩41分 JR東海道本線 摂津富田駅 徒歩51分 | ||
| 階数 | 4階建 | 総戸数 | 24戸 |
| 築年月 | 1973年10月 / 築53年 | エレベーター | - |
| 駐車場 | 空有 11000円 | バイク置き場 | あり |
| 駐輪場 | あり | 管理人/管理会社 | - |
| 周辺環境 | その他 サボイ清水味道館(スーパー)まで476m | ||
| 建物種別 | マンション | 建物構造 | RC(鉄筋コンクリート) |
この部屋の取扱い不動産会社
| 会社名 | ホームメイトFC高槻駅前店ホクセツハウス(株)(SUUMO経由) | ||
|---|---|---|---|
| 所在地 | 大阪府高槻市城北町2-2-5 | 交通 | - |
| 営業時間 | 9:30~19:00 | 定休日 | 年末年始・盆 |
| 免許番号 | 大阪府知事32108 | 取引態様 | 仲介 |
| 不動産会社管理番号 | 100477825673 | 当社管理番号 | 89 |
| 所属団体 | (公社)全日本不動産協会大阪府本部会員 | ||
| 公正取引協議会 | (公社)近畿地区不動産公正取引協議会加盟 | ||
| 取扱い物件情報 | 物件詳細へ | ||
※各種情報と現状に差異がある場合は、現状優先となります。問い合わせをすることで、より詳しい条件、情報を確認する事ができます。
提供:ホームメイトFC高槻駅前店ホクセツハウス(株)(SUUMO経由)
この物件が気になったら掲載期限まであと10日
第1マーブルハイツに条件(家賃・エリア)が近い物件一覧
| 写真 | 家賃 管理費等 | 敷金 礼金 | 間取り 専有面積 | 築年数 | 最寄り駅 所在地 | キープ | 詳細 |
|---|---|---|---|---|---|---|---|
マンション 三井マンション(1LDK/1階) | |||||||
| 7万円 5,000円 | なし 7万円 | 1LDK 40.7m2 | 築39年 | 大阪モノレール本線 摂津駅 徒歩13分 阪急電鉄京都線 摂津市駅 徒歩13分 阪急電鉄京都線 正雀駅 徒歩17分 大阪府摂津市三島3丁目4-27 | 詳細を見る | ||
アパート 高槻市古曽部共同(1LDK/3階) | |||||||
| 9.2万円 4,500円 | なし 18.4万円 | 1LDK 37.67m2 | 築1年 | 東海道本線 高槻駅 徒歩17分 阪急電鉄京都線 高槻市駅 徒歩18分 東海道本線 摂津富田駅 徒歩54分 大阪府高槻市古曽部町3丁目10-7 | 詳細を見る | ||
マンション 千里丘アベニューアネックス(2DK/2階) | |||||||
![]() | 6.3万円 3,000円 | なし 6.3万円 | 2DK 34m2 | 築39年 | 東海道本線 千里丘駅 徒歩5分 阪急電鉄京都線 摂津市駅 徒歩9分 東海道本線 岸辺駅 徒歩23分 大阪府摂津市千里丘2丁目12-32 | 詳細を見る | |
アパート ソレイユ茨木(1LDK/1階) | |||||||
| 9.55万円 4,500円 | なし 9.55万円 | 1LDK 41.96m2 | 新築 | 東海道本線 JR総持寺駅 徒歩21分 東海道本線 茨木駅 徒歩23分 阪急電鉄京都線 総持寺駅 徒歩31分 大阪府茨木市畑田町15-34 | 詳細を見る | ||
アパート 片町線 藤阪駅 徒歩14分 築25年(1K/1階) | |||||||
![]() | 4.6万円 5,000円 | なし なし | 1K 19.87m2 | 築25年 | 片町線 藤阪駅 徒歩14分 片町線 津田駅 徒歩23分 大阪府枚方市津田東町1丁目 | 詳細を見る | |
マンション ロイヤル千里丘(2LDK/3階) | |||||||
| 7.5万円 5,000円 | なし 15万円 | 2LDK 51m2 | 築36年 | 阪急電鉄京都線 摂津市駅 徒歩4分 東海道本線 千里丘駅 徒歩13分 大阪モノレール本線 摂津駅 徒歩14分 大阪府摂津市庄屋1丁目2-4 | 詳細を見る | ||
アパート プレミアム寝屋川(ワンルーム/2階) | |||||||
![]() | 5.6万円 なし | なし なし | ワンルーム 28.65m2 | 築12年 | 京阪電気鉄道京阪線 寝屋川市駅 徒歩7分 京阪電気鉄道京阪線 萱島駅 徒歩34分 京阪電気鉄道京阪線 香里園駅 徒歩36分 大阪府寝屋川市大利町 | 詳細を見る | |
マンション ピュアハイツ(2K/2階) | |||||||
| 5.3万円 3,000円 | 6万円 6万円 | 2K 38m2 | 築31年 | 阪急電鉄京都線 富田駅(大阪) 徒歩14分 東海道本線 摂津富田駅 徒歩16分 阪急電鉄京都線 総持寺駅 徒歩24分 大阪府高槻市寿町2丁目26-11 | 詳細を見る | ||




