賃貸マンション
麻布台ヒルズレジデンスBの賃貸物件情報(1K/9階)
| 家賃 | 管理費等 | 敷金 | 礼金 | 間取り | 専有面積 |
|---|---|---|---|---|---|
| 44万円 | なし | 88万円 | 44万円 | 1K | 32.68m2 |
入居決定でお祝い金最大100,000円
- 保証金
- -
- 償却・敷引
- -
- 築年数
- 築1年
- 所在階
- 9階
- 向き
- -
Point
オンライン内見・契約実施中!初期費用クレカ決済もご相談ください!お部屋探しはピアホームにお任せください♪
提供:SEG(株)PeerHome新橋店(SUUMO経由)

詳細情報 麻布台ヒルズレジデンスB
物件紹介
麻布台ヒルズレジデンスBは東京メトロ南北線六本木一丁目駅から徒歩1分にあり、駅近で通勤通学に便利なマンションです。
このお部屋は2階以上に位置しているので、通行人や周囲の住人からの視線が気になりにくく、防犯面でも安心。建物のエントランスはオートロックがついており、インターホンにはTVモニタもついているため、相手の顔を確認してから来客対応することができます。
フローリングのお部屋なのでお掃除もラクラク。キッチンはシステムキッチン仕様になっていますので、お料理好きの方にもぴったり。バス・トイレは別なので、のんびりお風呂タイムも楽しめるでしょう。また、雨の日でも浴室乾燥機を使えば、お洗濯も問題ありません。
通信設備面では、インターネット接続が可能です。また、BSアンテナ・CSアンテナもありますので、おうち時間も充実するでしょう(別途工事、契約料が必要な場合あり)。
床暖房があり、冬も足元から暖かく快適に過ごすことができます。建物にはエレベーターがついているので、重い荷物があっても安心。共用部には宅配ボックスが設定されているので、不在の時にも荷物を受け取ることができます。また、ペット飼育の相談ができますので、あなたの大切な家族の一員も快適に暮らせるか、ぜひ確認してみてください。
このお部屋は2階以上に位置しているので、通行人や周囲の住人からの視線が気になりにくく、防犯面でも安心。建物のエントランスはオートロックがついており、インターホンにはTVモニタもついているため、相手の顔を確認してから来客対応することができます。
フローリングのお部屋なのでお掃除もラクラク。キッチンはシステムキッチン仕様になっていますので、お料理好きの方にもぴったり。バス・トイレは別なので、のんびりお風呂タイムも楽しめるでしょう。また、雨の日でも浴室乾燥機を使えば、お洗濯も問題ありません。
通信設備面では、インターネット接続が可能です。また、BSアンテナ・CSアンテナもありますので、おうち時間も充実するでしょう(別途工事、契約料が必要な場合あり)。
床暖房があり、冬も足元から暖かく快適に過ごすことができます。建物にはエレベーターがついているので、重い荷物があっても安心。共用部には宅配ボックスが設定されているので、不在の時にも荷物を受け取ることができます。また、ペット飼育の相談ができますので、あなたの大切な家族の一員も快適に暮らせるか、ぜひ確認してみてください。
お金・契約の情報
※「-」と表示されているものは、実際は料金が発生するものもございます。詳細はお問い合わせください。
| 家賃 | 44万円 | 管理費・共益費 | なし |
|---|---|---|---|
| 敷金 | 88万円 | 礼金 | 44万円 |
| 入居決定でお祝い金最大100,000円 | |||
| 保証金 | - | 償却・敷引 | - |
| 住宅保険料 | - | 更新料 | - |
| 保証会社利用 | 必須 | 保証会社名 | - |
| 保証会社費用 | - | 保証会社備考 | 保証会社利用必 初回保証料:賃料等の50%、(最低保証料2.0万円)次年度以降1.0万円/年 |
| 契約形態 | 定期借家 | 契約期間 | 3年 |
| 入居・引渡期間 | 相談 | 現況 | - |
| 入居可能条件 | ペット相談 | ||
| 契約備考 | 未入居/※再契約相談可。※1年未満解約時、総賃料1ヶ月分の違約金有 駐輪場:880円/月トランクルーム:6600円/月 1K ペット相談 定期借家3年 損保【2万円2年】 バストイレ別、バルコニー、エアコン、クロゼット、フローリング、TVインターホン、浴室乾燥機、オートロック、室内洗濯置、シューズボックス、システムキッチン、追焚機能浴室、温水洗浄便座、エレベーター、2口コンロ、宅配ボックス、光ファイバー、防犯カメラ、ペット相談、IHクッキングヒーター、24時間有人管理、分譲賃貸、オートバス、保証人不要、全居室フローリング、CS、床暖房、食器洗乾燥機、エアコン全室、ディスポーザー、タワー型マンション、都市ガス、BS、初期費用カード決済可 | ||
部屋の情報
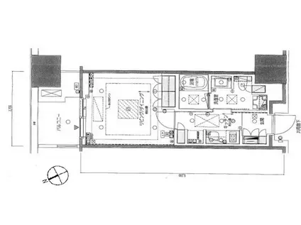
| 間取り | 1K | 専有面積 | 32.68m2 |
|---|---|---|---|
| 所在階 / 向き | 9階 / - | バルコニー面積 | - |
| 水道 / ガス | - | ||
| 設備 | バス・トイレ別、2階以上、オートロック、テレビドアホン、宅配ボックス、浴室乾燥機、追い焚き、インターネット対応、システムキッチン、エアコン、エレベーター、温水洗浄便座、バルコニー、フローリング、タワーマンション、床暖房、2口コンロ、コンロ:IH、CSアンテナ、BSアンテナ、洗濯機:室内 | ||
| 当社物件ID | 159934086 | ||
建物の情報
| 建物名 | 麻布台ヒルズレジデンスB | ||
|---|---|---|---|
| 所在地 | 東京都港区麻布台 | ||
| 交通 | 東京メトロ南北線 六本木一丁目駅 徒歩1分 東京メトロ日比谷線 神谷町駅 徒歩6分 都営大江戸線 麻布十番駅 徒歩10分 | ||
| 階数 | 64階建 | 総戸数 | - |
| 築年月 | 2025年10月 / 築1年 | エレベーター | あり |
| 駐車場 | 空有 71500円 | バイク置き場 | - |
| 駐輪場 | - | 管理人/管理会社 | - |
| 周辺環境 | その他 セブン-イレブン 港区飯倉店(コンビニ)まで407m その他 プレッセプレミアム 東京ミッドタウン店(スーパー)まで933m その他 虎の門病院(病院)まで931m その他 麻布小学校(小学校)まで29m その他 六本木中学校(中学校)まで624m | ||
| 建物種別 | マンション | 建物構造 | RC(鉄筋コンクリート) |
この部屋の取扱い不動産会社
| 会社名 | ピアホーム広尾駅前店(株)PH.C(SUUMO経由) | ||
|---|---|---|---|
| 所在地 | 東京都港区南麻布5-15-11広尾セオハウス2階 | 交通 | - |
| 営業時間 | 9:00~18:30 | 定休日 | 無し |
| 免許番号 | 東京都知事106525 | 取引態様 | 仲介 |
| 不動産会社管理番号 | 100474778214 | 当社管理番号 | 89 |
| 所属団体 | (公社)東京都宅地建物取引業協会会員 | ||
| 公正取引協議会 | (公社)首都圏不動産公正取引協議会加盟 | ||
| 取扱い物件情報 | 物件詳細へ | ||
※各種情報と現状に差異がある場合は、現状優先となります。問い合わせをすることで、より詳しい条件、情報を確認する事ができます。
提供:ピアホーム広尾駅前店(株)PH.C(SUUMO経由)
この物件が気になったら掲載期限まであと11日
麻布台ヒルズレジデンスBの空き部屋一覧
全部で39の空き部屋があります。
麻布台ヒルズレジデンスBに条件(家賃・エリア)が近い物件一覧
| 写真 | 家賃 管理費等 | 敷金 礼金 | 間取り 専有面積 | 築年数 | 最寄り駅 所在地 | キープ | 詳細 |
|---|---|---|---|---|---|---|---|
マンション プライムパークス品川シーサイド ザ・タワー(2LDK/26階) | |||||||
![]() | 28.5万円 なし | 28.5万円 28.5万円 | 2LDK 56.91m2 | 築7年 | 東京臨海高速鉄道 品川シーサイド駅 徒歩3分 東京都品川区東品川4丁目 | 詳細を見る | |
マンション アーバネックス日本橋馬喰町II(2LDK/7階) | |||||||
![]() | 29.7万円 1.5万円 | 29.7万円 なし | 2LDK 51.17m2 | 築1年 | JR総武線快速 馬喰町駅 徒歩2分 東京メトロ日比谷線 小伝馬町駅 徒歩5分 都営新宿線 馬喰横山駅 徒歩5分 東京都中央区日本橋馬喰町 | 詳細を見る | |
マンション HARUMI FLAG PARK VILLAGE C棟(3LDK/5階) | |||||||
![]() | 36.9万円 2.5万円 | 36.9万円 36.9万円 | 3LDK 87.43m2 | 築3年 | 都営大江戸線 勝どき駅 徒歩19分 新交通ゆりかもめ 市場前駅 徒歩25分 新交通ゆりかもめ 竹芝駅 徒歩55分 東京都中央区晴海 | 詳細を見る | |
マンション ザ・パークハウス新宿御苑(2LDK/11階) | |||||||
![]() | 59万円 3万円 | 118万円 59万円 | 2LDK 80.64m2 | 築9年 | 東京メトロ丸ノ内線 新宿御苑前駅 徒歩1分 東京メトロ副都心線 新宿三丁目駅 徒歩6分 JR山手線 新宿駅 徒歩11分 東京都新宿区新宿 | 詳細を見る | |
マンション ジ クロスポイント(2LDK/1階) | |||||||
![]() | 31.5万円 1.75万円 | 31.5万円 31.5万円 | 2LDK 78.23m2 | 新築 | 東急大井町線 荏原町駅 徒歩3分 東急大井町線 旗の台駅 徒歩6分 東急池上線 旗の台駅 徒歩6分 東京都品川区旗の台 | 詳細を見る | |
マンション ビーコンタワーレジデンス(2LDK/31階) | |||||||
![]() | 32万円 なし | 32万円 32万円 | 2LDK 85.2m2 | 築17年 | 東京メトロ有楽町線 辰巳駅 徒歩9分 りんかい線 東雲駅(東京) 徒歩12分 東京メトロ有楽町線 豊洲駅 徒歩15分 東京都江東区東雲 | 詳細を見る | |
マンション 富久クロスコンフォートタワー(2LDK/38階) | |||||||
![]() | 53万円 なし | 106万円 53万円 | 2LDK 75.31m2 | 築11年 | 東京メトロ丸ノ内線 新宿御苑前駅 徒歩8分 東京メトロ副都心線 新宿三丁目駅 徒歩9分 都営新宿線 曙橋駅 徒歩11分 東京都新宿区富久町 | 詳細を見る | |
マンション クレヴィア新宿若松町(2LDK/7階) | |||||||
![]() | 28万円 1.5万円 | 28万円 28万円 | 2LDK 60.05m2 | 築5年 | 都営大江戸線 若松河田駅 徒歩3分 東京メトロ東西線 早稲田駅(メトロ) 徒歩10分 都営新宿線 曙橋駅 徒歩14分 東京都新宿区若松町 | 詳細を見る | |








