賃貸マンション
麻布台ヒルズレジデンスBの賃貸物件情報(1K/9階)
| 家賃 | 管理費等 | 敷金 | 礼金 | 間取り | 専有面積 |
|---|---|---|---|---|---|
| 44万円 | なし | 88万円 | 44万円 | 1K | 32.68m2 |
入居決定でお祝い金最大100,000円
- 保証金
- -
- 償却・敷引
- 22万円
- 築年数
- 築1年
- 所在階
- 9階
- 向き
- -
Point
★システムキッチン・2口コンロ★ディスポーザー★温水洗浄便座★クローゼット★シューズボックス★ビルトインエアコン★TVモニター付インターホン★オートロック★詳細はお気軽にお問い合わせください!★
提供:そらうみリアルエステート(株)賃貸事業本部(SUUMO経由)

詳細情報 麻布台ヒルズレジデンスB
物件紹介
麻布台ヒルズレジデンスBは東京メトロ南北線六本木一丁目駅から徒歩1分にあり、駅近で通勤通学に便利なマンションです。
このお部屋は2階以上に位置しているので、通行人や周囲の住人からの視線が気になりにくく、防犯面でも安心。建物のエントランスはオートロックがついており、インターホンにはTVモニタもついているため、相手の顔を確認してから来客対応することができます。
フローリングのお部屋なのでお掃除もラクラク。キッチンはシステムキッチン仕様になっていますので、お料理好きの方にもぴったり。バス・トイレは別なので、のんびりお風呂タイムも楽しめるでしょう。また、雨の日でも浴室乾燥機を使えば、お洗濯も問題ありません。
床暖房があり、冬も足元から暖かく快適に過ごすことができます。建物にはエレベーターがついているので、重い荷物があっても安心。共用部には宅配ボックスが設定されているので、不在の時にも荷物を受け取ることができます。
このお部屋は2階以上に位置しているので、通行人や周囲の住人からの視線が気になりにくく、防犯面でも安心。建物のエントランスはオートロックがついており、インターホンにはTVモニタもついているため、相手の顔を確認してから来客対応することができます。
フローリングのお部屋なのでお掃除もラクラク。キッチンはシステムキッチン仕様になっていますので、お料理好きの方にもぴったり。バス・トイレは別なので、のんびりお風呂タイムも楽しめるでしょう。また、雨の日でも浴室乾燥機を使えば、お洗濯も問題ありません。
床暖房があり、冬も足元から暖かく快適に過ごすことができます。建物にはエレベーターがついているので、重い荷物があっても安心。共用部には宅配ボックスが設定されているので、不在の時にも荷物を受け取ることができます。
お金・契約の情報
※「-」と表示されているものは、実際は料金が発生するものもございます。詳細はお問い合わせください。
| 家賃 | 44万円 | 管理費・共益費 | なし |
|---|---|---|---|
| 敷金 | 88万円 | 礼金 | 44万円 |
| 入居決定でお祝い金最大100,000円 | |||
| 保証金 | - | 償却・敷引 | 22万円 |
| 住宅保険料 | - | 更新料 | - |
| 保証会社利用 | 必須 | 保証会社名 | - |
| 保証会社費用 | - | 保証会社備考 | 保証会社利用必 詳細はお問い合わせください。 |
| 契約形態 | 定期借家 | 契約期間 | 3年 |
| 入居・引渡期間 | 相談 | 現況 | - |
| 契約備考 | 常駐管理/駐車場:71500円/月※空・詳細要確認 駐輪場:880円/月※空・詳細要確認 トランクルーム:6600円※詳細要確認 1K 単身者可 定期借家3年 損保【要】 バストイレ別、バルコニー、エアコン、クロゼット、フローリング、TVインターホン、浴室乾燥機、オートロック、室内洗濯置、シューズボックス、システムキッチン、追焚機能浴室、温水洗浄便座、エレベーター、2口コンロ、駐輪場、宅配ボックス、防犯カメラ、IHクッキングヒーター、24時間有人管理、オートバス、保証人不要、バイク置場、2沿線利用可、ディンプルキー、床暖房、食器洗乾燥機、トランクルーム、ディスポーザー、2駅利用可、3駅以上利用可、3沿線以上利用可、駅徒歩5分以内、駅徒歩10分以内、保証会社利用可 | ||
部屋の情報
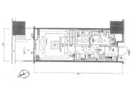
| 間取り | 1K | 専有面積 | 32.68m2 |
|---|---|---|---|
| 所在階 / 向き | 9階 / - | バルコニー面積 | - |
| 水道 / ガス | - | ||
| 設備 | バス・トイレ別、2階以上、オートロック、テレビドアホン、宅配ボックス、浴室乾燥機、追い焚き、システムキッチン、エアコン、エレベーター、温水洗浄便座、バルコニー、フローリング、トランクルーム、床暖房、2口コンロ、コンロ:IH、洗濯機:室内 | ||
| 当社物件ID | 159934701 | ||
建物の情報
| 建物名 | 麻布台ヒルズレジデンスB | ||
|---|---|---|---|
| 所在地 | 東京都港区麻布台 | ||
| 交通 | 東京メトロ南北線 六本木一丁目駅 徒歩1分 東京メトロ日比谷線 神谷町駅 徒歩8分 都営大江戸線 赤羽橋駅 徒歩15分 | ||
| 階数 | 地下5地上64階建 | 総戸数 | - |
| 築年月 | 2025年11月 / 築1年 | エレベーター | あり |
| 駐車場 | なし | バイク置き場 | あり |
| 駐輪場 | あり | 管理人/管理会社 | - |
| 周辺環境 | その他 セブンイレブン 港区飯倉店(コンビニ)まで308m その他 まいばすけっと 六本木1丁目店(スーパー)まで427m その他 トモズ 神谷町店(ドラッグストア)まで586m | ||
| 建物種別 | マンション | 建物構造 | RC(鉄筋コンクリート) |
この部屋の取扱い不動産会社
| 会社名 | (株)ユウキ・ホーム麻布十番サテライト店(SUUMO経由) | ||
|---|---|---|---|
| 所在地 | 東京都港区麻布十番2-19-10 桂麻布十番ビル1階 | 交通 | - |
| 営業時間 | 9:30~21:30 | 定休日 | 年中無休 |
| 免許番号 | 東京都知事76214 | 取引態様 | 仲介 |
| 不動産会社管理番号 | 100474816816 | 当社管理番号 | 89 |
| 所属団体 | (公社)東京都宅地建物取引業協会会員 | ||
| 公正取引協議会 | (公社)首都圏不動産公正取引協議会加盟 | ||
| 取扱い物件情報 | 物件詳細へ | ||
※各種情報と現状に差異がある場合は、現状優先となります。問い合わせをすることで、より詳しい条件、情報を確認する事ができます。
提供:(株)ユウキ・ホーム麻布十番サテライト店(SUUMO経由)
この物件が気になったら掲載期限まであと11日
麻布台ヒルズレジデンスBの空き部屋一覧
全部で29の空き部屋があります。
麻布台ヒルズレジデンスBに条件(家賃・エリア)が近い物件一覧
| 写真 | 家賃 管理費等 | 敷金 礼金 | 間取り 専有面積 | 築年数 | 最寄り駅 所在地 | キープ | 詳細 |
|---|---|---|---|---|---|---|---|
マンション LA SANTE 麹町 ラサンテ麹町(1LDK/10階) | |||||||
![]() | 36万円 1.5万円 | 36万円 36万円 | 1LDK 57.41m2 | 築21年 | 東京メトロ有楽町線 麹町駅 徒歩3分 東京メトロ半蔵門線 半蔵門駅 徒歩3分 東京メトロ銀座線 赤坂見附駅 徒歩16分 東京都千代田区麹町 | 詳細を見る | |
マンション 平河町森タワーレジデンス(1LDK/19階) | |||||||
![]() | 55万円 3万円 | 110万円 55万円 | 1LDK 75.96m2 | 築17年 | 東京メトロ有楽町線 永田町駅 徒歩1分 東京メトロ丸ノ内線 赤坂見附駅 徒歩6分 東京メトロ千代田線 国会議事堂前駅 徒歩11分 東京都千代田区平河町 | 詳細を見る | |
マンション ザ・パークハウス三田ガーデン(2LDK/21階) | |||||||
![]() | 70万円 なし | 70万円 70万円 | 2LDK 74.57m2 | 築5年 | 東京メトロ南北線 白金高輪駅 徒歩9分 都営大江戸線 麻布十番駅 徒歩13分 都営三田線 三田駅(東京) 徒歩14分 東京都港区三田 | 詳細を見る | |
マンション ラ・コリーヌ神宮前(1LDK/2階) | |||||||
![]() | 28万円 なし | 28万円 28万円 | 1LDK 59.48m2 | 築28年 | 東京メトロ千代田線 明治神宮前駅 徒歩8分 JR山手線 原宿駅 徒歩10分 東京メトロ銀座線 表参道駅 徒歩12分 東京都渋谷区神宮前 | 詳細を見る | |
マンション ザ・東京タワーズシータワー(1LDK/49階) | |||||||
![]() | 33万円 なし | 33万円 33万円 | 1LDK 65.14m2 | 築19年 | 都営大江戸線 勝どき駅 徒歩5分 東京メトロ有楽町線 月島駅 徒歩20分 都営大江戸線 築地市場駅 徒歩21分 東京都中央区勝どき | 詳細を見る | |
マンション 東五反田メゾネット(3SLDK/9階) | |||||||
![]() | 60万円 1万円 | 300万円 60万円 | 3SLDK 98.5m2 | 築33年 | 都営浅草線 五反田駅 徒歩6分 東京都品川区東五反田 | 詳細を見る | |
マンション レジディアタワー目黒不動前(1SLDK/11階) | |||||||
![]() | 29.9万円 1.5万円 | 29.9万円 29.9万円 | 1SLDK 55.33m2 | 築20年 | JR山手線 五反田駅 徒歩8分 東急目黒線 不動前駅 徒歩8分 JR山手線 目黒駅 徒歩15分 東京都品川区西五反田 | 詳細を見る | |
マンション イプセ代々木レジデンス(2LDK/2階) | |||||||
![]() | 30.3万円 2万円 | 30.3万円 なし | 2LDK 50.03m2 | 築1年 | 山手線 代々木駅 徒歩6分 山手線 新宿駅 徒歩11分 東京都渋谷区代々木1丁目 | 詳細を見る | |







