賃貸マンション
ブランシエスタ西宮の賃貸物件情報(1K/5階)
| 家賃 | 管理費等 | 敷金 | 礼金 | 間取り | 専有面積 |
|---|---|---|---|---|---|
| 8.5万円 | 7,000円 | 8.5万円 | 12.75万円 | 1K | 26.85m2 |
入居決定でお祝い金最大100,000円
- 保証金
- -
- 償却・敷引
- -
- 築年数
- 築9年
- 所在階
- 5階
- 向き
- 東
Point
WEB来店やオンライン内見も可能です。ご契約も来店不要で完了できます。遠方からのお引越しにもIT技術を活用し、知らない土地でもかんたん、かつ安心してお引越しができるようにしっかりサポート致します!
提供:いい部屋ネット西宮北口店(株)クレド(SUUMO経由)

詳細情報 ブランシエスタ西宮
物件紹介
ブランシエスタ西宮は阪神本線西宮駅から徒歩3分にあり、駅近で通勤通学に便利なマンションです。
このお部屋は2階以上に位置しているので、通行人や周囲の住人からの視線が気になりにくく、防犯面でも安心。建物のエントランスはオートロックがついており、インターホンにはTVモニタもついているため、相手の顔を確認してから来客対応することができます。
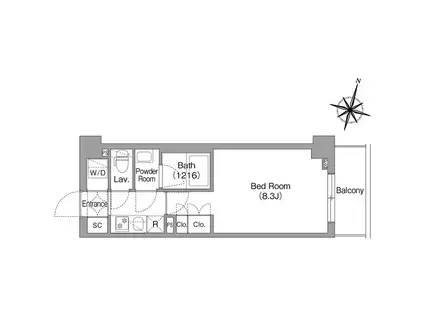
こちらは楽器相談が可能な物件。楽器演奏をお考えの方はぜひ相談してみてください。人気の南向き・フローリングのお部屋。角部屋でもあるため、周囲の居住者の生活音も気になりにくい場所です。室内にはウォークインクローゼットがありますので、たくさんの荷物も効率的に収納ができます。キッチンはシステムキッチン仕様になっていますので、お料理好きの方にもぴったり。バス・トイレは別なので、のんびりお風呂タイムも楽しめるでしょう。また、雨の日でも浴室乾燥機を使えば、お洗濯も問題ありません。
通信設備面では、インターネットが無料で使えるので、月々の出費を抑えられるのも魅力です。また、BSアンテナ・CSアンテナがありCATVにも対応しているので、おうち時間も充実するでしょう(別途工事、BS・CS・CATVの契約料等が必要な場合あり)。
建物にはエレベーターがついているので、重い荷物があっても安心。共用部には宅配ボックスが設定されているので、不在の時にも荷物を受け取ることができます。また、ペット飼育の相談ができますので、あなたの大切な家族の一員も快適に暮らせるか、ぜひ確認してみてください。
このお部屋は2階以上に位置しているので、通行人や周囲の住人からの視線が気になりにくく、防犯面でも安心。建物のエントランスはオートロックがついており、インターホンにはTVモニタもついているため、相手の顔を確認してから来客対応することができます。
こちらは楽器相談が可能な物件。楽器演奏をお考えの方はぜひ相談してみてください。人気の南向き・フローリングのお部屋。角部屋でもあるため、周囲の居住者の生活音も気になりにくい場所です。室内にはウォークインクローゼットがありますので、たくさんの荷物も効率的に収納ができます。キッチンはシステムキッチン仕様になっていますので、お料理好きの方にもぴったり。バス・トイレは別なので、のんびりお風呂タイムも楽しめるでしょう。また、雨の日でも浴室乾燥機を使えば、お洗濯も問題ありません。
通信設備面では、インターネットが無料で使えるので、月々の出費を抑えられるのも魅力です。また、BSアンテナ・CSアンテナがありCATVにも対応しているので、おうち時間も充実するでしょう(別途工事、BS・CS・CATVの契約料等が必要な場合あり)。
建物にはエレベーターがついているので、重い荷物があっても安心。共用部には宅配ボックスが設定されているので、不在の時にも荷物を受け取ることができます。また、ペット飼育の相談ができますので、あなたの大切な家族の一員も快適に暮らせるか、ぜひ確認してみてください。
お金・契約の情報
※「-」と表示されているものは、実際は料金が発生するものもございます。詳細はお問い合わせください。
| 家賃 | 8.5万円 | 管理費・共益費 | 7,000円 |
|---|---|---|---|
| 敷金 | 8.5万円 | 礼金 | 12.75万円 |
| 入居決定でお祝い金最大100,000円 | |||
| 保証金 | - | 償却・敷引 | - |
| 住宅保険料 | - | 更新料 | - |
| 保証会社利用 | 必須 | 保証会社名 | - |
| 保証会社費用 | - | 保証会社備考 | 保証会社利用必 初回保証委託料(最低20,000円):月額賃料等の50%、 2年目以降:9,600円/年 |
| 契約形態 | - | 契約期間 | - |
| 入居・引渡期間 | 相談 | 現況 | - |
| 契約備考 | ■WEB来店可能 ■オンライン内見可能 ■IT重説対応 ■初期費用クレジット決済対応 ■不動産歴10年以上のスタッフが複数在籍 ■女性スタッフでの案内可能 ■現地待合せOK ■3大ハウスメーカー紹介可能 ■売買物件の提案可能 ■店舗は駅から3分以内 ■最寄り駅までお迎え可能 ■条件交渉も頑張ります!! 合計1.65万円(内訳:カギ交換費16500円) 1K 単身者可/ペット相談 普通借家2年 損保【要】 バストイレ別、バルコニー、エアコン、ガスコンロ対応、クロゼット、フローリング、シャワー付洗面台、TVインターホン、浴室乾燥機、オートロック、室内洗濯置、シューズボックス、システムキッチン、温水洗浄便座、脱衣所、エレベーター、洗面所独立、洗面化粧台、2口コンロ、駐輪場、宅配ボックス、CATV、光ファイバー、BS・CS、防犯カメラ、ペット相談、オートバス、保証人不要、CATVインターネット、3駅以上利用可、3沿線以上利用可、駅徒歩10分以内、敷地内ごみ置き場、高速ネット対応、IT重説対応物件、初期費用カード決済可、通風良好 | ||
部屋の情報
| 間取り | 1K | 専有面積 | 26.85m2 |
|---|---|---|---|
| 所在階 / 向き | 5階 / 東 | バルコニー面積 | - |
| 水道 / ガス | - | ||
| 設備 | バス・トイレ別、2階以上、オートロック、テレビドアホン、宅配ボックス、浴室乾燥機、追い焚き、インターネット対応、システムキッチン、エアコン、エレベーター、温水洗浄便座、バルコニー、フローリング、洗髪洗面化粧台、2口コンロ、コンロ:ガス、CATV、CSアンテナ、BSアンテナ、洗濯機:室内 | ||
| 当社物件ID | 160553486 | ||
建物の情報
| 建物名 | ブランシエスタ西宮 | ||
|---|---|---|---|
| 所在地 | 兵庫県西宮市本町 | ||
| 交通 | 東京メトロ日比谷線 広尾駅 徒歩6分 阪神本線 西宮駅(阪神) 徒歩6分 JR東海道本線 西宮駅(JR) 徒歩16分 阪急今津線 今津駅(阪急) 徒歩18分 | ||
| 階数 | 10階建 | 総戸数 | 119戸 |
| 築年月 | 2017年11月 / 築9年 | エレベーター | あり |
| 駐車場 | なし | バイク置き場 | - |
| 駐輪場 | あり | 管理人/管理会社 | - |
| 周辺環境 | その他 ファミリーマート 西宮鞍掛町店(コンビニ)まで176m | ||
| 建物種別 | マンション | 建物構造 | RC(鉄筋コンクリート) |
この部屋の取扱い不動産会社
| 会社名 | いい部屋ネット塚口店(株)クレド(SUUMO経由) | ||
|---|---|---|---|
| 所在地 | 兵庫県尼崎市塚口町1-10-24ー2階 | 交通 | - |
| 営業時間 | 10:00~19:00 | 定休日 | 年末年始 |
| 免許番号 | 兵庫県知事12368 | 取引態様 | 仲介 |
| 不動産会社管理番号 | 100493541924 | 当社管理番号 | 89 |
| 所属団体 | (公社)全日本不動産協会兵庫県本部会員 | ||
| 公正取引協議会 | (公社)近畿地区不動産公正取引協議会加盟 | ||
| 取扱い物件情報 | 物件詳細へ | ||
※各種情報と現状に差異がある場合は、現状優先となります。問い合わせをすることで、より詳しい条件、情報を確認する事ができます。
提供:いい部屋ネット塚口店(株)クレド(SUUMO経由)
この物件が気になったら掲載期限まであと11日
ブランシエスタ西宮に条件(家賃・エリア)が近い物件一覧
| 写真 | 家賃 管理費等 | 敷金 礼金 | 間取り 専有面積 | 築年数 | 最寄り駅 所在地 | キープ | 詳細 |
|---|---|---|---|---|---|---|---|
アパート GAZELLE NOAH尼崎尾浜(1DK/1階) | |||||||
![]() | 7.1万円 6,000円 | 7.1万円 14.2万円 | 1DK 24.84m2 | 築1年 | 東海道本線 尼崎駅(JR) 徒歩18分 東海道本線 立花駅 徒歩31分 兵庫県尼崎市尾浜町3丁目 | 詳細を見る | |
アパート 神戸市西神山手線 伊川谷駅 徒歩6分 築16年(1K/1階) | |||||||
![]() | 5.5万円 3,000円 | なし 5.5万円 | 1K 24m2 | 築16年 | 神戸市西神山手線 伊川谷駅 徒歩6分 神戸市西神山手線 西神南駅 徒歩27分 兵庫県神戸市西区前開南町1丁目 | 詳細を見る | |
アパート レガリア東園田(1LDK/2階) | |||||||
![]() | 9.2万円 9,500円 | なし 9.2万円 | 1LDK 40.2m2 | 築4年 | 阪急神戸線 園田駅 徒歩2分 JR福知山線 塚口駅(JR) 徒歩29分 JR東海道本線 尼崎駅(JR) 徒歩40分 兵庫県尼崎市東園田町 | 詳細を見る | |
マンション 天城ビル(3DK/1階) | |||||||
![]() | 6万円 2,000円 | 6万円 6万円 | 3DK 40m2 | 築57年 | 阪急神戸線 王子公園駅 徒歩8分 JR東海道本線 摩耶駅 徒歩10分 阪神本線 西灘駅 徒歩16分 兵庫県神戸市灘区天城通 | 詳細を見る | |
マンション 兵庫県神戸市垂水区 築43年(3LDK/4階) | |||||||
![]() | 5.5万円 なし | なし 10万円 | 3LDK 59.8m2 | 築43年 | 兵庫県神戸市垂水区桃山台2丁目 | 詳細を見る | |
マンション 神戸市西神山手線 名谷駅 徒歩14分 築46年(2DK/4階) | |||||||
![]() | 5.83万円 4,200円 | 11.66万円 なし | 2DK 53m2 | 築46年 | 神戸市西神山手線 名谷駅 徒歩14分 兵庫県神戸市須磨区北落合1丁目 | 詳細を見る | |
マンション 神戸市西神山手線 名谷駅 徒歩9分 築42年(3LDK/4階) | |||||||
![]() | 7.76万円 3,000円 | 15.52万円 なし | 3LDK 89m2 | 築42年 | 神戸市西神山手線 名谷駅 徒歩9分 神戸市西神山手線 総合運動公園駅 徒歩25分 神戸市西神山手線 妙法寺駅(兵庫) 徒歩36分 兵庫県神戸市須磨区北落合3丁目 | 詳細を見る | |
マンション サンシャイン南別府(3SLDK/1階) | |||||||
![]() | 6.2万円 3,000円 | なし なし | 3SLDK 66m2 | 築33年 | 兵庫県神戸市西区南別府4丁目 | 詳細を見る | |








