賃貸マンション
ノースランド真駒内の賃貸物件情報(ワンルーム/3階)
| 家賃 | 管理費等 | 敷金 | 礼金 | 間取り | 専有面積 |
|---|---|---|---|---|---|
| 3.2万円 | なし | なし | なし | ワンルーム | 29.68m2 |
入居決定でお祝い金最大100,000円
- 保証金
- -
- 償却・敷引
- -
- 築年数
- 築36年
- 所在階
- 3階
- 向き
- -
Point
★当店ではオンライン通話によるご案内が可能でございます★
提供:アパマンショップ大通公園店

詳細情報 ノースランド真駒内
物件紹介
ノースランド真駒内は地下鉄南北線真駒内駅から徒歩27分にあるマンションです。
このお部屋は2階以上に位置しているので、通行人や周囲の住人からの視線が気になりにくく、防犯面でも安心。インターホンにはTVモニタもついているため、相手の顔を確認してから来客対応することができます。
おしゃれなデザイナーズ物件!人気の角部屋で周囲の居住者の生活音も気になりにくく、また、フローリングのお部屋なのでお掃除もラクラク。室内にはウォークインクローゼットがありますので、たくさんの荷物も効率的に収納ができます。バス・トイレ別の仕様で、のんびりお風呂タイムも楽しめます。
通信設備面では、インターネットが無料で使えるので、月々の出費を抑えられるのも魅力です。また、BSアンテナ・CSアンテナがありCATVにも対応しているので、おうち時間も充実するでしょう(別途工事、BS・CS・CATVの契約料等が必要な場合あり)。
また、こちらはガス暖房が可能な物件。ガスファンヒーターの使用も考えている方にはおすすめです。共用部には宅配ボックスが設定されているので、不在の時にも荷物を受け取ることができます。
このお部屋は2階以上に位置しているので、通行人や周囲の住人からの視線が気になりにくく、防犯面でも安心。インターホンにはTVモニタもついているため、相手の顔を確認してから来客対応することができます。
おしゃれなデザイナーズ物件!人気の角部屋で周囲の居住者の生活音も気になりにくく、また、フローリングのお部屋なのでお掃除もラクラク。室内にはウォークインクローゼットがありますので、たくさんの荷物も効率的に収納ができます。バス・トイレ別の仕様で、のんびりお風呂タイムも楽しめます。
通信設備面では、インターネットが無料で使えるので、月々の出費を抑えられるのも魅力です。また、BSアンテナ・CSアンテナがありCATVにも対応しているので、おうち時間も充実するでしょう(別途工事、BS・CS・CATVの契約料等が必要な場合あり)。
また、こちらはガス暖房が可能な物件。ガスファンヒーターの使用も考えている方にはおすすめです。共用部には宅配ボックスが設定されているので、不在の時にも荷物を受け取ることができます。
お金・契約の情報
※「-」と表示されているものは、実際は料金が発生するものもございます。詳細はお問い合わせください。
| 家賃 | 3.2万円 | 管理費・共益費 | なし |
|---|---|---|---|
| 敷金 | なし | 礼金 | なし |
| 入居決定でお祝い金最大100,000円 | |||
| 保証金 | - | 償却・敷引 | - |
| 住宅保険料 | 2.35万円(2年) | 更新料 | - |
| 保証会社利用 | 必須 | 保証会社名 | ほっと保証(ライフdeホッ) |
| 保証会社費用 | - | 保証会社備考 | 初回保証料:月額賃料等の50% 最低保証料金:20,000円 月額保証料:1.7% 年間更新料:10,000円 |
| 契約形態 | - | 契約期間 | 2年 |
| 入居・引渡期間 | 相談 | 現況 | - |
| 契約備考 | リペアサービス 1650円/ハウスクリーニング 27500円/カードキー設定料 14300円 | ||
部屋の情報
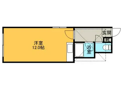
| 間取り | ワンルーム | 専有面積 | 29.68m2 |
|---|---|---|---|
| 間取り詳細 | 洋室(12.6帖) | ||
| 所在階 / 向き | 3階 / - | バルコニー面積 | - |
| 水道 / ガス | ガス【プロパン】 | ||
| 設備 | バス・トイレ別、テレビドアホン、インターネット対応、温水洗浄便座、ロフトあり、CATV、インターネット使用料無料、給湯、ガス暖房、洗濯機:室内 | ||
| 当社物件ID | 38010539 | ||
建物の情報
| 建物名 | ノースランド真駒内 | ||
|---|---|---|---|
| 所在地 | 北海道札幌市南区真駒内本町6丁目 | ||
| 交通 | 札幌市南北線 真駒内駅 バス乗車時間:12分 真駒内本町バス停で下車 徒歩4分 | ||
| 階数 | 3階建 | 総戸数 | 18戸 |
| 築年月 | 1990年11月 / 築36年 | エレベーター | - |
| 駐車場 | - | バイク置き場 | - |
| 駐輪場 | - | 管理人/管理会社 | - |
| 周辺環境 | その他 セイコーマート 徒歩13分(961m) その他 イオン札幌藻岩店 徒歩19分(1476m) その他 藻岩高校 徒歩21分(1620m) その他 ホーマック 徒歩22分(1743m) その他 ニトリ 徒歩26分(2049m) その他 セブンイレブン 徒歩33分(2607m) その他 東光ストア自衛隊駅前店 徒歩35分(2752m) その他 ビッグハウスエクストラ 徒歩26分(2001m) | ||
| 建物種別 | マンション | 建物構造 | RC(鉄筋コンクリート) |
この部屋の取扱い不動産会社
| 会社名 | アパマンショップ南郷7丁目店 | ||
|---|---|---|---|
| 所在地 | 北海道札幌市白石区南郷通7丁目南 5-10メソンカルディア1階 | 交通 | 札幌市東西線南郷7丁目から徒歩1分 |
| 営業時間 | 09:00〜18:00(営業時間外は予約制でご対応可能) | 定休日 | - |
| 免許番号 | 北海道知事石狩(2)8819 | 取引態様 | 仲介 |
| 不動産会社管理番号 | 111481984 | 当社管理番号 | 4 |
| 所属団体 | (公社)北海道宅地建物取引業協会 | ||
| 公正取引協議会 | (一社) 北海道不動産公正取引協議会加盟 | ||
| 取扱い物件情報 | 物件詳細へ | ||
※各種情報と現状に差異がある場合は、現状優先となります。問い合わせをすることで、より詳しい条件、情報を確認する事ができます。
提供:アパマンショップ南郷7丁目店
この物件が気になったら掲載期限まであと8日
ノースランド真駒内に条件(家賃・エリア)が近い物件一覧
| 写真 | 家賃 管理費等 | 敷金 礼金 | 間取り 専有面積 | 築年数 | 最寄り駅 所在地 | キープ | 詳細 |
|---|---|---|---|---|---|---|---|
アパート アトリエ(2LDK/2階) | |||||||
![]() | 4.5万円 なし | 4.5万円 なし | 2LDK 52.88m2 | 築37年 | JR千歳線 恵み野駅 徒歩17分 JR千歳線 恵庭駅 徒歩23分 北海道恵庭市中島町 | 詳細を見る | |
マンション レジデンス雅(1LDK/4階) | |||||||
![]() | 3.5万円 なし | なし なし | 1LDK 37.95m2 | 築28年 | 函館本線 銭函駅 徒歩22分 北海道小樽市銭函1丁目 | 詳細を見る | |
マンション ラ・シュエット住ノ江(1K/1階) | |||||||
![]() | 4.7万円 3,000円 | なし なし | 1K 28.06m2 | 築6年 | JR函館本線 南小樽駅 徒歩5分 JR函館本線 小樽駅 徒歩21分 JR函館本線 小樽築港駅 徒歩31分 北海道小樽市住ノ江 | 詳細を見る | |
アパート RESIDENCE U 駅前(1K/1階) | |||||||
![]() | 4.8万円 1,000円 | なし なし | 1K 33.28m2 | 築13年 | 千歳線 恵庭駅 徒歩3分 北海道恵庭市黄金中央2丁目 | 詳細を見る | |
アパート ミニハウス(ワンルーム/1階) | |||||||
![]() | 3万円 2,000円 | なし なし | ワンルーム 19.8m2 | 築35年 | 函館本線 小樽駅 徒歩7分 北海道小樽市稲穂4丁目 | 詳細を見る | |
アパート プレステージ長橋(ワンルーム/2階) | |||||||
![]() | 3万円 なし | なし 3万円 | ワンルーム 22.28m2 | 築36年 | 北海道小樽市長橋3丁目 | 詳細を見る | |
マンション パークヒルズ文京台(ワンルーム/4階) | |||||||
![]() | 4.2万円 3,500円 | 4.2万円 なし | ワンルーム 23m2 | 築33年 | JR函館本線 大麻駅 徒歩11分 北海道江別市文京台 | 詳細を見る | |
一戸建て 函館本線 小樽駅 徒歩23分 築48年(6LDK) | |||||||
![]() | 4.8万円 なし | なし 4.8万円 | 6LDK 125.86m2 | 築48年 | 函館本線 小樽駅 徒歩23分 北海道小樽市末広町 | 詳細を見る | |




/105x80-f1-q70-wp1)



